Back to Documents

Mayor and Council Agenda

PDF Mayor and Council Oct 14, 2025 at 07:00 PM Processed: Oct 10, 2025 at 09:59 PM

PDF Content

Pages: 420

City of Roswell Meeting Agenda Mayor and Council Regular Meeting Mayor Kurt Wilson Councilmember Sarah Beeson Councilmember Christine Hall Councilmember G. Lee Hills Councilmember David Johnson Councilmember William Morthland Councilmember Allen Sells Tuesday, October 14, 2025 7:00 PM City Hall - Council Chambers Welcome Roll Call Invocation/Moment of Silence - Anne Birth, Campus Ministry Director, Blessed Trinity Catholic High School Pledge of Allegiance - United States Army Captain Roger Hill Mayor's Report - 1. #10080 Reading of a Proclamation for the Esteemed Veteran of Roswell Award to United States Army Captain Roger Hill. - 2. #10103 Reading of a Proclamation for the Esteemed Roswell Public Safety Employee Award to Financial Coordinator Timothy Britt as 2024 Civilian of the Year. - 3. #10090 Presentation of the 2025 Roswell Rotary First Responders Championship Trophy. - 4. #10081 Roswell Results Update. Consent Agenda - 1. #10078 Approval of the minutes of the September 22, 2025 Special Called Mayor and Council meeting, September 22, 2025 Mayor and Council meeting, September 29, 2025 Open Forum and October 1, 2025 FY2026 Budget Workshop. - 2. #9623 Approval for the Mayor or City Administrator to award a contract to Reeves & Young for construction of the E911 Call Center in the amount of \$3,900,000 and budget authorization of \$4,690,000 for this contract. Presented by Brian Watson, Director of Environmental/Public Works
Regular Agenda 1. #10100 Presentation of FY24 Months Annual Comprehensive Financial Report (ACFR). Presented by Bill Godshall, Chief Financial Officer 2. #10046 Presentation of the Mayor's FY 2026 Proposed Budget. Presented by Adam Novotney, Director of Finance 3. #10065 Approval to advance the Slow Down in Roswell initiative (Traffic Calming Policy). Presented by Greg Nicolas, Interim Director of Transportation 4. #10114 Approval of a Resolution supporting the Roswell Downtown Development Authority (DDA) Hill Street project and all documents and approvals necessary for the project. Presented by Jeffrey Leatherman, Deputy City Administrator & Senior Vice President City Attorney's Report 5. #10112 Approval of a Memorandum of Understanding for a redevelopment project known as City Center at Highway 9 and Holcomb Bridge Road. Presented by David Davidson, Chief Legal Officer & City Attorney 6. #10079 Recommendation for Closure to Discuss Personnel, Litigation and Real Estate. Adjournment PUBLIC COMMENT PROTOCOL: - To address Mayor and Council on an Agenda Item, complete a Comment Card and submit to the City Clerk. - Comments by individual speakers are limited to five minutes per item. (Exemptions to the time limit are zoning applicants, appeals, and semi-judicial matters before Mayor and Council.). Comments should only be made on the agenda item under consideration. - Documents, pictures or presentation materials for distribution to the Mayor and Council must be submitted to the City Clerk by noon on Monday prior to the meeting. Email to citizendocuments@roswellgov.com or drop off at City Hall. RULES OF DECORUM FOR ALL MEETINGS (City of Roswell Code of Ordinances Section 2.1.6): The City of Roswell strives to provide a positive experience for those visiting city facilities and promotes an environment of personal safety and security – free from intimidation, threats or violent acts. All are expected to exhibit common courtesy, civility, and respect for others. Members of the audience will respect the rights of others and will not create noise or other disturbances that disrupt or disturb persons who are addressing the Mayor & Council who are speaking or otherwise impede the orderly conduct of the meeting. Violations may result in the violator being removed from the premises.
City of Roswell Mayor and Council AGENDA ITEM REPORT ID # - 10080 MEETING DATE: October 14, 2025 DEPARTMENT: Mayor's Report ITEM TYPE: Proclamation - Mayor's Report Reading of a Proclamation for the Esteemed Veteran of Roswell Award to United States Army Captain Roger Hill. Item Summary: This Proclamation honors United States Army Captain Roger Hill and his service to our Nation, to fellow service members and to the Roswell community. Presented by: Mayor Kurt M. Wilson Updated: 10/6/2025 3:22 PM Page 1
Captain Roger Hill Esteemed Veteran of Roswell WHEREAS, the City of Roswell, Georgia, proudly recognizes the extraordinary men and women who have worn the uniform of the United States Armed Forces, defending our freedom and exemplifying the highest ideals of service, sacrifice, and leadership; and WHEREAS, Captain Roger Hill answered the call to serve our nation following his graduation from the United States Military Academy at West Point, one of the most prestigious and demanding leadership institutions in the world, where he developed the character, discipline, and commitment to excellence that would define his military career; and WHEREAS, Captain Hill honorably served in the United States Army as an Army Ranger and Company Commander in Afghanistan, leading his soldiers through some of the most challenging combat operations with courage, integrity, and devotion to duty; and WHEREAS, his exemplary leadership and steadfast commitment to the welfare of his troops earned him the admiration of his peers, the respect of his superiors, and the gratitude of a nation; and WHEREAS, following his distinguished service, Captain Hill continued his mission of leadership and service by advocating for veterans, mentoring young leaders, and contributing to civic life in the City of Roswell, embodying the values of West Point's creed, "Duty, Honor, Country."; and WHEREAS, Captain Hill's lifelong dedication to service, both in uniform and as a citizen, reflects the very best of American character, inspiring others to lead lives marked by courage, responsibility, and compassion; and WHEREAS, the City of Roswell and its citizens are deeply grateful for Captain Hill's exemplary service to our country and his continued contributions to our community; NOW THEREFORE, I, Kurt M. Wilson, Mayor of the City of Roswell, do hereby name Captain Roger Hill an Esteemed Veteran of Roswell, and call upon all our citizens to recognize his outstanding service to our Country and our community and that there is no higher calling than those who serve in the Armed Forces. IN WITNESS WHEREOF, I have hereunto set my hand and seal this 14h day of October 2025. MAYOR KURT M. WILSON
City of Roswell Mayor and Council AGENDA ITEM REPORT ID # - 10103 MEETING DATE: October 14, 2025 DEPARTMENT: Mayor's Report ITEM TYPE: Proclamation - Mayor's Report Reading of a Proclamation for the Esteemed Roswell Public Safety Employee Award to Financial Coordinator Timothy Britt as 2024 Civilian of the Year. Item Summary: This Proclamation celebrates Financial Coordinator Timothy Britt as the 2024 Civilian of the Year and for his service to the community and this City. Presented by: Mayor Kurt M. Wilson Updated: 10/8/2025 3:47 PM Page 1
ROSWELL POLICE 2024 CIVILIAN OF THE YEAR TIMOTHY BRITT - WHEREAS, Esteemed Roswell Public Safety Employee Timothy Britt has been named as the Civilian of the Year for 2024; and - WHEREAS, Timothy Britt has been employed with the Roswell Police Department for two years. During that time, he has honorably served the Police Records Department and has since been promoted to the position of Police Financial Coordinator; and - WHEREAS, Mr. Britt has proven himself to be invaluable in handling both public and Fulton County requests while in the Records Department. His efficiencies helped the overwhelming workload in Records to become more manageable, despite the increase in the number of requests received. and, - WHEREAS, Tim Britt has a natural talent for helping others. He brings a healthy sense of humor to the workforce. He is kind, intelligent, eager to learn, and consistently offers support to his colleagues; and, - WHEREAS, Tim Britt utilizes his natural talent for technology. He continuously thinks of creative ways to improve our department's efficiency and effectiveness.; and, - WHEREAS, Mr. Britt is a valuable part of the team, ensuring that no one person is overwhelmed. He has created a more balanced and supportive work environment. His infectious sense of humor brings joy to the workplace, creating a positive atmosphere; and - WHEREAS, Timothy Britt is truly an asset to our team and the Police Department as a whole, which uniquely qualifies him for the 2024 Civilian of the Year. NOW, THEREFORE, I, Kurt M. Wilson, Mayor of the City of Roswell, do hereby recognize and honor Timothy Britt for his outstanding service and call upon all our employees and citizens to recognize his outstanding service and unwavering commitment to the City of Roswell, Georgia. IN WITNESS WHEREOF, I have hereunto set my hand and seal this 8th day of October 2025
City of Roswell Mayor and Council AGENDA ITEM REPORT ID # - 10090 MEETING DATE: October 14, 2025 DEPARTMENT: Mayor's Report ITEM TYPE: Presentation Presentation of the 2025 Roswell Rotary First Responders Championship Trophy. Item Summary: The Roswell Rotary Club shows appreciation for the City of Roswell Police and Fire Departments each year by sponsoring one foursome from the Roswell Police Department, and one foursome from the Roswell Fire Department for play at no charge in the annual Roswell Rotary Golf, Tennis and Pickleball Tournament. The Roswell Rotary First Responders Championship Trophy is presented to the foursome with the best golf score of the day who keeps the trophy until the next year's tournament. This year's winner of the First Responders Championship Trophy was the Roswell Police Department. Presented by: Mayor Kurt M. Wilson Updated: 10/9/2025 4:58 PM Page 1
City of Roswell Mayor and Council AGENDA ITEM REPORT ID # - 10081 MEETING DATE: October 14, 2025 DEPARTMENT: Mayor's Report ITEM TYPE: Update Roswell Results Update. Updated: 9/25/2025 12:23 PM Page 1
City of Roswell Mayor and Council AGENDA ITEM REPORT ID # - 10078 MEETING DATE: October 14, 2025 DEPARTMENT: Administration ITEM TYPE: Approval Approval of the minutes of the September 22, 2025 Special Called Mayor and Council meeting, September 22, 2025 Mayor and Council meeting, September 29, 2025 Open Forum and October 1, 2025 FY2026 Budget Workshop. Item Summary: Approval of the minutes of the September 22, 2025 Special Called Mayor and Council meeting, September 22, 2025 Mayor and Council meeting, September 29, 2025 Open Forum and October 1, 2025 FY2026 Budget Workshop. Updated: 10/9/2025 1:04 PM Page 1
City of Roswell Meeting Minutes Mayor and Council Special Called Meeting Mayor Kurt Wilson Councilmember Sarah Beeson Councilmember Christine Hall Councilmember G. Lee Hills Councilmember David Johnson Councilmember William Morthland Councilmember Allen Sells Monday, September 22, 2025 5:00 PM City Hall - Council Chambers Welcome Mayor Kurt Wilson: Present, Councilmember Sarah Beeson: Present, Councilmember Christine Hall: Present, Councilmember G. Lee Hills: Present, Councilmember David Johnson: Present, Councilmember William Morthland: Present, Councilmember Allen Sells: Present. City Attorney's Report 1. #10067 Recommendation for Closure to Discuss Personnel, Litigation and Real Estate. RESULT: APPROVED [UNANIMOUS] MOVER: David Johnson, Councilmember SECONDER: Sarah Beeson, Councilmember IN FAVOR: Beeson, Hall, Hills, Johnson, Morthland, Sells Adjournment The meeting was adjourned at 5:04 PM
City of Roswell Meeting Minutes Mayor and Council Regular Meeting Mayor Kurt Wilson Councilmember Sarah Beeson Councilmember Christine Hall Councilmember G. Lee Hills Councilmember David Johnson Councilmember William Morthland Councilmember Allen Sells Monday, September 22, 2025 7:00 PM City Hall - Council Chambers Welcome Mayor Kurt Wilson: Present, Councilmember Sarah Beeson: Present, Councilmember Christine Hall: Present, Councilmember G. Lee Hills: Present, Councilmember David Johnson: Present, Councilmember William Morthland: Present, Councilmember Allen Sells: Present. Invocation/Moment of Silence - Nelson Zivic, President - The Church of Jesus Christ of Latter-Day Saints Pledge of Allegiance - United States Army Specialist Micah Clark Mayor's Report 1. #10069 Reading of a Proclamation for the Esteemed Veteran of Roswell Award to United States Army Specialist Micah Clark. This Proclamation honors United States Army Specialist Micah Clark for his service to our Nation, to fellow service members and to the Roswell community. RESULT: PROCLAMATION READ 2. #10040 Reading of a Proclamation for Roswell's 75th Annual Frances McGahee Youth Day Celebration. The 2026 Roswell Youth Advisory Council attended the meeting in recognition of the 75th Annual Frances McGahee Youth Day Celebration. Roswell Youth Council, in partnership with the High School Interact Clubs sponsored by Roswell Rotary Club, offers a platform for young people to provide advice, coordinate efforts, and engage with the City of Roswell on a higher level. This council is involved in initiatives such as representing youth at Roswell's Youth Day Celebration in October, assisting with City initiatives, and promoting civic engagement within Roswell. The Youth Council participants were from Blessed Trinity, Centennial High School, Fellowship School, Roswell High School and the Cottage School.
As part of the tradition of the Youth Day Celebration, the Youth Council members represented the Mayor, Council members, City Administrator, the Police Chief and Fire Chief: Taylor Patrick (represented Mayor Kurt Wilson) Addison Nowakowski (represented Councilmember William Morthland) Juliet Hernandez (represented Councilmember Sarah Beeson) Ashley Boomhouwer (represented Councilmember Christine Hall) Hannah Chacko (represented Mayor Pro Tem, Councilmember Lee Hills) Emily Frezell (represented Councilmember David Johnson) Ava Huebner (represented Councilmember Allen Sells) Kayden Cheng (represented Police Chief James Conroy) Annie Etheridge (represented Fire Chief Pabel Troche) Kate Martinez (represented City Administrator Randy Knighton) Additional members: Brady Berry, Hannah Chacko, Joy C. Jordan, Caitlyn Hobby, Yeimi Hurtado, Malia Richards, Jennifer Sanchez, Mary Katherine Tucker The Youth Council voted to approve this year's Youth Day theme "Growing Together" that embraces Roswell's forward-thinking, progressive nature - a big city feel in a small-town setting. The 75th Annual Frances McGahee Youth Day Celebration Proclamation was read by Youth Mayor Taylor Patrick, proclaiming Saturday, October 4, 2025 as Youth Day in Roswell, Georgia. RESULT: PROCLAMATION READ 3. #10071 Roswell Results Update. Recent milestones: - PBS Aerospace cut the ribbon on their new North American headquarters, manufacturing, and R&D center. This is a tremendous win for Roswell, bringing futureready jobs in aerospace, healthcare, AI, and human performance technology. - This Thursday, we'll break ground on the Hardscrabble Road multi-use trail, a bond project that will connect King Road to Highway 92. - Just a couple of weeks ago, we approved the Hill Street Overlay District for a new mixed-use development that will soon be under construction. - And...this past week the rest of the police department staff, with the exception of the E911 operators, is moving into the new bond-funded Public Safety Headquarters on Holcomb Bridge Road! The final phase of this project will be wrapping up by the end of the year, making way for the Fire Department to move in - making it a true hub for public safety in Roswell. For updates on these and many more accomplishments, visit RoswellResults.com.
Attachment: Minutes\M&C\092225 - DRAFT for approval (M&C Minutes (9/22/25 SC, 9/22/25 Reg, 9/29/25 OF, 10/1/25 WS)) Consent Agenda RESULT: CONSENT AGENDA APPROVED [UNANIMOUS] MOVER: Sarah Beeson, Councilmember SECONDER: Christine Hall, Councilmember IN FAVOR: Beeson, Hall, Hills, Johnson, Morthland, Sells 1. #10070 Approval of the September 8, 2025 Special Called Mayor and Council meeting minutes, September 8, 2025 Regular Mayor and Council meeting minutes, and September 15, 2025 Special Called Mayor and Council meeting minutes. 2. #9991 Approval for the Mayor or City Administrator to award a contract with Inliner Solutions, LLC for the Stormwater Lining Package project for \$355,471 and with a project budget authorization of \$391,018. 3. #10000 Approval for the Mayor or City Administrator to sign an Intergovernmental Agreement (IGA) with Fulton County for Water Service and Sewer Billing. Regular Agenda 1. #10043 Approval of an Ordinance to Adopt a Millage Rate of 4.949 for Tax Year 2025. (Second Reading) Ordinance No. 08 Motion to adopt a millage rate of 4.949 for Tax Year 2025 on Second Reading. RESULT: APPROVED ON SECOND READING [UNANIMOUS] MOVER: Allen Sells, Councilmember SECONDER: Christine Hall, Councilmember IN FAVOR: Beeson, Hall, Hills, Johnson, Morthland, Sells 2. #9826 Approval of a Sidewalk Café at 43/45 Park Square Court (20251723). Motion to approve a sidewalk cafe at 43/45 Park Square Court (20251723). RESULT: APPROVED [UNANIMOUS] MOVER: Sarah Beeson, Councilmember SECONDER: David Johnson, Councilmember IN FAVOR: Beeson, Hall, Hills, Johnson, Morthland, Sells
Regular Meeting Monday, September 22, 2025 7:00 PM 3. #10038 Approval of a Resolution to adopt the annual update to the Community Work Program (CWP) and Community Improvement Element (CIE) covering the five year period from 2030. Resolution No. 33 Motion to adopt the annual update to the Community Work Program and Community Improvement Element covering the five-year period from 2023. RESULT: APPROVED [UNANIMOUS] MOVER: Allen Sells, Councilmember SECONDER: G. Lee Hills, Councilmember IN FAVOR: Beeson, Hall, Hills, Johnson, Morthland, Sells City Attorney's Report 4. #10066 Approval of a Resolution authorizing the Roswell Development Authority (RDA) to enter into negotiations on a City owned property located at Bowen Road and Highway 92. Resolution No. 34 Motion to approve a resolution authorizing the Roswell Development Authority to enter into negotiations on a city owned property located at Bowen Road and Highway 92 for the sales price of no less than \$5,000,000.00. RESULT: APPROVED [UNANIMOUS] MOVER: William Morthland, Councilmember SECONDER: David Johnson, Councilmember IN FAVOR: Beeson, Hall, Hills, Johnson, Morthland, Sells 5. #10068 Recommendation for Closure to Discuss Personnel, Litigation and Real Estate. RESULT: NO CLOSURE Adjournment The meeting was adjourned at 8:54 PM
City of Roswell Meeting Minutes Mayor and Council Open Forum Mayor Kurt Wilson Councilmember Sarah Beeson Councilmember Christine Hall Councilmember G. Lee Hills Councilmember David Johnson Councilmember William Morthland Councilmember Allen Sells Monday, September 29, 2025 7:00 PM City Hall - Council Chambers Welcome Mayor Kurt Wilson: Present, Councilmember Sarah Beeson: Present, Councilmember Christine Hall: Present, Councilmember G. Lee Hills: Present, Councilmember David Johnson: Present, Councilmember William Morthland: Present, Councilmember Allen Sells: Present. Invocation/Moment of Silence - Executive Religious Director Imam Abdullah Jaber, Roswell Masjid Pledge of Allegiance - United States Army E-4 Specialist Richard Heneghan Mayor's Report 1. Reading of a Proclamation for the Esteemed Veteran of Roswell Award to United States Army E-4 Specialist Richard Heneghan. This Proclamation honors United States Army E-4 Specialist Richard Heneghan's service to our great community of Roswell, to fellow service members and to our Country. RESULT: PROCLAMATION READ Public Comment - Open Microphone - Brandon Newton - Janet Russell - David Woodrow - Claire Barnes - Emily M. Smith - Rory Robichaux - Roman Pyrzak - Martha Powell - Sally McKenzie - Kelly Callen - Michelle King
Open Forum Monday, September 29, 2025 7:00 PM - Jason Yowell - Ashley Glass - Claire Snedeker - Jacqueline Bass - Courtney Rozear - Jere Wood - Gus Hadorn - Lucia Frazier Adjournment The meeting was adjourned at 10:58 PM
City of Roswell Meeting Minutes Mayor and Council Workshop Mayor Kurt Wilson Councilmember Sarah Beeson Councilmember Christine Hall Councilmember G. Lee Hills Councilmember David Johnson Councilmember William Morthland Councilmember Allen Sells Wednesday, October 1, 2025 8:00 AM – 4:00 PM East Roswell Recreation Center Welcome Mayor Kurt Wilson: Present, Councilmember Sarah Beeson: Present, Councilmember Christine Hall: Present, Councilmember G. Lee Hills: Present, Councilmember David Johnson: Present, Councilmember William Morthland: Present, Councilmember Allen Sells: Present. FY 2026 Budget Workshop Presentation and Discussion
City of Roswell Mayor and Council AGENDA ITEM REPORT ID # - 9623 MEETING DATE: October 14, 2025 DEPARTMENT: Environmental/Public Works ITEM TYPE: Contract Approval for the Mayor or City Administrator to award a contract to Reeves & Young for construction of the E911 Call Center in the amount of \$3,900,000 and budget authorization of \$4,690,000 for this contract. Item Summary: The City of Roswell's (City) E911 is scheduled to be relocated to 11261 Alpharetta Highway, Roswell, Georgia (formerly known as Sharp Shooters USA). The property is approximately 6.34 acres and Foe Killer Creek runs along the north and east sides of the property. On the property, there is one building which contains both existing retail space as well as an active gun range. The building was constructed in 2011 and is approximately 18,304 square feet in total. There are various open air structures on the site, that the City may intend to keep operational during construction and renovation. The City intends to keep the gun range operational during construction and renovation, and no renovations are expected in this area. The City has elected to utilize CM at Risk delivery method for the Project and desires the Construction Manager ("CM") to join other members of the Project team as early in the design process as possible. The intent is to foster a team approach for the design, estimating, permitting and construction phases of the Project. Hussey Gay Bell, the City's architect ("A/E") will provide the programming, design work, and contract administration associated with the Project. The goal is to leverage the knowledge and expertise of all team members to provide the City with the best possible results by delivering the Project on schedule and within budget. After receiving the final concept layout, staff put the project out to bid through the Procurement Pre-Qualified vendor listing as a Request for Invitation to Bid. This solicitation was released to three (3) pre-qualified vendors on December 10, 2024. The proposals were due on January 9, 2025, and the City received two (2) responses. Reeves & Young's proposal was found to be the most responsive and responsible. The proposal was evaluated, and Reeves & Young was interviewed by staff to ensure their capability to perform the services requested. Staff is seeking contract award to Reeves & Young in the total amount not to exceed of \$3,900,000 which includes general requirements, contractors fee, bonds and Reeves & Young's construction costs. Staff recommends allocating \$390,000 in contingency to allow for any unforeseen circumstances encountered during construction. Updated: 10/6/2025 9:39 AM A Page 1
Agenda Item (ID # 9623) Staff also recommends allocating \$400,000 for Construction Administration, Construction Inspection, Construction Materials Testing and Fencing. This budget allocation encompasses contingencies and is aimed at facilitating the successful completion of the project within the established parameters and budget. Committee or Staff Recommendation: On September 23, 2025 the Committees of Council recommended placing this Item on the October 14, 2025 Mayor and Council Agenda. Financial Impact: Total funding in the amount of \$4,690,000 is available from the bond proceeds. Recommended Motion: Motion to approve the Mayor or City Administrator awarding a contract to Reeves & Young for the construction of the E911 Call Center in an amount of \$3,900,000 and project budget authorization of \$4,690,000 Presented by: Brian Watson, P.E., Director of Environmental/Public Works Updated: 10/6/2025 A Page 2
MEETING DATE: January 20, 2025 DEPARTMENT: Environmental/Public Works ITEM TYPE: Contract Authorization, ITB 362 EEOC CMAR The Environmental Public Works is requesting contract approval and budget authorization from the Mayor and Council to proceed with the construction of the City of Roswell EEOC CMAR project. Action Required: Mayor/Council Vote Description: The City of Roswell's (City) E911 and Emergency Operations Center (EOC) is scheduled to be relocated to 11261 Alpharetta Highway, Roswell, Georgia (formerly known as Sharp Shooters USA). The property is approximately 6.34 acres and Foe Killer Creek runs along the north and east sides of the property. On the property, there is one building which contains both existing retail space as well as an active gun range. The building was constructed in 2011 and is approximately 18,304 square feet in total. There are various open air structures on the site, that the City may intend to keep operational during construction and renovation. The City intends to keep the gun range operational during construction and renovation, and no renovations are expected in this area. The City has elected to utilize CM at Risk delivery method for the Project and desires the Construction Manager ("CM") to join other members of the Project team as early in the design process as possible. The intent is to foster a team approach for the design, estimating, permitting and construction phases of the Project. Hussey Gay Bell, the City's architect ("A/E") will provide the programming, design work, and contract administration associated with the Project. The goal is to leverage the knowledge and expertise of all team members to provide the City with the best possible results by delivering the Project on schedule and within budget. Financial Impact: After receiving the final concept layout, staff put the project out to bid through the Procurement Pre-Qualified vendor listing as a Request for Invitation to Bid. This solicitation was released to three (3) prequalified vendors on December 10, 2024. The proposals were due on January 9, 2025, and the City received two (2) responses. Reeves & Young proposal was received and provided a cost that coincides with the City of Roswell's budget. The proposal was evaluated, and Reeves & Young was interviewed by staff to ensure their capability to perform the services requested. Staff is seeking contract award to Reeves & Young in the total amount of \$517,822 (\$338,085 for General Conditions fee, Construction fee of \$3.75% and Bond cost of \$27,200.00. Comments:
This solicitation was released December 10, 2024 and due on January 9, 2025. Notifications were sent to our pre-qualified vendors, we received two (2) responses: - MAPP, LLC - Reeves & Young - Winter Construction - Winter Construction did not respond with a proposal. The phone conversation from Ms. Sarah McCracken on December 11, 2024 and January 9, 2025 stated they would be not be able do to a few larger projects they are working on. BID SCHEDULE ITB City of Roswell EEOC CMAR General conditions fee stated as a lump sum \$338,085.00 Project Construction fee: Please state as a percentage of offeror's construction fee. Construction Fee stated as a percentage of direct costs and general conditions cost: 3.75% Bond Cost: Offeror's payment and performance bond cost as a lump sum (Based upon \$4M construction cost): \$27,200.00
City of Roswell Mayor and Council AGENDA ITEM REPORT ID # - 10100 MEETING DATE: October 14, 2025 DEPARTMENT: Finance ITEM TYPE: Presentation Presentation of FY24 Months Annual Comprehensive Financial Report (ACFR). Item Summary: Presentation of FY24 Months Annual Comprehensive Financial Report (ACFR). Committee or Staff Recommendation: N/A. Financial Impact: N/A Recommended Motion: N/A Presented by: Bill Godshall, Chief Financial Officer Updated: 10/8/2025 3:42 PM Page 1
City of Roswell Mayor and Council AGENDA ITEM REPORT ID # - 10046 MEETING DATE: October 14, 2025 DEPARTMENT: Mayor and Council ITEM TYPE: Budget Presentation of the Mayor's FY 2026 Proposed Budget. Item Summary: Presentation of the Mayor's FY 2026 Proposed Budget. Committee or Staff Recommendation: N/A Financial Impact: N/A Recommended Motion: N/A Presented by: Adam Novotney, Director of Finance Updated: 10/10/2025 1:50 PM Page 1
City of Roswell Mayor and Council AGENDA ITEM REPORT ID # - 10065 MEETING DATE: October 14, 2025 DEPARTMENT: Transportation ITEM TYPE: Policy Approval to advance the Slow Down in Roswell initiative (Traffic Calming Policy). Item Summary: The City of Roswell is committed to fostering safer neighborhoods through the Slow Down in Roswell Program. The primary goal of this initiative is to promote responsible driving behavior among all motorists, thereby enhancing the overall safety and quality of life for residents. To achieve this, the city actively supports traffic calming strategies that are recognized and proven within the transportation industry. The Traffic Calming Program is guided by several core objectives. Among these are reducing the speed of 85% of vehicles to within safe and legal limits and discouraging non-local or through traffic from using residential streets by directing it to more appropriate collector or arterial roads. The program also seeks to limit truck traffic and other unsuitable vehicles from entering local neighborhoods. A presentation was given during the September 23rd Committees of Council meeting that outlined the proposed traffic calming matrix, the program process, and next steps, which also include an extensive communications outreach program. Committee or Staff Recommendation: On September 23, 2025 the Committees of Council recommended placing this Item on the October 14, 2025 Mayor and Council Agenda. Financial Impact: A budget request for 2026 is proposed to perform work related to the Slow Down in Roswell initiative. Recommended Motion: Motion to approve advancing the Slow Down in Roswell initiative (Traffic Calming Policy). Presented by: Greg Nicolas, P.E., Interim Director of Transportation Updated: 10/10/2025 1:51 PM A Page 1
Slow Down in Roswell Neighborhood Traffic Calming Matrix September 23, 2025
Slow Down in Roswell - This initiative is part of the Mayor's Top Priorities for 2025 - Goals - Improve quality of life - Make streets safer, particularly for pedestrians - To slow traffic on local roads under City control - Phased Approach - Phase 1 Neighborhood Traffic Calming Matrix and Pilot Program - Phase 2 Local Road Traffic Calming Matrix - Phase 3 Sidewalk Matrix Evaluation
Neighborhood Traffic Calming Matrix Factor Why It Matters Points Possible Weight of Final Score Speeding Higher speeds = more risk 0 2 (10 mph) 4 (10+ mph) 40% Traffic Volume More cars = more danger 0 2 (ADT > 500) 4 (ADT > 1000) 30% Sidewalks Fewer sidewalks = more risk 0 (one side) 2 (partial side) 4 (none) 20% Amenities Within ½ mile to schools, parks, or shops = more pedestrians 0–3 5% Poverty Rate Prioritizes underserved areas based on poverty rate 0 1 (10% to 20%) 2 (> 20%) 5% Notes: - 1. Speed and traffic data sourced from Streetlight data - 2. ADT = Average Daily Traffic volume
Weighted Overlay Neighborhood Speed Score Volume Score Sidewalk Score Score Score Matrix Score Barrington Farms 4 4 4 2 0 3.7 Brookfield West 4 4 4 2 0 3.7 Willow Springs (Country Club of Roswell) 4 4 4 2 0 3.7 Litchfield Hundred 4 4 4 1 0 3.65 Roswell North (Wavetree Rd) 4 4 2 3 0 3.35 Edenwilde 4 4 2 2 0 3.3 Hilton Hills (Alpine Dr) 4 2 4 3 0 3.15 Horseshoe Bend 2 4 4 3 0 2.95 Liberty Square 4 4 0 2 0 2.9 Wexford 2 4 4 2 0 2.9 Spring Ridge 2 4 4 2 0 2.9 Amenities Poverty
Program Process Step 1: Data Collection & Temporary Installation Evaluation - Data collection along main roads within neighborhood - Evaluate temporary features to be installed and identify locations Examples of data collection devices
Program Process Step 2: Temporary Installation & Data Collection • Temporary features (like speed tables, speed cushions, delineators) are installed and data collected for 30–60 days Examples of temporary features
Program Process Step 3: Evaluation & Permanent Features - If the traffic calming worked, permanent features may be installed based on recommendations from the City Traffic Engineer. - The Director of Transportation may choose to remove the installation at any time for any reason at their discretion. Examples of permanent (asphalt) speed tables
Slow Down in Roswell Next Steps: Traffic Calming Pilot Program - 11 Neighborhoods - \$400,000 (2026 Budget request) Traffic Analyst Position - Assist with data compilation and analysis - \$102,000 (2026 Budget request) Public Outreach Campaign • Communications to lead Traffic Calming Matrix (Phase 2) - Develop matrix based on Local Roads NOT within a subdivision - Data analysis/in-house preparation Neighborhood Sidewalk Matrix (Phase 3) - Evaluate existing sidewalk matrix and consider developing a sidewalk matrix to evaluate roads within subdivisions/neighborhoods - In-house desktop analysis
Slow Down in Roswell Staff Recommendation - Approval of the Neighborhood Traffic Calming Matrix - Consider 2026 Budget requests - Traffic Analyst I position - \$400k Capital request for equipment and materials such as traffic/speed counters, speed feedback signs, speed cushions, delineators, concrete, asphalt
Questions?
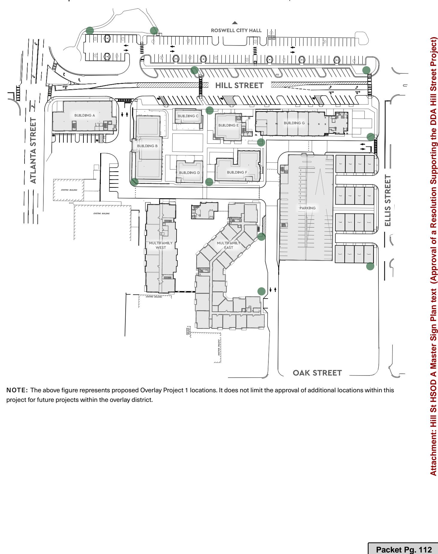
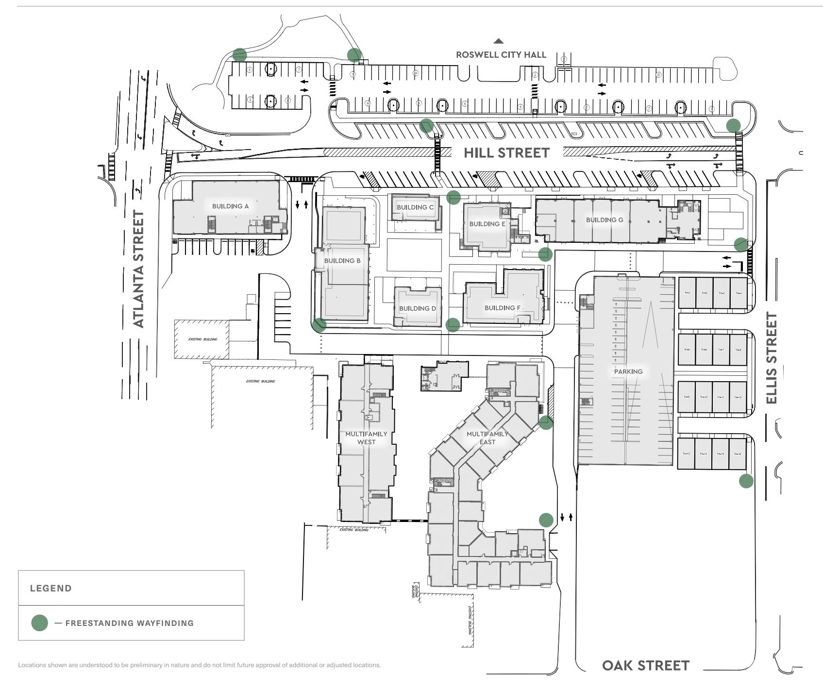
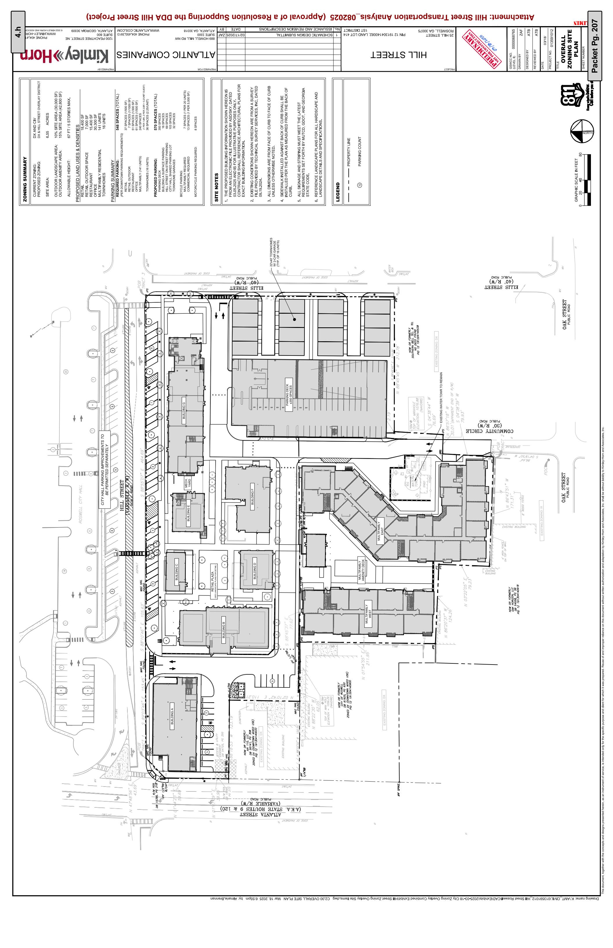
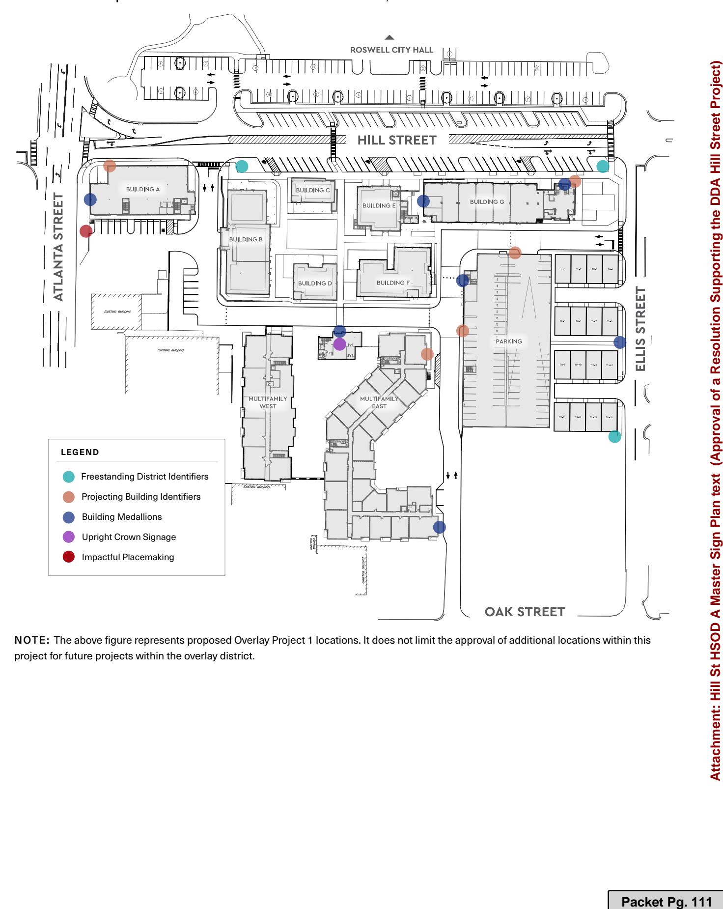
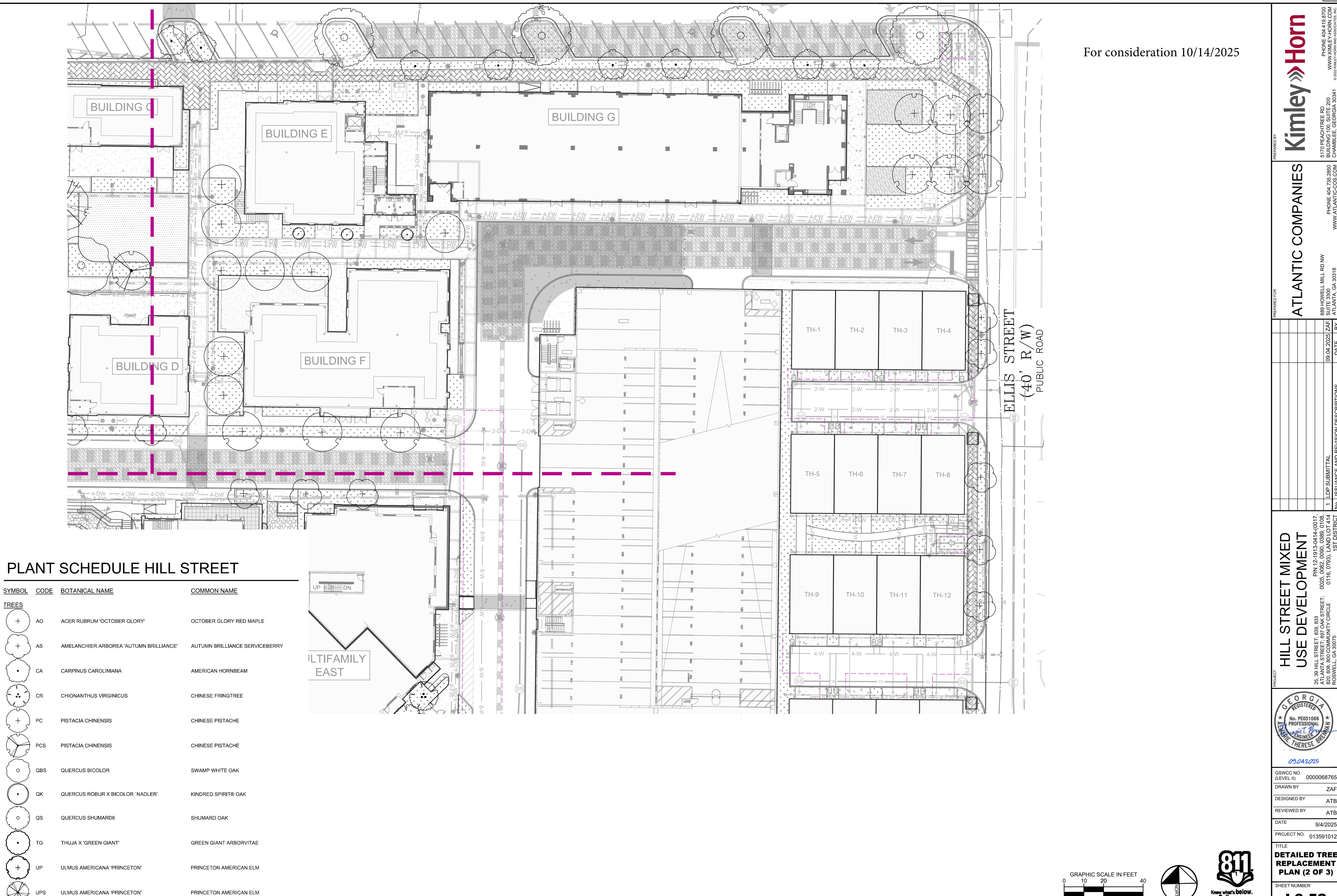
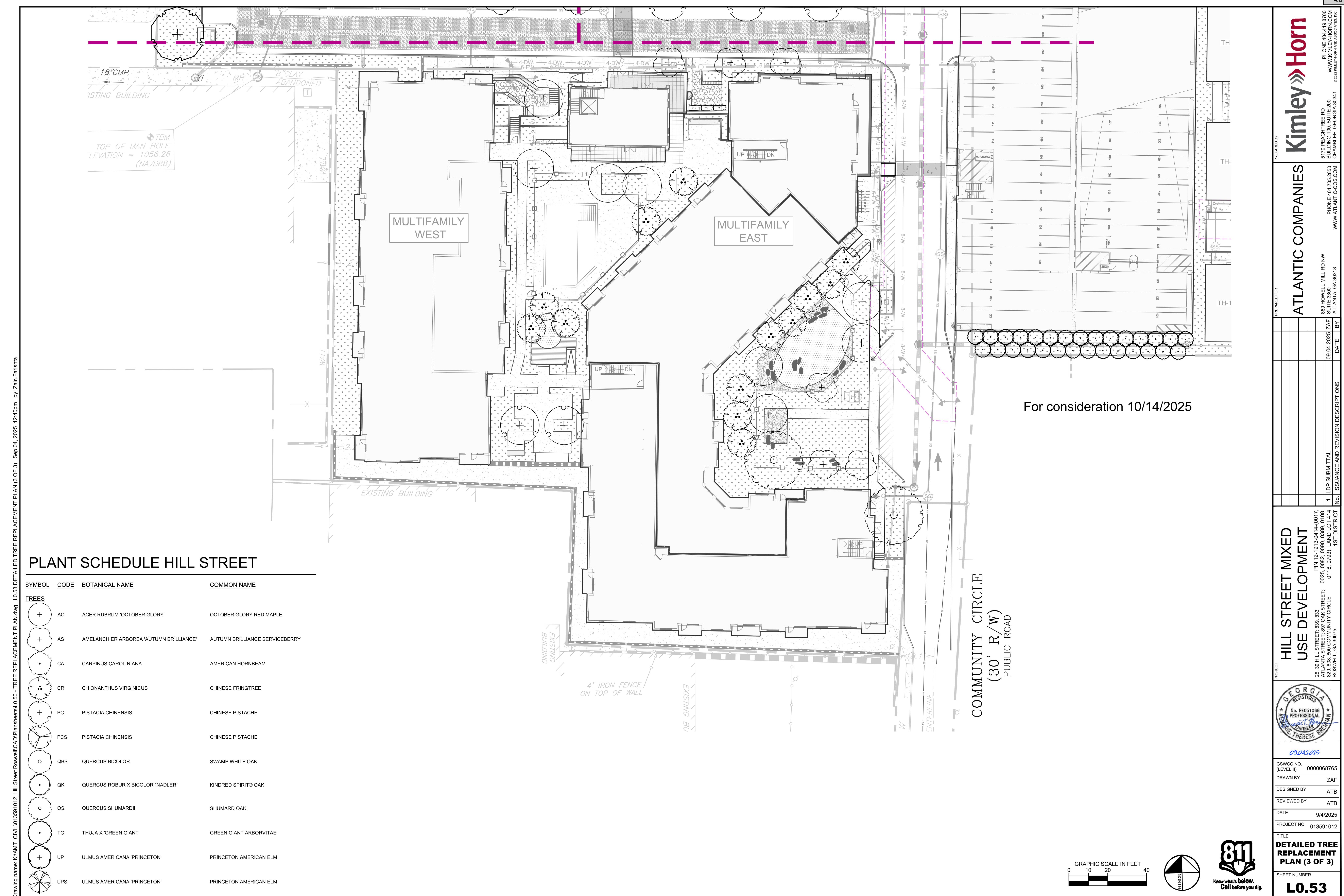
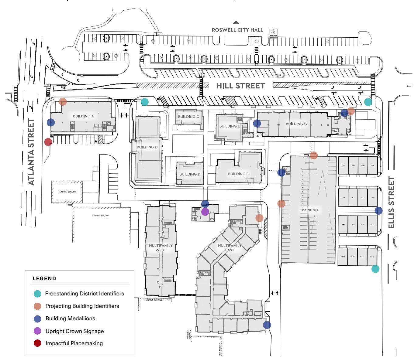
City of Roswell Mayor and Council AGENDA ITEM REPORT ID # - 10114 MEETING DATE: October 14, 2025 DEPARTMENT: Economic Development ITEM TYPE: Approval Approval of a Resolution supporting the Roswell Downtown Development Authority (DDA) Hill Street project and all documents and approvals necessary for the project. Item Summary: Following the relocation of the Police Department to the new Public Safety Headquarters at 1080 Holcomb Bridge Road (Roswell Summit), the City-owned property at 39 Hill Street is now available for redevelopment. The City of Roswell, through its Downtown Development Authority (DDA), is partnering with a private developer to transform the site into a mixed-use district that includes office, retail, restaurant, residential units, and public parking. Project Scope: The revised plan reimagines a previously approved unit high-density residential project into a more balanced, lower-density, mixed-use development across 6.5 acres, and adaptive reuse of the police headquarters consisting of: - 75,000 SF of commercial space (retail, restaurant, and office) - 143 apartments and 16 townhomes - space shared-use parking deck - Public green space Structure: - Land Swap: Equal exchange of 1.3 acres, trading a City-owned interior parcel for a more valuable corner parcel. - Ground Lease: DDA retains land ownership while generating long-term lease revenue. - Public-Private Partnership: Collaboration among the City, DDA, and developer to align public benefits with private investment. - Parking Deck: Funded through DDA-issued revenue bonds, with shared access for public and private users. Financial Highlights: - Estimated annual revenues of over \$1.6 million from lease payments, parking, and property taxes - \$4 million in Townhome parcel sale proceeds - \$400,000 public purpose payment and 1% transaction fee on future sale/refinancing - Estimated 10%+ IRR to the City with a developer option to buyout the project starting in Year 13 Updated: 10/10/2025 1:46 PM Page 1
Agenda Item (ID # 10114) Economic Impact: - 549 construction jobs and 273 permanent jobs created - Projected \$25.3 million increase in tax digest within 1/4 of a mile of the project - \$802,500 in estimated annual sales tax revenue - Catalytic effect expected to drive reinvestment and economic activity in downtown Roswell. Architecture, Design & Signage Approvals: - Mayor and Council approve the architectural and site design elements including location of buildings, landscape plan and architectural elevations, per UDC 8.4.4.C and 8.4.4.A. Hill Street Overlay District "A" (HSOD "A"). Staff review finds compliance with Sec 8.4.5. A-D. - HPC members reviewed the package September 16 and 17 as required by the HSOD. - Mayor and Council approve the Master Sign Plan that regulates signage and locations, per UDC 8.4.5 H. Organized into two components: text with specifications and illustrations. Financial Impact: See attached Economic Impact Analysis Recommended Motion: Motion to approve a Resolution of the Mayor and Council of the City of Roswell supporting the Hill Street Mixed-use Development Project, a Resolution to sign all closing documents, the Master Sign Plan, Building Plantings, Landscape Plan, Building Elevations and Design Package for the Hill Street project. Presented by: Jeffrey Leatherman, Senior Vice President and Deputy City Administrator Updated: 10/10/2025 Page 2
COUNTY OF FULTON October 14, 2025 RESOLUTION AUTHORIZING THE MAYOR WITH THE CITY ATTORNEY TO EXECUTE ALL DOCUMENTS NECESSARY TO CLOSE ON THE HILL STREET MIXED-USE DEVELOPMENT WHEREAS, the City of Roswell, a municipal corporation of the State of Georgia, has determined that it is in the public interest that the City exchange approximate 1.3 acres of City owned land for approximately 1.3 acres of land located at the corner of Hill Street and Highway 9 in Roswell, Georgia according to the Land Exchange Agreement already agreed to; and WHEREAS, O.C.G.A. Section 6 provides the authority exchange properties provided the property being received in the exchange is worth an amount equal to or greater than the City property being exchanged; and WHEREAS, the Land Exchange Agreement for the Hill Street Mixed-Use Development Project provided for the drafting of documents to cause a closing of the transaction; and WHEREAS, the aforementioned documents have been substantially agreed to by the parties and stand ready for execution by all parties to the transaction; and WHEREAS, the appraisals have determined that the property being received by the City is worth ar amount greater than the City property being exchanged; and WHEREAS, the Mayor and Council have considered this matter and determined that it is in the best interest of the City to exchange said properties, and subsequently enter into the agreements to cause a closing of the Hill Street Mixed-Use Development transaction; NOW, THEREFORE, the Mayor and Council do hereby adopt a Resolution as follows: 1. The Mayor with the City Attorney is authorized, on behalf of the City of Roswell, Georgia, to close on the Land Exchange Agreement and necessary documents to cause the closing of the Hill Street Mixed-Use Development transaction in substantial conformance to the current form of the documents. The above Resolution was read and approved by the Mayor and Council of the City of Roswell, Georgia on the 14th day of October, 2025. Attest: Kurt M. Wilson, Mayor Nancy Long, City Clerk (Seal)
STATE OF GEORGIA October 14, 2025 FULTON COUNTY A RESOLUTION OF THE MAYOR AND COUNCIL OF THE CITY OF ROSWELL SUPPORTING THE HILL STREET MIXED-USE DEVELOPMENT PROJECT WHEREAS, the Mayor and Council of the City of Roswell have authorized the closing of the Hill Street Mixed-Use Development Project; and WHEREAS, the Mayor and Council of the City of Roswell believe the Hill Street Mixed-Use Development Project will provide a catalytic redevelopment opportunity for a blighted area in the City of Roswell; and WHEREAS, the City of Roswell is vested with redevelopment powers as contemplated in the City of Roswell Charter; and WHEREAS, the City of Roswell has worked to attract dynamic redevelopment to areas of the City of Roswell in dire need of redevelopment; and WHEREAS, the City of Roswell believes the Hill Street-Mixed Use Development will benefit its citizens quality of life while also unlocking sources of revenue to relieve the tax burden on its citizens; and WHEREAS, the Downtown Development Authority of the City of Roswell and the City of Roswell have worked in a mutually beneficial manner under a Scope of Work to cause this project to close; and WHEREAS, the City of Roswell commends Atlantic Companies for their dedication and resilience in working to make this project an example of private-public partnership; and WHEREAS, the aforementioned documents to close the transaction have been agreed upon in principal and are ready to be executed by all the parties in the transaction; and NOW, THEREFORE, BE IT RESOLVED, by the Mayor and Council of the City of Roswell, Georgia that the City of Roswell, Georgia hereby supports the Hill Street Mixed-Use Development Project and commends all the parties to the transaction for providing for catalytic redevelopment within the jurisdictional limits of the City of Roswell. The mayor is authorized to sign all necessary documents confirming this support. The above Resolution was read and approved by the City of Roswell October, 2025. on the day of Attest: Kurt M. Wilson, Mayor Nancy Saviano Long, City Clerk (Seal)
HILLROSE DEVELOPMENT - PARKING DECK PARKING DECK
ZONING REVIEW - MATERIAL SCHEDULE MARK DESCRIPTION MODEL MANUFACTURER COLOR/FINISH COMMENTS MATERIAL CONTACT AF-1 2"X4 1/2" ALUMINUM FRAME CB-1 2"x8"x9' ALUMINUM SKINNED CLEARANCE BAR MOUNTED ON HINGED TUBE STEEL SUPPORTS COLOR: T.B.D. CM-1 8" CONCRETE MASONRY UNIT UL ASSEMBLY U906 (HOUR RATING) GL-2 1" INSULATED VISION GLASS VITRO ARCHITECTURAL GLASS SOLARBAN 70 PC-1 10" THICK PRECAST PANEL W/ THIN BRICK PC-3 PRECAST CONCRETE W/ SANDBLASTED FINISH COLOR: T.B.D. PC-4 12" CONCRETE PRECAST SHEAR PANEL SF-2 2" x 4 1/2" STOREFRONT SYSTEM BVB ARCHITECTURAL MUNTINS TO BE APPLIED TO STOREFRONT GLASS WHER SHOWN ON ELEVATIONS EAST ELEVATION ASD SKY
ZONING REVIEW - MATERIAL SCHEDULE MARK DESCRIPTION MODEL MANUFACTURER COLOR/FINISH COMMENTS MATERIAL CONTACT AF-1 2"X4 1/2" ALUMINUM FRAME CB-1 2"x8"x9' ALUMINUM SKINNED CLEARANCE BAR MOUNTED ON HINGED TUBE STEEL SUPPORTS COLOR: T.B.D. CM-1 8" CONCRETE MASONRY UNIT UL ASSEMBLY U906 (HOUR RATING) GL-2 1" INSULATED VISION GLASS VITRO ARCHITECTURAL GLASS SOLARBAN 70 PC-1 10" THICK PRECAST PANEL W/ THIN BRICK PC-3 PRECAST CONCRETE W/ SANDBLASTED FINISH COLOR: T.B.D. PC-4 12" CONCRETE PRECAST SHEAR PANEL SF-2 2" x 4 1/2" STOREFRONT SYSTEM BVB ARCHITECTURAL MUNTINS TO BE APPLIED TO STOREFRONT GLASS WHER SHOWN ON ELEVATIONS WEST ELEVATION ASD SKY 10/14/25 1" = 20'-0"
ZONING REVIEW - MATERIAL SCHEDULE MARK DESCRIPTION MODEL MANUFACTURER COLOR/FINISH COMMENTS MATERIAL CONTACT AF-1 2"X4 1/2" ALUMINUM FRAME CB-1 2"x8"x9' ALUMINUM SKINNED CLEARANCE BAR MOUNTED ON HINGED TUBE STEEL SUPPORTS COLOR: T.B.D. CM-1 8" CONCRETE MASONRY UNIT UL ASSEMBLY U906 (HOUR RATING) GL-2 1" INSULATED VISION GLASS VITRO ARCHITECTURAL GLASS SOLARBAN 70 PC-1 10" THICK PRECAST PANEL W/ THIN BRICK PC-3 PRECAST CONCRETE W/ SANDBLASTED FINISH COLOR: T.B.D. PC-4 12" CONCRETE PRECAST SHEAR PANEL SF-2 2" x 4 1/2" STOREFRONT SYSTEM BVB ARCHITECTURAL MUNTINS TO BE APPLIED TO STOREFRONT GLASS WHER SHOWN ON ELEVATIONS NORTH ELEVATION ASD SKY 10/14/25
ZONING REVIEW - MATERIAL SCHEDULE MARK DESCRIPTION MODEL MANUFACTURER COLOR/FINISH COMMENTS MATERIAL CONTACT AF-1 2"X4 1/2" ALUMINUM FRAME CB-1 2"x8"x9' ALUMINUM SKINNED CLEARANCE BAR MOUNTED ON HINGED TUBE STEEL SUPPORTS COLOR: T.B.D. CM-1 8" CONCRETE MASONRY UNIT UL ASSEMBLY U906 (HOUR RATING) GL-2 1" INSULATED VISION GLASS VITRO ARCHITECTURAL GLASS SOLARBAN 70 PC-1 10" THICK PRECAST PANEL W/ THIN BRICK PC-3 PRECAST CONCRETE W/ SANDBLASTED FINISH COLOR: T.B.D. PC-4 12" CONCRETE PRECAST SHEAR PANEL SF-2 2" x 4 1/2" STOREFRONT SYSTEM BVB ARCHITECTURAL MUNTINS TO BE APPLIED TO STOREFRONT GLASS WHER SHOWN ON ELEVATIONS SOUTH ELEVATION ASD SKY 10/14/25 1" = 20'-0"
CURRENT TRANSPARENCY REQUIREMENTS: 40% Aged Bronze TRANPARENCY PROVIDED: 41% (COMPLIANT) TRANSPARENT AREA: 496 SF OPAQUE AREA: 694 SF ZONING REVIEW MATERIAL SCHEDULE BR-1 FACE BRICK ST-1 STONE VENEER Manufacturer General Shale Manufacturer Horizon Stone Color Avondale Product 19th Century Stone Size Queen Color Hermitage FC-1 FIBER CEMENT SIDING Mortar Southern Heritage Ivory JamesHardie Nichiha SC-1 PRECAST STONE COPING Manufacturer Product Hardie Panel Latura Manufacturer TBD Color Sherwin Williams SW7048 Urbane Bronze Product TBD MT-1 PREFINISHED METAL GUTTER & DOWNSPOUT SF-1 ALUMINUM STOREFRONT SYSTEM Color Match Storefront System Manufacturer Product Color Oldcastle BuildingEnvelope OBE Series 3000 Thermal Multiplane Anodized Dark Bronze SR-1 STANDING SEAM METAL ROOF Manufacturer PAC-CLAD Product Snap-Clad
CURRENT TRANSPARENCY REQUIREMENTS: NOT APPLICABLE (NOT STREET FACING) TRANPARENCY PROVIDED: 8% (COMPLIANT) TRANSPARENT AREA: 60 SF OPAQUE AREA: 708 SF Aged Bronze ZONING REVIEW MATERIAL SCHEDULE General Shale Manufacturer Horizon Stone Avondale Product 19th Century Stone Hermitage Southern Heritage Ivory JamesHardie Nichiha PRECAST STONE COPING TBD Product TBD PREFINISHED METAL GUTTER & DOWNSPOUT SF-1 ALUMINUM STOREFRONT SYSTEM Match Storefront System Manufacturer Product Color Oldcastle BuildingEnvelope OBE Series 3000 Thermal Multiplane Anodized Dark Bronze STANDING SEAM METAL ROOF PAC-CLAD Queen FIBER CEMENT SIDING Latura Hardie Panel Sherwin Williams SW7048 Urbane Bronze Snap-Clad Color Mortar SC-1 Manufacturer
Aged Bronze CURRENT TRANSPARENCY REQUIREMENTS: NOT APPLICABLE (NOT STREET FACING) TRANPARENCY PROVIDED: 12% (COMPLIANT) TRANSPARENT AREA: 80 SF OPAQUE AREA: 612 SF ZONING REVIEW MATERIAL SCHEDULE BR-1 FACE BRICK ST-1 STONE VENEER Manufacturer General Shale Manufacturer Horizon Stone Color Avondale Product 19th Century Stone Size Queen Color Hermitage FC-1 FIBER CEMENT SIDING Mortar Southern Heritage Ivory JamesHardie Nichiha SC-1 PRECAST STONE COPING Manufacturer Product Hardie Panel Latura Manufacturer TBD Color Sherwin Williams SW7048 Urbane Bronze Product TBD MT-1 PREFINISHED METAL GUTTER & DOWNSPOUT SF-1 ALUMINUM STOREFRONT SYSTEM Color Match Storefront System Manufacturer Product Color Oldcastle BuildingEnvelope OBE Series 3000 Thermal Multiplane Anodized Dark Bronze SR-1 STANDING SEAM METAL ROOF Manufacturer PAC-CLAD Product Snap-Clad
CURRENT TRANSPARENCY REQUIREMENTS: 40% Aged Bronze TRANPARENCY PROVIDED: 52% (COMPLIANT) TRANSPARENT AREA: 262 SF OPAQUE AREA: 235 SF ZONING REVIEW MATERIAL SCHEDULE BR-1 FACE BRICK ST-1 STONE VENEER Manufacturer General Shale Manufacturer Horizon Stone Color Avondale Product 19th Century Stone Size Queen Color Hermitage FC-1 FIBER CEMENT SIDING Mortar Southern Heritage Ivory Manufacturer JamesHardie Nichiha SC-1 PRECAST STONE COPING Product Hardie Panel Latura Manufacturer TBD Color Sherwin Williams SW7048 Urbane Bronze Product TBD MT-1 PREFINISHED METAL GUTTER & DOWNSPOUT SF-1 ALUMINUM STOREFRONT SYSTEM Color Match Storefront System Manufacturer Product Color Oldcastle BuildingEnvelope OBE Series 3000 Thermal Multiplane Anodized Dark Bronze SR-1 STANDING SEAM METAL ROOF Manufacturer PAC-CLAD Product Snap-Clad
HILLROSE DEVELOPMENT - BUILDING A REFERENCE RENDERING - HWY 9 AND HILL STREET INTERSECTION
1473 SF CALCULATED AREA 2063 SF CALCULATED AREA = 50% TRANSPARENCY (COMPLIANT) = 35% TRANSPARENCY (COMPLIANT) ZONING REVIEW - MATERIAL SCHEDULE MARK DESCRIPTION COMMENTS MANUFACTURER MODEL ACM-1 CURTAINWALL/STOREFRONT INFILL PANEL; COLOR TO MATCH ADJACENT FRAME MAPES MAPES R+ RABBET EDGE INFILL PANEL BR-1 MODULAR BRICK, RUNNING BOND; B.O.D. NORTH GEORGIA BRICK, MAGNOLIA BAY, COOSA FROST MORTAR COLOR COLUMBUS BRICK MODULAR COLOR 2 BR-2 MODULAR BRICK, SOLDIER COURSE, B.O.D. NORTH GEORGIA BRICK, MAGNOLIA BAY, COOSA FROST MORTAT COLUMBUS BRICK CW-1 CURTAIN WALL SYSTEM. 2 1/2" X 6" OBE RELIANCE THERMAL FRONT SET 1" INFILL SYSTEM WITH TAPE-ON BAM GRID OLDCASTLE BUILDING PRODUCTS RELIANCE THERMAL, FRONT SET MC-1 METAL COPING SYSTEM W/ SPRING CLIP & CLEAT RS-1 ROOF MECHANICAL SCREEN, STANDING SEAM BATTEN PANEL, B.O.D. BERRIDGE BATTEN SEAM PANEL, COLOR TO MATCH SW IRON ORE BERRIDGE SF-1 STOREFRONT SYSTEM. B.O.D. 2" X 4 1/2" OBE SERIES 3000 THERMAL MULTIPLANE CENTER SET STOREFRONT SYSTEM WITH TAPE-ON BAM GRID OLDCASTLE BUILDING PRODUCTS SERIES 3000 THERMAL MULTIPLANE, CENTER SET HILLROSE DEVELOPMENT - BUILDING A SIDE STREET GROUND FLOOR/UPPER FLOOR: 20% NORTH ELEVATION - PRIMARY STREET 10.14.2025
ZONING REVIEW - MATERIAL SCHEDULE MARK DESCRIPTION COMMENTS MANUFACTURER MODEL ACM-1 CURTAINWALL/STOREFRONT INFILL PANEL; COLOR TO MATCH ADJACENT FRAME MAPES MAPES R+ RABBET EDGE INFILL PANEL BR-1 MODULAR BRICK, RUNNING BOND; B.O.D. NORTH GEORGIA BRICK, MAGNOLIA BAY, COOSA FROST MORTAR COLOR COLUMBUS BRICK MODULAR COLOR 2 BR-2 MODULAR BRICK, SOLDIER COURSE, B.O.D. NORTH GEORGIA BRICK, MAGNOLIA BAY, COOSA FROST MORTAT COLUMBUS BRICK CW-1 CURTAIN WALL SYSTEM. 2 1/2" X 6" OBE RELIANCE THERMAL FRONT SET 1" INFILL SYSTEM WITH TAPE-ON BAM GRID OLDCASTLE BUILDING PRODUCTS RELIANCE THERMAL, FRONT SET MC-1 METAL COPING SYSTEM W/ SPRING CLIP & CLEAT RS-1 ROOF MECHANICAL SCREEN, STANDING SEAM BATTEN PANEL, B.O.D. BERRIDGE BATTEN SEAM PANEL, COLOR TO MATCH SW IRON ORE BERRIDGE SF-1 STOREFRONT SYSTEM. B.O.D. 2" X 4 1/2" OBE SERIES 3000 THERMAL MULTIPLANE CENTER SET STOREFRONT SYSTEM WITH TAPE-ON BAM GRID OLDCASTLE BUILDING PRODUCTS SERIES 3000 THERMAL MULTIPLANE, CENTER SET HILLROSE DEVELOPMENT - BUILDING A WEST ELEVATION - SIDE STREET 10.14.2025
3/32" = 1'-0" 1 BUILDING A - SOUTH ELEVATION ZONING REVIEW - MATERIAL SCHEDULE MARK DESCRIPTION COMMENTS MANUFACTURER MODEL ACM-1 CURTAINWALL/STOREFRONT INFILL PANEL; COLOR TO MATCH ADJACENT FRAME MAPES MAPES R+ RABBET EDGE INFILL PANEL BR-1 MODULAR BRICK, RUNNING BOND; B.O.D. NORTH GEORGIA BRICK, MAGNOLIA BAY, COOSA FROST MORTAR COLOR COLUMBUS BRICK MODULAR COLOR 2 BR-2 MODULAR BRICK, SOLDIER COURSE, B.O.D. NORTH GEORGIA BRICK, MAGNOLIA BAY, COOSA FROST MORTAT COLUMBUS BRICK CW-1 CURTAIN WALL SYSTEM. 2 1/2" X 6" OBE RELIANCE THERMAL FRONT SET 1" INFILL SYSTEM WITH TAPE-ON BAM GRID OLDCASTLE BUILDING PRODUCTS RELIANCE THERMAL, FRONT SET MC-1 METAL COPING SYSTEM W/ SPRING CLIP & CLEAT RS-1 ROOF MECHANICAL SCREEN, STANDING SEAM BATTEN PANEL, B.O.D. BERRIDGE BATTEN SEAM PANEL, COLOR TO MATCH SW IRON ORE BERRIDGE SF-1 STOREFRONT SYSTEM. B.O.D. 2" X 4 1/2" OBE SERIES 3000 THERMAL MULTIPLANE CENTER SET STOREFRONT SYSTEM WITH TAPE-ON BAM GRID OLDCASTLE BUILDING PRODUCTS SERIES 3000 THERMAL MULTIPLANE, CENTER SET HILLROSE DEVELOPMENT - BUILDING A SOUTH ELEVATION 10.14.2025
ZONING REVIEW - MATERIAL SCHEDULE MARK DESCRIPTION COMMENTS MANUFACTURER MODEL ACM-1 CURTAINWALL/STOREFRONT INFILL PANEL; COLOR TO MATCH ADJACENT FRAME MAPES MAPES R+ RABBET EDGE INFILL PANEL BR-1 MODULAR BRICK, RUNNING BOND; B.O.D. NORTH GEORGIA BRICK, MAGNOLIA BAY, COOSA FROST MORTAR COLOR COLUMBUS BRICK MODULAR COLOR 2 BR-2 MODULAR BRICK, SOLDIER COURSE, B.O.D. NORTH GEORGIA BRICK, MAGNOLIA BAY, COOSA FROST MORTAT COLUMBUS BRICK CW-1 CURTAIN WALL SYSTEM. 2 1/2" X 6" OBE RELIANCE THERMAL FRONT SET 1" INFILL SYSTEM WITH TAPE-ON BAM GRID OLDCASTLE BUILDING PRODUCTS RELIANCE THERMAL, FRONT SET MC-1 METAL COPING SYSTEM W/ SPRING CLIP & CLEAT RS-1 ROOF MECHANICAL SCREEN, STANDING SEAM BATTEN PANEL, B.O.D. BERRIDGE BATTEN SEAM PANEL, COLOR TO MATCH SW IRON ORE BERRIDGE SF-1 STOREFRONT SYSTEM. B.O.D. 2" X 4 1/2" OBE SERIES 3000 THERMAL MULTIPLANE CENTER SET STOREFRONT SYSTEM WITH TAPE-ON BAM GRID OLDCASTLE BUILDING PRODUCTS SERIES 3000 THERMAL MULTIPLANE, CENTER SET HILLROSE DEVELOPMENT - BUILDING A EAST ELEVATION ASD SKY
HILLROSE DEVELOPMENT - BUILDING A BUILDING CROSS SECTION - EQUIPMENT SCREENING ASD SKY
HILL STREET RETAIL DISTRICT - BUILDING B BLDG B - REFERENCE RENDERING - VIEW FROM HILL STREET ASD I SKY
HILL STREET RETAIL DISTRICT - BUILDING B BLDG B - REFERENCE RENDERING - VIEW FROM GREENSPACE
4.c MECH. SCREEN CC-1 EF-1 BR-1 MC-1 GL-1 SF-1 BR-1 BEYOND T.O. MECH SCREEN 1094' - 8" 0 TOP OF PARAPET 1089' - 8" TOP OF STRUCTURE 1087' - 0" PC-1 0 GR-1 0 15 12 7' - 6" LEVEL 01B 1072' - 0" 8" 8" 5' - 0" 10' - 0" 5' - 0" 17' - 0" 17' - 0" CO-1 5' - 11" 55' - 4" 9' - 4" LEVEL 00B 1065' - 4" 70' - 7" ZONING REVIEW - MATERIAL SCHEDULE PC-1 8 5' - 0" 10' - 0" 55' - 4" 5'-0" 17'-0" GR-1 9' - 4" CO-1 LEVEL 01B 1072' - 0" LEVEL 00B 1065' - 4" CURREN PRIMARY 452 SF GLAZING SYSTEM 707 SF TOTAL CALCULATED AREA 707 SF TOTAL CALCULATED AREA =64% TRANSPARENCY (COMPLIANT) CANOPY COLUMNS HIDDEN FROM VIEW REVIEW - MATERIAL SCHEDULE V AND OMITTED FROM CALCU LATIONS 7 ONING MATERIAL MARK DESCRIPTION MODEL MANUFACTURER COLOR/FINISH COMMENTS CONTACT MARK DESCRIPTION MODEL MANUFACTURER COLOR/FINISH I COMMENTS CONTACT MODEL MANUFACTURER COLOR/FINISH T COMMENTS CONTACT ACM-1 ACM PANEL SYSTEM; COLOR: T.B.D. MODULAR BRICK; B.O.D. HENRY BRICK AVONDALE, COOSA FROST MORTAR, REFERELEVATIONS AND DETAILS FOR COURSING MANUFACTURER HENRY BRICK COLOR/FINISH COMMENTS COOSA FROST MORTAR CONTACT ACM-1 BR-1 CC-1 ACM PANEL SYSTEM; COLOR: T.B.D. MODULAR BRICK; B.O.D. HENRY BRICK AVONDALE, COOSA FROST MORTAR, REFERELEVATIONS AND DETAILS FOR COURSING CLAY TILE COPING, B.O.D. SUPERIOR CLAY CAMELBACK; R TO AVONDALE CAMELBACK WALL COPING, C;13" COLOR/FINISH CONTACT ACM-1 BR-1 CC-1 ACM PANEL SYSTEM; COLOR: T.B.D. MODULAR BRICK; B.O.D. HENRY BRICK AVONDALE, COOSA FROST MORTAR, REFERELEVATIONS AND DETAILS FOR COURSING CLAY TILE COPING, B.O.D. SUPERIOR CLAY CAMELBACK; CAST IN PLACE CONCRETE RETAINING WALL, REFER TO CIVIL, REFER TO STRUCT R TO AVONDALE CAMELBACK WALL COPING, C;13" HENRY BRICK CONTACT ACM-1 BR-1 CC-1 CO-1 EF-1 ACM PANEL SYSTEM; COLOR: T.B.D. MODULAR BRICK; B.O.D. HENRY BRICK AVONDALE, COOSA FROST MORTAR, REFERELEVATIONS AND DETAILS FOR COURSING CLAY TILE COPING, B.O.D. SUPERIOR CLAY CAMELBACK; CAST IN PLACE CONCRETE RETAINING WALL, REFER TO CIVIL, REFER TO STRUCTE EXTERIOR FINISH SYSTEM; COLOR: T.B.D. R TO AVONDALE CAMELBACK WALL COPING, C;13" HENRY BRICK CONTACT ACM-1 BR-1 CC-1 CO-1 EF-1 GL-1 ACM PANEL SYSTEM; COLOR: T.B.D. MODULAR BRICK; B.O.D. HENRY BRICK AVONDALE, COOSA FROST MORTAR, REFERELEVATIONS AND DETAILS FOR COURSING CLAY TILE COPING, B.O.D. SUPERIOR CLAY CAMELBACK; CAST IN PLACE CONCRETE RETAINING WALL, REFER TO CIVIL, REFER TO STRUCTION EXTERIOR FINISH SYSTEM; COLOR: T.B.D. 1" INSULATED GLASS; SOLARBAN 70 R TO AVONDALE CAMELBACK WALL COPING, C;13" HENRY BRICK CONTACT ACM-1 BR-1 CC-1 CO-1 EF-1 GL-1 MC-1 ACM PANEL SYSTEM; COLOR: T.B.D. MODULAR BRICK; B.O.D. HENRY BRICK AVONDALE, COOSA FROST MORTAR, REFERELEVATIONS AND DETAILS FOR COURSING CLAY TILE COPING, B.O.D. SUPERIOR CLAY CAMELBACK; CAST IN PLACE CONCRETE RETAINING WALL, REFER TO CIVIL, REFER TO STRUCTUREXTERIOR FINISH SYSTEM; COLOR: T.B.D. 1" INSULATED GLASS; SOLARBAN 70 METAL COPING SYSTEM W/ SPRING CLIP & CLEAT; COLOR: T.B.D. R TO AVONDALE CAMELBACK WALL COPING, C;13" HENRY BRICK CONTACT ACM-1 BR-1 CC-1 CO-1 EF-1 GL-1 MC-1 PC-1 ACM PANEL SYSTEM; COLOR: T.B.D. MODULAR BRICK; B.O.D. HENRY BRICK AVONDALE, COOSA FROST MORTAR, REFERELEVATIONS AND DETAILS FOR COURSING CLAY TILE COPING, B.O.D. SUPERIOR CLAY CAMELBACK; CAST IN PLACE CONCRETE RETAINING WALL, REFER TO CIVIL, REFER TO STRUCTION EXTERIOR FINISH SYSTEM; COLOR: T.B.D. 1" INSULATED GLASS; SOLARBAN 70 R TO AVONDALE CAMELBACK WALL COPING, C;13" HENRY BRICK CONTACT ACM-1 BR-1 CC-1 CO-1 EF-1 GL-1 MC-1 PC-1 SC-1 ACM PANEL SYSTEM; COLOR: T.B.D. MODULAR BRICK; B.O.D. HENRY BRICK AVONDALE, COOSA FROST MORTAR, REFERELEVATIONS AND DETAILS FOR COURSING CLAY TILE COPING, B.O.D. SUPERIOR CLAY CAMELBACK; CAST IN PLACE CONCRETE RETAINING WALL, REFER TO CIVIL, REFER TO STRUCTUREXTERIOR FINISH SYSTEM; COLOR: T.B.D. 1" INSULATED GLASS; SOLARBAN 70 METAL COPING SYSTEM W/ SPRING CLIP & CLEAT; COLOR: T.B.D. PRECAST CONCRETE COPING R TO AVONDALE CAMELBACK WALL COPING, C;13" HENRY BRICK CONTACT ACM-1 BR-1 CC-1 CO-1 EF-1 GL-1 MC-1 PC-1 SC-1 SE-1 ACM PANEL SYSTEM; COLOR: T.B.D. MODULAR BRICK; B.O.D. HENRY BRICK AVONDALE, COOSA FROST MORTAR, REFERENCY TIONS AND DETAILS FOR COURSING CLAY TILE COPING, B.O.D. SUPERIOR CLAY CAMELBACK; CAST IN PLACE CONCRETE RETAINING WALL, REFER TO CIVIL, REFER TO STRUCTE EXTERIOR FINISH SYSTEM; COLOR: T.B.D. 1" INSULATED GLASS; SOLARBAN 70 METAL COPING SYSTEM W/ SPRING CLIP & CLEAT; COLOR: T.B.D. PRECAST CONCRETE COPING MEDIUM STYLE STOREFRONT ENTRY DOOR R TO AVONDALE CAMELBACK WALL COPING, C;13" HENRY BRICK CONTACT BR-1 CC-1 CO-1 EF-1 GL-1 MC-1 PC-1 SC-1 SE-1 SF-1 ACM PANEL SYSTEM; COLOR: T.B.D. MODULAR BRICK; B.O.D. HENRY BRICK AVONDALE, COOSA FROST MORTAR, REFERELEVATIONS AND DETAILS FOR COURSING CLAY TILE COPING, B.O.D. SUPERIOR CLAY CAMELBACK; CAST IN PLACE CONCRETE RETAINING WALL, REFER TO CIVIL, REFER TO STRUCTUREXTERIOR FINISH SYSTEM; COLOR: T.B.D. 1" INSULATED GLASS; SOLARBAN 70 METAL COPING SYSTEM W/ SPRING CLIP & CLEAT; COLOR: T.B.D. PRECAST CONCRETE COPING R TO AVONDALE CAMELBACK WALL COPING, C;13" HENRY BRICK CONTACT ACM-1 BR-1 CC-1 CO-1 EF-1 GL-1 MC-1 PC-1 SC-1 SE-1 SF-1 ACM PANEL SYSTEM; COLOR: T.B.D. MODULAR BRICK; B.O.D. HENRY BRICK AVONDALE, COOSA FROST MORTAR, REFERELEVATIONS AND DETAILS FOR COURSING CLAY TILE COPING, B.O.D. SUPERIOR CLAY CAMELBACK; CAST IN PLACE CONCRETE RETAINING WALL, REFER TO CIVIL, REFER TO STRUCTE EXTERIOR FINISH SYSTEM; COLOR: T.B.D. 1" INSULATED GLASS; SOLARBAN 70 METAL COPING SYSTEM W/ SPRING CLIP & CLEAT; COLOR: T.B.D. PRECAST CONCRETE COPING MEDIUM STYLE STOREFRONT ENTRY DOOR STOREFRONT SYSTEM W/ INTERMEDAITE MUNTIN BARS R TO AVONDALE CAMELBACK WALL COPING, C;13" HENRY BRICK CONTACT HILL STREET RETAIL DISTRICT - BUILDING B NORTH ELEVATION - PRIMARY FRONTAGE** ASD SKY
ZONING REVIEW - MATERIAL SCHEDULE MATERIAL MARK DESCRIPTION MODEL MANUFACTURER COLOR/FINISH COMMENTS CONTACT T ACM-1 ACM PANEL SYSTEM; COLOR: T.B.D. BR-1 MODULAR BRICK; B.O.D. HENRY BRICK AVONDALE, COOSA FROST MORTAR, REFER TO ELEVATIONS AND DETAILS FOR COURSING AVONDALE HENRY BRICK COOSA FROST MORTAR - CC-1 CLAY TILE COPING, B.O.D. SUPERIOR CLAY CAMELBACK; CAMELBACK WALL COPING, C;13" SUPERIOR CLAY CHARCOAL GLAZE CO-1 CAST IN PLACE CONCRETE RETAINING WALL, REFER TO CIVIL, REFER TO STRUCTURE EF-1 EXTERIOR FINISH SYSTEM; COLOR: T.B.D. GL-1 1" INSULATED GLASS; SOLARBAN 70 MC-1 METAL COPING SYSTEM W/ SPRING CLIP & CLEAT; COLOR: T.B.D. PC-1 PRECAST CONCRETE COPING ç SC-1 SE-1 MEDIUM STYLE STOREFRONT ENTRY DOOR SF-1 STOREFRONT SYSTEM W/ INTERMEDAITE MUNTIN BARS WD-1 6" WOOD BOARDS PAINT ' ' PT-1 PAINT PPG PPG7 BLACK MAGIC ZINC RICH PRIMER & SEMI-GLOSS FINISH FOR FERROUS ELEMENTS., TYP. HILL STREET RETAIL DISTRICT - BUILDING B EAST ELEVATION - SIDE STREET FRONTAGE ASD SKY 10.14.2025
ZONING REVIEW - MATERIAL SCHEDULE MATERIAL MARK DESCRIPTION MODEL MANUFACTURER COLOR/FINISH COMMENTS CONTACT ACM-1 ACM PANEL SYSTEM; COLOR: T.B.D. BR-1 MODULAR BRICK; B.O.D. HENRY BRICK AVONDALE, COOSA FROST MORTAR, REFER TO ELEVATIONS AND DETAILS FOR COURSING AVONDALE HENRY BRICK COOSA FROST MORTAR CC-1 CLAY TILE COPING, B.O.D. SUPERIOR CLAY CAMELBACK; CAMELBACK WALL COPING, C;13" SUPERIOR CLAY CHARCOAL GLAZE CO-1 CAST IN PLACE CONCRETE RETAINING WALL, REFER TO CIVIL, REFER TO STRUCTURE EF-1 EXTERIOR FINISH SYSTEM; COLOR: T.B.D. GL-1 1" INSULATED GLASS; SOLARBAN 70 MC-1 METAL COPING SYSTEM W/ SPRING CLIP & CLEAT; COLOR: T.B.D. PC-1 PRECAST CONCRETE COPING SC-1 SE-1 MEDIUM STYLE STOREFRONT ENTRY DOOR SF-1 STOREFRONT SYSTEM W/ INTERMEDAITE MUNTIN BARS WD-1 6" WOOD BOARDS PAINT PT-1 PAINT PPG PPG7 BLACK MAGIC ZINC RICH PRIMER & SEMI-GLOSS FINISH FOR FERROUS ELEMENTS., TYP. HILL STREET RETAIL DISTRICT - BUILDING B WEST ELEVATION - BACK-OF-HOUSE 10.14.2025
ZONING REVIEW - MATERIAL SCHEDULE MATERIAL MARK DESCRIPTION MODEL MANUFACTURER COLOR/FINISH COMMENTS CONTACT ACM-1 ACM PANEL SYSTEM; COLOR: T.B.D. BR-1 MODULAR BRICK; B.O.D. HENRY BRICK AVONDALE, COOSA FROST MORTAR, REFER TO ELEVATIONS AND DETAILS FOR COURSING AVONDALE HENRY BRICK COOSA FROST MORTAR CC-1 CLAY TILE COPING, B.O.D. SUPERIOR CLAY CAMELBACK; CAMELBACK WALL COPING, C;13" SUPERIOR CLAY CHARCOAL GLAZE CO-1 CAST IN PLACE CONCRETE RETAINING WALL, REFER TO CIVIL, REFER TO STRUCTURE EF-1 EXTERIOR FINISH SYSTEM; COLOR: T.B.D. GL-1 1" INSULATED GLASS; SOLARBAN 70 MC-1 METAL COPING SYSTEM W/ SPRING CLIP & CLEAT; COLOR: T.B.D. PC-1 PRECAST CONCRETE COPING SC-1 SE-1 MEDIUM STYLE STOREFRONT ENTRY DOOR SF-1 STOREFRONT SYSTEM W/ INTERMEDAITE MUNTIN BARS WD-1 6" WOOD BOARDS PAINT PT-1 PAINT PPG PPG7 BLACK MAGIC ZINC RICH PRIMER & SEMI-GLOSS FINISH FOR FERROUS ELEMENTS., TYP. HILL STREET RETAIL DISTRICT - BUILDING B SOUTH ELEVATION - BACK-OF-HOUSE
HILL STREET RETAIL DISTRICT - BUILDING B BUILDING CROSS SECTION - EQUIPMENT SCREENING -0" 1/8" = 1' 10.14.202 5
ZONING REVIEW - MATERIAL SCHEDULE MARK DESCRIPTION MODEL MANUFACTURER COLOR/FINISH COMMENTS BR-1 MODULAR BRICK CHIMNEY ROCK HENRY BRICK COOSA FROST MORTAR MODULAR BRICK IN RUNNING BOND. REFER TO ELEVATIONS FOR ADDITIONAL BRICK DETAILING. BR-1 MODULAR BRICK, SOLDIER COURSE CHIMNEY ROCK HENRY BRICK COOSA FROST MORTAR CC-2 CAMELBACK CLAY TILE COPING C; 13" SUPERIOR CLAY CHARCOAL GLAZE CM-1 CEMENTITIOUS PANEL BOARD JAMES HARDIE TO MATCH SW 6194 BASIL CO-1 COPPER GUTTER AND DOWNSPOUT COPPER PROVIDE HALF-ROUND GUTTER WITH CIRCULAR DOWNSPOUTS GL-1 1" INSULATED GLASS; SOLARBAN 70 1" INSULATED GLAZING UNIT, REFER TO SPECIFICATIONS PT-1 PAINT SW 6194 BASIL SHERWIN WILLIAMS TO MATCH SW 6194 BASIL SF-1 STOREFRONT SYSTEM OBE SERIES 3000 THERMAL MULTIPLANE OLDCASTLE BUILDING ENVELOPE TO MATCH SW 6194 BASIL SR-1 STANDING SEAM METAL ROOF SNAP-CLAD PAC-CLAD AGED BRONZE UHPC-1 ULTRA-HIGH PERFORMANCE CONCRETE WALL CAP FOR PLANTER WALLS HILLROSE DEVELOPMENT - BUILDING C NORTH ELEVATION - PRIMARY STREET FRONTAGE
ZONING REVIEW - MATERIAL SCHEDULE MARK DESCRIPTION MODEL MANUFACTURER COLOR/FINISH COMMENTS BR-1 MODULAR BRICK CHIMNEY ROCK HENRY BRICK COOSA FROST MORTAR MODULAR BRICK IN RUNNING BOND. REFER TO ELEVATIONS FOR ADDITIONAL BRICK DETAILING. BR-1 MODULAR BRICK, SOLDIER COURSE CHIMNEY ROCK HENRY BRICK COOSA FROST MORTAR CC-2 CAMELBACK CLAY TILE COPING C; 13" SUPERIOR CLAY CHARCOAL GLAZE CM-1 CEMENTITIOUS PANEL BOARD JAMES HARDIE TO MATCH SW 6194 BASIL CO-1 COPPER GUTTER AND DOWNSPOUT COPPER PROVIDE HALF-ROUND GUTTER WITH CIRCULAR DOWNSPOUTS GL-1 1" INSULATED GLASS; SOLARBAN 70 1" INSULATED GLAZING UNIT, REFER TO SPECIFICATIONS PT-1 PAINT SW 6194 BASIL SHERWIN WILLIAMS TO MATCH SW 6194 BASIL SF-1 STOREFRONT SYSTEM OBE SERIES 3000 THERMAL MULTIPLANE OLDCASTLE BUILDING ENVELOPE TO MATCH SW 6194 BASIL SR-1 STANDING SEAM METAL ROOF SNAP-CLAD PAC-CLAD AGED BRONZE UHPC-1 ULTRA-HIGH PERFORMANCE CONCRETE WALL CAP FOR PLANTER WALLS HILLROSE DEVELOPMENT - BUILDING C SOUTH ELEVATION - SIDE STREET 10.14.2025
ZONING REVIEW - MATERIAL SCHEDULE MARK DESCRIPTION MODEL MANUFACTURER COLOR/FINISH COMMENTS BR-1 MODULAR BRICK CHIMNEY ROCK HENRY BRICK COOSA FROST MORTAR MODULAR BRICK IN RUNNING BOND. REFER TO ELEVATIONS FOR ADDITIONAL BRICK DETAILING. BR-1 MODULAR BRICK, SOLDIER COURSE CHIMNEY ROCK HENRY BRICK COOSA FROST MORTAR CC-2 CAMELBACK CLAY TILE COPING C; 13" SUPERIOR CLAY CHARCOAL GLAZE CM-1 CEMENTITIOUS PANEL BOARD JAMES HARDIE TO MATCH SW 6194 BASIL CO-1 COPPER GUTTER AND DOWNSPOUT COPPER PROVIDE HALF-ROUND GUTTER WITH CIRCULAR DOWNSPOUTS GL-1 1" INSULATED GLASS; SOLARBAN 70 1" INSULATED GLAZING UNIT, REFER TO SPECIFICATIONS PT-1 PAINT SW 6194 BASIL SHERWIN WILLIAMS TO MATCH SW 6194 BASIL SF-1 STOREFRONT SYSTEM OBE SERIES 3000 THERMAL MULTIPLANE OLDCASTLE BUILDING ENVELOPE TO MATCH SW 6194 BASIL SR-1 STANDING SEAM METAL ROOF SNAP-CLAD PAC-CLAD AGED BRONZE UHPC-1 ULTRA-HIGH PERFORMANCE CONCRETE WALL CAP FOR PLANTER WALLS HILLROSE DEVELOPMENT - BUILDING C EAST ELEVATION 10.14.2025
MARK DESCRIPTION MODEL MANUFACTURER COLOR/FINISH COMMENTS BR-1 MODULAR BRICK CHIMNEY ROCK HENRY BRICK COOSA FROST MORTAR MODULAR BRICK IN RUNNING BOND. REFER TO ELEVATIONS FOR ADDITIONAL BRICK DETAILING. BR-1 MODULAR BRICK, SOLDIER COURSE CHIMNEY ROCK HENRY BRICK COOSA FROST MORTAR CC-2 CAMELBACK CLAY TILE COPING C; 13" SUPERIOR CLAY CHARCOAL GLAZE CM-1 CEMENTITIOUS PANEL BOARD JAMES HARDIE TO MATCH SW 6194 BASIL CO-1 COPPER GUTTER AND DOWNSPOUT COPPER PROVIDE HALF-ROUND GUTTER WITH CIRCULAR DOWNSPOUTS GL-1 1" INSULATED GLASS; SOLARBAN 70 1" INSULATED GLAZING UNIT, REFER TO SPECIFICATIONS PT-1 PAINT SW 6194 BASIL SHERWIN WILLIAMS TO MATCH SW 6194 BASIL SF-1 STOREFRONT SYSTEM OBE SERIES 3000 THERMAL MULTIPLANE OLDCASTLE BUILDING ENVELOPE TO MATCH SW 6194 BASIL SR-1 STANDING SEAM METAL ROOF SNAP-CLAD PAC-CLAD AGED BRONZE UHPC-1 ULTRA-HIGH PERFORMANCE CONCRETE WALL CAP FOR PLANTER WALLS HILLROSE DEVELOPMENT - BUILDING C ZONING REVIEW - MATERIAL SCHEDULE WEST ELEVATION 10.14.2025
HILLROSE DEVELOPMENT - BUILDING C EQUIPMENT SCREENING - LONGITUDINAL SECTION
BUILDING D (SINGLE STORY SHOPFRONT) CURRENT UDC REQUIREMENTS: PRIMARY STREET GROUND FLOOR/UPPER FLOOR: 60% SIDE STREET GROUND FLOOR/UPPER FLOOR: 30% 421 SF GLAZING SYSTEM 604 SF TOTAL CALCULATED AREA = 70% TRANSPARENCY (COMPLIANT) ZONING REVIEW- MATERIAL SCHEDULE MARK DESCRIPTION MODEL MANUFACTURER COLOR/FINISH COMMENTS · CO-1 COPPER GUTTER AND DOWNSPOT PROVIDE HALF ROUND PROFILE WITH EXPOSED BRACKETS CS-1 CEDAR SHAKE SHINGLE T.B.D. CW-1 CURTAIN WALL SYSTEM WITH INTERMEDIATE STICK APPLIED MUNTINS RELIANCE, FRONT SET OLDCASTLE BUILDING ENVELOPE BRONZE 740 B.A.M. TAPE APPLIED MUNTINS, REFER TO WINDOW SCHEDULE GL-1 INSULATED SOLARBAN 70 GLASS PANEL VITRO ARCHITECTURAL GLASS PT-1 PAINT SW 7069 SHERWIN WILLIAMS SW 7069 IRON ORE SL-1 CEMENTITIOUS T&G PANEL LATURA V-GROOVE NICHIHA CHARCOAL SR-1 STANDING SEAM METAL ROOF SNAP-CLAD PAC-CLAD CHARCOAL HILLROSE DEVELOPMENT - BUILDING D NORTH ELEVATION - PRIMARY STREET FRONTAGE ASD SKY
BUILDING D (SINGLE STORY SHOPFRONT) CURRENT UDC REQUIREMENTS: PRIMARY STREET GROUND FLOOR/UPPER FLOOR: 60% SIDE STREET GROUND FLOOR/UPPER FLOOR: 30% 252 SF GLAZING AREA 510 SF TOTAL CALCULATED AREA = 49% TRANSPARENCY (COMPLIANT) ZONING REVIEW- MATERIAL SCHEDULE MARK DESCRIPTION MODEL MANUFACTURER COLOR/FINISH COMMENTS CO-1 COPPER GUTTER AND DOWNSPOT PROVIDE HALF ROUND PROFILE WITH EXPOSED BRACKETS CS-1 CEDAR SHAKE SHINGLE T.B.D. CW-1 CURTAIN WALL SYSTEM WITH INTERMEDIATE STICK APPLIED MUNTINS RELIANCE, FRONT SET OLDCASTLE BUILDING ENVELOPE BRONZE 740 B.A.M. TAPE APPLIED MUNTINS, REFER TO WINDOW SCHEDULE GL-1 INSULATED SOLARBAN 70 GLASS PANEL VITRO ARCHITECTURAL GLASS PT-1 PAINT SW 7069 SHERWIN WILLIAMS SW 7069 IRON ORE SL-1 CEMENTITIOUS T&G PANEL LATURA V-GROOVE NICHIHA CHARCOAL SR-1 STANDING SEAM METAL ROOF SNAP-CLAD PAC-CLAD CHARCOAL HILLROSE DEVELOPMENT - BUILDING D EAST ELEVATION - SIDE STREET FRONTAGE ASD SKY
ZONING REVIEW- MATERIAL SCHEDULE MARK DESCRIPTION MODEL MANUFACTURER COLOR/FINISH COMMENTS CO-1 COPPER GUTTER AND DOWNSPOT PROVIDE HALF ROUND PROFILE WITH EXPOSED BRACKETS CS-1 CEDAR SHAKE SHINGLE T.B.D. CW-1 CURTAIN WALL SYSTEM WITH INTERMEDIATE STICK APPLIED MUNTINS RELIANCE, FRONT SET OLDCASTLE BUILDING ENVELOPE BRONZE 740 B.A.M. TAPE APPLIED MUNTINS, REFER TO WINDOW SCHEDULE GL-1 INSULATED SOLARBAN 70 GLASS PANEL VITRO ARCHITECTURAL GLASS PT-1 PAINT SW 7069 SHERWIN WILLIAMS SW 7069 IRON ORE SL-1 CEMENTITIOUS T&G PANEL LATURA V-GROOVE NICHIHA CHARCOAL SR-1 STANDING SEAM METAL ROOF SNAP-CLAD PAC-CLAD CHARCOAL HILLROSE DEVELOPMENT - BUILDING D WEST ELEVATION ASD SKY 10.14.2025
ZONING REVIEW- MATERIAL SCHEDULE MARK DESCRIPTION MODEL MANUFACTURER COLOR/FINISH COMMENTS CO-1 COPPER GUTTER AND DOWNSPOT PROVIDE HALF ROUND PROFILE WITH EXPOSED BRACKETS CS-1 CEDAR SHAKE SHINGLE T.B.D. CW-1 CURTAIN WALL SYSTEM WITH INTERMEDIATE STICK APPLIED MUNTINS RELIANCE, FRONT SET OLDCASTLE BUILDING ENVELOPE BRONZE 740 B.A.M. TAPE APPLIED MUNTINS, REFER TO WINDOW SCHEDULE GL-1 INSULATED SOLARBAN 70 GLASS PANEL VITRO ARCHITECTURAL GLASS PT-1 PAINT SW 7069 SHERWIN WILLIAMS SW 7069 IRON ORE SL-1 CEMENTITIOUS T&G PANEL LATURA V-GROOVE NICHIHA CHARCOAL SR-1 STANDING SEAM METAL ROOF SNAP-CLAD PAC-CLAD CHARCOAL HILLROSE DEVELOPMENT - BUILDING D SOUTH ELEVATION - BACK-OF-HOUSE 1/8" = 1'-0" ASD SKY 10.14.2025
HILLROSE DEVELOPMENT - BUILDING D BUILDING SECTIONS - EQUIPMENT SCREENING ASD SKY 10.14.2025 1/8" = 1'-0"
BUILDING E (GENERAL BUILDING) CURRENT UDC REQUIREMENTS: PRIMARY STREET GROUND FLOOR/UPPER FLOOR: 40%/20% SIDE STREET GROUND FLOOR/UPPER FLOOR: 20% UPPER FLOOR TRANSPARENCY: 211 SF GLAZING AREA 522 SF TOTAL CALCULATED AREA GROUND FLOOR TRANSPARENCY: 306 SF GLAZING AREA 607 SF TOTAL CALCULATED AREA =40% TRANSPARENCY (COMPLIANT) =50% TRANSPARENCY (COMPLIANT) ZONING REVIEW MATERIAL SCHEDULE MARK DESCRIPTION MODEL MANUFACTURER COLOR/FINISH COMMENTS ACM-1 ACM PANEL CA-1 FABRIC CANOPY ON STEEL ROD BRACKET WITH ALUMINUM HOUSING. GL-1 1" INSULATED GLASS; SOLARBAN 70 PP-1 PEDESTAL PAVER, 24"X24"X2" PEDESTA PAVER L HANOVER NATURAL, TUDOR FINISH SF-1 OBE SERIES 3000 THERMAL MULITPLANE STOREFRONT, 2" X 4.5", 1" INFILL, FINISH BRONZE 740 SS-1 STANDING SEAM METAL ROOF SNAP-CLAD PAC-CLAD CHARCOAL ST-1 HARD COAT STUCCO DRYVIT HURRICANE GREY TILE - ' HILLROSE DEVELOPMENT - BUILDING E NORTH ELEVATION - PRIMARY STREET FRONTAGE ASD SKY
ZONING REVIEW MATERIAL SCHEDULE MARK DESCRIPTION MODEL MANUFACTURER COLOR/FINISH COMMENTS ACM-1 ACM PANEL CA-1 FABRIC CANOPY ON STEEL ROD BRACKET WITH ALUMINUM HOUSING. GL-1 1" INSULATED GLASS; SOLARBAN 70 PP-1 PEDESTAL PAVER, 24"X24"X2" PEDESTAL PAVER HANOVER NATURAL, TUDOR FINISH SF-1 OBE SERIES 3000 THERMAL MULITPLANE STOREFRONT, 2" X 4.5", 1" INFILL, FINISH BRONZE 740 SS-1 STANDING SEAM METAL ROOF SNAP-CLAD PAC-CLAD CHARCOAL ST-1 HARD COAT STUCCO DRYVIT HURRICANE GREY TILE , HILLROSE DEVELOPMENT - BUILDING E SOUTH ELEVATION ASD SKY
BUILDING E (GENERAL BUILDING) CURRENT UDC REQUIREMENTS: PRIMARY STREET GROUND FLOOR/UPPER FLOOR: 40%/20% SIDE STREET GROUND FLOOR/UPPER FLOOR: 20% UPPER FLOOR TRANSPARENCY: 387 SF GLAZING AREA 797 SF TOTAL CALCULATED AREA =49% TRANSPARENCY (COMPLIANT) GROUND FLOOR TRANSPARENCY: 304 SF GLAZING AREA 629 SF TOTAL CALCULATED AREA =48% TRANSPARENCY (COMPLIANT) ZONING REVIEW MATERIAL SCHEDULE MARK DESCRIPTION MODEL MANUFACTURER COLOR/FINISH COMMENTS ACM-1 ACM PANEL CA-1 FABRIC CANOPY ON STEEL ROD BRACKET WITH ALUMINUM HOUSING. GL-1 1" INSULATED GLASS; SOLARBAN 70 PP-1 PEDESTAL PAVER, 24"X24"X2" PEDESTAL PAVER HANOVER NATURAL, TUDOR FINISH SF-1 OBE SERIES 3000 THERMAL MULITPLANE STOREFRONT, 2" X 4.5", 1" INFILL, FINISH BRONZE 740 SS-1 STANDING SEAM METAL ROOF SNAP-CLAD PAC-CLAD CHARCOAL ST-1 HARD COAT STUCCO DRYVIT HURRICANE GREY TILE • ' • HILLROSE DEVELOPMENT - BUILDING E WEST ELEVATION - SIDE STREET FRONTAGE ASD SKY 10.14.2025 1/8" = 1'-0"
ZONING REVIEW MATERIAL SCHEDULE MARK DESCRIPTION MODEL MANUFACTURER COLOR/FINISH COMMENTS ACM-1 ACM PANEL FABRIC CANOPY ON STEEL ROD BRACKET WITH ALUMINUM HOUSING. GL-1 1" INSULATED GLASS; SOLARBAN 70 PP-1 PEDESTAL PAVER, 24"X24"X2" PEDESTAL PAVER HANOVER NATURAL, TUDOR FINISH SF-1 OBE SERIES 3000 THERMAL MULITPLANE STOREFRONT, 2" X 4.5", 1" INFILL, FINISH BRONZE 740 SS-1 STANDING SEAM METAL ROOF SNAP-CLAD PAC-CLAD CHARCOAL ST-1 HARD COAT STUCCO DRYVIT HURRICANE GREY TILE HILLROSE DEVELOPMENT - BUILDING E EAST ELEVATION ASD SKY
BUILDING F (SINGLE STORY SHOPFRONT) CURRENT UDC REQUIREMENTS: PRIMARY STREET GROUND FLOOR/UPPER FLOOR: 60% SIDE STREET GROUND FLOOR/UPPER FLOOR: 30% 467 TOTAL GLAZING AREA 1067 TOTAL CALCULATED AREA =44% TRANSPARENCY ZONING REVIEW - MATERIAL SCHEDULE MARK DESCRIPTION MODEL MANUFACTURER COLOR/FINISH COMMENTS MATERIAL CONTACT BR-1 SOLDIER COURSE BRICK CC-2 CLAY COPING EF-1 EXTERIOR FINISH SYSTEM; COLOR: T.B.D. GL-1 1" INSULATED GLASS; SOLARBAN 70 STOREFRONT SYSTEM W/INTERMEDIATE MUNTIN BARS SR-1 STANDING SEAM METAL ROOF HILLROSE DEVELOPMENT - BUILDING F NORTH ELEVATION - PRIMARY STREET FRONTAGE ASD SKY 10.14.2025 1/8" = 1'-0"
BUILDING F (SINGLE STORY SHOPFRONT) CURRENT UDC REQUIREMENTS: PRIMARY STREET GROUND FLOOR/UPPER FLOOR: 60% SIDE STREET GROUND FLOOR/UPPER FLOOR: 30% 256 SF TOTAL GLAZING AREA 707 SF TOTAL CALCULATED AREA =36% TRANSPARENCY (COMPLIANT) ZONING REVIEW - MATERIAL SCHEDULE MARK DESCRIPTION MODEL MANUFACTURER COLOR/FINISH COMMENTS MATERIAL CONTACT BR-1 SOLDIER COURSE BRICK CC-2 CLAY COPING EF-1 EXTERIOR FINISH SYSTEM; COLOR: T.B.D. GL-1 1" INSULATED GLASS; SOLARBAN 70 SF-1 STOREFRONT SYSTEM W/ INTERMEDIATE MUNTIN BARS SR-1 STANDING SEAM METAL ROOF HILLROSE DEVELOPMENT - BUILDING F EAST ELEVATIONS - SIDE STREET FRONTAGE 10.14.2025
ZONING REVIEW - MATERIAL SCHEDULE MARK DESCRIPTION MODEL MANUFACTURER COLOR/FINISH COMMENTS MATERIAL CONTACT BR-1 SOLDIER COURSE BRICK CC-2 CLAY COPING EF-1 EXTERIOR FINISH SYSTEM; COLOR: T.B.D. GL-1 1" INSULATED GLASS; SOLARBAN 70 SF-1 STOREFRONT SYSTEM W/ INTERMEDIATE MUNTIN BARS SR-1 STANDING SEAM METAL ROOF HILLROSE DEVELOPMENT - BUILDING F WEST ELEVATIONS
ZONING REVIEW - MATERIAL SCHEDULE MARK DESCRIPTION MODEL MANUFACTURER COLOR/FINISH COMMENTS MATERIAL CONTACT BR-1 SOLDIER COURSE BRICK CC-2 CLAY COPING EF-1 EXTERIOR FINISH SYSTEM; COLOR: T.B.D. GL-1 1" INSULATED GLASS; SOLARBAN 70 SF-1 STOREFRONT SYSTEM W/ INTERMEDIATE MUNTIN BARS SR-1 STANDING SEAM METAL ROOF HILLROSE DEVELOPMENT - BUILDING F SOUTH ELEVATION - BACK-OF-HOUSE 10.14.2025
HILLROSE DEVELOPMENT - BUILDING G REMODEL BUILDING G
UPPER FLOOR TRANSPARENCY 261 SF TOTAL GLAZING AREA 742 SF TOTAL CALCULATED AREA =31% TRANSPARENCY (COMPLIANT) GROUND FLOOR TRANSPARENCY 261 SF TOTAL GLAZING AREA 557 SF TOTAL CALCULATED AREA =47% TRANSPARENCY (COMPLIANT) BUILDING G (MIXED USE) CURRENT UDC REQUIREMENTS: PRIMARY STREET GROUND FLOOR/UPPER FLOOR: 60%/20% SIDE STREET GROUND FLOOR/UPPER FLOOR: 30%/20% ZONING REVIEW - MATERIAL SCHEDULE MARK DESCRIPTION MANUFACTURER COLOR/FINISH COMMENTS AF-1 AV WNING FABRIC W/ 2"x2" TUBE ALUM. FRAME COLOR: T.B.D. AM-1 Ky ynar Charcoal Gray ANOPY (32'-8" LONG BY 6'-0" DEEP); 4"x3" ALUM. TUBE FRAMING, 2"x2" TUBE LUMINUM PURLINS AND STANDING SEAM METAL ROOF W/ BATTENS AT 12" O.C. COLOR: T.B.D. MATCH STANDING SEAM METAL ROOF CO-1 SE EALER ON EXISTING CONCRETE SHEEN: MATTE CLEAN AND PREPARE CONCRETE FOR SEALER CP-1 ME ETAL COPING COLOR: T.B.D. MATCH STANDING SEAM METAL ROOF DS-1 ME ETAL DOWNSPOUT COLOR: T.B.D. MATCH STANDING SEAM METAL ROOF DS-2 4x x3 CANOPY DOWNSPUT EF-1 EX XTERIOR FINISH SYSTEM DRYVIT COLOR: 623, FINISH: FINESSE GT-1 GL UTTER COLOR: T.B.D. MATCH STANDING SEAM METAL ROOF HP-1 HA ARDIE PANEL WITH 3/4"x2 1/2" BATTENS AND 3/4"x3 1/2" SILL FINISH: SMOOTH APPLY TWO COATS OF PRIMER AND PAINT MF-1 ST TANDING SEAM METAL FLASHING/VENT PAC-CLAD COLOR: T.B.D. MATCH STANDING SEAM ROOF PT-1 PA AINT COLOR: T.B.D. REPOINT AS REQUIRED AND PREPAR/CLEAN BRICK FOR PAINT PT-3 PA AINT; SHEEN: SATIN & COLOR: T.B.D. SF-1 AL LUMINUM STOREFRONT SYSTEM COLOR: ANODIZED DARK BRONZE SF-2 AL LUMINUM STOREFRONT @ RETAIL COLOR: ANODIZED DARK BRONZE SG-1 IN ISULATED GLASS UNIT VITRO ARCHITECTURAL SOLARBAN 70 1" INSULATED SS-1 ST TANDING SEAM METAL ROOF PAC-CLAD COLOR: T.B.D. TR-1 W /ALL TRELLIS W/ STANDOFFS, CLAMPS, CABLES AND RODS. JAKOB INC. CUSTOM GREEN KIT HILLROSE DEVELOPMENT - BUILDING G REMODEL EAST ELEVATION - SIDE STREET FRONTAGE ASD SKY
29' - 4 4 1/8" 24' - 0" 158' - 8" + 212' - 0" BUILDING G (MIXED USE) EXISTING GROUN ND FLOOR TRANSPARENCY UPPER FLOOR TRANSPARENCY CURRENT UDC REQUIREMENTS: 06 SF TOTAL GLAZING AREA 656 SF TOTAL GLAZING AREA RIMAR Y STREET GROUND FLOOR/UPPER FLOOR: 60%/20% 2120 SF TOTAL CALCULATED AREA 2120 SF TOTAL CALCULATED AREA SIDE STREET GROUND FLOOR/UPPER FLOOR: 30%/20% -220/ TRANSPARENCY -240/ TRANSPARENCY (COMPLIANT) =38% TRANSPARENCY =31% TRANSPARENCY (COMPLIANT) Z ONING REVIEW - MATE ERIAL SCHEDULE MARK DESCRIPTION MANUFACTURER COLOR/FINISH COMMENTS AWNING FABRIC W/ 2"x2" TUBE ALUM. FRAME COLOR: T.B.D. AF-1 AM-1 Kynar Charcoal Gray COLOR: 1.B.D. CANOPY (32'-8" LONG BY 6'-0" DEEP); 4"x3" ALUM. TUBE FRAMING, 2"x2" TUBE COLOR: T.B.D. MATCH STANDING SEAM ME ETAL DOOE CA-1 ALUMINUM PURLINS AND STANDING SEAM METAL ROOF W/ BATTENS AT 12" O.0 C COLOR. 1.D.D. MATCH STAINDING SEAW WE TAL ROOF SEALER ON EXISTING CONCRETE SHEEN: MATTE CLEAN AND PREPARE CONC METAL COPING COLOR: T.B.D. MATCH STANDING SEAM ME DS-1 METAL DOWNSPOUT COLOR: T.B.D. MATCH STANDING SEAM ME TAL ROOF DS-2 4x3 CANOPY DOWNSPUT EF-1 EXTERIOR FINISH SYSTEM DRYVIT COLOR: 623, FINISH: FINESSE GUTTER COLOR: T.B.D. MATCH STANDING SEAM ME HP-1 HARDIE PANEL WITH 3/4"x2 1/2" BATTENS AND 3/4"x3 1/2" SILL FINISH: SMOOTH APPLY TWO COATS OF PRIM MF-1 STANDING SEAM METAL FLASHING/VENT PAC-CLAD COLOR: T.B.D. MATCH STANDING SEAM RO PAINT COLOR: T.B.D. REPOINT AS REQUIRED AND PREPAR/CLEAN BRICK FOR PAINT PAINT; SHEEN: SATIN & COLOR: T.B.D. ALUMINUM STOREFRONT SYSTEM COLOR: ANODIZED DARK BRONZ ZE SF-2 ALUMINUM STOREFRONT @ RETAIL COLOR: ANODIZED DARK BRONZ ZE SG-1 INSULATED GLASS UNIT VITRO ARCHITECTURAL SOLARBAN 70 1" INSULATED SS-1 STANDING SEAM METAL ROOF PAC-CLAD COLOR: T.B.D. TR-1 WALL TRELLIS W/ STANDOFFS, CLAMPS, CABLES AND RODS. JAKOB INC. CUSTOM GREEN KIT HILLROSE DEVELOPMENT - BUILDING G REMODEL NORTH ELEVATION - PRIMARY STREET FRONTAGE ASD SKY
ZONING REVIEW - MATERIAL SCHEDULE MARK DESCRIPTION MANUFACTURER COLOR/FINISH COMMENTS AF-1 AWNING FABRIC W/ 2"x2" TUBE ALUM. FRAME COLOR: T.B.D. AM-1 Kynar Charcoal Gray CANOPY (32'-8" LONG BY 6'-0" DEEP); 4"x3" ALUM. TUBE FRAMING, 2"x2" TUBE ALUMINUM PURLINS AND STANDING SEAM METAL ROOF W/ BATTENS AT 12" O.C. COLOR: T.B.D. MATCH STANDING SEAM METAL ROOF CO-1 SEALER ON EXISTING CONCRETE SHEEN: MATTE CLEAN AND PREPARE CONCRETE FOR SEALER CP-1 METAL COPING COLOR: T.B.D. MATCH STANDING SEAM METAL ROOF DS-1 METAL DOWNSPOUT COLOR: T.B.D. MATCH STANDING SEAM METAL ROOF DS-2 4x3 CANOPY DOWNSPUT EF-1 EXTERIOR FINISH SYSTEM DRYVIT COLOR: 623, FINISH: FINESSE GT-1 GUTTER COLOR: T.B.D. MATCH STANDING SEAM METAL ROOF HP-1 HARDIE PANEL WITH 3/4"x2 1/2" BATTENS AND 3/4"x3 1/2" SILL FINISH: SMOOTH APPLY TWO COATS OF PRIMER AND PAINT MF-1 STANDING SEAM METAL FLASHING/VENT PAC-CLAD COLOR: T.B.D. MATCH STANDING SEAM ROOF PT-1 PAINT COLOR: T.B.D. REPOINT AS REQUIRED AND PREPAR/CLEAN BRICK FOR PAINT PT-3 PAINT; SHEEN: SATIN & COLOR: T.B.D. SF-1 ALUMINUM STOREFRONT SYSTEM COLOR: ANODIZED DARK BRONZE SF-2 ALUMINUM STOREFRONT @ RETAIL COLOR: ANODIZED DARK BRONZE SG-1 INSULATED GLASS UNIT VITRO ARCHITECTURAL SOLARBAN 70 1" INSULATED SS-1 STANDING SEAM METAL ROOF PAC-CLAD COLOR: T.B.D. TR-1 WALL TRELLIS W/ STANDOFFS, CLAMPS, CABLES AND RODS. JAKOB INC. CUSTOM GREEN KIT · · · · · · · · · · · · · · · · · · · · · · HILLROSE DEVELOPMENT - BUILDING G REMODEL SOUTH ELEVATION ASD SKY
ZONING REVIEW - MATERIAL SCHEDULE MARK DESCRIPTION MANUFACTURER COLOR/FINISH COMMENTS AF-1 AWNING FABRIC W/ 2"x2" TUBE ALUM. FRAME COLOR: T.B.D. AM-1 Kynar Charcoal Gray CA-1 CANOPY (32'-8" LONG BY 6'-0" DEEP); 4"x3" ALUM. TUBE FRAMING, 2"x2" TUBE ALUMINUM PURLINS AND STANDING SEAM METAL ROOF W/ BATTENS AT 12" O.C. COLOR: T.B.D. MATCH STANDING SEAM METAL ROOF CO-1 SEALER ON EXISTING CONCRETE SHEEN: MATTE CLEAN AND PREPARE CONCRETE FOR SEALER CP-1 METAL COPING COLOR: T.B.D. MATCH STANDING SEAM METAL ROOF DS-1 METAL DOWNSPOUT COLOR: T.B.D. MATCH STANDING SEAM METAL ROOF DS-2 4x3 CANOPY DOWNSPUT EF-1 EXTERIOR FINISH SYSTEM DRYVIT COLOR: 623, FINISH: FINESSE GT-1 GUTTER COLOR: T.B.D. MATCH STANDING SEAM METAL ROOF HP-1 HARDIE PANEL WITH 3/4"x2 1/2" BATTENS AND 3/4"x3 1/2" SILL FINISH: SMOOTH APPLY TWO COATS OF PRIMER AND PAINT MF-1 STANDING SEAM METAL FLASHING/VENT PAC-CLAD COLOR: T.B.D. MATCH STANDING SEAM ROOF PT-1 PAINT COLOR: T.B.D. REPOINT AS REQUIRED AND PREPAR/CLEAN BRICK FOR PAINT PT-3 PAINT; SHEEN: SATIN & COLOR: T.B.D. SF-1 ALUMINUM STOREFRONT SYSTEM COLOR: ANODIZED DARK BRONZE SF-2 ALUMINUM STOREFRONT @ RETAIL COLOR: ANODIZED DARK BRONZE SG-1 INSULATED GLASS UNIT VITRO ARCHITECTURAL SOLARBAN 70 1" INSULATED SS-1 STANDING SEAM METAL ROOF PAC-CLAD COLOR: T.B.D. TR-1 WALL TRELLIS W/ STANDOFFS, CLAMPS, CABLES AND RODS. JAKOB INC. CUSTOM GREEN KIT HILLROSE DEVELOPMENT - BUILDING G REMODEL WEST ELEVATION ASD SKY
CURRENT TRANSPARENCY REQUIREMENTS: 20% TRANPARENCY PROVIDED: 29% (COMPLIANT) TRANSPARENT AREA: 1,155 SF 2,712 SF OPAQUE AREA: ZONING REVIEW MATERIAL SCHEDULE BR-1 FIELD FACE BRICK GL-2 DOUBLE PANE GLAZING Manufacturer Color Size General Shale Spanish Moss Blend Modular Manufacturer Product Vitro Architectural Glass Solarban 70 BR-2 FACE BRICK AT LEASING MT-1 PREFINISHED METAL SCUPPER & DOWNSPOUT Manufacturer Color Size Henry Brick Avondale Modular Color Match Storefront System MR-1 METAL GUARDRAIL FC-1 FIBER CEMENT BOARD & BATTEN Color Match Storefront System Manufacturer SF-1 ALUMINUM STOREFRONT SYSTEM Product Color Shorwin Williams SW7048 Urbano Bronzo Manufacturer Product FC-2 FIBER CEMENT SIDING Color Anodized Dark Bronze Manufacturer Product Color JamesHardie Artisan V-Groove Sherwin Williams SW7048 Urbane Bronze SR-1 STANDING SEAM METAL ROOF Manufacturer Product Color PAC-CLAD Snap-Clad Aged Bronze
CURRENT TRANSPARENCY REQUIREMENTS: 20% 30% (COMPLIANT) TRANPARENCY PROVIDED: 2,589 SF TRANSPARENT AREA: OPAQUE AREA: 5,856 SF ZONING REVIEW MATERIAL SCHEDULE BR-1 FIELD FACE BRICK GL-2 DOUBLE PANE GLAZING Manufacturer Color Size General Shale Spanish Moss Blend Modular Manufacturer Product Vitro Architectural Glass Solarban 70 BR-2 FACE BRICK AT LEASING MT-1 PREFINISHED METAL SCUPPER & DOWNSPOUT Manufacturer Color Size Henry Brick Avondale Modular Color Match Storefront System MR-1 METAL GUARDRAIL FC-1 FIBER CEMENT BOARD & BATTEN Color Match Storefront System Manufacturer JamesHardie Hardie Panel Sherwin Williams SW7048 Urbane Bronze SF-1 ALUMINUM STOREFRONT SYSTEM Product Color Manufacturer Product Color Oldcastle BuildingEnvelope OBE Series 3000 Thermal Multiplane Anodized Dark Bronze FC-2 FIBER CEMENT SIDING Manufacturer Product Color JamesHardie Artisan V-Groove Sherwin Williams SW7048 Urbane Bronze SR-1 STANDING SEAM METAL ROOF Manufacturer Product Color PAC-CLAD Snap-Clad Aged Bronze
CURRENT TRANSPARENCY REQUIREMENTS: TRANPARENCY PROVIDED: 26% (COMPLIANT) TRANSPARENT AREA: 2,362 SF OPAQUE AREA: 6,609 SF ZONING REVIEW MATERIAL SCHEDULE 20% BR-1 FIELD FACE BRICK GL-2 DOUBLE PANE GLAZING Manufacturer Color Size General Shale Spanish Moss Blend Modular Manufacturer Product Vitro Architectural Glass Solarban 70 BR-2 FACE BRICK AT LEASING MT-1 PREFINISHED METAL SCUPPER & DOWNSPOUT Manufacturer Color Size Henry Brick Avondale Modular Color Match Storefront System MR-1 METAL GUARDRAIL FC-1 FIBER CEMENT BOARD & BATTEN Color Match Storefront System Manufacturer SF-1 ALUMINUM STOREFRONT SYSTEM Product Color Manufacturer Product Color Oldcastle BuildingEnvelope OBE Series 3000 Thermal Multiplane FC-2 FIBER CEMENT SIDING Anodized Dark Bronze Manufacturer Product Color JamesHardie Artisan V-Groove Sherwin Williams SW7048 Urbane Bronze SR-1 STANDING SEAM METAL ROOF Manufacturer Product Color PAC-CLAD Snap-Clad Aged Bronze
CURRENT TRANSPARENCY REQUIREMENTS: 20% TRANPARENCY PROVIDED: 25% (COMPLIANT) TRANSPARENT AREA: 2,705 SF 7,997 SF OPAQUE AREA: ZONING REVIEW MATERIAL SCHEDULE BR-1 FIELD FACE BRICK GL-2 DOUBLE PANE GLAZING Manufacturer Color Size General Shale Spanish Moss Blend Modular Manufacturer Product Vitro Architectural Glass Solarban 70 BR-2 FACE BRICK AT LEASING MT-1 PREFINISHED METAL SCUPPER & DOWNSPOUT Manufacturer Color Size Henry Brick Avondale Modular Color Match Storefront System MR-1 METAL GUARDRAIL FC-1 FIBER CEMENT BOARD & BATTEN Color Match Storefront System Manufacturer SF-1 ALUMINUM STOREFRONT SYSTEM Product Color Manufacturer Product Color Oldcastle BuildingEnvelope OBE Series 3000 Thermal Multiplane FC-2 FIBER CEMENT SIDING Anodized Dark Bronze Manufacturer Product Color JamesHardie Artisan V-Groove Sherwin Williams SW7048 Urbane Bronze SR-1 STANDING SEAM METAL ROOF Manufacturer Product Color PAC-CLAD Snap-Clad Aged Bronze
EAST RESIDENTIAL BUILDING (MULIT-FAMILY) CURRENT TRANSPARENCY REQUIREMENTS: 20% 35% (COMPLIANT) TRANPARENCY PROVIDED: 1,677 SF TRANSPARENT AREA: OPAQUE AREA: 3,118 SF ZONING REVIEW MATERIAL SCHEDULE BR-1 FIELD FACE BRICK GL-2 DOUBLE PANE GLAZING Manufacturer Color Size General Shale Spanish Moss Blend Modular Manufacturer Product Vitro Architectural Glass Solarban 70 BR-2 FACE BRICK AT LEASING MT-1 PREFINISHED METAL SCUPPER & DOWNSPOUT Manufacturer Color Size Henry Brick Avondale Modular Color Match Storefront System MR-1 METAL GUARDRAIL FC-1 FIBER CEMENT BOARD & BATTEN Color Match Storefront System Manufacturer JamesHardie Hardie Panel Sherwin Williams SW7048 Urbane Bronze SF-1 ALUMINUM STOREFRONT SYSTEM Product Color Manufacturer Product Oldcastle BuildingEnvelope OBE Series 3000 Thermal Multiplane Anodized Dark Bronze FC-2 FIBER CEMENT SIDING Color Manufacturer Product Color JamesHardie Artisan V-Groove Sherwin Williams SW7048 Urbane Bronze SR-1 STANDING SEAM METAL ROOF Manufacturer Product Color PAC-CLAD Snap-Clad Aged Bronze
EAST RESIDENTIAL BUILDING (MULIT -FAMILY) WEST MULTI CURRENT TRANSPARENCY REQUIREMENTS: 20% TRANPARENCY PROVIDED: 20% (COMPLIANT) TRANSPARENT AREA: 886 SF OPAQUE AREA: 3,438 SF ZONING REVIEW MATERIAL SCHEDULE BR-1 FIELD FACE BRICK MR-1 METAL GUARDRAIL Manufacturer Color Size General Shale Bastille Queen Color Match Storefront System SF-1 ALUMINUM STOREFRONT SYSTEM FC-1 FIBER CEMENT BOARD & BATTEN Manufacturer Product Color Oldcastle BuildingEnvelope OBE Series 3000 Thermal Multiplane Anodized Dark Bronze Manufacturer Product Color JamesHardie Hardie Panel Sherwin Williams SW7048 Urbane Bronze SR-1 STANDING SEAM METAL ROOF FC-2 FIBER CEMENT SIDING Manufacturer Product Color PAC-CLAD Snap-Clad Aged Bronze Manufacturer JamesHardie Product Color Artisan V-Groove Sherwin Williams SW7048 Urbane Bronze GL-2 DOUBLE PANE GLAZING Manufacturer Product Vitro Architectural Glass Solarban 70 MT-1 PREFINISHED METAL SCUPPER & DOWNSPOUT Color Match Storefront System
EAST RESIDENTIAL BUILDING (MULIT -FAMILY) WEST MULTI CURRENT TRANSPARENCY REQUIREMENTS: 20% TRANPARENCY PROVIDED: 28% (COMPLIANT) TRANSPARENT AREA: 3,523 SF OPAQUE AREA: 8,693 SF ZONING REVIEW MATERIAL SCHEDULE BR-1 FIELD FACE BRICK MR-1 METAL GUARDRAIL Manufacturer General Shale Color Match Storefront System Color Size Bastille Queen SF-1 ALUMINUM STOREFRONT SYSTEM FC-1 FIBER CEMENT BOARD & BATTEN Manufacturer Oldcastle BuildingEnvelope OBE Series 3000 Thermal Multiplane Anodized Dark Bronze Manufacturer JamesHardie Hardie Panel Sherwin Williams SW7048 Urbane Bronze Product Color Product Color SR-1 STANDING SEAM METAL ROOF FC-2 FIBER CEMENT SIDING Manufacturer Product Color PAC-CLAD Snap-Clad Aged Bronze Manufacturer JamesHardie Product Color Artisan V-Groove Sherwin Williams SW7048 Urbane Bronze GL-2 DOUBLE PANE GLAZING Manufacturer Product Vitro Architectural Glass Solarban 70 MT-1 PREFINISHED METAL SCUPPER & DOWNSPOUT Color Match Storefront System
EAST RESIDENTIAL BUILDING (MULIT -FAMILY) WEST MULTI CURRENT TRANSPARENCY REQUIREMENTS: NOT APPLICABLE (NOT STREET FACING) TRANPARENCY PROVIDED: 18% TRANSPARENT AREA: 837 SF OPAQUE AREA: 3,696 SF ZONING REVIEW MATERIAL SCHEDULE BR-1 FIELD FACE BRICK MR-1 METAL GUARDRAIL Manufacturer Color Size General Shale Bastille Queen Color Match Storefront System SF-1 ALUMINUM STOREFRONT SYSTEM FC-1 FIBER CEMENT BOARD & BATTEN Manufacturer Product Color Oldcastle BuildingEnvelope OBE Series 3000 Thermal Multiplane Anodized Dark Bronze Manufacturer JamesHardie Hardie Panel Sherwin Williams SW7048 Urbane Bronze Product Color SR-1 STANDING SEAM METAL ROOF FC-2 FIBER CEMENT SIDING Manufacturer Product Color PAC-CLAD Snap-Clad Aged Bronze Manufacturer JamesHardie Artisan V-Groove Sherwin Williams SW7048 Urbane Bronze Product Color GL-2 DOUBLE PANE GLAZING Manufacturer Product Vitro Architectural Glass Solarban 70 MT-1 PREFINISHED METAL SCUPPER & DOWNSPOUT Color Match Storefront System
EAST RESIDENTIAL BUILDING (MULIT -FAMILY) WEST MULTI CURRENT TRANSPARENCY REQUIREMENTS: 20% TRANPARENCY PROVIDED: 23% (COMPLIANT) TRANSPARENT AREA: 2,703 SF OPAQUE AREA: 7,005 SF ZONING REVIEW MATERIAL SCHEDULE BR-1 FIELD FACE BRICK MR-1 METAL GUARDRAIL Manufacturer General Shale Bastille Queen Color Match Storefront System Color Size SF-1 ALUMINUM STOREFRONT SYSTEM FC-1 FIBER CEMENT BOARD & BATTEN Manufacturer Product Color Oldcastle BuildingEnvelope OBE Series 3000 Thermal Multiplane Anodized Dark Bronze Manufacturer JamesHardie Hardie Panel Sherwin Williams SW7048 Urbane Bronze Product Color SR-1 STANDING SEAM METAL ROOF FC-2 FIBER CEMENT SIDING Manufacturer Product Color PAC-CLAD Snap-Clad Aged Bronze Manufacturer Product Color JamesHardie Artisan V-Groove Sherwin Williams SW7048 Urbane Bronze GL-2 DOUBLE PANE GLAZING Manufacturer Product Vitro Architectural Glass Solarban 70 MT-1 PREFINISHED METAL SCUPPER & DOWNSPOUT Color Match Storefront System
HILLROSE DEVELOPMENT COMMERCIAL - OVERALL GROSS SQUARE FOOTAGE DATE: 10.14.2025
This document, together with the concepts and designs presented herein, as an instrument of service, is intended only for the specific purpose and client for which it was prepared. Reuse of and improper reliance on this document without written authorization by Kimley-Horn and Associates, Inc. shall be without liability to Kimley-Horn and Associates, Inc. DETAILED TREE REPLACEMENT L0.51
This document, together with the concepts and designs presented herein, as an instrument of service, is intended only for the specific purpose and client for which it was prepared. Reuse of and improper reliance on this document without written authorization and adaptation by Kimley-Horn and Associates, Inc. shall be without liability to Kimley-Horn and Associates, Inc. (LEVEL II) 000006876 REPLACEMENT PLAN (2 OF 3) L0.52 Packet Pg. 104
This document, together with the concepts and designs presented herein, as an instrument of service, is intended only for the specific purpose and client for which it was prepared. Reuse of and improper reliance on this document without written authorization by Kimley-Horn and Associates, Inc. shall be without liability to Kimley-Horn and Associates, Inc. Dooket Dr. 405
OUTDOOR LANDSCAPE AREA OUTDOOR AMENITY AREA DEVELOPMENT SUMMARY SITE AREA: 285,318 SF, 6.55 ACRES OUTDOOR LANDSCAPE AREA: 10% SITE AREA OUTDOOR AMENITY AREA: 13% SITE AREA OPEN SPACE DEFINITIONS LANDSCAPE OPEN SPACE - INCLUDES EXTERIOR LANDSCAPE BEDS WITH TREES, SHRUBS, AND GROUNDCOVER; SOD AREAS (ARTIFICIAL AND NATURAL); BERMS; SCREENING WALLS AND FENCES; WOODED AREAS; WATER FEATURES AND GRAVEL/PERVIOUS SURFACE. LANDSCAPE OPEN SPACE IS LOCATED AT GRADE ACCESSIBLE BY THE PUBLIC AND ON PRIVATE AMENITY ROOFTOPS. OUTDOOR AMENITY SPACE - INCLUDES EXTERIOR SPACES FOR PEDESTRIANS INCLUDING CONCRETE, PAVERS, CRUSHED GRAVEL PATHS, AND ARTIFICIAL TURF. THIS CAN INCLUDE AREAS USED FOR INCIDENTAL SERVICE, MAINTENANCE OR EMERGENCY INGRESS/EGRESS. OUTDOOR AMENITY SPACE IS LOCATED AT GRADE ACCESSIBLE BY THE PUBLIC AND COMMON BALCONIES, ROOFTOP DECKS AND ROOFTOP GARDENS. For consideration 10/14/2025 PHONE: (404) 8700 I www.kimley-horn.com TITLE: OPEN SPACE EXHIBIT PROJECT: HILL STREET MIXED USE DEVELOPMENT CLIENT: ATLANTIC COMPANIES JOB NUMBER 013591012 SCALE: 1" = 40' DATE: 10/8/2025 SHEET: EXHIBIT A
G.1 DISTRICT SIGNAGE\ In order to promote a sense of connected community within the district, the below guidelines outline allowances and requirements for district standard sign types, distinct from and not in conflict with tenant signage. These signs serve to define the district bounds, identify key district components, and complement the pedestrian-oriented design of the development. District signage is designed to enhance visitor experience and intended to integrate into the surrounding environment. It will create sense of continuity, character and permanence through intentional detailing, quality materials and traditional fabrication techniques to add visual interest and defined depth. DISTRICT FREESTANDING SIGNAGE The district will be permitted one freestanding "District Identification Sign" at each location noted in Figure G.1.1. These signs will: - · Align to the defined district design standard. - Not exceed 10 SF in sign face area or 12' maximum height. - · Adhere to the required 10' setback from public roadways. - Not be used to identify or promote any singular business within the district or affect the allotted signage area for any tenant within the district. DISTRICT PROJECTING SIGNAGE Buildings with two stories or more within the district will be permitted one identifying "District Projecting Sign" per street frontage to identify primary district sites. These signs will: - · Align to the defined district design standard. - Maintain 10' clearance above pedestrian sidewalks. - Not exceed 48 SF in sign face area with a maximum height of 12'. - Not be used to identify any singular business within the building. - · Not affect the allocated signage area for any tenant within the building. - Internal or external illumination permitted. DISTRICT BUILDING MEDALLION A signature "District Building Medallion" may be applied selectively to common use buildings or other permanent structures. Designed to mimic a debossed stamp, the medallion should complement the material color palette of the building it is applied to and will follow the below guidelines: - Scale may not exceed 6' in height or 25% of the width or height, whichever is smaller, of the mounting facade. - No more than one medallion should be visible within the same pedestrian sight line. - · No more than two medallions may be applied to a single building or structure. DISTRICT UPRIGHT CROWN SIGNAGE The district will be permitted one upright crown sign central to Overlay Project 1, mounted on the pitched roof of the clubhouse building and overlooking the interior green space as represented in Figure G.1.1**. This sign will: - · Not exceed 250 SF in sign face area. - Be securely affixed to a support structure painted to blend with the roof surface. - Be internally or externally illuminated.
IMPACTFUL PLACEMAKING Impactful placemaking, ie. painted signage, decorative screening or other abstract treatments, will be permitted within the district. These expressions will be limited to a total SF less than 5% of the primary street facing building facade or 250 SF when freestanding. FREESTANDING DISTRICT WAYFINDING Complementing the City of Roswell standards, all freestanding wayfinding will follow the approved district design standard inclusive of specified post, base and hanging bracket arm. Exemplary locations represented in Figure G.1.2 may be amended to include additional or adjusted locations as determined. These signs will: - Adhere to a 5' setback from public and private roadways. - Not suspend over pedestrian sidewalks. - Not exceed 7' total height. - Not exceed 9 SF in sign face area. IMPRINTED DISTRICT WAYFINDING Throughout the district, imprinted sidewalk wayfinding plaques will be utilized to support pedestrian wayfinding and will adhere to the approved district design standards. These signs will include: - Street identifying signage present at each end of all pedestrian crosswalks. - The compass rose present at primary pedestrian district entries noting the nearest district sites and/or neighboring City of Roswell points of interest. WALL MOUNTED DISTRICT WAYFINDING Where the built environment does not allow for freestanding signage, wall mounted wayfinding may be utilized. These signs must adhere to the district design standards and may not exceed 9 SF in sign face area. G.2 MULTIFAMILY RESIDENTIAL SIGNAGE The multifamily residential development within Overlay Project 1 will be permitted the following sign types. CROWN (TOP OF BUILDING) SIGNAGE A Wall Sign extending not more than 3' from the building facade located on the upper horizontal band of a building. These signs must adhere to the following requirements: - One (1) Crown Sign is permitted per street frontage, not to exceed 100 SF per sign. - The Crown Sign may not exceed 75% of the width of the mounting wall. - Internal or external illumination permitted. DISTRICT PROJECTING SIGNAGE One identifying "District Projecting Sign" per street frontage. This sign will: - Align to the defined district design standard. - Maintain 10' clearance above pedestrian sidewalks. - Not exceed 48 SF in sign face area with a maximum height of 12'. - Internal or external illumination permitted. CANOPY SIGNAGE A dimensional sign placed on a canopy or awning so that the display surface is parallel to the plane of the front building facade.
Maximum scale: 2' maximum height x 75% width of canopy. - One (1) sign per canopy at each public pedestrian point of entry. - May be mounted above, to the face of, or below the awning as long as 10' clearance above sidewalk is maintained. - Internal and external illumination are permitted. WALL SIGNAGE A sign applied to or mounted to the wall or surface of a building or structure, the display surface of which does not project more than 12" from the outside wall of the building or structure. - Maximum scale, relative to mounting surface: 50% maximum height x 75% maximum width with maximum SF for each sign is 32 SF. - Maximum of 3 wall signs. - May not be mounted higher than 18' above the sidewalk. - Internal or external illumination permitted. G.3 RETAIL AND OFFICE TENANT SIGNAGE Retail and office tenant signage should be considered an integrated piece of the storefront facade and designed for an active pedestrian streetscape. Lighting, materiality, scale and fabrication method should be thoughtfully considered to align with the character of the district and are subject to landlord approval. TOTAL SIGNAGE AREA (PER TENANT) In accordance with City of Roswell Municipal Code, tenants are permitted up to 1 SF of sign area per linear foot of street frontage or 32 SF, whichever is greater. Area allocation must be divided amongst all permitted sign types. Any district level signage applied to a tenant's street frontage does not affect their allowable sign area. PERMITTED SIGN TYPES AND QUANTITIES Tenants may choose to have any combination of the following sign types permitted they meet the below requirements: - Up to 1 Canopy Sign per street frontage. - Up to 3 Wall Signs when more than 1 public entry is present. - Up to 1 Shingle Sign per street frontage. - Up to 1 Projecting Sign per street frontage (buildings over 2 stories only). CROWN (TOP OF BUILDING) SIGNAGE A wall sign extending no more than 3' from the building facade located on the upper horizontal band of a building. Crown signage will be permitted within the district only for buildings two stories or higher that are occupied by a single business and must adhere to the following requirements: - One (1) Crown Sign is permitted per building. - The tenant is allowed up to 1 SF per linear foot of street frontage in total signage per street frontage, the Crown Sign will count towards this total. - The Crown Sign may not exceed 75% of the width of the mounting wall. - Internal or external illumination permitted.
CANOPY SIGNAGE A dimensional sign placed on a canopy or awning so that the display surface is parallel to the plane of the front building facade. - Maximum scale: 2' maximum height x 75% width of canopy. - 1 sign per canopy, except where two business share a single canopy. In this case, each tenant is permitted 1 sign up to 33% width of canopy. - May be mounted above, to the face of, or below the awning as long as 10' clearance above sidewalk is maintained. - Internal and external illumination are permitted. WALL SIGNAGE A sign applied to or mounted to the wall or surface of a building or structure, the display surface of which does not project more than 12" from the outside wall of the building or structure. - Maximum scale, relative to mounting surface: 50% maximum height x 75% maximum width with a maximum SF for each sign is 32 SF. - Maximum of 2 Wall Signs per business, except where more than 1 public entry is present then 1 additional Wall Sign will be permitted. - May not be mounted higher than 18' above the sidewalk. - Internal or external illumination permitted. PROJECTING SIGNAGE A sign applied to or mounted to the wall or surface of a building or structure, the display surface of which projects 12" or more from the outside wall of the building or structure. - Maximum scale: 8' maximum height x 6' maximum projection. - · Only permitted on buildings 2 stories or higher. - One (1) projecting sign per business per street frontage. - Internal or external illumination permitted. SHINGLE SIGNAGE A small projecting sign that hangs from a bracket or support and is located over or near a building entrance. - Maximum scale: 3' maximum height x 3' maximum width not inclusive of decorative mounting hardware. - Must be mounted with the top of the sign face no higher than 14' and the base no lower than 10' from sidewalk. - One (1) shingle sign per business. - Illumination not permitted.
FIGURE G.1.1 DISTRICT IDENTIFICATION SIGNAGE, EXEMPLARY LOCATIONS NOTE: The above figure represents proposed Overlay Project 1 locations. It does not limit the approval of additional locations within this project for future projects within the overlay district.
FIGURE G.1.2 FREESTANDING DISTRICT WAYFINDING SIGNAGE, EXEMPLARY LOCATIONS NOTE: The above figure represents proposed Overlay Project 1 locations. It does not limit the approval of additional locations within this project for future projects within the overlay district.
a Resolution Supporting the DDA (Approval of Attachment: Hill St HSOD A Master Sign Plan Illustrated HILL STREET DISTRICT OVERLAY PROJECT 1 SIGNAGE DESIGN STRATEGY PREVIEW 10.14.2025
2 FOREWORD This presentation deck includes starting design intent for select sign types reflected in the drafted 'HILL STREET OVERLAY DISTRICT SIGNAGE GUIDELINES'. It is to be considered exemplary in nature and is subject to further definition of materiality, graphic hierarchy and form within the guidelines established. Details may be refined as site progress requires and leasing momentum dictates tenant mix and district needs.
3 PRIMARY DISTRICT SIGNAGE
4 PRELIMINARY LOCATION PLAN PRIMARY DISTRICT SIGNAGE
FREESTANDING DISTRICT IDENTIFIERS *EXEMPLARY ARTWORK ONLY, SUBJECT TO REFINEMENT WITHIN APPROVED GUIDELINES NOT TO SCALE FREESTANDING DISTRICT IDENTIFIER Exemplary Locale: Adjacent to Building B FREESTANDING DISTRICT IDENTIFIER + WAYFINDING Exemplary Locale: Hill Street x Ellis Street Artwork shown is understood to be exemplary in nature and is subject to evolution within the approved guidelines, including but not limited to design, scale, material and production method. Artwork is not to scale and may not be referenced or pulled for production. DESIGN INTENT NOTES - Hanging hard panel interchangeable signage system with header to feature 'Hill Street' - Post and bases to complement Roswellstandard lamp post - Development medallion to be applied to lamp post base to act as consistent development marker VISUAL REFERENCE
PROJECTING BUILDING IDENTIFIERS *EXEMPLARY ARTWORK ONLY, SUBJECT TO REFINEMENT WITHIN APPROVED GUIDELINES NOT TO SCALE Artwork shown is understood to be exemplary in nature and is subject to evolution within the approved guidelines, including but not limited to design, scale, material and production method. Artwork is not to scale and may not be referenced or pulled for production. DESIGN INTENT NOTES - Large and Small Standard: Custom fabricated projecting blade signage featuring a development medallion cut-out to serve as a visual connection to the Hill Street development while allowing for distinctive building identification - Parking Standard: Custom fabricated projecting blade signage to feature an internally illuminated circular topper to emphasize parking messaging
BUILDING MEDALLIONS \EXEMPLARY ARTWORK ONLY, SUBJECT TO REFINEMENT WITHIN APPROVED GUIDELINES NOT TO SCALE BUILDING MEDALLION—PRIMARY DESIGN INTENT NOTES - 'Pressed' building medallions to serve as a signature placemaking detail district-wide - · Crafted to complement architectural materials EXEMPLARY LOCATION REFERENCE** VISUAL REFERENCE Artwork shown is understood to be exemplary in nature and is subject to evolution within the approved guidelines, including but not limited to design, scale, material and production method. Artwork is not to scale and may not be referenced or pulled for production. Packet Pg. 119
UPRIGHT CROWN SIGNAGE *EXEMPLARY ARTWORK ONLY, SUBJECT TO REFINEMENT WITHIN APPROVED GUIDELINES NOT TO SCALE 240" CLUBHOUSE ROOF SIGNAGE—ILLUMINATED Exemplary Locale: Multi-Family Clubhouse Roof Facing Greenspace IN-APPLICATION ELEVATION—NIGHT VIEW Artwork shown is understood to be exemplary in nature and is subject to evolution within the approved guidelines, including but not limited to design, scale, material and production method. Artwork is not to scale and may not be referenced or pulled for production. DESIGN INTENT NOTES - High-impact placemaking opportunity serving as a prominent showcase of the Hill Street development - · Internally illuminated sign featuring Hill Street - Mounted on The Clubhouse with supporting metal framework for visibility towards the internal Greenspace VISUAL REFERENCE Packet Pg. 120
IMPACTFUL PLACEMAKING \EXEMPLARY ARTWORK ONLY, SUBJECT TO REFINEMENT WITHIN APPROVED GUIDELINES NOT TO SCALE BUILDING A PARKING SCREEN—FRONT VIEW TOP VIEW Exemplary Locale: Building A Parking Lot Fronting Atlanta Street ALTERNATIVE WITH DEVELOPMENT EXPRESSION \\_::**:::::::::::::::::::::::::::::: Artwork shown is understood to be exemplary in nature and is subject to evolution within the approved guidelines, including but not limited to design, scale, material and production method. Artwork is not to scale and may not be referenced or pulled for production. DESIGN INTENT NOTES - Custom perforated 'screen' to serve as an impactful placemaking opportunity along Atlanta Street and reducing visibility of office parking behind Building A - Alternative addition of Hill Street to be painted direct to substrate LOCATION REFERENCE VISUAL REFERENCE Packet Pg. 121
IN APPLICATION EXAMPLE BUILDING A \EXEMPLARY ARTWORK ONLY, SUBJECT TO REFINEMENT WITHIN APPROVED GUIDELINES NOT TO SCALE IN APPLICATION SCALE REFERENCE ONLY, NOT INDICATIVE OF FINAL DESIGN OR MOUNTING LOCATI ON**
IN APPLICATION EXAMPLE BUILDING G \EXEMPLARY ARTWORK ONLY, SUBJECT TO REFINEMENT WITHIN APPROVED GUIDELINES NOT TO SCALE IN APPLICATION SCALE REFERENCE ONLY, NOT INDICATIVE OF FINAL DESIGN OR MOUNTING LOCATI ON**
DISTRICT WAYFINDING
PRELIMINARY LOCATION PLAN FREESTANDING DISTRICT WAYFINDING
FREESTANDING WAYFINDING SIGNAGE STANDARDS *EXEMPLARY ARTWORK ONLY, SUBJECT TO REFINEMENT WITHIN APPROVED GUIDELINES NOT TO SCALE Artwork is not to scale and may not be referenced or pulled for production. PEDESTRIAN WAYFINDING Artwork shown is understood to be wholly conceptual in nature and is subject to evolution, including but not limited to design, scale, material and production method. DESIGN INTENT NOTES - Hanging hard panel signage system with standardized 'Hill Street' topper - Wayfinding panel to be customized to fit specific use cases within the district and connecting to the wider Roswell landscape (eg., Hil Street Directory signage, Roswell 'North-South Trail' Map, etc.) - Posts and bases to complement Roswellstandard lamp post - Development medallion to be applied to lamp post base to act as consistent development marker VISUAL REFERENCE Packet Pg. 126
IMPRINTED DISTRICT WAYFINDING *EXEMPLARY ARTWORK ONLY, SUBJECT TO REFINEMENT WITHIN APPROVED GUIDELINES NOT TO SCALE 24" HILL STREET STREET IDENTIFIER Present at all Pedestrian Crosswalks 'NORTH-SOUTH TRAIL' COMPASS ROSE Present at Primary District Pedestrian Entries Artwork shown is understood to be wholly conceptual in nature and is subject to evolution, including but not limited to design, scale, material and production method. Artwork is not to scale and may not be referenced or pulled for production. DESIGN INTENT NOTES - Cast metal panels to be embedded into sidewalks and crosswalks - Street Identifier: Intended to support the creation of a pedestrian-friendly development without adding visual clutter to the streetscape - Compass: Additional pedestrian wayfinding tool connecting development landmarks with Roswell's planned 'North-South Trail' and surrounding points of interest VISUAL REFERENCE Packet Pg. 127
16 MULTIFAMILY SIGNAGE
17 MULTIFAMILY SIGNAGE \EXEMPLARY ARTWORK ONLY, SUBJECT TO REFINEMENT WITHIN APPROVED GUIDELINES NOT TO SCALE**
18 MULTIFAMILY SIGNAGE LEASING OFFICE IN APPLICATION
19 DISTRICT SIGNAGE GUIDELINES
G.1 DISTRICT SIGNAGE In order to promote a sense of connected community within the district, the below guidelines outline allowances and requirements for district standard sign types, distinct from and not in conflict with tenant signage. These signs serve to define the district bounds, identify key district components, and complement the pedestrian-oriented design of the development. District signage is designed to enhance visitor experience and intended to integrate into the surrounding environment. It will create sense of continuity, character and permanence through intentional detailing, quality materials and traditional fabrication techniques to add visual interest and defined depth. DISTRICT FREESTANDING SIGNAGE The district will be permitted one freestanding "District Identification Sign" at each location noted in Figure G.1.1. These signs will: - · Align to the defined district design standard. - · Not exceed 10 SF in sign face area or 12' maximum height. - · Adhere to the required 10' setback from public roadways. - Not be used to identify or promote any singular business within the district or affect the allotted signage area for any tenant within the district. DISTRICT PROJECTING SIGNAGE Buildings with two stories or more within the district will be permitted one identifying "District Projecting Sign" per street frontage to identify primary district sites. These signs will: - · Align to the defined district design standard. - Maintain 10' clearance above pedestrian sidewalks. - Not exceed 48 SF in sign face area with a maximum height of 12'. - Not be used to identify any singular business within the building. - Not affect the allocated signage area for any tenant within the building. - Internal or external illumination permitted.
DISTRICT BUILDING MEDALLION A signature "District Building Medallion" may be applied selectively to common use buildings or other permanent structures. Designed to mimic a debossed stamp, the medallion should complement the material color palette of the building it is applied to and will follow the below guidelines: - Scale may not exceed 6' in height or 25% of the width or height, whichever is smaller, of the mounting facade. - No more than one medallion should be visible within the same pedestrian sight line. - No more than two medallions may be applied to a single building or structure. DISTRICT UPRIGHT CROWN SIGNAGE The district will be permitted one upright crown sign central to Overlay Project 1, mounted on the pitched roof of the clubhouse building and overlooking the interior green space as represented in Figure G.1.1. This sign will: - Not exceed 250 SF in sign face area. - Be securely affixed to a support structure painted to blend with the roof surface. - Be internally or externally illuminated. IMPACTFUL PLACEMAKING Impactful placemaking, ie. painted signage, decorative screening or other abstract treatments, will be permitted within the district. These expressions will be limited to a total SF less than 5% of the primary street facing building facade or 250 SF when freestanding. FREESTANDING DISTRICT WAYFINDING Complementing the City of Roswell standards, all freestanding wayfinding will follow the approved district design standard inclusive of specified post, base and hanging bracket arm. Exemplary locations represented in Figure G.1.2 may be amended to include additional or adjusted locations as determined. These signs will: - Adhere to a 5' setback from public and private roadways. - Not suspend over pedestrian sidewalks. - Not exceed 7' total height. - Not exceed 9 SF in sign face area.
IMPRINTED DISTRICT WAYFINDING Throughout the district, imprinted sidewalk wayfinding plaques will be utilized to support pedestrian wayfinding and will adhere to the approved district design standards. These signs will include: - Street identifying signage present at each end of all pedestrian crosswalks. - The compass rose present at primary pedestrian district entries noting the nearest district sites and/or neighboring City of Roswell points of interest. WALL MOUNTED DISTRICT WAYFINDING Where the built environment does not allow for freestanding signage, wall mounted wayfinding may be utilized. These signs must adhere to the district design standards and may not exceed 9 SF in sign face area. G.2 MULTIFAMILY RESIDENTIAL SIGNAGE The multifamily residential development within Overlay Project 1 will be permitted the following sign types. CROWN (TOP OF BUILDING) SIGNAGE A Wall Sign extending not more than 3' from the building facade located on the upper horizontal band of a building. These signs must adhere to the following requirements: - One (1) Crown Sign is permitted per street frontage, not to exceed 100 SF per sign. - The Crown Sign may not exceed 75% of the width of the mounting wall. - · Internal or external illumination permitted. DISTRICT PROJECTING SIGNAGE One identifying "District Projecting Sign" per street frontage. This sign will: - Align to the defined district design standard. - Maintain 10' clearance above pedestrian sidewalks. - Not exceed 48 SF in sign face area with a maximum height of 12'. - Internal or external illumination permitted.
CANOPY SIGNAGE A dimensional sign placed on a canopy or awning so that the display surface is parallel to the plane of the front building facade. - Maximum scale: 2' maximum height x 75% width of canopy. - One (1) sign per canopy at each public pedestrian point of entry. - May be mounted above, to the face of, or below the awning as long as 10' clearance above sidewalk is maintained. - Internal and external illumination are permitted. WALL SIGNAGE A sign applied to or mounted to the wall or surface of a building or structure, the display surface of which does not project more than 12" from the outside wall of the building or structure. - Maximum scale, relative to mounting surface: 50% maximum height x 75% maximum width with maximum SF for each sign is 32 SF. - · Maximum of 3 wall signs. - May not be mounted higher than 18' above the sidewalk. - Internal or external illumination permitted. G.3 RETAIL AND OFFICE TENANT SIGNAGE Retail and office tenant signage should be considered an integrated piece of the storefront facade and designed for an active pedestrian streetscape. Lighting, materiality, scale and fabrication method should be thoughtfully considered to align with the character of the district and are subject to landlord approval. TOTAL SIGNAGE AREA (PER TENANT) In accordance with City of Roswell Municipal Code, tenants are permitted up to 1 SF of sign area per linear foot of street frontage or 32 SF, whichever is greater. Area allocation must be divided amongst all permitted sign types. Any district level signage applied to a tenant's street frontage does not affect their allowable sign area.
PERMITTED SIGN TYPES AND QUANTITIES Tenants may choose to have any combination of the following sign types permitted they meet the below requirements: - Up to 1 Canopy Sign per street frontage. - Up to 3 Wall Signs when more than 1 public entry is present. - Up to 1 Shingle Sign per street frontage. - Up to 1 Projecting Sign per street frontage (buildings over 2 stories only). CROWN (TOP OF BUILDING) SIGNAGE A wall sign extending no more than 3' from the building facade located on the upper horizontal band of a building. Crown signage will be permitted within the district only for buildings two stories or higher that are occupied by a single business and must adhere to the following requirements: - One (1) Crown Sign is permitted per building. - The tenant is allowed up to 1 SF per linear foot of street frontage in total signage per street frontage, the Crown Sign will count towards this total. - The Crown Sign may not exceed 75% of the width of the mounting wall. - Internal or external illumination permitted. CANOPY SIGNAGE A dimensional sign placed on a canopy or awning so that the display surface is parallel to the plane of the front building facade. - Maximum scale: 2' maximum height x 75% width of canopy. - 1 sign per canopy, except where two business share a single canopy. In this case, each tenant is permitted 1 sign up to 33% width of canopy. - May be mounted above, to the face of, or below the awning as long as 10' clearance above sidewalk is maintained. - Internal and external illumination are permitted. WALL SIGNAGE A sign applied to or mounted to the wall or surface of a building or structure, the display surface of which does not project more than 12" from the outside wall of the building or structure. - Maximum scale, relative to mounting surface: 50% maximum height x 75% maximum width with a maximum SF for each sign is 32 SF. - Maximum of 2 Wall Signs per business, except where more than 1 public entry is present then 1 additional Wall Sign will be permitted. - May not be mounted higher than 18' above the sidewalk. - Internal or external illumination permitted.
25 Packet Pg. 137 Attachment: Hill St HSOD A Master Sign Plan Illustrated (Approval of a Resolution Supporting the DDA PROJECTING SIGNAGE A sign applied to or mounted to the wall or surface of a building or structure, the display surface of which projects 12" or more from the outside wall of the building or structure. - Maximum scale: 8' maximum height x 6' maximum projection. - Only permitted on buildings 2 stories or higher. - One (1) projecting sign per business per street frontage. - Internal or external illumination permitted. SHINGLE SIGNAGE A small projecting sign that hangs from a bracket or support and is located over or near a building entrance. - Maximum scale: 3' maximum height x 3' maximum width not inclusive of decorative mounting hardware. - Must be mounted with the top of the sign face no higher than 14' and the base no lower than 10' from sidewalk. - One (1) shingle sign per business. - Illumination not permitted.
26 FIGURE G.1.1 DISTRICT IDENTIFICATION SIGNAGE, EXEMPLARY LOCATIONS NOTE: The above figure represents proposed Overlay Project 1 locations. It does not limit the approval of additional locations within this project for future projects within the overlay district.
27 FIGURE G.1.2 FREESTANDING DISTRICT WAYFINDING SIGNAGE, EXEMPLARY LOCATIONS NOTE: The above figure represents proposed Overlay Project 1 locations. It does not limit the approval of additional locations within this project for future projects within the overlay district.
CONFIDENTIAL AND PROPRIETARY THIS PRELIMINARY CONCEPTUAL PREVIEW HAS BEEN CRAFTED FOR Hill Street District Overlay Project 1. Artwork shown is understood to be wholly conceptual in nature and is subject to evolution, including but not limited to design, scale, material and production method. Artwork is not to scale and may not be referenced or pulled for production. All concepts owned by the design firm until receipt of payment. 10.14.2025
Economic Impact Analysis Hill Street Mixed-Use Development Roswell, Georgia Prepared For: Prepared By: September 2025
Table of Contents 03 Project Summary 04 Analysis Assumptions 05 Project Impacts at a Glance 07 Executive Summary 13 Economic Impact Analysis 21 Halo Impact 30 Appendix The Roswell Downtown Development Authority engaged KB Advisory Group to conduct an economic impact analysis of its Hill Street mixed-use development proposal in downtown Roswell. This analysis quantifies the impacts of the planned construction, build-out, and future ongoing operations of the proposed development, as well as the other key components of this major project. The measured forecast impacts includes direct and indirect economic benefits, expressed in terms of earnings, jobs, and related variables. Further, this work assesses the potential local fiscal benefits of the development both during construction and at completion as a generator of sales taxes and related public revenues to Roswell, Fulton County, and the local school system. The following report highlights the research, analysis, and conclusions KB Advisory Group reached in this engagement and is based on inputs from the project development team, industry research, and an analysis of the local tax base and area economics. KB Advisory Group, Inc. 999 Peachtree Street NE, Suite 400 Atlanta, GA 30309 404.845.3550 www.kbagroup.com
Project Summary The proposed 6.acre Hill Street mixed-use development is located at the heart of Downtown Roswell along the key thoroughfares of Hill Street, Atlanta Street, and Ellis Street. If built as envisioned, the development will consist of: - 18,400 square feet of general retail; - 9,000 square feet of outdoor retail; - 15,400 square feet of restaurant; - 30,300 square feet of office; - 143 units of multifamily residential; - 16 units of townhomes; - A space structured parking deck. The primary focus of this report is to identify the potential economic and fiscal impacts that the construction and operation of the proposed mixeduse development will have to the local and regional economy and local public revenues (taxes and fees). Source: Urbanize Atlanta \This analysis considers the impacts of the construction of the parking deck but as it will be owned by the city, public revenues such as sales taxes and property taxes from operations are not considered.*
Analysis Assumptions for Hill Street Mixed-Use Project \$116.5 million Based on developer reported costs Stable Sales Tax Rates Across Fulton County MARTA: 1% ELOST: 1% LOST: 1% TSPLOST: .75% Forecasted Appraised Value at Project Completion \$74.8 million Forecasted Assessed Value at Project Completion \$29.9 million Based on research of tax bills for comparable projects delivered within Fulton County since 2020 Roswell Consistent Capture of Countywide Induced Economic Benefits Construction Period Wages & Employment: <1% Construction Period & Operational Output: 10% Operational Wages & Employment: 3% Fulton County LOST Dispensation: 7.6% Fulton County TSPLOST Dispensation: 14.2% Stable Property Tax Millage Rates for Roswell, Fulton County and Fulton County Schools Roswell: 4.94 Fulton County: 9.04 Fulton Schools: 17.08 Consistent Capture of County Sales Tax Dispensations to City of Roswell
Packet Pg. 145 Roswell Project Impacts at a Glance Roswell Spending Supported during construction \$55.2 million Roswell Annual Spending Supported upon completion \$10.5 million Stimulated spending within the City of Roswell Increased development momentum and visitation for Roswell. A boost to employment within the City of Roswell. Roswell Jobs Supported during construction 172 Roswell Annual Jobs Supported upon completion 200 Public Revenue Benefit to Roswell over the next ten years \$1.7 million New Visitors to Roswell upon completion 22,000 The Roswell Hill Street Mixed-Use project is poised to accrue significant benefits to the City of Roswell and the broader local economy during construction, after completion, and beyond. Significant increases in public revenues for the City of Roswell. Total Sales Taxes to City of Roswell during construction \$69,573 Roswell Annual Sales Taxes from Operations upon completion \$39,052 City of Roswell Property Taxes\* upon completion \$183,352 \$300,000Halo Benefit to City of Roswell. \Real and Personal Property Tax Revenue \Does not account for any potential tax incentives
Fulton County Project Impacts at a Glance \$1.4 millionHalo Benefit to Fulton County & Schools. Stimulated spending within the Fulton County economy. Spending Supported during construction \$79.8 million Annual Spending Supported upon completion \$16.3 million Public Revenue Benefit to Fulton County over the next ten years \$3.1 million to Fulton County Schools over the next ten years \$5.9 million Jobs Supported during construction 549 Annual Jobs Supported upon completion 273 Support for highquality employment.
Executive Summary Economic Impacts – City of Roswell The proposed development will provide a unique mixed-use community opportunity in downtown Roswell, adjacent to City Hall. The construction phase of the project will contribute to an estimated 172 new job opportunities within the City of Roswell specifically across a two-year build-out period. Upon completion, the development will provide benefits to the local economy and tax base, including 199 new permanent jobs within the City of Roswell specifically and \$10.5 million in spending on goods and services within the City alone. Total One-Time Economic Impacts to the City of Roswell Recurring New Annual Economic Impacts for the City of Roswel \$55.2 million \$10.5 million \$45.8 million \$12.6 million Jobs 172 200 ROSWELL DOWNTOWN DEVELOPMENT Packet Pg. 147
Packet Pg. 148 Executive Summary Economic Impacts – Fulton County The proposed development will provide a unique mixed-use community opportunity in downtown Roswell, adjacent to City Hall. The construction phase of the project will contribute to an estimated 549 job opportunities throughout the county across a two-year build-out period and \$46.6 million to countywide GRP. Upon completion, the development will provide benefits to the local economy and tax base, including almost 273 new permanent jobs throughout Fulton County and \$16.3 million in spending on goods and services countywide.
Economic Impact Analysis_092025(Approval of a Resolution Packet Pg. 149 Executive Summary Fiscal Impacts incentives \Real and Personal Property Tax Revenue \Does not account for potential tax Sales Taxes from Construction Sales Taxes from Operations Property Taxes\ at Build-Out Recurring New Annual Fiscal Benefits to City of Roswell \$34,786 \$39,053 \$183,352 Estimated based on Placer.ai data on visitation patterns to Southern Post before and after opening in the context of total visitation to the City of Roswell. 22,000 New Annual Visitors to the City of Roswell The Hill Street mixed-use development will have a significant positive impact on the economy of Roswell and Fulton County and will accrue noticeable fiscal benefits to the City, County, and Fulton County Schools. Sales Tax Impact During the construction period, Roswell's share of the County's LOST and TSPLOST sales taxes will amount to roughly \$34,786 annually, and at build out grows to an annual increase in public revenues of approximately \$222,405**. While this amount constitutes only around .1% of the City's 2025 operating budget, the project may serve as a catalyst for more substantial cumulative growth in the area surrounding the Hill Street project.
Executive Summary One-time Economic and Fiscal Benefits from Construction
Packet Pg. 151 Executive Summary On-going Economic and Fiscal Benefits from Operations The project's significant boost to public revenues through new annual property taxes will benefit both Fulton County and City of Roswell as well as Fulton Public Schools.
Executive Summary On-going Fiscal Benefits from Operations Fulton County MARTA \$214.000 Fulton County ELOST \$214,000 Fulton County LOST \$214,000 Roswell Share of LOST \$16,000 Fulton County TSPLOST \$160.500 Roswell Share of TSPLOST \$23.000 Packet Pg. 152
ECONOMIC IMPACT ANALYSIS Source: Urbanize Atlanta
Economic and Public Benefits Methodology To assess the project's overall effects, two measures of impact are addressed in this analysis: Economic Impacts—The economic growth that will occur in the local economy, in this case Fulton County, from the development's construction and annual operations using the Regional Input-Output Modeling System (RIMS II) maintained by the U.S. Bureau of Economic Analysis (BEA). The total economic impacts of the project result from the combination of direct, indirect and induced effects that it generates in the economy. The impacts are measured in terms of: - Output: Total annual sales of good and services produced in the region; - Gross Regional Product (GRP): Final value of the goods and services produced within the region and measures only the locally generated or "value added" portion of total sales: - Earnings: Total compensation earned by workers throughout the region due to the increase in economic activity, includes wages, salaries, and proprietors' income - Jobs: Total number of jobs throughout the region supported by the increase in economic activity The analysis separately addresses one-time impacts occurring during the construction phase, and the economic effects resulting from on-going operations of new businesses on the site, after development. Local Public Revenues —The taxes and other public revenues generated by the project that will go to local governments, in this case the City of Roswell, Fulton County, and Fulton County Schools. This report does not calculate changes in public service costs to accommodate the project. Direct Impacts On-Site The subsequent value of inputs Indirect Impacts in earnings, and/or the Region Induced Impacts in the Region Total Economic Impact purchased. jobs from supporting industries Value of purchases. earnings, and/or jobs supported by the additional spending from workers Packet Pg. 154 ADVISORY GROUP
Economic Impact from Construction KB received an estimated construction budget from City of Roswell and used the itemizations to apportion them between hard costs (used for site and vertical construction, excluding land acquisition) and soft costs (inclusive of tenant allowances and leasing commissions). KB used its own approximations for how much of each type of cost went towards the purchasing of goods and services and towards payroll. This analysis used a year construction period assumption for full build-out. To more accurately depict total local impacts, KB estimated how much of the construction budget would take place within Fulton County. Given the nature of many of the services captured under soft costs, the local share of this component of the budget is lower than for hard costs. Proposed Development Budget Component % Local Local Direct Impact Total Construction Cost \$116,500,000 Hard Costs \$81,550,000 Purchases of Goods and Services 55% \$44,852,500 85% \$38,124,625 Payroll 45% \$36,697,500 90% \$33,027,750 Annual Jobs \$138,000 133 90% 120 Soft Costs \$34,950,000 Purchases of Goods and Services 55% \$19,222,500 75% \$14,416,875 Payroll 45% \$15,727,500 80% \$12,582,000 Annual Jobs* \$123,000 64 80% 51 Total Direct Costs \$52,541,500 Total Direct Earnings \$45,609,750 Total Direct Annual Jobs 171 \Inclusive of sitework Source: KB Advisory Group with data from City of Roswell, U.S. Census Bureau of Labor Statistics \Inclusive of tenant allowance and leasing commissions \*Estimated based on Fulton County's average wage (Q3 2024)
Economic Impact from Construction The direct spending to construct the Hill Street mixed-use development and the resulting spending from supporting industries and worker spending will create a total economic impact countywide of: - \$79.8 million in total spending on goods and services, \$55.2 million of which is estimated to occur within the City of Roswell - \$65.7 million in total earnings, \$45.7 million of which will be earned by workers in the City of Roswell - 275 total jobs, 172 of which will be located within the City of Roswell Est imated Fulton County Econon nic Impacts fr om Project t Construction Spending Direct Impa cts Multiplier ·s Total I Economic Imp acts Rosv vell Total Impa cts Industry Allocation of Development Budget Output (\$) Earnings (\$) Annual Jobs Output (\$) Earnings (\$) Annual Jobs Output (\$) Earnings (\$) Annual Jobs Output (\$) Earnings (\$) Annual Jobs Construction Hard Costs \$38,124,625 \$33,027,750 120 1.4936 1.4091 1.4998 \$56,942,940 \$46,539,403 179 Construction Soft Costs \$14,416,875 \$12,582,000 51 1.5867 1.5205 1.8596 \$22,875,015 \$19,130,931 95 Total \$52,541,500 \$45,609,750 171 \$79,817,955 \$65,670,334 275 Roswell Hard Cost Capture Rate 100% 100% 100% 10% 0.4% 0.4% Roswell Soft Cost Capture Rate 100% 100% 100% 10% 0.7% 0.7% Roswell Hard Cost Impact \$38,124,625 \$33,027,750 120 \$1,854,765 \$52,640 0.23 \$39,979,390 \$33,080,390 120 Roswell Soft Cost Impact \$12,582,000 51 \$833,649 \$47,920 0.32 · · · · \$12,629,920 52 Roswell Total Impact \$52,541,500 \$45,609,750 171 \$2,688,413 \$100,559 1 \$55,229,913 \$45,710,309 172 *Some figures do not sum perfectly due to rounding Source: KB Advisory Group with data from U.S. Bureau of Economic Analysis, RIMS II-- for Fulton County, GA
One-time Public Revenues from Construction The construction phase of this development is estimated to generate almost \$2 million in one-time public revenues. - Locally purchased construction materials is estimated to generate \$38.1 million in retail sales. - These sales will create over \$1.4 million in local sales tax revenues. - Construction-related permits and fees are estimated to generate another \$582,500 in public revenues. - The public revenues that would flow to the City of Roswell specifically during the construction period amount to: - An additional \$69,573 in sales tax allocations from Fulton County - Roughly \$436,875 from permits in fees assuming that 75% of these revenues are collected by the City directly Direct Public Revenues from Construction Est. Retail Sales Revenue from Construction Period Total Roswell Benefit Construction Material Purchases \$38,124,625 Fulton County MARTA @ 1% \$381,246 Fulton County ELOST @ 1% \$381,246 Fulton County LOST @ 1% \$381,246 \$28,975 Fulton County TSPLOST @ .75% \$285,935 \$40,598 Total Public Retail Sales Revenue \$1,429,673 \$69,573 Development Permits and Fees 0.50% \$582,500 \$436,875 Total Public Revenues from Construction \$2,012,173 \$506,448 \Direct local hard costs + tenant improvements Source: KB Advisory Group with data from the Georgia Department of Revenue, City of Roswell \*Estimated at 0.5% of total construction budget (excl. land costs)
On-going Economic Impact from Operations The Hill Street mixed-use development will have the following on-site impacts: - Based on average sf/employee estimates by building use from the Institute of Transportation Engineers, KB estimated that the mix of uses will employ a total of 395 workers on-site – 140 office workers and 245 retail/F&B workers. - Assuming countywide average wages for these industries, total employ payroll would exceed \$25 million. - City of Roswell provided KB with their own projections for sales/sf based on their tenant type expectations. The various retail and restaurant segments of the development are anticipated to generate \$21.4 million in taxable sales in its first year of build-out. Direct Impacts from Annual Operations at Full Build-Ou it Employment F&B 21 Annual Payroll (@ \$30,000) \$8,820,00 General Retail 3 Annual Payroll (@ \$48,000) \$2,205,00 Multifamily Leasing 1 Annual Payroll (@ \$119,000) \$1,190,00 Office 14 Annual Payroll (@ \$90,000) \$12,786,66 Total Employees 39 Total Employee Payroll \$25,001,66 Revenues from Operations Sales/SF F&B \$500 \$12,200,00 General Retail \$500 \$9,200,00 Taxable Sales from Operations \$21,400,00 Source: KB Advisory Group with data from Institute of Transportation Engineers (USDOE), U.S. Bureau of Labor Statistics (Q2 2024), City of Roswell Packet Pg. 158
On-going Economic Impact from Operations To properly determine the recurring "multiplier" effects, only the output and jobs that are to be considered "net new" within Fulton County are to be used with the RIMS II multipliers. Because of Roswell's proximity to the border of Cobb County and Downtown Roswell's regional draw, KB utilized Placer.ai data to develop the assumption that 46% of the economic output would be new to Fulton County and that half of the workers would already live and work within the county. The net new direct spending during operation of the commercial spaces and the resulting spending from supporting industries and worker spending will create an annual recurring countywide economic impact of: - \$16.3 million in new total spending on goods and services - \$17.3 million in new total earnings - 273 new permanent jobs The direct spending during construction is estimated to contribute to \$9 million in Gross Regional Product within Fulton County. Estimated Fulton County Economic Impacts from Operations Roswell Share of Roswell Induced Total Rosw Direct Impact Value Multipliers Induced Impact Economic Impact Induced Impact Impact Impa Output \$9,844,000 \$6,461,942 \$16,305,942 10% \$636,900 \$10,480,90 F&B \$5,612,000 1.6729 \$3,776,315 \$9,388,315 10% \$372,200 \$5,984,20 General Retail \$4,232,000 1.6346 \$2,685,627 \$6,917,627 10% \$264,700 \$4,496,70 Earnings \$12,500,833 1.3802 \$4,752,567 \$17,253,400 3% \$124,749 \$12,625,5 Jobs 198 1.3799 75 273 3% 2 20 Source: KB Advisory Group with data from Institute of Transportation Engineers (USDOE), U.S. Bureau of Labor Statistics (Q2 2024), U.S. Bureau of Economic Analysis, RIMS II-- for Fulton County, GA
On-going Annual Public Revenues from Operations Hill Street mixed-use The development is estimated to generate over \$1.9 million in continued annual public revenues upon completion. - Based on the current site plan current values and comparable properties, the development is expected to have a tax appraised value of \$74.8 million, \$72.8 million more than its existing tax appraised value. - This will generate nearly \$1.2 million in annual property tax revenues for City of Roswell. Fulton County, and Fulton County Schools. - Sales tax revenues from onsite retail are estimated to generate \$802,500 in annual public revenues. ublic Revenues from Operations roperty Taxes Appraised Assessed otal Property Value \$74,820,000 \$29,928,000 Retail/Restaurant \$11,967,606 \$4,787,042 Office \$8,472,394 \$3,388,958 Multifamily Residential \$41,580,000 \$16,632,000 Townhomes \$12,800,000 \$5,120,000 fillage Rates Millage Total Revenue Fulton County 0.00904 \$270,549 Fulton County Schools 0.01708 \$511,170 City of Roswell 0.004949 \$148,114 otal Real Property \$929,833 otal Personal Property \$221,223 otal Roswell Property Taxes \$183,352 otal Annual Property Taxes at Build-Out \$1,151,056 ales Taxes st. Annual Retail Sales from Operations \$21,400,000 Fulton County MARTA @ 1% \$214,000 Fulton County ELOST @ 1% \$214,000 Fulton County LOST @ 1% \$214,000 Fulton County TSPLOST @ .75% \$160,500 nnual Sales Tax Revenue at Build-Out \$802,500 oswell Share of Fulton County LOST @ 7.6% Dispersion of County Collections \$16,000 oswell Share of Fulton County TSPLOST @ 14.2% Dispersion of County Collections \$23,000 stimated Roswell Share of Fulton County Sales Tax Dispersions \$39,000 otal Public Revenues from Operations at Build-Out \$1,953,556 otal Public Revenues to City of Roswell from Operations at Build-Out \$222,352 Inclu • S S S Packet Pg. 160
HALO IMPACT Source: Urbanize Atlanta
A catalytic development project can stimulate additional growth and value beyond its own limits. A catalytic development will provide new homes, stores, offices and entertainment options that will generate new economic activity, both from people who live and work at the new project, but also from people who visit the area because of interesting stores, shops and things to do. A catalytic development project can also demonstrate that an area's market is strong and capable of supporting additional new or different land uses, inspiring nearby property owners to reinvest in, or redevelop, their properties. Increased demand for homes, offices and retailers can also have a positive impact on the revenue potential, rents, and sale prices of nearby buildings. This can lead to upward trends in property tax assessments, and property tax revenue, from nearby buildings. These outcomes are known as a "Halo Effect", meaning that the properties around a catalytic development site can benefit from being nearby in the project itself. The following section forecasts the potential Halo Effect impacts of the Hill Street Mixed-Use project, for properties within ¼ mile of the project site.
Impact Area A ¼ mile around the Hill Street Mixed -Use Development site was used for the potential impact area boundary. A ¼ mile radius was utilized under the assumption that impact is more likely to be observed among near parcels more than more distant parcels. This area contains approximately: - 366 parcels - 237 acres - \$320 million total tax appraised value.
Exempt Parcels However, approximately 60% of the land acreage and 30% of the tax appraised value of this area are dedicated to tax exempt properties. Excluding these properties, the impact area has a tax appraised value of \$228 million .
The Halo Effect of the Hill Street Mixed -Use Development by looking at two different phenomenon: - 1. Property Value Growth: Roswell Tax Digest has grown at a rate of 4.3% annually over the last 10 years. What if this catalytic development project stimulates stronger growth within 1/4 mile of the project? How might that impact property values, Roswell tax digest, and property tax revenues over the next ten years? - 2. Increased Redevelopment: Some of the properties around the development site are not likely to be redeveloped over the next 10 years. Some are probably going turn -over soon, with or without catalyst development. A successful redevelopment project can inspire property owners, developers and investors to invest in or redevelop their properties. What if the new development project increases the probability of nearby properties redeveloping over the next 10 years by just 5%? How might that impact property values, Roswell tax digest, and property tax revenues over the next ten years?
Property Value Growth: Collectively, all of the properties within ¼ mile of the development site have a total property value (appraised) of \$319.6 million and assessed (non-exempt, taxable) value of \$87.7 million. Based on a year historic growth trend, that value can be expected to grow at 4.3% annually. It is reasonable to assume that a catalytic development would inspire nearby properties to grow at 1.5 times that rate, or 6.45% over the next ten years. That would result in: - \$110 million in additional property value. - \$30 million in additional tax digest. - \$939,330 in new property taxes to Fulton County, Fulton County Schools, and Roswell over the next ten years. Roswell Tax Digest has grown at an average annual rate of 4.3% over the last 10 years. What if this catalytic development project stimulates stronger growth within 1/4 mile of the project? In this case the guiding assumption is that the Halo-area growth will be 1.5 times the average city-wide growth. Baseline No Build Value Added Due to Increased Property Value Growth Scenario 1/4 Mile Halo Scenario Halo Benefit Current Roswell Growth 2024 4.30% _ Halo-driven local growth rate (1.5x) 6.45% 2025 Value Appraised \$319,551,200 2025 Value Assessed \$87,674,200 2035 Value Appraised \$486,836,955 \$597,031,314 \$110,194,360 2035 Value Assessed \$133,571,836 \$163,805,496 \$30,233,660 * \ Sum of property values within 1/4 mile of the development site, including the development site Baseline No Build Property Taxes Collected 2035 Scenario 1/4 Mile Halo Scenario Halo Benefit Fulton County \$1,207,489 \$1,480,802 \$273,312 Fulton County Schools \$2,281,407 \$2,797,798 \$516,391 City of Roswell \$661,047 \$810,673 \$149,626 Net new property tax revenue 2035 \$4,149,943 \$5,089,273 \$939,330 Average Annual Property Tax Revenue 2035 \$414,994 \$508,927 \$93,933 \Includes General Fund and Bond Millages \\Includes General Fund and Bonds Millages Source: KB Advisory Group, Georgia Department of Revenue, CoStar, Fulton County Tax Assessor, City of Roswell
This analysis identified properties that are likely to see redevelopment in the area by making a qualitative review based on land use, vacancy, building age, lot size, and location. The map to the right shows an assessment of how likely parcels within ¼ mile are to be redeveloped, with the possibility further enhanced by success of the Hill Street development. Probability of Redevelopment by 2035 (Within ¼ Mile): LOW 0~20% probability of redevelopment by 2035 Moderate -Low 20~40% probability of redevelopment by 2035 Moderate -High 40~60% probability of redevelopment by 2035 HIGH 60~80% probability of redevelopment by 2035 Value added due to Increased Development Share of Property in 1/4 radius Property in 1/4 radius (2025) Probability that a nearby property will redevelop 2026 -2035 Low (~20% Probability) 14% \$15,996,000 Moderate -Low (~40% Probability) 48% \$118,983,000 Moderate -High (~60% Probability) 36% \$86,735,300 High (~80% Probability) 4% \$6,668,600 Total Appraised Value within 1/4 Mile (Non -Exempt) 100% \$228,382,900 `
Redevelopment Further, the analysis forecasts what would happen if the Hill Street Mixed-Use Development stimulates the local real estate market increasing the likelihood of nearby properties experiencing redevelopment increasing by 500 basis points (i.e. a 20% probability was increased to a 25% probability of redevelopment by 2035 due to catalytic impact). Without the catalytic redevelopment: The appraised value of the halo area would increase by \$420.1 million over 10 years due to redevelopment. With a 5% increase due to the catalytic effect of the Hill Street Mixed-Use Development project, that amount of redevelopment would increase by \$25.3 million, to \$284.7 million. Base property to redevelop 2035 Base case - Normal probability of Redevelopment 1/4 Mile Halo +5% Increased probability of redevelopment Halo Benefit Low (~20% Probability) \$40,685,504 \$51,897,701 Moderate-Low (~40% Probability) \$294,661,674 \$325,177,073 Moderate-High (~60% Probability) \$279,902,333 \$299,554,569 High (~80% Probability) \$33,276,094 \$35,201,199_ Appraised Value after Redevelopment \$648,525,606 \$711,830,542 \$63,304,9 Assessed Value after Redevelopment \$259,410,242 \$284,732,217 \$25,321,9 - Property Taxes Collected 2035 Base case - Normal probability of Redevelopment 1/4 Mile Halo +5% Increased probability of redevelopment Halo Benefit Fulton County \$2,345,069 \$2,573,979 \$228,9 Fulton County Schools \$4,430,727 \$4,863,226 \$432,4 City of Roswell \$1,283,821 \$1,409,140 \$125,3 Net new property tax revenue 2035 \$8,059,617 \$8,846,345 \$786,72 Average Annual Property Tax Revenue 2035 \$805,962 \$884,635 \$78,6 Source: KB Advisory Group, Georgia Department of Revenue, CoStar, Fulton County Tax Assessor, City of Roswell This would result in: - \$25.3 million in additional tax digest. - \$786,728 in new property taxes to Fulton County, Fulton County Schools, and City of Roswell over the next ten years. Packet Pg. 168
Summary What are the combined benefits of property value growth and increased redevelopment catalyzed by the new project over the next ten years (2035)? The modestly increased property value growth and redevelopment potential catalyzed by the successful development of the Hill Street Mixed-Use Development project would combine to produce significant Halo impacts over ten years. Property Value Increase (in \$ Millions) Baseline Halo S cenario Halo Benefit Property Value Increase from Value Growth \$486.8 \$597.0 \$110.2 Property Value from Redevelopment \$648.5 \$711.8 \$63.3 Total Property Value \$1,135.4 \$1,308.9 \$173.5 Tax Digest Increase (in \$ Millions) Baseline Halo Scenario Halo Benefit Tax Digest from Value Growth \$133.6 \$163.8 \$30.2 Tax Digest from Redevelopment \$259.4 \$284.7 \$25.3 Total Tax Digest \$393.0 \$448.5 \$55.6 Property Tax Revenue (in \$ Millions) Baseline Halo S cenario Halo Benefit Fulton County \$3.6 \$4. \$0.5 Fulton County Schools \$6.7 \$7.7 \$0.9 City of Roswell \$1.9 \$2.2 \$0.3 Net new property Tax Revenue 2035 \$12.2 \$13.9 \$1.7 Average Annual Property Tax Revenue 2035 \$1.2 \$1.4 \$0.2 \Includes General Fund and Bond Millages Source: KB Advisory Group, Georgia Department of Revenue, CoStar, Fulton County Tax Assessor, City of Roswell - \$173.5 million in additional property value. - \$55.6 million in additional tax digest. - \$1.7 million** in new property taxes to Fulton County, Fulton County Schools, and Roswell over the next ten years.
APPENDIX Source: Urbanize Atlanta
Comparative Parcels for Analysis Retail Parcel ID Address Year Built Assessed (2024) SF (GLA) Assessed Value/SF The Maxwell Retail 12 258406950815 13 MAIN ST 2021 \$4,069,600 37,347 \$108.97 6065 N Point Pky 12 273007540469 6065 NORTH POINT PKWY 2021 \$1,119,320 24,500 \$45.69 6600 Alastair Dr - Aria Village 17 0034 LL2274 6500 ARIA BLVD SANDY SPRINGS 2020 \$2,040,000 30,000 \$68.00 12680 Crabapple Rd - Building E 22 400111350357 12640 CRABAPPLE RD MILTON 2017 \$1,460,000 21,600 \$67.59 2 Crabapple Rd - CM West - Building M+P 22 400011360514 12608 CRABAPPLE RD MILTON 2021 \$3,000,000 12,210 \$245.70 Office Parcel ID Address Year Built Assessed (2024) SF (RBA) Assessed Value/SF Kimball Place 12 284208010483 100 Kimball Pl 2021 \$6,942,000 128,540 \$54.01 Jackson Healthcare 12 285008060578 2655 NORTHWIND PKY 2019 \$10,352,000 306,000 \$33.83 Founders Hall 22 482312690377 53 S MAIN ST 2022 \$698,360 9,000 \$77.60 55 Roswell St - Alpharetta Provisions 22 482312690302 55 ROSWELL ST 2020 \$2,800,000 34,000 \$82.35 12650 Crabapple Rd - Building G 22 400011352693 CRABAPPLE RD MILTON 2021 \$493,800 20,000 \$24.69 12650 Crabapple Rd - Building F 22 400011352685 12630 CRABAPPLE RD MILTON 2021 \$2,464,720 11,296 \$218.19 12654 Crabapple Rd - CM West - Building L 22 400011360514 12608 CRABAPPLE RD MILTON 2021 \$3,000,000 18,000 \$166.67 Residential Parcel ID Address Year Built Assessed (2024) SF Assessed Value/SF 12620 Itaska Walk - Building K 22 400011352693 CRABAPPLE RD MILTON 2021 \$493,800 50,000 \$9.88 The Alastair at Aria Village 17 0035 LL6126 1 MERCEDES BENZ DR SANDY SPRINGS 2019 \$18,262,830 355,000 \$51.44 Adley City Springs 17 008900090603 6075 ROSWELL RD SANDY SPRINGS 2020 \$35,645,840 275,000 \$129.62
KB ADVISORY GROUP TERMS and LIMITING CONDITIONS - Accuracy of Report: Every reasonable effort has been made to ensure that the data developed in this assignment reflect the most accurate and timely information possible and is believed to be reliable. This consulting assignment was based on estimates, assumptions, and other information developed by KB Advisory Group ("KBA") from its independent research efforts, general industry knowledge, and consultations with the client for this assignment and its representatives. No responsibility is assumed for inaccuracies in reporting by the client, its agents or representatives, or any other data source used in preparing or presenting this study. The research and reports are based on information that is current as of the date of the report. KBA assumes no responsibility to update the information after the date of the report. The research may contain prospective financial information, estimates, or opinions that represent our view of reasonable expectations at a particular point in time, but such information, estimates, or opinions are not offered as predictions or assurances that a particular outcome will occur. Actual results achieved during the period covered by our prospective analysis may vary from those described in our research and report, and variations may be material. Therefore, nor warranty or representation is made by BKA that any of the projected values or results contained in the work product from this assignment will actually be achieved. - Usage of Report: The research product may not be used, in whole or in part, in any public or private offering of securities or other similar purposes by the client without first obtaining the prior written consent of KB Advisory Group. 404.845.3550 www.kbagroup.com
Transportation Analysis Roswell Hill Street Mixed-Use City of Roswell, Georgia August 2025 Revision 2 (original submittal May 2025; Rev 1 July 2025) Prepared for: City of Roswell Prepared by: Kimley-Horn and Associates, Inc. 1200 Peachtree Street NE, Suite 800 Atlanta, GA 30309 015620021
Transportation Analysis Roswell Hill Street Mixed-Use City of Roswell, Georgia August 2025 Revision 2 (original submittal May 2025; Rev 1 July 2025) Prepared for: City of Roswell Prepared by: Kimley-Horn and Associates, Inc. 1200 Peachtree Street NE, Suite 800 Atlanta, GA 30309
Kimley»Horn CONTENTS 1.0 Introduction 2.0 Study Area Determination 3.0 Existing Traffic Conditions4 4 3.1 Roadway Conditions 4 3.2 Vehicular Volumes 5 3.3 Parking 7 3.4 Crash History 7 4.0 Projected Background (Non-Project) Traffic9 4.1 Future Roadway/Intersection Projects 9 5.0 Project Traffic1 1 5.1 Project Site Access 1 5.2 Trip Generation 1 5.3 Trip Distribution and Assignment 2 6.0 Level-Of-Service Analysis 7.0 Signal Warrant Analysis 8.0 GDOT State Route COnsiderations 9.0 Conclusion and Recommendations 9.1 Site Access Improvement Recommendations 3
Kimley≫Horn FIGURES Figure 1: Site Location Map Figure 2: Site Aerial Figure 3: Existing 2024 Traffic Conditions Figure 4: 2028 No-Build Traffic Conditions Figure 5: Parking and Circulation Diagram Figure 6: Residential Trip Distribution and Assignment Figure 7: Office Trip Distribution and Assignment Figure 8: Retail/Restaurant Trip Distribution and Assignment Figure 9: Retail/Restaurant Pass-By Trips Figure 10: Project Trips Figure 11: 2028 Build Traffic Conditions TABLES Table 1: Peak Hour Summary 5 Table 2: Atlanta Street (SR 9) at Hill Street/Ramsey Street Crash History 7 Table 3: Hill Street Between Atlanta Street (SR 9) and Ellis Street Crash History 8 Table 4: Ellis Street between Hill Street and Oak Street Crash History 8 Table 5: Oak Street between Atlanta Street (SR 9) and Ellis Street Crash History 8 Table 6: Hill Street Mixed-Use Development Trip Generation 12 Table 7: Level-of-Service Summary 21 Table 8: Traffic Signal Volume Warrant Analysis Summary 23
APPENDICES Appendix A: Site Plan Appendix B: Traffic Count Data Appendix C: Crash History Data Appendix D: Growth Rate Appendix E: Programmed Project Fact Sheet Appendix F: Trip Generation Worksheet and Internal Capture Appendix G: Intersection Volume Worksheets Appendix H: Synchro Analysis Reports Appendix I: Traffic Signal Warrant Analysis Appendix J: RCUT Rerouted Volumes
Kimley » Horn 1.0 INTRODUCTION This report presents the analysis of the anticipated traffic impacts associated with the Hill Street Roswell Mixed-Use development, which is expected to be completed in 2028 (referred to herein as "build-out year"). Per the Zoning Site Plan dated 3/18/2025, the site proposes 141 multifamily residential units, 16 townhomes, and 71,100 SF of commercial space, including outdoor space and amenities. The commercial space is further broken out into Office (30,300 SF), Retail (18,400 SF), and Restaurant (22,400 total SF including 15,400 SF indoor and 7,000 SF outdoor space). The approximate acre site is located south of Hill Street across from City Hall in the City of Roswell, Georgia. The proposed development will be served by five (5) proposed driveways. One connecting to Hill Street, three connecting to Ellis Street, and the other connecting to Community Circle. To streamline and provide a conservative site access analysis, all Ellis Street entering/exiting traffic will be studied at the single primary driveway accessing the parking deck. This report will summarize the analyses of the following three (3) scenarios: - 1. Existing 2024 Traffic Conditions - 2. 2028 No-Build Traffic Conditions - 3. 2028 Build Traffic Conditions Figure 1 provides a location map of the project site. Figure 2 provides an aerial image that captures the project site and the study roadway network. A site plan is also included in Appendix A. 2.0 STUDY AREA DETERMINATION The study area consists of the following intersections: - 1. Atlanta Street (SR 9) at Magnolia Street/Canton Street (existing traffic signal) - Atlanta Street (SR 9) at Hill Street/Ramsey Street (existing side-street stop-control) - 3. Atlanta Street (SR 9) at Oak Street (existing traffic signal) - 4. Atlanta Street (SR 9) at Oxbo Street (existing traffic signal) - 5. Hill Street at Ellis Street (existing side-street stop-control) - 6. Hill Street at Forrest Street (existing all-way stop-control) - 7. Norcross Street at Forrest Street/Fraser Street (existing traffic signal) - 8. Site Driveway A at Hill Street (proposed side-street stop-control) - 9. Site Driveway B at Ellis Street (proposed side-street stop-control) - 10. Site Driveway C via Community Circle/Bush Street at Oak Street (existing side-street stop-control) This analysis considers Atlanta Street (SR 9), Ellis Street, Forrest Street, Canton Street and Bush Street as having a north-south orientation. Additionally, Magnolia Street, Hill Street, Oak Street and Oxbo Road are considered to have an east-west orientation. It is important to note that at Intersection 1 Atlanta Street (SR 9) changes from a north south orientation to an east-west orientation.
Kimley»Horn Hill Street Mixed Use Development Transportation Analysis Site Aerial Figure 2 Page 3 Packet Pg. 180
3.0 EXISTING TRAFFIC CONDITIONS 3.1 ROADWAY CONDITIONS Atlanta Street (SR 9) is an undivided four-lane principal arterial with a posted speed limit of 35 MPH. GDOT counts taken south of Oak Street indicated an annual average daily traffic (AADT) volume of approximately 29,700 vehicles per day in 2023. Magnolia Street is an undivided two-lane minor arterial with a posted speed limit of 35 MPH. GDOT counts taken east of Georgetown Chase indicated an AADT volume of approximately 14,500 vehicles per day in 2021. Norcross Street is an undivided two-lane minor arterial with a posted speed limit of 35 MPH. GDOT counts taken east of Forrest Street indicated an AADT volume of approximately 11,400 vehicles per day in 2023. Canton Street is an undivided two-lane minor arterial with a posted speed limit of 25 MPH. GDOT counts taken north of Plum Tree Street indicated an AADT volume of approximately 11,000 vehicles per day in 2023. Ramsey Street is an undivided two-lane local road with a posted speed limit of 25 MPH. AADT is unknown as there are no GDOT count stations along Ramsey Street. Hill Street is generally an undivided two-lane local road with a posted speed limit of 25 MPH. There is a median between Atlanta Street (SR 9) and Ellis Street. AADT is unknown. Oak Street is an undivided two-lane local road with a speed limit assumed to be 25 MPH. AADT is unknown. Oxbo Road is an undivided two-lane local road with a posted speed limit of 25 MPH. AADT is unknown. Forrest Street is an undivided two-lane local road with a posted speed limit of 25 MPH. AADT is unknown. Fraser Street is an undivided two-lane local road with a posted speed limit of 25 MPH. AADT is unknown. Ellis Street is an undivided two-lane local road with a speed limit assumed to be 25 MPH. AADT is unknown. Bush Street is an undivided two-lane local road with a speed limit assumed to be 25 MPH. AADT is unknown. Community Circle is an undivided two-lane local road with a speed limit assumed to be 25 MPH. AADT is unknown.
3.2 VEHICULAR VOLUMES Intersection turning movement volume counts were collected on a typical day while schools were in session on Thursday, October 10, 2024. For Intersection 2, Atlanta Street (SR 9) at Ramsey Street and Hill Street, a hour turning movement count was conducted. The remaining intersections included turning movement counts for the peak AM period (7:00 AM to 9:00 AM) and the peak PM period (4:00 PM to 6:00 PM). Data at Intersection 10 was collected on a typical day while schools were in session on Wednesday, April 16, 2025. The AM and PM peak hours for the study intersection are shown in Table 1. Complete traffic count data is provided in Appendix B. Table 1: Peak Hour Summary Intersection AM Peak Hour PM Peak Hour Atlanta Street (SR 9) at Magnolia Street and Canton Street 7:45 AM - 8:45 AM 5:00 PM - 6:00 PM 2. Atlanta Street (SR 9) at Ramsey Street and Hill Stree t 7:45 AM - 8:45 AM 5:00 PM - 6:00 PM 3. Atlanta Street (SR 9) at Private Driveway and Oak St reet 7:45 AM - 8:45 AM 5:00 PM - 6:00 PM 4. Atlanta Street (SR 9) at Oxbo Street 7:45 AM - 8:45 AM 5:00 PM - 6:00 PM 5. Hill Street at Ellis Street 7:45 AM - 8:45 AM 4:30 PM - 5:30 PM 6. Hill Street at Forrest Street 7:30 AM - 8:30 AM 4:45 PM - 5:45 PM 7. Norcross Street at Fraser Street and Fraser Street 7:45 AM - 8:45 AM 5:00 PM - 6:00 PM 10. Oak Street at Bush Street and Community Circle 8:00 AM - 9:00 AM 4:45 PM - 5:45 PM Figure 3 illustrates the Existing 2024 peak hour traffic volumes at the study intersection as well as the existing roadway geometry (intersection layout).
3.3 PARKING The proposed site plan includes 570 spaces, which meets the minimum requirement of 548 spaces per Downtown Roswell parking requirements. 3.4 CRASH HISTORY Crash data within the study network was obtained from GDOT's Numetric crash reporting system for the period of 2024. Table 2 - Table 5 summarize the number of total crashes, crashes resulting in an injury or fatality, and number by type of crash within the study network. Specific to this study, the following intersections and road segments were evaluated: - Intersection of Atlanta Street (SR 9) at Hill Street/Ramsey Street Table 2 - Hill Street Road Segment between Atlanta Street (SR 9) and Ellis Street Table 3 - Ellis Street Road Segment between Hill Street and Oak Street Table 4 - Oak Street Road Segment between Atlanta Street (SR 9) and Ellis Street Table 5 Table 2: Atlanta Street (SR 9) at Hill Street/Ramsey Street Crash History Five-Year Crash History (2024) Year Total Crashes Total Crashes Injury Crashes Fatal Crashes Angle Rear-End Sideswipe Same Direction Left Turn Other 2020 8 0 0 4 0 3 1 0 0 2021 8 3 0 3 0 3 0 1 1 2022 18 4 0 7 0 4 5 1 1 2023 10 0 0 4 1 2 2 0 1 2024 10 2 0 5 0 2 3 0 0 Total 54 9 0 23 1 14 11 2 3 A total of 54 crashes occurred over the year period from 2020 to 2024 at the intersection of Atlanta Street (SR 9) at Hill Street/Ramsey Street. There were no fatal crashes reported, though 9 crashes resulted in an injury (14 total injuries were reported for the 9 total crashes resulting in an injury). The predominant crash type at the intersection was angle crashes, which accounted for a little less than half of the crashes reported. Angle and left-turn crashes are considered correctable crashes, which may be mitigated by the installation of a traffic signal. Per the Manual on Uniform Traffic Control Devices (MUTCD), five or more reported crashes over a month period of types susceptible to correction by a traffic control signal may allow consideration for a traffic signal if also the adequate trial of alternatives (ex. observance/enforcement) has failed to reduce crash frequency, and vehicular or pedestrian volume warrants are met at the 80% level per the MUTCD. Signal Warrant Analysis details are included in Section 7.0.
The tables below represent crash history for road segments along the block surrounding the proposed development. Very few crashes have occurred within the past 5 years with no notable trends to address with a safety improvement project. Table 3: Hill Street Between Atlanta Street (SR 9) and Ellis Street Crash History Five-Year Crash History (2024) Year Total Crashes Injury Crashes Crashes Angle Angle Rear-End Sideswipe Same Direction Left Turn Hit Fixed Hit Fixed Object 2020 0 0 0 0 0 0 0 0 0 2021 1 0 0 0 0 1 0 0 0 2022 0 0 0 0 0 0 0 0 0 2023 0 0 0 0 0 0 0 0 0 2024 0 0 0 0 0 0 0 0 0 Total 1 0 0 0 0 1 0 0 0 Table 4: Ellis Street between Hill Street and Oak Street Crash History Five-Year Crash History (2024) Year Total Crashes Injury Crashes Crashes Angle Angle Rear-End Same Direction Left Turn Hit Fixed Object Hit Fixed Object 2020 0 0 0 0 0 0 0 0 0 2021 1 0 0 0 0 0 0 0 1 2022 0 0 0 0 0 0 0 0 0 2023 0 0 0 0 0 0 0 0 0 2024 1 0 0 0 0 1 0 0 0 Total 2 0 0 0 0 1 0 0 1 Table 5: Oak Street between Atlanta Street (SR 9) and Ellis Street Crash History Five-Year Crash History (2024) Year Total Crashes Injury Crashes Fatal Crashes Angle Head-On Rear-End Sideswipe Same Direction Left Turn Hit Fixed Hit Fixed Object 2020 0 0 0 0 0 0 0 0 0 2021 0 0 0 0 0 0 0 0 0 2022 0 0 0 0 0 0 0 0 0 2023 1 0 0 0 0 1 0 0 0 2024 0 0 0 0 0 0 0 0 0 Total 1 0 0 0 0 1 0 0 0 During the five-year period, zero (0) crashes with injuries and zero (0) crashes with fatalities were reported among the three study segments. The raw crash data is included in Appendix C.
Kimley » Horn 4.0 PROJECTED BACKGROUND (NON-PROJECT) TRAFFIC Background traffic is defined as expected traffic on the roadway in future year(s) absent the construction and opening of the proposed project. Background traffic can include a base growth rate based on historical count data as well as population growth data and estimates included in Appendix D. To account for background traffic, the Existing 2024 traffic volumes were increased by 1.0% per year for four (4) years to account for the expected background growth to future year 2028. Figure 4 illustrates the 2028 No-Build traffic volumes. 4.1 FUTURE ROADWAY/INTERSECTION PROJECTS The GDOT GeoPI, Atlanta Regional Commission's Regional Transportation Plan, and the City of Roswell's 2040 Comprehensive Plan (adopted 2021) were referenced for programmed transportation projects within the vicinity of the proposed development: ARC FN-269 (GDOT PI ) SR 9 reversible lane removal and widening (2028 Buildout) SR 9 between SR 120 and the Chattahoochee River crossing approximately 0.5 miles south of the project site. It is also notable that recent roadway improvements to Bush Street and Pleasant Hill Street south of Oak Street present improved access between Community Circle/Driveway C site access and Oxbo Road, which has been reflected in trip distribution and assignment of project trips. The fact sheet for the above project is included in Appendix E.
Kimley » Horn 5.0 PROJECT TRAFFIC Project traffic used in this analysis is defined as the vehicle trips expected to be generated by the development and the distribution and assignment of that traffic through the study roadway network. 5.1 PROJECT SITE ACCESS Vehicular access to the proposed Hill Street Roswell Mixed-Use development will be provided at five (5) locations, which is shown on the site plan in Appendix A. It is notable that for this analysis, the three site driveways along Ellis Street will be studied as one driveway. A brief description of the vehicle access location is as follows: - 1. Site Driveway A a proposed full-movement driveway along Hill Street located approximately 200ft east of Atlanta Street (SR 9) with one lane entering and one lane exiting. - 2. Site Driveway B Three full-movement driveways along Ellis Street between Hill St and Oak Street studied as a single driveway: - a. One driveway provides access to the structured parking deck; two townhome community driveways serve eight townhomes, each. - b. To streamline and provide a conservative site access analysis, City staff agreed during the scoping phase that a single driveway would be studied along Ellis Street to consider entering/exiting traffic for traffic accessing the parking deck and for the townhomes along the Ellis frontage. - 3. Site Driveway C A proposed driveway to access Oak Street via Community Circle. Figure 5 shows a visual representation of vehicular access and circulation throughout the proposed site. 5.2 TRIP GENERATION Trip generation projections were developed using the ITE Trip Generation Manual, 11th Edition rates and equations and followed ITE Trip Generation Handbook, Third Edition guidance for internal capture/mixed use reductions, and pass-by reductions. The trip generation was calculated assuming the Single Family Attached Housing (Land Use 215), Mid Rise Multifamily Housing (Land Use 221), Office (Land Use 710), Strip Retail Plaza (Land Use 822) and High-Turnover Sit-Down Restaurant (Land Use 932) land uses. Internal capture/mixed use reductions, following ITE methodologies, were identified to be 16% for the AM peak hour and 41% for the PM peak hour, as discussed and confirmed with the City during the scoping phase of the study. The American Community Survey (ACS) 2021 Commute to Work data for Census Tracts in the vicinity of the site identified non-vehicular commutes between 15.9% to 63.4%. Due to the recent ACS data suggesting higher alternative mode usage, proximity of the MARTA bus route on Atlanta St, sidewalks, and a growing density of walkable downtown areas in Roswell, a conservative alternative mode reduction of 10% was used and included in the projected trip generation table below.
Kimley » Horn Pass-by reductions are considered for traffic normally traveling along a roadway which may choose to visit a retail or restaurant establishment that is along the vehicle's path. These trips were assumed to be on the main road (SR 9) and would therefore divert as new trips for the side streets and driveways of the development (see Figure 9). The retail establishments proposed for the project are expected to generate pass-by trips. Table 6 summarizes the project trip generation for the proposed development under full build-out. Appendix F provides the detailed trip generation worksheets for the proposed development. Table 6: Hill Street Mixed-Use Development Trip Generation Land Use/Density Daily AM Peak Hour PM Peak Hour Total Total Enter Exit Total Enter Exit Townhomes (ITE 215 – Single- Family Attached Housing) 16 d.u. 116 8 2 6 9 5 4 Multifamily Housing (ITE 221 – Multifamily Housing (Mid Rise)) 141 d.u. 626 50 12 38 55 34 21 Office (ITE 710 – General Office Building) 30,300 S F GFA 410 60 53 7 62 11 51 Retail (ITE 822 – Strip Retail Plaza (\Note that pass-by volumes will primarily operate as diverted link trips from SR 9. 5.3 TRIP DISTRIBUTION AND ASSIGNMENT The directional distribution and assignment of new project trips was based on a review of land uses and population densities in the area and the existing peak hour turning movement counts. A detailed trip distribution and assignment for the project residential, office, and retail/restaurant vehicle trips are illustrated in Figure 6, Figure 7 and Figure 8 respectively. Figure 9Error! Reference source not found. shows a more detailed depiction of how pass-by reductions were taken within the study network. Based on the trip generation in Table 6 and the anticipated trip assignment, net new project trips and pass-by trips were assigned to the study roadway network and are illustrated on Figure 10. The project trips from Figure 10 were added to the No-Build traffic volumes (shown on Figure 4) to produce the 2028 Build traffic conditions. Figure 11 illustrates the 2028 Build traffic conditions for the AM and PM peak hours. Appendix G** provides the intersection volume worksheets within the study network, including the proposed driveway.
Dwy B* includes the primary parking deck driveway and also the two townhome driveways Hill Street Mixed Use Development Transportation Analysis Retail/Resturant Pass-By Trips Figure 9 Packet Pg. 194
6.0 LEVEL-OF-SERVICE ANALYSIS Level-of-service (LOS) determinations were made for the weekday AM and PM peak hours for the existing study network intersections and proposed site-access intersections using Synchro, Version 12. The program uses methodologies contained in the Highway Capacity Manual (HCM) to determine the operating characteristics of an intersection. Capacity is defined as the maximum number of vehicles that can travel through a particular road segment or through a particular intersection within a specified period under prevailing roadway, traffic, and control conditions. HCM 7th Edition methodologies are reported, unless otherwise indicated due to limitations associated with signal timings. LOS is used to describe the operating characteristics of a road segment or intersection in relation to its capacity. LOS is defined as a qualitative measure that describes operational conditions and motorists' perceptions of a traffic stream. The Highway Capacity Manual defines six levels of service, LOS A through LOS F, with A being the best and F the worst. LOS for signalized intersections are reported for the intersection as a whole. One or more movements at an intersection may experience a low LOS, while the intersection as a whole may operate acceptably. LOS for unsignalized all-way stop controlled intersections is reported for each stop-controlled approach. LOS for unsignalized intersections with stop control on the minor street(s) only, are reported for the side street approaches and major street left turns. Low levels-of-service for side street stop-controlled approaches are not uncommon, as vehicles may experience significant delay turning onto a major roadway. In addition to the Existing 2024 traffic conditions, analyses were performed for the AM and PM peak hours for the Year 2028 No-Build traffic conditions and the 2028 Build traffic conditions. Existing signal timings for the study intersection were requested from the City of Roswell and utilized in the Synchro 12 models. The results of the LOS analysis for the Existing 2024 and future No-Build 2028 and Build 2028 scenarios are summarized in Table 7. Synchro analysis reports are included in Appendix H.
Table 7: Level-of-Service Summary LOS (Delay in Seconds) Intersection Approach/ 2028 Build merscenon Movement AM Peak PM Peak AM Peak PM Peak AM Peak PM Peak 1. Atlanta Street (SR 9) at Magnolia Street/Canton Street (Signalized) 1 Overall D (50.8) D (46.5) D (51.6) D (50.1) D (52.2) D (52.7) NB D (49.4) D (38.5) D (48.8) D (47.3) D (49.7) D (54.2) SB E (62.2) E (67.9) E (61.6) E (67.8) E (61.3) E (67.8) EB E (67.1) E (70.2) E (68.0) E (70.5) E (67.6) E (69.9) WB D (39.4) D (40.5) D (41.5) D (41.5) D (42.6) D (41.4) 2. Atlanta Street (SR 9) at Hill Street/Ramsey Street (Side- Street Stop Control) EB E (41.5) C (21.2) F (66.5) C (23.5) F (194.2) D (27.8) ۷. WB C (23.5) E (36.4) D (28.8) E (43.8) C (32.1) E (46.5) NBL B (10.6) A (9.6) B (11.0) A (9.8) B (11.0) A (9.8) SBL A (8.9) A (9.6) A (9.0 A (9.8) A (9.4) A (10.2) Atlanta Street (SR 9) at Oak Street (Signalized) Overall A (4.2) A (5.1) A (4.1) A (5.1) A (5.4) A (6.2) 3. NB A (0.4) A (0.3) A (0.4) A (0.3) A (0.4) A (0.3) ٥. SB A (1.1) A (0.7) A (1.1) A (0.7) A (1.4) A (0.8) EB E (71.6) E (69.2) E (71.4) E (68.6) E (66.9) E (63.7) WB E (77.8) E (77.7) E (77.6) E (77.3) E (73.9) E (73.1) Atlanta Street (SR 9) at Oxbo Street (Signalized) 2 Overall C (25.3) D (44.9) C (22.1) D (47.4) C (22.3) D (47.9) 4. NB B (18.9) C (34.3) B (20.7) D (34.9) C (21.6) D (36.1) 4. SB A (2.3) D (48.4) A (2.7) D (48.6) A (2.7) D (49.1) EB F (155.5) F (82.2) E (77.0) E (63.7) E (77.0) E (63.6) WB E (66.6) E (58.3) E (73.8) E (76.0) E (73.5) E (75.5) Hill Street at Ellis Street (Side- Street Stop Control) NB B (10.1) A (9.2) B (10.2) B (9.2) B (11.2) B (10.4) 5. SB A (9.1) A (9.8) A (9.1) A (9.8) A (9.6) B (10.4) EBL A (7.4) A (7.3) A (7.4) A (7.3) A (7.4) A (7.3) WBL A (7.3) A (7.3) A (7.3) A (9.8) A (7.5) A (7.5) 6. Hill Street at Forrest Street (All-Way Stop Control) Overall A (7.2) A (7.4) A (7.2) A (7.5) A (7.4) A (7.6) Overall B (15.5) B (15.4) B (16.0) B (15.8) B (15.4) B (16.0) 7. Norcross Street at Forrest Street/Fraser Street (Signalized) NB A (7.7) B (11.1) A (8.0) B (11.4) A (9.1) B (11.8) SB A (8.7) B (11.7) A (9.0) B (12.1) B (10.2) B (12.4) EB B (17.2) B (13.4) B (17.6) B (13.4) B (16.4) B (13.3) WB B (17.9) B (18.7) B (18.5) B (19.4) B (18.3) B (19.9) 8. Site Driveway A at Hill Street NB A (0.0) A (9.3) (Driveway Stop Control) WBL A (7.5) A (0.0) 9. Site Driveway B at Ellis Street EB A (9.7) A (9.7) (Side-Street Stop Control) NBL A (7.5) A (7.5) 10. Site Driveway C via Community Circle/Bush Street at Oak Street (Side-Street Stop Control) NB A (9.2) A (9.6) A (9.3) A (9.6) B (10.4) B (10.4) SB A (0.0) A (8.8) A (0.0) A (8.9) B (10.4) B (10.1) EBL A (0.0) A (7.4) A (0.0) A (7.5) A (7.5) A (7.6) WBL A (7.4) A (7.4) A (7.4) A (7.4) A (7.4) A (7.4) 1HCM 2000 Methodology used due to non-NEMA signal phasing required for the northbound right-turn overlap As shown in Table 7, the Existing 2024 and 2028 No-Build and 2028 Build scenarios for the intersections are projected to operate acceptably overall during the AM and PM peak hours. At the intersection of Atlanta Street (SR 9) at Oxbo Street (Intersection 4), the eastbound approach operates at LOS F during both peak hours under Existing 2024 conditions. Minor modifications to signal timings splits were incorporated under the 2028 No-Build and 2028 Build conditions to consider likely updates to signal timings to accommodate future shifts in travel patterns. With the minor changes to splits, the eastbound approach of Intersection 4 operates at LOS E under future conditions. &lt;sup>2Minor modifications to splits have been incorporated into the No-Build and Build conditions, to accommodate future shifts in travel patterns.
At the intersection of Atlanta Street (SR 9) at Hill Street/Ramsey Street (Intersection 2), the eastbound approach is expected to operate at LOS F under the 2028 No-Build AM peak hour conditions and to continue to operate at LOS F under 2028 Build AM peak hour conditions with the addition of development traffic. It is not uncommon for side-street approaches to experience low levels of service, as vehicles may experience delays turning onto a major roadway from a side-street stop-controlled approach. While the eastbound approach (Ramsey Street) projects an increase in delay between the 2028 No-Build and 2028 Build AM peak hours, it is notable that minimal development traffic is added to the eastbound approach under Build conditions. It is likely the reduction in acceptable gaps due to the southbound left-turn volume that increases due to development traffic. The closely spaced street grid via north-south Mimosa Boulevard provides alternative side street access to Atlanta Street (SR 9) via nearby signalized intersections at Magnolia Street and Oxbo Road. Drivers may choose to travel via nearby alternative routes with signalized access during peak periods to avoid delays at stop-controlled side streets. 6.1 NO-BUILD IMPROVED ALTERNATIVES – INTERSECTION 2 Per the request of the City of Roswell, two alternative intersection configurations were evaluated to consider improvements to address side-street delay at the intersection of Atlanta Street (SR 9) at Hill Street/Ramsey Street (Intersection 2): - Traffic Signal Signal Warrant Analysis - Restricted Crossing U-Turn (RCUT) configuration The results of the alternative intersection evaluations are detailed in the sections below. 6.1.1 SIGNAL WARRANT ANALYSIS – INTERSECITON 2 A traffic signal warrant analysis was performed for the currently minor stop-controlled intersection of Atlanta Street (SR 9) at Ramsey Street and Hill Street based on the criteria contained in the Manual on Uniform Traffic Control Devices (MUTCD), 11th Edition published by the Federal Highway Administration (FHWA). According to the MUTCD, the investigation of the need for a traffic control signal shall include an analysis of the applicable factors contained in the following traffic signal warrants and other factors related to existing operation and safety at the study location. The following vehicular volume signal warrants were considered for this analysis: - Warrant 1, Eight-Hour Vehicular Volume - Warrant 2, Four-Hour Vehicular Volume - Warrant 3, Peak Hour - Warrant 4, Pedestrian Volume - Warrant 7, Crash Experience Per the MUTCD, a traffic control signal should not be installed unless one or more of the above warrants are met. However, the satisfaction of a traffic signal warrant or warrants should not in itself require the installation of a traffic control signal.
GDOT interpretation of the MUTCD typically does not allow volume threshold reductions for the consideration of signal warrants. Additionally, GDOT prefers that right-turns are excluded from the signal warrant analysis. Signal warrant details, including hourly variation details are included in Appendix I. Table 8: Traffic Signal Volume Warrant Analysis Summary (No Reductions) Atlanta Street (SR 9) at Ramsey Street and Hill Street Warrant Projected 2028 Build warrant Hrs Met / Required Met? 1A NOT SATISFIED (0 of 8) × 1B NOT SATISFIED (0 of 8) 1C NOT SATISFIED (0 of 8) 2 NOT SATISFIED (0 of 4) X 3 NOT SATISFIED (0 of 1) × Per the above table, warrants one (1) through three (3) were not projected to be met for Intersection 2. It is notable that GDOT prefers that all three vehicular volume warrants (Warrant 1, 2, and 3) are met in order to consider the installation of a new signal. It is notable that minor street approaches of Hill Street and Ramsey Street include relatively minimal existing volumes based on count data collected. The addition of developmental traffic based on the site plan and parking locations is not projected to significantly change the side-street traffic volumes. Hourly volume distribution of each land use, studied for the traffic signal warrant analysis is included in Appendix I. Additionally, signal spacing between Canton Street, Hill Street, and Oak Street would be substandard for GDOT requirements, which required 1,000 ft spacing between signals in urban settings. Warrant 4 is based on pedestrian activity and measures whether or not pedestrian volumes crossing on a major street experience major delay due to oncoming traffic. Minimum pedestrian volumes crossing the major street and major street volumes must be met in order to warrant based on pedestrian activity. At the intersection of Atlanta Street (SR 9) at Hill Street (Intersection 2), the pedestrian volumes are not high enough to satisfy any of the conditions listed in Warrant 4. It is notable that 50 total pedestrians were identified for the entire intersection over the hour period of data collected falling far below minimum requirements. Warrant 7 is based on crash experience but also requires vehicular volume or pedestrian volume warrants are met at the 80% reduced volume threshold. While crash experience suggests that correctable crashes exceed the minimum five required within a month period, volumes and pedestrian activity do not meet the requirement for Warrant 7 to apply. While it is unlikely that GDOT would support a new traffic signal at this intersection, it is notable that a broader study is anticipated to be completed for the downtown Roswell area and may include consideration to modify or improve Atlanta Street (SR 9) corridor and intersection operations.
Operational analyses were not performed for the signalized alternative due to the low likelihood of proceeding with this intersection alternative. 6.1.2 RESTRICTED CROSSING U-TURN (RCUT) In addition to the Signal Warrant Analysis, the evaluation of a restricted-crossing U-turn (RCUT) intersection configuration was requested by the City for the intersection of Atlanta Street (SR 9) at Hill Street/Ramsey Street (Intersection 2) to consider a possible future solution to mitigate the low level-of-service under No-Build conditions (future conditions without the proposed development) alternative to a signalized condition that is unlikely to be permitted by GDOT. The results of the RCUT evaluation considered diverted traffic to remove side-street through- and left-turning movements and is reported for Intersections 3 to present the impact of diverted trips at adjacent intersections. Table 9: Level-of-Service Summary LOS (Delay in Seconds) Intersection Approach/ Movement 2028 No-Build Improved 2028 Build Improved AM Peak PM Peak AM Peak PM Peak Atlanta Street (SR 9) at Magnolia Street/Canton Street (Signalized) 1 Overall D (51.9) D (51.6) D (52.9) D (51.6) 1. NB E (48.9) D (51.2) D (51.0) D (51.2) SB D (61.6) E (67.8) E (61.3) E (67.8) EB E (68.0) E (70.5) E (67.7) E (70.5) WB D (42.0) D (41.5) D (43.1) D (41.2) _ Atlanta Street (SR 9) at Hill Street/Ramsey Street (RCUT Alternative) EB B (10.7) A (9.7) B (10.7) A (9.7) 2. WB A (9.3) B (10.0) C (9.5) B (10.0) NBL A (11.0) A (9.7) B (11.0) A (9.7) SBL A (9.1) A (9.8) A (9.4) A (9.8) Atlanta Street (SR 9) at Oak Street (Signalized) Overall A (4.2) A (5.3) A (5.6) A (5.3) NB A (0.4) A (0.4) A (0.5) A (0.4) 3. SB A (1.1) A (0.7) A (1.5) A (0.7) EB E (71.1) E (67.6) E (66.1) E (67.6) WB E (77.1) E (76.1) E (73.5) E (76.1) 1HCM 2000 Methodology used due to non-NEMA signal phasing required for the northbound right-turn overlap Since the local roadway network includes a grid, and existing roadway geometry on SR 9 would not meet GDOT criteria to allow a U-turn, the RCUT configuration and diverted traffic assumes vehicles would reroute to adjacent intersections instead of completing a downstream U-turn. Volumes evaluated for this Improved Alternative analysis are included in Appendix H. As shown in Table 9 the side-street stop-controlled approaches at Intersection 2 operate at LOS B or better when side-street through- and left-turn movements are removed under the 2028 No-Build conditions. With the potential improved condition with the installation of an RCUT, the intersection continues to operate at LOS B or better under 2028 Build conditions.
6.1.3 ADDITIONAL GDOT STATE ROUTE CONSIDERATIONS Based on the results of the level-of-service analysis and intersection alternatives considered, the only potential change along the state route identified in this study would be the system improvement to mitigate low level-of-service under No-Build conditions for the side-street stop-controlled approaches at the intersection of Atlanta Street (SR 9) at Hill Street/Ramsey Street (Intersection 2). The eastbound Ramsey Street approach is projected to operate at LOS F under the projected 2028 No-Build conditions. A system improvement (background condition without development traffic) could be pursued by the City with GDOT to consider improvements to delay for local side-street at its intersection with the state route. It is notable that the street network in the vicinity of the intersection has an interconnected grid with multiple alternative signalized local access points to the state route. If no change is pursued at Intersection 2, it is likely that vehicles and travel patterns will shift to nearby alternative access to the state route when experiencing delays at the side-street stop-controlled approaches at Ramsey Street. If the City considers pursuing a modification to the intersection with GDOT, state agency guidance and additional review of existing conditions against state policy may be required to make change to the state route system. Per the GDOT Driveway and Encroachment Manual, new driveways or intersections, or changes to existing driveways or intersections must consider minimum design constraints contained in Chapter 4. Design Criteria and also must perform an Intersection Control Evaluation (ICE) study to submit to GDOT when requesting a change along the state route. GDOT will require a review of intersection and roadway conditions that may currently be substandard according to GDOT policy. The following elements are likely to be considered by GDOT when reviewing a request for changes at the intersection: Evaluation of Auxiliary Turn Lanes Per Table 6 in the Driveway and Encroachment Manual, a right-turn deceleration lane should be added along this stretch of SR 9 if daily right-turn volumes (RTV) exceeds 100 vehicles per day (AADT >= 10,000, 35 MPH speed limit, more than 2 lanes along State Route). The existing and projected future northbound and southbound right-turn volumes at Intersection 2 exceed the 100 RTV threshold based on the hour count collected (Appendix B) and would require widening of SR 9 to provide right-turn deceleration lanes both northbound and southbound. It is also notable that nearly all study intersections along this stretch of SR 9 would be likely to qualify for the minimum RTV for right-turn deceleration lanes. In the vicinity of the study intersection, it is notable that there is not significant precedence for right-turn deceleration lanes along this stretch of the state route. The nearest southbound right-turn deceleration lane is south of the intersection approximately 600 feet south at Oak Street, then an additional 1,700 feet south of Oak Street at Marietta Hwy/SR 120. The nearest northbound right-turn deceleration lane is
currently under construction for a site driveway approximately 2,100 feet north of the intersection between Green St and Cherry Way. GDOT, in limited applications such as downtown districts, may consider waiving the requirement to install a right-turn deceleration lane to maintain shorter pedestrian crossing conditions and a more urban walkable area. If the City pursues a change at this intersection, coordination with GDOT to determine the preferred condition to serve the traveling public will need to be discussed. Intersection Control Evaluation (ICE) Considerations Preliminary considerations for alternative intersection control have already been studied in this report and could be incorporated or discussed in the GDOT ICE screening and decision records in order to determine a preferred alternative condition: - A traffic signal is not warranted and would be unlikely to be installed at this intersection; this may be excluded from ICE since warrants are not met. - An RCUT, as studied in the No-Build Improved and Build Improved section of the intersection capacity analyses, may be considered against additional alternatives. - The stop-controlled condition may remain in place and vehicles may re-route as a low-cost solution considered against additional alternatives. Additional intersection alternatives may be considered in the screening record. For example, a roundabout may be a reasonable alternative to consider at this intersection. However, the footprint of a roundabout would need to be evaluated against existing structures and utilities to determine feasibility of construction. While the proposed Hill Street Mixed-Use development provides an opportunity for reconstruction of the southeast corner of the intersection, for example, there may not be immediate change anticipated for other quadrants of the intersection.
7.0 CONCLUSION AND RECOMMENDATIONS This traffic study evaluated the traffic impacts associated with the Hill Street Roswell Mixed-Use development, which is expected to be completed in 2028 (referred to herein as "build-out year"). Per the Zoning Site Plan dated 3/18/2025, the site proposes 141 multifamily residential units, 16 townhomes, and 71,100 SF of commercial space, including outdoor space and amenities. The commercial space is further broken out into Office (30,300 SF), Retail (18,400 SF), and Restaurant (22,400 total SF including 15,400 SF indoor and 7,000 SF outdoor space). The approximate acre site is located south of Hill Street across from City Hall in the City of Roswell, Georgia. This report included the analyses of the following three (3) scenarios: - 1. Existing 2024 Traffic Conditions - 2. Year 2028 No-Build Traffic Conditions - 3. Year 2028 Build Traffic Conditions The proposed development will be served by five (5) proposed driveways. For this analysis, the three site driveways along Ellis Street were studied as one driveway. The study network, which consists of ten (1) existing intersections, were analyzed for the weekday AM and PM peak hours. With the exception of Atlanta Street (SR 9) at Hill Street/Ramsey Street (Intersection 2), the level-of-service (LOS) analysis indicates that all other intersections and approaches currently operate at an acceptable LOS during the AM and PM peak hours and are projected to continue operating at an acceptable LOS under all future scenarios. For the stop-controlled approaches at Intersection 2, it is not uncommon for side-street approaches to experience low levels of service, as vehicles may experience delays turning onto a major roadway from a side-street stop-controlled approach. Signal warrants are not met at this intersection, and the nearby roadway network provides alternative options for signalized access to the state route. It is likely that drivers will consider alternative signalized options to continue their travel as traffic volumes in the area change. A broader study is anticipated to be completed for the downtown Roswell area and may include consideration to modify or improve Atlanta Street (SR 9) corridor and intersection operations.
7.1 SITE ACCESS IMPROVEMENT RECOMMENDATIONS Based on the results of this study for the Hill Street Roswell Mixed-Use development, the following site-access ("Build") improvements are recommended: - Intersection 8 Hill Street at Site Driveway A - Per the site plan, Construct Site Driveway A to operate as a full-movement stopcontrolled driveway with one (1) lane entering and one (1) lane exiting the site. - Intersection 9 Ellis Street at Site Driveway B - Per the site plan, Construct Site Driveway B to operate as a full-movement stopcontrolled driveway along Ellis Street between Hill St and Oak Street driveways with one (1) lane entering and one (1) lane exiting the site. - Townhome Driveways along Ellis Street - While not studied directly for this report, the two additional driveways along Ellis Street serving the 16 townhomes for the development should include one (1) lane entering and one (1) lane exiting, each. - Intersection 10 Site Driveway C via Community Circle/Bush Street at Oak Street - Per the site plan, Construct Site Driveway C to operate as a full-movement stopcontrolled driveway with one (1) lane entering and one (1) lane exiting the development to connect the existing northern leg of Community Circle.
APPENDIX A Site Plan
APPENDIX B Traffic Count Data
Start Date: 10/10/2024 ( GA-9 Atlanta S t Canton St ĺ Magnolia St GA-9 Alpharetta St Time NBL Northbound NBT NBR SBL Southbound SBT SBR EBL Eastbound EBT EBR WBL W estbound WBT WBR Total Time 15 Minute Totals 12:00 AM - 12:15 AM 12:30 AM - 12:30 AM 12:30 AM - 12:45 AM 12:34 AM - 01:00 AM 01:00 AM - 01:15 AM 01:15 AM - 01:30 AM 01:15 AM - 01:30 AM 01:30 AM - 01:45 AM 01:30 AM - 02:45 AM 02:00 AM - 02:15 AM 02:15 AM - 02:30 AM 02:30 AM - 02:45 AM 02:31 AM - 03:30 AM 02:30 AM - 03:45 AM 03:31 AM - 03:30 AM 03:30 AM - 03:45 AM 03:45 AM - 03:00 AM 03:45 AM - 03:00 AM 04:45 AM - 04:00 AM 04:15 AM - 04:30 AM 04:30 AM - 04:45 AM 04:30 AM - 04:45 AM 05:15 AM - 05:30 AM 05:30 AM - 05:45 AM 05:15 AM - 05:30 AM 05:00 AM - 05:15 AM 06:15 AM - 06:30 AM 06:30 AM - 06:45 AM 06:30 AM - 06:45 AM 06:45 AM - 06:30 AM 06:30 AM - 06:45 AM 06:45 AM - 06:30 AM 07:30 AM - 07:15 AM 07:30 AM - 07:45 AM NBL Northbound NBT 0 0 0 0 0 0 0 0 0 0 0 0 0 0 0 0 0 0 0 NBR 0 0 0 0 0 0 0 0 0 0 0 0 0 0 0 0 0 0 0 Southbound 1 1 1 Eastbound EBT 0 0 0 0 0 0 0 0 0 0 0 0 0 0 0 0 0 0 0 EBR 0 0 0 0 0 0 0 0 0 0 0 0 0 0 0 0 0 0 0 W estbound Total 0 0 0 0 0 0 0 0 0 0 0 0 0 0 0 0 0 0 07:45 AM - 08:00 AM 08:00 AM - 08:15 AM 08:30 AM - 08:30 AM 08:30 AM - 08:45 AM 08:30 AM - 08:45 AM 09:00 AM - 09:015 AM 09:15 AM - 09:30 AM 09:30 AM - 09:15 AM 09:35 AM - 09:30 AM 09:36 AM - 10:30 AM 10:30 AM - 10:15 AM 10:15 AM - 10:30 AM 10:30 AM - 10:15 AM 11:30 AM - 11:30 AM 11:30 AM - 11:45 AM 11:30 AM - 11:45 AM 11:30 AM - 11:45 AM 11:30 AM - 12:30 PM 12:30 PM - 12:35 PM 12:35 PM - 10:30 PM 12:30 PM - 01:30 PM 01:35 PM - 01:30 PM 01:35 PM - 01:30 PM 01:35 PM - 01:30 PM 01:35 PM - 01:30 PM 01:35 PM - 01:30 PM 01:35 PM - 02:30 PM 02:30 PM - 02:45 PM 02:30 PM - 02:45 PM 02:30 PM - 02:35 PM 02:315 PM - 02:30 PM 02:30 PM - 02:35 PM 02:35 PM - 03:30 PM 03:30 PM - 03:35 PM 03:30 PM - 03:45 PM 03:315 PM - 03:30 PM 03:315 PM - 03:30 PM 03:315 PM - 03:30 PM 03:345 PM - 03:30 PM 03:345 PM - 03:30 PM 11 11 11 11 11 11 11 11 11 11 11 11 11 59 60 44 47 88 89 51 10 00 00 00 00 00 00 00 00 00 00 00 00 136 133 121 136 135 0 0 0 0 0 0 0 0 0 0 0 0 0 0 0 0 0 0 0 0 90 90 00 84 40 83 30 75 50 00 00 00 00 00 00 00 00 00 00 00 00 14 99 66 177 00 00 00 00 00 00 00 00 00 00 00 00 0 1 9 108 93 77 99 55 99 44 110 0 0 0 0 0 0 0 0 0 0 0 0 0 0 0 0 25 40 18 14 0 0 0 0 0 0 0 0 0 0 0 0 0 0 0 0 0 0 214 190 179 253 171 0 0 0 0 0 0 0 0 0 0 0 0 0 0 0 0 0 0 64 47 56 56 0 0 0 0 0 0 0 0 0 0 0 0 0 0 0 0 0 000000000000000000000000000000000000000 687 650 713 663 0 0 0 0 0 0 0 0 0 0 0 0 0 0 0 0 0 04:15 PM - 04:30 PM 04:30 PM - 04:45 PM 04:45 PM - 05:00 PM 05:00 PM - 05:15 PM 05:15 PM - 05:30 PM 05:30 PM - 05:45 PM 05:35 PM - 06:00 PM 05:45 PM - 06:00 PM 06:15 PM - 06:15 PM 06:15 PM - 06:30 PM 06:30 PM - 06:45 PM 06:45 PM - 07:00 PM 07:00 PM - 07:30 PM 07:00 PM - 07:15 PM 07:15 PM - 07:30 PM 07:30 PM - 07:45 PM 08:15 PM - 08:00 PM 08:15 PM - 08:00 PM 08:15 PM - 08:00 PM 08:30 PM - 08:45 PM 08:45 PM - 08:00 PM 09:30 PM - 09:15 PM 09:00 PM - 09:15 PM 09:00 PM - 09:15 PM 09:00 PM - 09:15 PM 09:15 PM - 09:30 PM 09:30 PM - 09:45 PM 10:15 PM - 10:30 PM 10:15 PM - 10:30 PM 10:15 PM - 10:30 PM 10:30 PM - 10:15 PM 10:30 PM - 10:15 PM 10:30 PM - 10:15 PM 10:30 PM - 11:30 PM 11:30 PM - 11:30 PM 11:30 PM - 11:45 PM 11:45 PM - 11:30 PM 0 84 3 70 6 90 2 73 0 74 151 162 150 180 133 158 181 0 0 0 0 0 0 0 0 0 0 0 0 0 0 0 0 0 0 68 68 65 0 33 0 53 64 0 65 0 0 0 0 0 0 0 0 0 0 0 0 0 0 0 0 0 133 188 144 211 233 244 230 0 0 0 0 0 0 0 0 0 0 0 0 0 0 0 0 0 0 3 80 9 79 6 56 3 46 1 65 22 166 19 13 111 6 10 0 0 0 0 0 0 0 0 0 0 0 0 0 0 0 176 140 140 148 207 199 172 0 0 0 0 0 0 0 0 0 0 0 0 0 0 0 0 0 0 0 89 115 104 97 115 109 92 0 0 0 0 0 0 0 0 0 0 0 0 0 0 0 0 0 2152626000000000000000000000000000000000 708 734 679 736 719 775 794 0 0 0 0 0 0 0 0 0 0 0 0 0 0 0 0 0 0 0
Start Date: 10/10/2024 GA-9 Atlanta St (South) GA-9 Atlanta St (North) Ramsey St Hill St Time NBL Northbound NBT NBR SBL Southbound SBT SBR EBL Eastbound EBT EBR WBL Westbound WBT WBR Total 15 Minute Totals 12:00 AM - 12:15 AM 12:15 AM - 12:30 AM 0 0 0 0 0 0 0 0 0 0 0 0 0 12:30 AM - 12:45 AM 0 0 0 0 0 0 0 0 0 0 0 0 0 0 0 0 0 0 0 0 0 0 0 0 0 0 12:45 AM - 01:00 AM 01:00 AM - 01:15 AM 0 0 0 0 0 0 0 0 0 0 0 0 0 01:15 AM - 01:30 AM 0 0 0 0 0 0 0 0 0 0 0 0 0 0 0 0 0 0 0 0 0 0 0 0 0 0 01:30 AM - 01:45 AM 01:45 AM - 02:00 AM 0 0 0 0 0 0 0 0 0 0 0 0 0 0 0 0 0 0 0 0 0 0 0 0 0 0 02:00 AM - 02:15 AM 0 0 0 0 0 0 0 0 0 0 0 0 0 02:15 AM - 02:30 AM 02:30 AM - 02:45 AM 0 0 0 0 0 0 0 0 0 0 0 0 0 0 0 0 0 0 0 0 0 0 0 0 0 0 02:45 AM - 03:00 AM 0 0 0 0 0 0 0 0 0 0 0 0 0 03:00 AM - 03:15 AM 03:15 AM - 03:30 AM 0 0 0 0 0 0 0 0 0 0 0 0 0 0 0 0 0 0 0 0 0 0 0 0 0 0 03:30 AM - 03:45 AM 0 0 0 0 0 0 0 0 0 0 0 0 0 03:45 AM - 04:00 AM 04:00 AM - 04:15 AM 0 0 0 0 0 0 0 0 0 0 0 0 0 0 0 0 0 0 0 0 0 0 0 0 0 0 04:15 AM - 04:30 AM 0 0 0 0 0 0 0 0 0 0 0 0 0 04:30 AM - 04:45 AM 04:45 AM - 05:00 AM 0 0 0 0 0 0 0 0 0 0 0 0 0 0 0 0 0 0 0 0 0 0 0 0 0 0 05:00 AM - 05:15 AM 0 0 0 0 0 0 0 0 0 0 0 0 0 05:15 AM - 05:30 AM 05:30 AM - 05:45 AM 0 0 0 0 0 0 0 0 0 0 0 0 0 0 0 0 0 0 0 0 0 0 0 0 0 0 05:45 AM - 06:00 AM 0 0 0 0 0 0 0 0 0 0 0 0 0 06:00 AM - 06:15 AM 06:15 AM - 06:30 AM 0 48 0 90 2 2 1 2 53 91 0 2 2 1 5 1 3 4 1 1 0 0 1 0 113 198 06:30 AM - 06:45 AM 2 91 4 1 99 0 2 1 6 0 0 1 207 06:45 AM - 07:00 AM 07:00 AM - 07:15 AM 1 126 0 144 0 4 8 6 121 187 1 1 5 0 4 1 17 15 1 1 0 0 0 1 280 367 07:15 AM - 07:30 AM 07:30 AM - 07:45 AM 2 192 2 8 221 3 3 0 31 2 1 2 468 07:45 AM - 08:00 AM 2 200 0 213 5 10 4 5 261 321 5 3 3 2 5 5 28 16 0 1 1 1 4 2 515 585 08:00 AM - 08:15 AM 08:15 AM - 08:30 AM 1 190 11 3 307 7 6 4 13 1 0 1 544 08:30 AM - 08:45 AM 1 169 0 212 11 8 6 3 296 352 5 7 2 1 2 3 21 15 0 1 1 1 7 2 521 606 08:45 AM - 09:00 AM 09:00 AM - 09:15 AM 1 214 0 154 8 8 7 6 241 244 10 6 0 5 1 0 16 13 0 1 2 2 4 6 508 442 09:15 AM - 09:30 AM 3 228 9 8 208 3 0 1 10 5 1 5 483 09:30 AM - 09:45 AM 09:45 AM - 10:00 AM 0 189 1 207 5 5 8 2 246 205 5 4 4 1 2 1 7 18 7 5 0 0 3 4 477 456 10:00 AM - 10:15 AM 3 173 3 5 188 3 1 2 3 3 0 1 385 10:15 AM - 10:30 AM 10:30 AM - 10:45 AM 6 181 4 180 5 4 4 8 183 163 4 3 1 0 1 0 5 8 3 4 0 0 6 2 398 377 10:45 AM - 11:00 AM 1 180 5 3 175 3 1 0 10 0 0 4 383 11:00 AM - 11:15 AM 11:15 AM - 11:30 AM 0 190 2 196 2 2 4 9 152 183 2 0 0 1 1 1 8 10 2 4 0 0 7 5 368 413 11:30 AM - 11:45 AM 4 181 6 7 168 6 0 0 10 3 0 8 395 11:45 AM - 12:00 PM 12:00 PM - 12:15 PM 2 224 7 197 4 8 6 5 159 164 1 6 0 0 0 3 5 4 2 1 0 0 6 9 409 407 12:15 PM - 12:30 PM 5 206 8 6 177 2 1 2 7 1 1 3 422 12:30 PM - 12:45 PM 12:45 PM - 01:00 PM 2 222 2 230 11 7 5 11 181 187 4 4 2 3 1 2 14 6 3 3 0 0 6 8 453 462 01:00 PM - 01:15 PM 01:15 PM - 01:30 PM 5 245 8 5 188 8 1 0 17 5 0 11 496 01:30 PM - 01:45 PM 2 211 2 239 5 5 9 2 210 205 6 5 0 0 0 0 9 5 4 2 2 0 10 10 470 477 01:45 PM - 02:00 PM 02:00 PM - 02:15 PM 2 226 3 267 3 9 5 5 178 200 5 5 1 0 1 1 8 8 8 7 0 0 7 11 443 518 02:15 PM - 02:30 PM 5 222 7 3 213 4 0 2 8 10 1 6 481 02:30 PM - 02:45 PM 02:45 PM - 03:00 PM 7 236 4 219 4 4 8 9 227 207 2 2 0 1 1 2 11 6 3 5 1 0 7 10 507 469 03:00 PM - 03:15 PM 6 266 5 6 191 4 0 1 4 4 2 7 496 03:15 PM - 03:30 PM 03:30 PM - 03:45 PM 2 256 4 213 7 6 3 2 216 213 9 4 1 1 2 0 6 5 5 5 0 0 10 4 518 458 03:45 PM - 04:00 PM 3 297 4 6 247 10 0 0 2 4 0 9 582 04:00 PM - 04:15 PM 04:15 PM - 04:30 PM 11 6 256 268 4 6 3 3 232 254 4 5 0 1 0 1 3 6 0 1 0 1 6 5 517 563 04:30 PM - 04:45 PM 04:45 PM - 05:00 PM 8 274 7 4 229 6 0 0 6 0 0 11 545 05:00 PM - 05:15 PM 11 267 9 292 7 5 6 3 200 219 5 10 0 0 0 0 2 5 7 3 0 2 13 14 520 562 05:15 PM - 05:30 PM 05:30 PM - 05:45 PM 10 10 247 260 3 2 4 8 272 262 12 11 0 0 0 2 7 2 0 3 0 3 5 7 566 571 05:45 PM - 06:00 PM 14 290 7 6 247 10 0 0 3 3 0 7 587 06:00 PM - 06:15 PM 06:15 PM - 06:30 PM 10 6 226 268 7 9 1 5 232 171 6 7 0 1 0 0 10 7 5 3 0 1 7 6 501 489 06:30 PM - 06:45 PM 6 265 1 1 180 9 2 2 5 1 0 3 477 06:45 PM - 07:00 PM 07:00 PM - 07:15 PM 8 220 0 0 3 0 1 0 188 0 8 0 2 0 0 0 7 0 4 0 0 0 1 0 444 0 07:15 PM - 07:30 PM 0 0 0 0 0 0 0 0 0 0 0 0 0 07:30 PM - 07:45 PM 07:45 PM - 08:00 PM 0 0 0 0 0 0 0 0 0 0 0 0 0 0 0 0 0 0 0 0 0 0 0 0 0 0 08:00 PM - 08:15 PM 0 0 0 0 0 0 0 0 0 0 0 0 0 08:15 PM - 08:30 PM 08:30 PM - 08:45 PM 0 0 0 0 0 0 0 0 0 0 0 0 0 0 0 0 0 0 0 0 0 0 0 0 0 0 08:45 PM - 09:00 PM 0 0 0 0 0 0 0 0 0 0 0 0 0 09:00 PM - 09:15 PM 09:15 PM - 09:30 PM 0 0 0 0 0 0 0 0 0 0 0 0 0 0 0 0 0 0 0 0 0 0 0 0 0 0 09:30 PM - 09:45 PM 0 0 0 0 0 0 0 0 0 0 0 0 0 09:45 PM - 10:00 PM 10:00 PM - 10:15 PM 0 0 0 0 0 0 0 0 0 0 0 0 0 0 0 0 0 0 0 0 0 0 0 0 0 0 10:15 PM - 10:30 PM 0 0 0 0 0 0 0 0 0 0 0 0 0 10:30 PM - 10:45 PM 10:45 PM - 11:00 PM 0 0 0 0 0 0 0 0 0 0 0 0 0 0 0 0 0 0 0 0 0 0 0 0 0 0 11:00 PM - 11:15 PM 11:15 PM - 11:30 PM 0 0 0 0 0 0 0 0 0 0 0 0 0 11:30 PM - 11:45 PM 0 0 0 0 0 0 0 0 0 0 0 0 0 0 0 0 0 0 0 0 0 0 0 0 0 0 11:45 PM - 12:00 AM 0 0 0 0 0 0 0 0 0 0 0 0 0
Start Date: 10/10/2024 GA- 9 Atlanta St (S outh) GA-9 Atlanta St (N lorth) Driveway Oak St Time NBL Northbound NBT NBR SBL Southbound SBT SBR EBL Eastbound EBT EBR WBL Westbound WBT WBR Total NBL Northbound Southbound SBT 0 0 0 0 0 0 0 0 0 0 0 0 0 0 0 0 0 0 0 EBL 00 00 00 00 00 00 00 00 00 00 00 00 00 Eastbound EBT 0 0 0 0 0 0 0 0 0 0 0 0 0 0 0 0 0 0 0 EBR 0 0 0 0 0 0 0 0 0 0 0 0 0 0 0 0 0 0 0 Westbound WBR 0 0 0 0 0 0 0 0 0 0 0 0 0 0 0 0 0 0 0 Total 0 0 0 0 0 0 0 0 0 0 0 0 0 0 0 0 0 0 06:30 AM - 06:45 AM 07:00 AM - 07:00 AM 07:00 AM - 07:15 AM 07:15 AM - 07:30 AM 07:15 AM - 07:30 AM 07:45 AM - 07:45 AM 07:45 AM - 08:00 AM 08:00 AM - 08:15 AM 08:15 AM - 08:30 AM 08:30 AM - 08:45 AM 08:30 AM - 08:45 AM 09:00 AM - 09:15 AM 09:15 AM - 09:00 AM 09:15 AM - 09:00 AM 09:30 AM - 09:15 AM 09:30 AM - 09:45 AM 10:30 AM - 10:30 AM 10:30 AM - 10:30 AM 10:30 AM - 10:30 AM 10:30 AM - 10:30 AM 10:45 AM - 11:30 AM 11:15 AM - 11:30 AM 11:15 AM - 11:30 AM 11:30 AM - 11:45 AM 11:45 AM - 12:00 PM 12:30 PM - 12:45 PM 12:45 PM - 01:00 PM 12:30 PM - 12:45 PM 11:45 PM - 01:30 PM 01:30 PM - 01:45 PM 01:45 PM - 01:30 PM 01:45 PM - 02:30 PM 02:30 PM - 02:45 PM 02:45 PM - 02:30 PM 02:30 PM - 02:45 PM 02:45 PM - 02:30 PM 02:30 PM - 02:45 PM 03:15 PM - 03:30 PM 03:30 PM - 03:45 PM 03:315 PM - 03:30 PM 03:35 PM - 03:30 PM 0 0 0 0 0 1 1 149 0 203 0 203 0 211 0 190 0 0 0 0 0 0 0 0 0 0 0 0 0 0 0 0 0 44 68 144 76 55 111 0 0 0 0 0 0 0 0 0 0 0 0 0 0 0 0 0 0 0 196 4 227 6 300 3 330 0 299 2 312 2 312 2 281 0 0 0 0 0 0 0 0 0 0 0 0 0 0 0 0 0 0 0 003334426800000000000000000000000000000000000 00 01 11 10 22 20 00 00 00 00 00 00 00 00 00 00 00 0 0 0 1 1 0 0 0 0 0 0 0 0 0 0 0 0 0 0 0 001000000000000000000000000000000000000 0 9 9 12 7 7 20 8 8 11 10 0 0 0 0 0 0 0 0 0 0 0 0 0 0 0 0 0 0 2 1 3 1 1 1 2 3 3 0 0 0 0 0 0 0 0 0 0 0 0 0 0 0 0 0 00 0 3 3 6 5 5 10 11 8 8 7 7 0 0 0 0 0 0 0 0 0 0 0 0 0 0 0 0 0 377 448 537 593 531 568 544 0 0 0 0 0 0 0 0 0 0 0 0 0 0 0 0 0 0 03:45 PM - 04:00 PM 04:00 PM - 04:15 PM 04:15 PM - 04:30 PM 04:45 PM - 04:30 PM 05:00 PM - 05:00 PM 05:00 PM - 05:15 PM 05:15 PM - 05:30 PM 05:30 PM - 05:45 PM 05:45 PM - 06:00 PM 06:00 PM - 06:15 PM 06:15 PM - 06:00 PM 06:30 PM - 06:45 PM 06:30 PM - 06:30 PM 07:00 PM - 07:15 PM 07:15 PM - 07:30 PM 07:30 PM - 07:45 PM 07:45 PM - 08:00 PM 08:15 PM - 08:00 PM 08:15 PM - 08:00 PM 08:00 PM - 08:15 PM 08:15 PM - 08:00 PM 08:15 PM - 08:00 PM 08:15 PM - 08:00 PM 08:15 PM - 08:00 PM 08:15 PM - 08:00 PM 08:15 PM - 08:00 PM 08:15 PM - 08:00 PM 09:00 PM - 09:15 PM 09:15 PM - 09:30 PM 09:00 PM - 09:15 PM 09:15 PM - 09:30 PM 09:30 PM - 09:45 PM 10:15 PM - 10:30 PM 10:15 PM - 10:30 PM 10:15 PM - 10:30 PM 10:15 PM - 10:30 PM 10:15 PM - 11:30 PM 11:10 PM - 11:30 PM 11:15 PM - 11:30 PM 11:15 PM - 11:30 PM 11:15 PM - 11:45 PM 0 0 0 0 0 0 254 0 250 0 267 0 267 0 267 0 267 0 0 267 0 0 0 0 0 0 0 0 0 0 0 0 0 0 0 0 0 0 0 0 12 5 14 10 8 8 11 11 15 0 0 0 0 0 0 0 0 0 0 0 0 0 0 0 5 10 7 6 55 331315000000000000000000000000000000000 2 0 1 4 4 0 0 0 0 0 0 0 0 0 0 0 0 0 0 0 0 1 0 0 0 0 1 1 0 0 0 0 0 0 0 0 0 0 0 0 0 000000000000000000000000000000000000000 0 122 188 15 10 20 20 17 13 0 0 0 0 0 0 0 0 0 0 0 0 0 0 0 0 0 0 0 1 2 2 0 0 0 0 0 0 0 0 0 0 0 0 0 0 0 0 05 15 7 111 117 188 152 144 00 00 00 00 00 00 00 00 00 00 00 00 0 0 0 0 0 0 0 0 0 0 0 0 0 0 0 0 0 0 0 0
Start Date: 10/10/2024 GA-9 Atlanta St (So uth) GA-9 Atl anta St (No orth) ( Oxbo Rd (Wes 21) Ovh o Rd (East) - Northbound NBT NBR uthbound SBR EBL Eastbound EBT EBR estbound WBR Total Time 15 Minute Totals HDL HDI ווטוז JDL 301 SDU LDL LDI LDN WDL 401 ווטיי IVIAI 12:00 AM - 12:15 AM 0 0 0 0 0 0 0 0 0 0 0 0 0 12:15 AM - 12:30 AM 12:30 AM - 12:45 AM 0 0 0 0 0 0 0 0 0 0 0 0 0 12:45 AM - 01:00 AM 01:00 AM - 01:15 AM 0 0 0 0 0 0 0 0 0 0 0 0 0 0 0 0 0 0 01:15 AM - 01:30 AM 01:30 AM - 01:45 AM 0 0 0 0 0 0 0 0 0 0 0 0 0 0 0 01:45 AM - 02:00 AM 0 0 0 0 0 Ö 0 0 0 0 0 0 0 02:00 AM - 02:15 AM 02:15 AM - 02:30 AM 0 0 0 0 0 0 0 0 0 0 0 0 0 0 0 0 0 0 02:30 AM - 02:45 AM 02:45 AM - 03:00 AM 0 0 0 0 0 0 0 0 0 0 0 0 0 0 0 0 0 03:00 AM - 03:15 AM 03:15 AM - 03:30 AM 0 0 0 0 0 0 0 0 0 0 0 0 0 0 0 03:30 AM - 03:45 AM 0 0 0 0 0 ő 0 0 0 0 0 0 0 03:45 AM - 04:00 AM 04:00 AM - 04:15 AM 0 0 0 0 0 0 0 0 0 0 0 0 0 0 0 0 0 0 0 0 04:15 AM - 04:30 AM 04:30 AM - 04:45 AM 0 0 0 0 0 0 0 0 0 0 0 0 0 0 04:45 AM - 05:00 AM 05:00 AM - 05:15 AM 0 0 0 0 0 0 0 0 0 0 0 0 0 05:15 AM - 05:30 AM 0 0 0 0 0 0 0 0 0 0 0 0 0 05:30 AM - 05:45 AM 05:45 AM - 06:00 AM 0 0 0 0 0 0 0 0 0 0 0 0 0 0 0 0 0 0 0 06:00 AM - 06:15 AM 06:15 AM - 06:30 AM 0 0 0 0 0 0 0 0 0 0 0 0 0 0 06:30 AM - 06:45 AM 06:45 AM - 07:00 AM 0 0 0 0 0 0 0 0 0 0 0 0 0 07:00 AM - 07:15 AM 0 155 54 9 196 Ö 3 18 6 26 6 5 479 07:15 AM - 07:30 AM 07:30 AM - 07:45 AM 4 2 177 208 56 65 14 14 216 288 0 2 4 18 3 36 8 10 40 33 16 18 2 8 555 687 07:45 AM - 08:00 AM 08:00 AM - 08:15 AM 2 205 183 57 89 8 17 321 307 1 1 1 29 7 31 16 2 51 48 30 26 3 7 735 721 08:15 AM - 08:30 AM 08:30 AM - 08:45 AM 4 169 61 13 304 4 6 31 12 59 24 4 7 692 08:45 AM - 09:00 AM 3 183 228 70 76 23 13 304 281 3 2 21 9 29 9 10 45 51 24 24 0 696 730 09:00 AM - 09:15 AM 09:15 AM - 09:30 AM 0 0 0 0 0 0 0 0 0 0 0 0 0 0 0 0 0 0 09:30 AM - 09:45 AM 09:45 AM - 10:00 AM 0 0 0 0 0 0 0 0 0 0 0 0 0 10:00 AM - 10:15 AM 0 0 0 0 0 Ö 0 0 0 0 0 0 0 10:15 AM - 10:30 AM 10:30 AM - 10:45 AM 0 0 0 0 0 0 0 0 0 0 0 0 0 0 0 0 0 0 0 10:45 AM - 11:00 AM 11:00 AM - 11:15 AM 0 0 0 0 0 0 0 0 0 0 0 0 0 0 0 0 0 11:15 AM - 11:30 AM 11:30 AM - 11:45 AM 0 0 0 0 0 0 0 0 0 0 0 0 0 11:45 AM - 12:00 PM 0 0 0 0 0 Ö 0 0 0 0 0 0 0 12:00 PM - 12:15 PM 12:15 PM - 12:30 PM 0 0 0 0 0 0 0 0 0 0 0 0 0 0 0 0 0 0 0 12:30 PM - 12:45 PM 12:45 PM - 01:00 PM 0 0 0 0 0 0 0 0 0 0 0 0 0 0 0 0 0 01:00 PM - 01:15 PM 01:15 PM - 01:30 PM 0 0 0 0 0 0 0 0 0 0 0 0 0 0 01:30 PM - 01:45 PM 0 0 0 0 0 ő 0 0 0 0 0 0 0 01:45 PM - 02:00 PM 02:00 PM - 02:15 PM 0 0 0 0 0 0 0 0 0 0 0 0 0 0 0 0 0 0 0 02:15 PM - 02:30 PM 02:30 PM - 02:45 PM 0 0 0 0 0 0 0 0 0 0 0 0 0 0 02:45 PM - 03:00 PM 03:00 PM - 03:15 PM 0 0 0 0 0 0 0 0 0 0 0 0 0 03:15 PM - 03:30 PM 0 0 0 0 Ö 0 0 0 0 0 0 0 0 03:30 PM - 03:45 PM 03:45 PM - 04:00 PM 0 0 0 0 0 0 0 0 0 0 0 0 0 0 0 0 0 0 0 0 04:00 PM - 04:15 PM 04:15 PM - 04:30 PM 11 16 266 234 66 47 15 25 225 227 8 5 1 25 0 18 4 7 60 81 32 34 9 6 722 700 04:30 PM - 04:45 PM 04:45 PM - 05:00 PM 23 20 284 273 96 96 17 22 206 207 10 8 0 16 6 25 6 5 55 61 35 41 6 9 755 773 05:00 PM - 05:15 PM 15 250 81 17 200 13 3 25 9 80 59 13 767 05:15 PM - 05:30 PM 05:30 PM - 05:45 PM 14 17 257 246 89 88 26 9 263 219 15 19 1 41 1 16 5 1 71 78 34 70 4 12 821 776 05:45 PM - 06:00 PM 06:00 PM - 06:15 PM 23 0 306 0 89 0 12 0 258 0 27 0 1 23 0 7 0 49 0 41 0 6 0 842 0 06:15 PM - 06:30 PM 06:30 PM - 06:45 PM 0 0 0 0 0 0 0 0 0 0 0 0 0 06:45 PM - 07:00 PM 07:00 PM - 07:15 PM 0 0 0 0 0 0 0 0 0 0 0 0 0 07:15 PM - 07:30 PM 0 0 0 0 Ō 0 0 0 0 0 0 0 0 07:30 PM - 07:45 PM 07:45 PM - 08:00 PM 0 0 0 0 0 0 0 0 0 0 0 0 0 0 0 0 08:00 PM - 08:15 PM 08:15 PM - 08:30 PM 0 0 0 0 0 0 0 0 0 0 0 0 0 0 0 08:30 PM - 08:45 PM 0 0 0 0 0 0 0 0 0 0 0 0 0 08:45 PM - 09:00 PM 09:00 PM - 09:15 PM 0 0 0 0 0 0 0 0 0 0 0 0 0 09:15 PM - 09:30 PM 09:30 PM - 09:45 PM 0 0 0 0 0 0 0 0 0 0 0 0 0 0 0 0 09:45 PM - 10:00 PM 10:00 PM - 10:15 PM 0 0 0 0 0 0 0 0 0 0 0 0 0 10:15 PM - 10:30 PM 0 0 0 Ö ő 0 0 0 0 0 0 0 0 10:30 PM - 10:45 PM 10:45 PM - 11:00 PM 0 0 0 0 0 0 0 0 0 0 0 0 0 0 0 0 0 0 0 0 11:00 PM - 11:15 PM 11:15 PM - 11:30 PM 0 0 0 0 0 0 0 0 0 0 0 0 0 0 0 11:30 PM - 11:45 PM 11:45 PM - 12:00 AM 0 0 0 0 0 0 0 0 0 0 0 0 0 113 FW - 12.00 AW . 0 U ٥Į U U ٥Į . 0 U U U U U
Start Date: 10/10/2024 Ellis St (South 1) Ellis St (No rth) Hill St (V Vest) Hill St (Eas st) Time NBL Northbound NBT NBR SBL Southbou EBI Eastbo und В WBL Westbour WBT Total 15 Minute Totals NDL NDT III ODL 051 ODII WDL **** WEIT Total 12:00 AM - 12:15 AM 0 0 0 0 0 0 0 0 0 0 0 12:15 AM - 12:30 AM 12:30 AM - 12:45 AM 0 0 0 0 0 0 0 0 0 0 0 0 0 0 0 0 0 12:45 AM - 01:00 AM 01:00 AM - 01:15 AM 0 0 0 0 0 0 0 0 0 0 0 0 0 0 01:15 AM - 01:30 AM 0 0 0 0 0 0 0 0 0 0 ) 0 0 01:30 AM - 01:45 AM 01:45 AM - 02:00 AM 0 0 0 0 0 0 0 0 0 0 0 0 0 0 0 02:00 AM - 02:15 AM 0 0 0 0 0 0 0 0 0 0 ) 0 0 02:15 AM - 02:30 AM 02:30 AM - 02:45 AM 0 0 0 0 0 0 0 0 0 0 0 0 0 0 0 02:45 AM - 03:00 AM 03:00 AM - 03:15 AM 0 0 0 0 0 0 0 0 0 0 0 0 0 0 0 03:15 AM - 03:30 AM 0 0 0 0 0 0 0 0 0 0 ) 0 0 03:30 AM - 03:45 AM 03:45 AM - 04:00 AM 0 0 0 0 0 0 0 0 0 0 0 0 0 0 0 04:00 AM - 04:15 AM 0 0 0 0 0 0 0 0 0 0 0 0 0 04:15 AM - 04:30 AM 04:30 AM - 04:45 AM 0 0 0 0 0 0 0 0 0 0 0 ( 0 0 04:45 AM - 05:00 AM 05:00 AM - 05:15 AM 0 0 0 0 0 0 0 0 0 0 0 0 0 0 05:15 AM - 05:30 AM 0 0 0 0 0 0 0 0 0 0 ) 0 0 05:30 AM - 05:45 AM 05:45 AM - 06:00 AM 0 0 0 0 0 0 0 0 0 0 0 0 0 0 0 06:00 AM - 06:15 AM 06:15 AM - 06:30 AM 0 0 0 0 0 0 0 0 0 0 0 0 0 0 06:30 AM - 06:45 AM 0 0 0 0 0 0 0 0 0 0 ) 0 0 06:45 AM - 07:00 AM 07:00 AM - 07:15 AM 0 0 0 0 0 0 0 0 3 0 4 0 3 0 0 0 2 19 07:15 AM - 07:30 AM 1 0 0 1 2 1 3 3 7 2 1 2 29 07:30 AM - 07:45 AM 07:45 AM - 08:00 AM 2 0 3 0 0 1 0 0 4 15 4 2 2 2 6 0 22 2 45 08:00 AM - 08:15 AM 08:15 AM - 08:30 AM 0 0 1 0 0 1 2 1 11 11 4 3 0 4 3 3 34 2 36 08:30 AM - 08:45 AM 2 2 2 0 1 1 4 4 4 1 : 2 1 29 08:45 AM - 09:00 AM 09:00 AM - 09:15 AM 2 3 0 3 0 0 1 0 0 8 0 8 0 2 0 0 3 4 42 0 0 09:15 AM - 09:30 AM 0 0 0 0 0 0 0 0 0 0 ) 0 0 09:30 AM - 09:45 AM 09:45 AM - 10:00 AM 0 0 0 0 0 0 0 0 0 0 0 0 0 0 0 0 0 10:00 AM - 10:15 AM 10:15 AM - 10:30 AM 0 0 0 0 0 0 0 0 0 0 0 0 0 0 10:30 AM - 10:45 AM 0 0 0 0 0 0 0 0 0 0 ) 0 0 10:45 AM - 11:00 AM 11:00 AM - 11:15 AM 0 0 0 0 0 0 0 0 0 0 0 0 0 0 0 0 11:15 AM - 11:30 AM 11:30 AM - 11:45 AM 0 0 0 0 0 0 0 0 0 0 0 0 0 0 11:45 AM - 12:00 PM 0 0 0 0 0 0 0 0 0 0 ) 0 0 12:00 PM - 12:15 PM 12:15 PM - 12:30 PM 0 0 0 0 0 0 0 0 0 0 0 0 0 0 12:30 PM - 12:45 PM 0 0 0 0 0 0 0 0 0 0 ) 0 0 12:45 PM - 01:00 PM 01:00 PM - 01:15 PM 0 0 0 0 0 0 0 0 0 0 0 0 0 ( 0 0 01:15 PM - 01:30 PM 01:30 PM - 01:45 PM 0 0 0 0 0 0 0 0 0 0 0 0 0 0 01:45 PM - 02:00 PM 0 0 0 0 0 0 0 0 0 0 ) 0 0 02:00 PM - 02:15 PM 02:15 PM - 02:30 PM 0 0 0 0 0 0 0 0 0 0 0 0 ( 0 0 02:30 PM - 02:45 PM 02:45 PM - 03:00 PM 0 0 0 0 0 0 0 0 0 0 0 0 • 0 0 03:00 PM - 03:15 PM 0 0 0 0 0 0 0 0 0 0 ) 0 0 03:15 PM - 03:30 PM 03:30 PM - 03:45 PM 0 0 0 0 0 0 0 0 0 0 0 0 0 , 0 0 03:45 PM - 04:00 PM 0 0 0 0 0 0 0 0 0 0 ) 0 0 04:00 PM - 04:15 PM 04:15 PM - 04:30 PM 2 0 2 8 5 1 0 4 1 0 0 3 7 4 2 2 4 ) 1 32 04:30 PM - 04:45 PM 04:45 PM - 05:00 PM 4 1 2 1 7 7 2 5 1 2 1 3 9 5 3 4 10 2 45 1 58 05:00 PM - 05:15 PM 2 2 4 6 7 5 1 6 3 0 7 1 49 05:15 PM - 05:30 PM 05:30 PM - 05:45 PM 2 0 2 1 3 5 3 2 2 4 7 6 3 0 5 3 8 1 3 39 0 41 05:45 PM - 06:00 PM 06:00 PM - 06:15 PM 1 0 0 5 0 2 0 4 3 0 9 0 0 2 9 1 36 0 0 06:15 PM - 06:30 PM 0 0 0 0 0 0 0 0 0 0 ) 0 0 06:30 PM - 06:45 PM 06:45 PM - 07:00 PM 0 0 0 0 0 0 0 0 0 0 0 0 0 0 0 07:00 PM - 07:15 PM 07:15 PM - 07:30 PM 0 0 0 0 0 0 0 0 0 0 0 0 0 0 07:30 PM - 07:45 PM 0 0 0 0 0 0 0 0 0 0 ) 0 0 07:45 PM - 08:00 PM 08:00 PM - 08:15 PM 0 0 0 - 0 0 0 0 0 0 0 0 0 0 08:15 PM - 08:30 PM 0 0 0 0 0 0 0 0 0 0 ) 0 0 08:30 PM - 08:45 PM 08:45 PM - 09:00 PM ! 0 0 0 0 0 0 0 0 0 0 0 0 0 ( ) 0 0 09:00 PM - 09:15 PM 09:15 PM - 09:30 PM 0 0 0 0 0 0 0 0 0 0 0 0 09:30 PM - 09:45 PM 0 0 0 0 0 0 0 0 0 0 ) 0 0 09:45 PM - 10:00 PM 10:00 PM - 10:15 PM 0 0 0 0 0 0 0 0 0 0 0 0 0 0 10:15 PM - 10:30 PM 0 0 0 0 0 0 0 0 0 0 ) 0 0 10:30 PM - 10:45 PM 10:45 PM - 11:00 PM ! 0 0 0 0 0 0 0 0 0 0 0 0 0 0 ( ) 0 0 11:00 PM - 11:15 PM 11:15 PM - 11:30 PM ! 0 0 0 0 0 0 0 0 0 0 0 0 0 11:30 PM - 11:45 PM 0 0 0 0 0 0 0 0 0 0 ) 0 0 11:45 PM - 12:00 AM ı 0 0 0 0 0 0 0 0 0 0 J 0
Start Date: 10/10/2024 F orrest St (So F orrest St (Nor th) Hill St (West) Hill St (East) Time NBL Northbound NBT NBR SBL Southbound SBT SBR EBL Eastbound EBT EBR WBL Westbound WBT WBR Total 15 Minute Totals · 12:00 AM - 12:15 AM 12:15 AM - 12:30 AM 0 0 ( 0 0 0 0 0 0 0 0 0 0 0 12:30 AM - 12:45 AM 12:45 AM - 01:00 AM 0 0 ( 0 0 0 0 0 0 0 0 0 01:00 AM - 01:15 AM 0 0 0 ( 0 0 0 0 0 0 0 0 0 01:15 AM - 01:30 AM 01:30 AM - 01:45 AM 0 0 ( 0 0 0 0 0 0 0 0 0 0 01:45 AM - 02:00 AM 0 0 0 ( 0 0 0 0 0 0 0 0 02:00 AM - 02:15 AM 02:15 AM - 02:30 AM 0 0 ( 0 0 0 0 0 0 0 0 0 0 02:30 AM - 02:45 AM 02:45 AM - 03:00 AM 0 0 ( 0 0 0 0 0 0 0 0 0 0 03:00 AM - 03:15 AM 0 0 0 ( 0 0 0 0 0 0 0 0 0 03:15 AM - 03:30 AM 03:30 AM - 03:45 AM 0 0 ( 0 0 0 0 0 0 0 0 0 0 0 03:45 AM - 04:00 AM 04:00 AM - 04:15 AM 0 0 ( 0 0 0 0 0 0 0 0 0 04:15 AM - 04:30 AM 0 0 0 ( 0 0 0 0 0 0 0 0 0 04:30 AM - 04:45 AM 04:45 AM - 05:00 AM 0 0 ( 0 0 0 0 0 0 0 0 0 0 05:00 AM - 05:15 AM 05:15 AM - 05:30 AM 0 0 ( 0 0 0 0 0 0 0 0 0 05:30 AM - 05:45 AM 0 0 0 ( 0 0 0 0 0 0 0 0 0 05:45 AM - 06:00 AM 06:00 AM - 06:15 AM 0 0 ( 0 0 0 0 0 0 0 0 0 0 0 06:15 AM - 06:30 AM 06:30 AM - 06:45 AM 0 0 ( 0 0 0 0 0 0 0 0 0 06:45 AM - 07:00 AM 0 0 0 ( 0 0 0 0 0 0 0 0 0 07:00 AM - 07:15 AM 07:15 AM - 07:30 AM 0 0 0 : : 1 4 1 0 2 2 1 7 0 5 0 0 19 26 07:30 AM - 07:45 AM 07:45 AM - 08:00 AM 0 6 5 4 9 3 1 0 1 3 1 0 26 35 08:00 AM - 08:15 AM 0 4 0 ( 7 8 4 1 0 0 2 0 26 08:15 AM - 08:30 AM 08:30 AM - 08:45 AM 1 5 1 3 ( 4 1 1 5 2 0 0 3 1 0 28 20 08:45 AM - 09:00 AM 09:00 AM - 09:15 AM 1 5 0 ( 9 7 3 0 0 0 0 0 0 0 32 0 09:15 AM - 09:30 AM 0 0 0 ( 0 0 0 0 0 0 0 0 0 09:30 AM - 09:45 AM 09:45 AM - 10:00 AM 0 0 ( 0 0 0 0 0 0 0 0 0 10:00 AM - 10:15 AM 10:15 AM - 10:30 AM 0 0 ( 0 0 0 0 0 0 0 0 10:30 AM - 10:45 AM 0 0 0 ( 0 0 0 0 0 0 0 0 0 10:45 AM - 11:00 AM 11:00 AM - 11:15 AM 0 0 ( 0 0 0 0 0 0 0 0 0 11:15 AM - 11:30 AM 11:30 AM - 11:45 AM 0 0 ( 0 0 0 0 0 0 0 0 11:45 AM - 12:00 PM 0 0 0 ( 0 0 0 0 0 0 0 0 0 12:00 PM - 12:15 PM 12:15 PM - 12:30 PM 0 0 ( 0 0 0 0 0 0 0 0 0 0 12:30 PM - 12:45 PM 12:45 PM - 01:00 PM 0 0 ( 0 0 0 0 0 0 0 0 01:00 PM - 01:15 PM 0 0 0 ( 0 0 0 0 0 0 0 0 0 01:15 PM - 01:30 PM 01:30 PM - 01:45 PM 0 0 ( 0 0 0 0 0 0 0 0 0 01:45 PM - 02:00 PM 02:00 PM - 02:15 PM 0 0 ( 0 0 0 0 0 0 0 0 02:15 PM - 02:30 PM 0 0 0 ( 0 0 0 0 0 0 0 0 0 02:30 PM - 02:45 PM 02:45 PM - 03:00 PM 0 0 ( 0 0 0 0 0 0 0 0 0 03:00 PM - 03:15 PM 03:15 PM - 03:30 PM 0 0 0 ( 0 0 0 0 0 0 0 0 03:30 PM - 03:45 PM 0 0 0 Ċ 0 0 0 0 0 0 0 Ō 0 03:45 PM - 04:00 PM 04:00 PM - 04:15 PM 0 0 0 0 9 0 9 0 0 8 3 0 4 0 0 0 0 0 45 04:15 PM - 04:30 PM 04:30 PM - 04:45 PM 1 7 0 7 0 2 1 9 12 7 1 7 3 1 0 2 1 1 34 44 04:45 PM - 05:00 PM 0 12 1 1 9 12 1 1 3 0 2 3 0 57 05:00 PM - 05:15 PM 05:15 PM - 05:30 PM 0 10 1 8 8 7 1 0 4 1 4 1 0 2 1 0 2 2 2 49 47 05:30 PM - 05:45 PM 05:45 PM - 06:00 PM 0 10 13 7 8 2 9 5 1 0 3 0 3 1 0 49 41 06:00 PM - 06:15 PM 0 0 0 ( 0 0 0 0 0 0 0 0 0 0 06:15 PM - 06:30 PM 06:30 PM - 06:45 PM 0 0 0 0 0 0 0 0 0 0 0 0 0 0 0 06:45 PM - 07:00 PM 07:00 PM - 07:15 PM 0 0 ( 0 0 0 0 0 0 0 0 0 07:15 PM - 07:30 PM 0 0 0 ( 0 0 0 0 0 0 0 0 0 07:30 PM - 07:45 PM 07:45 PM - 08:00 PM 0 0 0 0 0 0 0 0 0 0 0 0 0 0 0 08:00 PM - 08:15 PM 08:15 PM - 08:30 PM 0 0 ( 0 0 0 0 0 0 0 0 0 08:30 PM - 08:45 PM 0 0 0 ( 0 0 0 0 0 0 0 0 0 08:45 PM - 09:00 PM 09:00 PM - 09:15 PM 0 0 0 0 0 0 0 0 0 0 0 0 0 0 0 09:15 PM - 09:30 PM 09:30 PM - 09:45 PM 0 0 ( 0 0 0 0 0 0 0 0 0 0 0 09:45 PM - 10:00 PM 0 0 0 ( 0 0 0 0 0 0 0 0 0 10:00 PM - 10:15 PM 10:15 PM - 10:30 PM 0 0 0 0 0 0 0 0 0 0 0 0 0 0 0 10:30 PM - 10:45 PM 10:45 PM - 11:00 PM 0 0 0 ( 0 0 0 0 0 0 0 0 0 0 11:00 PM - 11:15 PM 0 0 0 ( 0 0 0 0 0 0 0 0 0 11:15 PM - 11:30 PM 11:30 PM - 11:45 PM 0 0 0 0 0 0 0 0 0 0 0 0 0 0 0 11:45 PM - 12:00 AM 0 0 0 ( 0 0 İ 0 0 0 0 0 0 0
Start Date: 10/10/2024 Forrest St Fraser St Ne orcross St (We est) N orcross St (Ea st) Time NBL Northbound NBT NBR SBL Southbound SBT SBR EBL Eastbound EBT EBR WBL Westbound WBT WBR Total 15 Minute Totals • _ 12:00 AM - 12:15 AM 12:15 AM - 12:30 AM 0 0 0 0 ( 0 0 0 0 0 0 0 0 0 12:30 AM - 12:45 AM 12:45 AM - 01:00 AM 0 0 0 ( 0 0 0 0 0 0 0 0 0 0 01:00 AM - 01:15 AM 0 0 0 ( 0 0 0 0 0 0 0 0 0 01:15 AM - 01:30 AM 01:30 AM - 01:45 AM 0 0 0 ( 0 0 0 0 0 0 0 0 0 0 01:45 AM - 02:00 AM 02:00 AM - 02:15 AM 0 0 0 ( 0 0 0 0 0 0 0 0 02:15 AM - 02:30 AM 0 0 0 ( 0 0 0 0 0 0 0 0 0 02:30 AM - 02:45 AM 02:45 AM - 03:00 AM 0 0 0 ( 0 0 0 0 0 0 0 0 0 03:00 AM - 03:15 AM 03:15 AM - 03:30 AM 0 0 0 ( 0 0 0 0 0 0 0 0 0 03:30 AM - 03:45 AM 0 0 0 ( 0 0 0 0 0 0 0 0 0 03:45 AM - 04:00 AM 04:00 AM - 04:15 AM 0 0 0 0 ( 0 0 0 0 0 0 0 0 0 0 04:15 AM - 04:30 AM 04:30 AM - 04:45 AM 0 0 0 ( 0 0 0 0 0 0 0 0 04:45 AM - 05:00 AM 0 0 0 ( 0 0 0 0 0 0 0 0 0 05:00 AM - 05:15 AM 05:15 AM - 05:30 AM 0 0 0 ( 0 0 0 0 0 0 0 0 0 05:30 AM - 05:45 AM 05:45 AM - 06:00 AM 0 0 0 ( 0 0 0 0 0 0 0 0 0 06:00 AM - 06:15 AM 0 0 0 ( 0 0 0 0 0 0 0 0 0 06:15 AM - 06:30 AM 06:30 AM - 06:45 AM 0 0 0 ( 0 0 0 0 0 0 0 0 0 06:45 AM - 07:00 AM 07:00 AM - 07:15 AM 0 0 0 ( 0 0 0 1 53 0 0 0 3 43 0 14 0 134 07:15 AM - 07:30 AM 0 2 4 15 5 6 1 0 79 3 8 33 17 176 07:30 AM - 07:45 AM 07:45 AM - 08:00 AM 0 6 2 6 2 2 18 1 5 0 77 2 75 0 3 4 39 8 60 12 17 176 202 08:00 AM - 08:15 AM 08:15 AM - 08:30 AM 0 1 3 7 8 24 22 1 2 0 96 0 66 2 1 5 69 2 54 11 16 242 191 08:30 AM - 08:45 AM 0 6 3 24 1 3 3 1 68 3 4 47 10 180 08:45 AM - 09:00 AM 09:00 AM - 09:15 AM 1 6 0 0 6 0 12 4 1 84 0 0 7 0 7 43 0 0 15 0 201 0 09:15 AM - 09:30 AM 0 0 0 ( 0 0 0 0 0 0 0 0 0 09:30 AM - 09:45 AM 09:45 AM - 10:00 AM 0 0 0 ( 0 0 0 0 0 0 0 0 0 10:00 AM - 10:15 AM 10:15 AM - 10:30 AM 0 0 0 ( 0 0 0 0 0 0 0 0 0 10:30 AM - 10:45 AM 0 0 0 ( 0 0 0 0 0 0 0 0 0 10:45 AM - 11:00 AM 11:00 AM - 11:15 AM 0 0 0 ( 0 0 0 0 0 0 0 0 0 11:15 AM - 11:30 AM 11:30 AM - 11:45 AM 0 0 0 0 ( 0 0 0 0 0 0 0 0 0 0 11:45 AM - 12:00 PM 0 0 0 ( 0 0 0 0 0 0 0 0 12:00 PM - 12:15 PM 12:15 PM - 12:30 PM 0 0 0 ( 0 0 0 0 0 0 0 0 0 12:30 PM - 12:45 PM 12:45 PM - 01:00 PM 0 0 0 ( 0 0 0 0 0 0 0 0 0 01:00 PM - 01:15 PM 0 0 0 ( 0 0 0 0 0 0 0 0 0 01:15 PM - 01:30 PM 01:30 PM - 01:45 PM 0 0 0 ( 0 0 0 0 0 0 0 0 0 01:45 PM - 02:00 PM 02:00 PM - 02:15 PM 0 0 0 0 ( 0 0 0 0 0 0 0 0 0 0 02:15 PM - 02:30 PM 02:30 PM - 02:45 PM 0 0 0 ( 0 0 0 0 0 0 0 0 02:45 PM - 03:00 PM 0 0 0 ( 0 Ö 0 0 0 0 0 Ö 0 03:00 PM - 03:15 PM 03:15 PM - 03:30 PM 0 0 0 ( 0 0 0 0 0 0 0 0 0 03:30 PM - 03:45 PM 03:45 PM - 04:00 PM 0 0 0 ( 0 0 0 0 0 0 0 0 04:00 PM - 04:15 PM 7 12 13 24 1 8 3 0 70 2 1 7 86 19 263 04:15 PM - 04:30 PM 04:30 PM - 04:45 PM 5 7 2 12 14 10 23 19 4 5 5 64 0 86 4 6 3 75 2 85 14 26 230 273 04:45 PM - 05:00 PM 05:00 PM - 05:15 PM 4 11 3 20 13 11 29 1 2 3 69 3 80 0 6 0 81 6 109 22 23 264 298 05:15 PM - 05:30 PM 4 13 15 33 3 12 3 1 74 4 4 103 21 292 05:30 PM - 05:45 PM 05:45 PM - 06:00 PM 2 11 3 17 6 7 29 22 0 1 2 84 0 73 0 2 0 110 8 103 15 13 295 281 06:00 PM - 06:15 PM 06:15 PM - 06:30 PM 0 0 0 0 ( 0 0 0 0 0 0 0 0 0 0 06:30 PM - 06:45 PM 0 0 0 ( 0 0 0 0 0 0 0 0 0 06:45 PM - 07:00 PM 07:00 PM - 07:15 PM 0 0 0 0 ( 0 0 0 0 0 0 0 0 0 07:15 PM - 07:30 PM 07:30 PM - 07:45 PM 0 0 0 ( 0 0 0 0 0 0 0 0 0 07:45 PM - 08:00 PM 0 0 0 ( 0 0 0 0 0 0 0 0 0 08:00 PM - 08:15 PM 08:15 PM - 08:30 PM 0 0 0 ( 0 0 0 0 0 0 0 0 0 0 08:30 PM - 08:45 PM 08:45 PM - 09:00 PM 0 0 0 0 ( 0 0 0 0 0 0 0 0 0 0 09:00 PM - 09:15 PM 0 0 0 ( 0 0 0 0 0 0 0 0 0 09:15 PM - 09:30 PM 09:30 PM - 09:45 PM 0 0 0 ( 0 0 0 0 0 0 0 0 0 09:45 PM - 10:00 PM 10:00 PM - 10:15 PM 0 0 0 ( 0 0 0 0 0 0 0 0 0 10:15 PM - 10:30 PM 0 0 0 ( 0 0 0 0 0 0 0 0 0 10:30 PM - 10:45 PM 10:45 PM - 11:00 PM 0 0 0 ( 0 0 0 0 0 0 0 0 0 0 11:00 PM - 11:15 PM 11:15 PM - 11:30 PM 0 0 0 ( 0 0 0 0 0 0 0 0 0 11:30 PM - 11:45 PM 0 0 0 ( 0 0 0 0 0 0 0 0 0 11:45 PM - 12:00 AM l 0 0 0 ( 0 0 l 0 0 0 0 0 0 0
APPENDIX C Crash History Data
No Crash No Date Time Location Severity Crash Type # of Vehicles Direction 1 Direction 2 Lighting Surface 1 8029928 4/17/2021 12:50 Atlanta Street at Hill Street 0 Left Turn 2 West East Daylight Dry 2 8044139 4/29/21 15:25 Atlanta Street at Hill Street С Rear End 2 North North Daylight Dry 4 8115590 6/26/21 20:56 Atlanta Street at Hill Street С Hit Animal 1 South 0 Dark-Lighted Dry 5 8124382 7/2/21 7/28/21 13:56 17:31 Atlanta Street at Hill Street C Angle Rear End 2 East South North South Daylight Dry Dry 7 8154936 8242455 9/24/21 17:00 Atlanta Street at Hill Street Atlanta Street at Hill Street 0 Angle 2 West South Daylight Daylight Dry - 8 8292640 11/2/21 14:36 Atlanta Street at Hill Street 0 Angle 2 East South Daylight Dry 9 8384896 1/10/22 14:51 Atlanta Street at Hill Street 0 Sideswipe - Same Direction 2 North North Daylight Dry 10 8395763 1/21/22 7:25 Atlanta Street at Hill Street 0 Left Turn 2 South North Daylight Dry 11 8441692 2/26/22 13:03 Atlanta Street at Hill Street 0 Rear End 2 North North Daylight Dry 12 8441705 2/27/22 15:24 Atlanta Street at Hill Street 0 Rear End 2 South South Daylight Wet 13 8466850 3/21/22 1:32 Atlanta Street at Hill Street 0 Angle 2 West North Dark-Lighted Dry 14 8485921 4/5/22 8:26 Atlanta Street at Hill Street 0 Sideswipe - Same Direction 2 North North Dawn Dry 15 16 8528133 8529941 5/7/22 5/10/22 11:55 17:17 Atlanta Street at Hill Street Atlanta Street at Hill Street В Backing Sideswipe - Same Direction 2 South North East North Daylight Daylight Dry Dry 17 8664225 8/23/22 8:52 Atlanta Street at Hill Street 0 Sideswipe - Same Direction 2 South South Daylight Dry 18 8683663 8/31/22 8:56 Atlanta Street at Hill Street 0 Angle 2 West North Daylight Dry 19 8700452 9/13/22 17:19 Atlanta Street at Hill Street 0 Angle 2 South West Daylight Dry 20 8707517 9/16/22 7:29 Atlanta Street at Hill Street Č Angle 2 West North Daylight Dry 21 8712749 9/23/22 9:22 Atlanta Street at Hill Street С Angle 2 West North Daylight Dry 22 8712761 9/23/22 13:15 Atlanta Street at Hill Street 0 Angle 2 East North Daylight Dry 23 8716449 9/24/22 14:45 Atlanta Street at Hill Street С Rear End 2 North North Daylight Dry 24 8727815 10/5/22 8:45 Atlanta Street at Hill Street 0 Angle 2 West North Daylight Dry 25 26 8757602 8764776 10/25/22 16:36 Atlanta Street at Hill Street 0 Rear End 2 North South North South Daylight Dry Drv 27 8899535 10/31/22 2/14/23 16:36 10:00 Atlanta Street at Hill Street Atlanta Street at Hill Street 0 Sideswipe - Same Direction Rear End 2 North North Daylight Daylight Dry 28 8916890 3/1/23 15:56 Atlanta Street at Hill Street 0 Head On 2 West North Daylight Dry 29 8924414 3/8/23 7:26 Atlanta Street at Hill Street 0 Angle 2 East North Daylight Dry 30 8924572 3/7/23 18:24 Atlanta Street at Hill Street 0 Sideswipe - Same Direction 2 South South Dusk Dry 31 8941154 3/21/23 14:09 Atlanta Street at Hill Street 0 Angle 2 West East Daylight Dry 32 8967992 4/12/23 13:51 Atlanta Street at Hill Street 0 Angle 2 South South Daylight Dry 33 9008037 5/12/23 14:05 Atlanta Street at Hill Street 0 Angle 2 West South Daylight Dry 34 9064205 7/3/23 20:35 Atlanta Street at Hill Street 0 Sideswipe - Same Direction 2 South South Dark-Lighted Wet 35 9068162 7/7/23 18:02 Atlanta Street at Hill Street 0 Hit Fixed Object 1 South 0 Daylight Dry 36 9187602 10/13/23 17:01 Atlanta Street at Hill Street 0 Rear End 2 East East Daylight Dry 37 9308217 1/21/24 19:39 Atlanta Street at Hill Street 0 Angle 2 0 0 Dark-Lighted Dry 38 9412558 4/18/24 9:07 Atlanta Street at Hill Street 0 Sideswipe - Same Direction 2 0 0 Daylight Dry 39 9442811 5/14/24 16:20 Atlanta Street at Hill Street 0 Rear End 2 0 0 Daylight Dry 40 9450806 5/14/24 16:13 Atlanta Street at Hill Street C Angle 2 0 0 Daylight Dry 41 9559004 8/15/24 17:40 Atlanta Street at Hill Street 0 Angle 2 0 0 Daylight Dry 42 9585552 9/8/24 12:15 Atlanta Street at Hill Street 0 Sideswipe - Same Direction 2 0 0 Daylight Dry 43 9594340 9/13/24 16:09 Atlanta Street at Hill Street C Anale 2 0 0 Daylight Dry 43 9640843 10/21/24 0 J . 2 0 0 , , , , 44 9650095 10/21/24 8:40 13:38 Atlanta Street at Hill Street Atlanta Street at Hill Street 0 Sideswipe - Same Direction Rear End 2 0 0 Daylight Dry - Daylight Dry 46 9674772 11/14/24 7:00 Atlanta Street at Hill Street 0 Angle 2 0 0 Dark-Lighted Wet 47 9821729 3/18/25 12:33 Atlanta Street at Hill Street 0 Angle 2 North South Daylight Dry 49 7649757 5/29/20 7:57 Atlanta Street at Hill Street 0 Angle 2 West East Daylight Dry 50 7662464 6/10/20 17:43 Atlanta Street at Hill Street 0 Rear End 2 North North Daylight Wet 51 7663395 6/11/20 13:56 Atlanta Street at Hill Street 0 Sideswipe - Same Direction 2 North North Daylight Dry 52 7776872 9/16/20 16:22 Atlanta Street at Hill Street 0 Angle 2 South South Daylight Wet 53 7825329 10/27/20 7:27 Atlanta Street at Hill Street 0 Angle 2 East South Dark-Lighted Dry 54 7869418 11/25/20 13:29 Atlanta Street at Hill Street 0 Rear End 2 North North Daylight Dry 55 7536718 2/3/20 8:31 Atlanta Street at Hill Street 0 Angle 2 East North Daylight Dry 56 7809715 10/14/20 8:59 Atlanta Street at Hill Street 0 Rear End 3 North North Daylight Dry 50 7007710 10/14/20 0.07 9 Rour Enu , 1401111 1401111 Dayiigin Diy
No Crash No Date Time Location Severity Crash Type # of Vehicles Direction 1 Direction 2 Lighting Surface 3 8101551 6/15/21 17:02 between Atlanta Street and I 0 Rear End 2 East East Daylight Dry 48 9862065 4/15/25 13:00 between Atlanta Street and I 0 Sideswipe - Same Direction 2 West West Daylight Dry
No Crash No Date Time Location Severity Crash Type # of Direction 1 Direction 2 Lighting Surface 1 8154316 7/27/2021 let between Hill Street and Oa Hit Fixed Object Vehicles 1 North 0 Daylight Dry 2 9510105 7/12/2024 18:56 ELLIS STREET at Oak St 0 Rear End 2 0 0 Daylight Dry 4 5 6 8 10 12 13 15 16 17 18 19 21 23 24 25 26 27 28 2 3 4 5 6 7 8 9 10 11 12 13 14 15 16 17 18 19 20 21 22 23 24 25 26 27 28 29 30 31 33 31 31 31 31 31 31 31 31 31 31 31 32 33 34 36 38 39 40 41 42 44 46 47 48 49 50 51 52 53 54 54 55 56 57 58 59 60 56 58 60 61 63 64 65 66 67 68 69 69 70 71 72 72 73 74 75 76 77 75 76 77 78 78 79 80 00
No Crash No Date Time Location Severity Crash Type # of Direction 1 Direction 2 Lighting Surface 1 3/26/2023 1/22/2025 St between Atlanta St and El St between Atlanta St and El Rear End Vehicles 2 2 East West East Dawn Wet 3 9758944 1/22/2025 19:26 St between Atlanta St and El U Angle 2 west North DarkLighted Dry 3 4 5 6 7 8 9 10 11 12 14 16 18 20 21 23 25 _ 26 6 7 8 9 10 11 12 13 14 15 16 17 18 19 20 21 22 23 24 25 26 27 28 29 30 31 32 29 31 33 34 35 36 37 38 39 40 41 42 44 45 46 47 48 49 50 51 52 53 54 54 55 56 57 56 58 59 60 61 63 64 65 66 68 69 70 71 72 73 74 75 76 77 78 79 80 80
APPENDIX D Growth Rate
Growth Rate Considerations Recommended Growth Rate 1.0% Population Data Fulton County (ARC) Population Annual Growth Projection (2040) 1.06% Fulton County (Census) Population Annual Growth (2020) 1.48% Roswell City (Census) Population Annual Growth (2020) 0.50% Nearby Developments No nearby developments with known growth rates were identified. Historical ADT Count Data Source: GDOT Location: Atlanta St/SR 9 South of Oak St Route #: 324217 Route Type: Principal Arterial Station: 1210132 Count Type Count Year Volume Growth Rate EST 2018 31,000 ACT 2019 31,200 0.65% EST 2020 28,800 -7.69% ACT 2021 24,200 -15.97% EST 2022 25,200 4.13% ACT 2023 29,700 17.86% 5 Year Growth Rate -0.85% Avg. 1 Year Growth Rate -0.21% Most Recent Actual Count Growth Rate -1.22% reported between 2019 and 2023 to bridge COVID-related impacts to travel in March 2021 2019 16,500 16,000 15.500 15.000 14.500 14.000 13,500 2018 Source: GDOT Location: Magnolia St West of Atlanta St/SR 9 Route #: 324217 Route Type: Other Principal Arterial Station: 1210908 Count Type Count Year Volume Growth Rate EST 2018 16,200 EST 2019 16,300 0.62% EST 2020 15,000 -7.98% ACT 2021 14,500 -3.33% EST 2022 15,100 4.14% EST 2023 15,300 1.32% 5 Year Growth Rate -1.14% Avg. 1 Year Growth Rate -1.05% Most Recent Actual Count Growth Rate N/A Source: GDOT Location: Norcross St East of Atlanta St/SR 9 Route #: 323317 Route Type: Minor Arterial Station: 1210944 Count Type Count Year Volume Growth Rate EST 2018 12,300 EST 2019 12,400 0.81% ACT 2020 11,300 -8.87% EST 2021 12,200 7.96% EST 2022 12,700 4.10% ACT 2023 11,400 -10.24% 5 Year Growth Rate -1.51% Avg. 1 Year Growth Rate -1.25% Most Recent Actual Count Growth Rate 0.29% 2020 2021 2022 2023 2020 Actual data based on January 2020, prior to travel impacts due to COVID -Volume - EST - ACT
APPENDIX E Programmed Project Fact Sheet
Search... nployment Blog News Contact Us SR 9 FROM SR 120 TO CHATTAHOOCHEE RIVER IN ROSWELL Project ID: Notice to Proceed Date: Project Manager: Achor Njoku Construction Percent Complete: Office: Program Delivery Current Completion Date: County: Fulton Work Completion Date: 007 Construction Contract Amount: Congressional District: State Senate District.: 014, 056 Construction Contractor: State House District: 051.053 Preconstruction Status Report Project Type: Reconstruction/Rehabilitation Construction Status Report Project Status: Construction Work Program Right of Way Authorization: Contact Us 4/26/2018 Project Description: GDOT partner with the City of Roswell to provide widening and improvement to SR 9. this project (aka Roswell Historic Gateway) will eliminate the three-lane reversible lanes on SR 9 between SR 120 and the Chattahoochee River crossing by adding one additional lane and a median of varying width along the entire 1.mile corridor. The project will also grade separate the intersection of SR 9 with Riverside Road/Azalea Drive and replace the deficient Riverside Road bridge crossing over Vickery Creek. Activity Program Year Cost Estimate Date of Last Estimate PE (Preliminary Engineering) 1992 \$72,069.68 7/17/2018 PE (Preliminary Engineering) 2011 \$99,000.00 7/17/2018 PE (Preliminary Engineering) 2016 \$3,400,000.00 7/17/2018 ROW (Right of Way) 2018 \$13,881,881.86 6/21/2017 UTL (Utilities) 2028 \$4,284,598.50 2/7/2024 CST (Construction) 2028 \$46,783,751.50 9/6/2024 Project Documents Approved Concept Reports 721010 L&D AD MAY2018.pdf \CR\FEB2013.pdf \L&D\MAR2018.pdf
APPENDIX F Trip Generation Worksheets
Trip Generation A nalysis (11th Trip Generation Analysis (11th Ed. With 2nd Edition Handbook Daily IC & 3rd Edition AM/PM IC) Roewell Hill Street Mixed-Use tion Handboo k Daily IC & 3rd Edition AM/PM IC) City of Roswell, Fulton County, Georgia ton County, G eorgia 700 #30 #30 , diado D Daily Trips AM AM Peak Hour PN PM Peak Hour Land Ose geming Derisity Total u Out Total u Out Total u Out Proposed Project Trips General Urban/Suburban 16 dwelling units 116 28 28 8 7 9 6 2 4 221 Multifamily Housing (Mid-Rise) General Urban/Suburban 141 dwelling units 626 313 313 20 12 38 22 34 21 General Urban/Suburban 30,300 Sq. Ft. GFA 410 205 202 09 53 7 62 1 21 822 Strip Retail Plaza (<40k) General Urban/Suburban 18,400 Sq. Ft. GFA 1,006 503 503 43 56 17 120 09 09 932 High-Turnover (Sit-Down) Restaura General Urban/Suburban General Urban/Suburban 22,400 Sq. Ft. GFA 2,402 1,201 1,201 214 118 96 203 124 79 - Gross Project Trips 4,560 2,280 2,280 375 211 164 449 234 215 Residential Trips 742 371 371 28 14 44 64 39 22 Mixed-Use Reductions -268 -134 -134 -11 -1 -10 -35 -23 -12 Alternative Mode Reductions -47 -24 -23 ç, -1 ငှ- ဇှ ? -1 Adjusted Residential Trips 427 213 214 42 12 31 26 4 12 Office Trips 410 205 205 09 23 7 62 Έ, 21 Mixed-Use Reductions -80 -40 -40 -16 -10 9 -12 4 φ Alternative Mode Reductions -34 -17 -17 4 4 0 ις 4 Adjusted Office Trips 296 148 148 40 39 _ 45 9 39 Retail Trips 1,006 503 203 43 56 17 120 09 09 Mixed-Use Reductions -100 -20 -20 φ 4 -75 -41 -34 Alternative Mode Reductions -45 -42 4 ? -1 -5 -5 ကု Pass By Reductions (Based on ITE Rates) Rates) -326 -163 -163 0 0 0 -16 φ φ Adjusted Retail Trips 490 245 245 31 20 12 24 6 15 i Restaurant Trips 2,402 1,201 1,201 214 118 96 203 124 79 Mixed-Use Reductions -238 -119 -119 -25 -15 -10 -62 -24 -38 Alternative Mode Reductions -216 -108 -108 -19 -10 -14 -10 Pass By Reductions (Based on ITE Rates) Rates) -836 -418 -418 0 0 0 -56 -28 -28 Adjusted Restaurant Trips 1,112 556 256 170 93 77 71 62 6 0,0 0,0 Č Č Ö S Mixed-Use Reductions - 101AL -080 -343 -343 -30 -30 -184 -92 -92 Alternative Mode Reductions - TOTAL -387 -194 -193 -32 -17 -13 -27 -15 -12 Pass-By Reductions - TOTAL -1,162 -581 -581 0 0 0 -72 -36 -36 New Trips 2.325 1.162 1.163 283 164 121 166 94 75 , 2 407 4 7 4 2 4 744 coc 764 000 107 77. Driveway Volumes 3,467 1,743 1,744 283 164 171 738 171 111
Internal Capture Reduction Calculations Methodology for A.M. Peak Hour and P.M. Peak Hour based on the Trip Generation Handbook , 3rd Edition, published by the Institute of Transportation Engineers Methodology for Daily based on the average of the Unconstrained Rates for the A.M. Peak Hour and P.M. Peak Hour SUMMARY GROSS TRIP GENERATION A.M. Peak Hour P.M. Peak Hour Land Use Enter Exit Enter Exit T Office 53 7 11 51 U Retail 26 17 60 60 P Restaurant 118 96 124 79 N I Cinema/Entertainment Residential 14 44 39 25 Hotel 0 0 0 0 211 164 234 215 INTERNAL TRIPS A.M. Peak Hour P.M. Peak Hour T Land Use Enter Exit Enter Exit U Office 10 6 4 8 P Retail 4 4 41 34 T U Restaurant 15 10 24 38 O Cinema/Entertainment 0 0 0 0 Residential 1 10 23 12 Hotel 0 0 0 0 % Reduction 30 30 16.0% 92 92 41.0% EXTERNAL TRIPS A.M. Peak Hour P.M. Peak Hour T Land Use Enter Exit Enter Exit U Office 43 1 7 43 P Retail 22 13 19 26 T Restaurant 103 86 100 41 U Cinema/Entertainment 0 0 0 0 O Residential 13 34 16 13 Hotel 0 0 0 0 181 134 142 123
A.M. PEAK HOUR GROSS TRIP GENERATION A.M. P EA K Land Use Office Retail Restaurant Cinema/Entertainment Residential Hotel Table 6.1 Unconstrained Internal Person Trip Capture Rates for Trip Origins within a Mixed-Use Development (A.M. Peak Hour) A.M. P EA K Origin Destination Land Use Land Use Restaurant Cinema/Ent. Residential Hotel Office 63% 0% 1% 0% Retail 13% 0% 14% 0% Restaurant 0% 4% 3% Cinema/Entertainment 0% 0% 0% Residential 20% 0% 0% Hotel 9% 0% 0% Table 6.2 Unconstrained Internal Person Trip Capture Rates for Trip Destinations within a Mixed-Use Development (A.M. Peak Hour) A.M. P EA K Origin Destination Land Use Land Use Restaurant Cinema/Ent. Residential Hotel Office 23% 0% 0% 0% Retail 50% 0% 2% 0% Restaurant 0% 5% 4% Cinema/Entertainment 0% 0% 0% Residential 20% 0% 0% Hotel 6% 0% 0% \\ BASED ON EXIT \\ A.M. P EA K (Exit) (Enter) Land Use Land Use Restaurant Cinema/Ent. Residential Hotel Office 4 0 0 0 Retail 2 0 2 0 Restaurant 0 4 3 Cinema/Entertainment 0 0 0 Residential 9 0 0 Hotel 0 0 0
* BASED ON ENTER (Exit) (Enter) Land Use K Land Use Restaurant Cinema/Ent. Residential Hotel A Office 27 0 0 0 PE Retail 59 0 0 0 Restaurant 0 1 0 M. Cinema/Entertainment 0 0 0 A. Residential 24 0 0 Hotel 7 0 0 MINIMUM * (Exit) (Enter) Land Use K A Land Use Restaurant Cinema/Ent. Residential Hotel PE Office 4 0 0 0 Retail 2 0 0 0 M. Restaurant 0 1 0 Cinema/Entertainment 0 0 0 A. Residential Hotel 9 0 0 0 0 0 INTERNAL TRIPS K Land Use A Office PE Retail Restaurant M. Cinema/Entertainment A. Residential Hotel
P.M. PEAK HOUR GROSS TRIP GENERATION K K Land Use A E Office P Retail Restaurant M. Cinema/Entertainment P. Residential Hotel Table 6.1 Unconstrained Internal Person Trip Capture Rates for Trip Origins within a Mixed-Use Development (P.M. Peak Hour) P.M. P EA K Origin Destination Land Use Land Use Restaurant Cinema/Ent. Residential Hotel Office 4% 0% 2% 0% Retail 29% 4% 26% 5% Restaurant 8% 18% 7% Cinema/Entertainment 31% 8% 2% Residential 21% 0% 3% Hotel 68% 0% 2% Table 6.2 Unconstrained Internal Person Trip Capture Rates for Trip Destinations within a Mixed-Use Development (P.M. Peak Hour) P.M. P EA K Origin Destination Land Use Land Use Restaurant Cinema/Ent. Residential Hotel Office 2% 1% 4% 0% Retail 29% 26% 46% 17% Restaurant 32% 16% 71% Cinema/Entertainment 3% 4% 1% Residential 14% 0% 12% Hotel 5% 0% 0% \\ BASED ON EXIT \\ P.M. P EA K (Exit) (Enter) Land Use Land Use Restaurant Cinema/Ent. Residential Hotel Office 2 0 1 0 Retail 17 2 16 3 Restaurant 6 14 6 Cinema/Entertainment 0 0 0 Residential 5 0 1 Hotel 0 0 0
(Exit) (Enter) Land Use K Land Use Restaurant Cinema/Ent. Residential Hotel A Office 2 0 2 0 PE Retail 36 0 18 0 Restaurant 0 6 0 M. Cinema/Entertainment 4 2 0 P. Residential 17 0 0 Hotel 6 0 0 \\ MINIMUM \\ \\ BASED ON ENTER \\ (Exit) (Enter) Land Use K Land Use Restaurant Cinema/Ent. Residential Hotel A Office 2 0 1 0 PE Retail 17 0 16 0 Restaurant 0 6 0 M. Cinema/Entertainment 0 0 0 P. Residential 5 0 0 Hotel 0 0 0 INTERNAL TRIPS K Land Use A Office PE Retail Restaurant M. Cinema/Entertainment P. Residential Hotel
APPENDIX G Intersection Volume Worksheets
INTERSECTION VOLUME DEVELOPMENT INTERSECTION #1 Magnolia St/GA-9 Alpharetta St at GA-9 Atlanta St/Canton St А M PEAK HO OUR GA-9 A tlanta St Can ton St Magn olia St GA-9 Alp haretta St North nbound South nbound Eastb oound West bound U-Turn Left Through Right U-Turn Left Through Right U-Turn Left Through Right U-Turn Left Through Right Observed 2024 Traffic Volumes 0 32 215 526 0 0 341 34 0 49 399 103 0 836 228 0 Pedestrians 1 2 1 0 Conflicting Pedestrians 1 0 0 1 2 1 1 2 Heavy Vehicles 0 3 12 8 0 0 13 2 0 2 3 0 0 32 9 0 Heavy Vehicle % 2% 9% 6% 2% 2% 2% 4% 6% 2% 4% 2% 2% 2% 4% 4% 2% Peak Hour Factor 0.96 0.96 0.96 0.96 0.96 0.96 0.96 0.96 0.96 0.96 0.96 0.96 0.96 0.96 0.96 0.96 Adjustment Factor 1 1 1 1 1 1 1 1 1 1 1 1 1 1 1 1 Adjusted 2024 Volumes 0 32 215 526 0 0 341 34 0 49 399 103 0 836 228 0 Annual Growth Rate 1.0% 1.0% 1.0% 1.0% 1.0% 1.0% 1.0% 1.0% 1.0% 1.0% 1.0% 1.0% 1.0% 1.0% 1.0% 1.0% Growth Factor 1.04 1.04 1.04 1.04 1.04 1.04 1.04 1.04 1.04 1.04 1.04 1.04 1.04 1.04 1.04 1.04 2028 No-Build Traffic 0 33 224 547 0 0 355 35 0 51 415 107 0 870 237 0 Trip Distribution IN 10% 5% 10% Trip Distribution OUT (5%) (10%) (10%) Balancing Adjustment Residential Trips 0 2 3 3 0 0 1 0 0 0 0 1 0 1 0 0 Trip Distribution IN 5% 10% 10% Trip Distribution OUT (10%) (5%) (10%) Balancing Adjustment (1210) (=) (1211) Office Trips 0 0 0 0 0 0 2 0 0 0 0 4 0 4 0 0 T I I 1 1 I 1 ı I 1 Trip Distribution IN 5% 15% 15% Trip Distribution OUT (15%) (5%) (15%) Balancing Adjustment Retail Trips 0 2 1 2 0 0 1 0 0 0 0 3 0 3 0 0 Trip Distribution IN 5% 15% 15% Trip Distribution OUT (15%) (5%) (15%) Balancing Adjustment Restaurant Trips 0 12 4 12 0 0 5 0 0 0 0 14 0 14 0 0 T. I. I.V. I D I.T. 1 0 44 47 22 20 • Total Vehicular Project Trips 0 16 8 17 0 0 9 0 0 0 0 22 0 22 0 0 2028 Build Traffic 0 49 232 564 0 0 364 35 0 51 415 129 0 892 237 0 Growth Factor 1.04 1.04 1.04 1.04 1.04 1.04 1.04 1.04 1.04 1.04 1.04 1.04 1.04 1.04 1.04 1.04 1.04 1.04 1.04 1.04 1.04 1.04 1.04 1.04 1.04 1.04 1.04 1.04 1.04 1.04 1.04 1.04 1.04 1.04 1.04 1.04 1.04 1.04 1.04 1.04 1.04 1.04 1.04 1.04 1.04 1.04 1.04 1.04 1.04 1.04 1.04 1.04 1.04 1.04 1.04 1.04 1.04 1.04 1.04 1.04 1.04 1.04 1.04 1.04 1.04 1.04 1.04 1.04 1.04 1.04 1.04 1.04 1.04 1.04 1.04 1.04 1.04 1.04 1.04 1.04 1.04 1.04 1.04 1.04 1.04 1.04 1.04 1.04 1.04 1.04 1.04 1.04 1.04 1.04 1.04 1.04 1.04 1.04 1.04 1.04 1.04 1.04 1.04 1.04 1.04 1.04 1.04 1.04 1.04 1.04 1.04 1.04 1.04 1.04 1.04 1.04 1.04 1.04 1.04 1.04 1.04 1.04 1.04 1.04 1.04 1.04 1.04 1.04 1.04 1.04 1.04 1.04 1.04 1.04 1.04 1.04 1.04 1.04 1.04 1.04 1.04 1.04 1.04 1.04 1.04 1.04 1.04 1.04 1.04 1.04 1.04 1.04 1.04 1.04 1.04 1.04 1.04 1.04 1.04 1.04 1.04 1.04 1.04 1.04 1.04 1.04 1.04 1.04 1.04 1.04 1.04 1.04 1.04 1.04 1.04 1.04 1.04 1.04 1.04 1.04 1.04 1.04 1.04 1.04 1.04 1.04 1.04 1.04 1.04 1.04 1.04 1.04 1.04 1.04 1.04 1.04 1.04 1.04 1.04 1.04 1.04 1.04 1.04 1.04 1.04 1.04 1.04 1.04 1.04 1.04 1.04 1.04 1.04 1.04 1.04 1.04 1.04 1.04 1.04 1.04 1.04 1.04 1.04 1.04 1.04 1.04 1.04 1.04 1.04 1.04 1.04 1.04 1.04 1.04 1.04 1.04 1.04 1.04 1.04 1.04 1.04 1.04 1.04 1.04 1.04 1.04 1.04 1.04 1.04 1.04 1.04 1.04 1.04 1.04 1.04 1.04 1.04 1.04 1.04 1.04 1.04 1.04 1.04 1.04 1.04 1.04 1.04 1.04 1.04 1.04 1.04 1.04 1.04 1.04 1.04 1.04 1.04 1.04 1.04 1.04 1.04 1.04 1.04 1.04 1.04 1.04 1.04 1.04 1.04 1.04 North-burned North-burned North-burned North-burned North-burned North-burned North-burned North-burned North-burned North-burned North-burned North-burned North-burned North-burned North-burned North-burned North-burned North-burned North-burned North-burned North-burned North-burned North-burned North-burned North-burned North-burned North-burned North-burned North-burned North-burned North-burned North-burned North-burned North-burned North-burned North-burned North-burned North-burned North-burned North-burned North-burned North-burned North-burned North-burned North-burned North-burned North-burned North-burned North-burned North-burned North-burned North-burned North-burned North-burned North-burned North-burned North-burned North-burned North-burned North-burned North-burned North-burned North-burned North-burned North-burned North-burned North-burned North-burned North-burned North-burned North-burned North-burned North-burned North-burned North-burned North-burned North-burned North-burned North-burned North-burned North-burned North-burned North-burned North-burned North-burned North-burned North-burned North-burned North-burned North-burned North-burned North-burned North-burned North-burned North-burned North-burned North-burned North-burned North-burned North-burned North-burned North-burned North-burned North-burned North-burned North-burned North-burned North-burned North-burned North-burned North-burned North-burned North-burned North-burned North-burned North-burned North-burned North-burned North-burned North-burned North-burned North-burned North-burned North-burned North-burned North-burned North-burned North-burned North-burned North-burned North-burned North-burned North-burned North-burned North-burned North-burned Nort ı DUR ı Description U-Turn Left Through Right U-Turn Left Through Right U-Turn Left Through Right U-Turn Left Through Right U-Turn Left Through Right U-Turn Left Through Right U-Turn Left Through Right U-Turn Left Through Right U-Turn Left Through Right U-Turn Left Through Right U-Turn Left Through Right U-Turn Left Through Right U-Turn Left Through Right U-Turn Left Through Right U-Turn Left Through Right U-Turn Left Through Right U-Turn Left Through Right U-Turn Left Through Right U-Turn Left Through Right U-Turn Left Through Right U-Turn Left Through Right U-Turn Left Through Right U-Turn Left Through Right U-Turn Left Through Right U-Turn Left Through Right U-Turn Left Through Right U-Turn Left Through Right U-Turn Left Through Right U-Turn Left Through Right U-Turn Left Through Right U-Turn Left Through Right U-Turn Left Through Right U-Turn Left Through Right U-Turn Left Through Right U-Turn Left Through Right U-Turn Left Through Right U-Turn Left Through Right U-Turn Left Through Right U-Turn Left Through Right U-Turn Left Through Right U-Turn Left Through Right U-Turn Left Through Right U-Turn Left Through Right U-Turn Left Through Right U-Turn Left Through Right U-Turn Left Through Right U-Turn Left Through Right U-Turn Left Through Right U-Turn Left Through Right U-Turn Left Through Right U-Turn U-Turn U-Turn U-Turn U-Turn U-Turn U-Turn U-Turn U-Turn U-Turn U-Turn U-Turn U-Turn U-Turn U-Turn U-Turn U-Turn U-Turn U-Turn U-Turn U-Turn U-Turn U-Turn U-Turn U-Turn U-Turn U-Turn U-Turn U-Turn U-Turn U-Turn U-Turn U-Turn U-Turn U-Turn U-Turn U-Turn Observed 2024 Traffic Volumes O II Turn Dight II Turn Dight II Turn Dight II Turn Dight Poelsetrians O OCINITION POEISITAINS O O O O O O O O O O O O O Observed 2024 Traffic Volumes Conflicting Pedestrians - 032 0 / / / 0 40 Ü Heary Vehicles 0 Ī 5 Ī 0 0 Ĭ 0 Heavy Vehicle % Peak Hour Factor O.95 O.95 O.95 O.95 O.95 O.95 O.95 O.95 0 4 0 1 0 6 0 2 Peak Hour Factor 2% 2% 2% 2% 3% Adjustment Factor 1 , Adjusted 2024 Volumes 0 142 318 652 0 0 235 91 0 80 254 40 0 726 413 16 Annual Growth Rate 10% 1.0% 1.0% 1.0% 1.0% 1.0% 1.0% 1.0% Annual Growth Rate - - Growth Factor 1.04 1.04 1.04 1.04 1.04 1.04 1.04 1.04 1.04 1.04 1.04 1.04 1.04 1.04 1.04 1.04 1.04 1.04 1.04 1.04 1.04 1.04 1.04 1.04 1.04 1.04 1.04 1.04 1.04 1.04 1.04 1.04 1.04 1.04 1.04 1.04 1.04 1.04 1.04 1.04 1.04 1.04 1.04 1.04 1.04 1.04 1.04 1.04 1.04 1.04 1.04 1.04 1.04 1.04 1.04 1.04 1.04 1.04 1.04 1.04 1.04 1.04 1.04 1.04 1.04 1.04 1.04 1.04 1.04 1.04 1.04 1.04 1.04 1.04 1.04 1.04 1.04 1.04 1.04 1.04 1.04 1.04 1.04 1.04 1.04 1.04 1.04 1.04 1.04 1.04 1.04 1.04 1.04 1.04 1.04 1.04 1.04 1.04 1.04 1.04 1.04 1.04 1.04 1.04 1.04 1.04 1.04 1.04 1.04 1.04 1.04 1.04 1.04 1.04 1.04 1.04 1.04 1.04 1.04 1.04 1.04 1.04 1.04 1.04 1.04 1.04 1.04 1.04 1.04 1.04 1.04 1.04 1.04 1.04 1.04 1.04 1.04 1.04 1.04 1.04 1.04 1.04 1.04 1.04 1.04 1.04 1.04 1.04 1.04 1.04 1.04 1.04 1.04 1.04 1.04 1.04 1.04 1.04 1.04 1.04 1.04 1.04 1.04 1.04 1.04 1.04 1.04 1.04 1.04 1.04 1.04 1.04 1.04 1.04 1.04 1.04 1.04 1.04 1.04 1.04 1.04 1.04 1.04 1.04 1.04 1.04 1.04 1.04 1.04 1.04 1.04 1.04 1.04 1.04 1.04 1.04 1.04 1.04 1.04 1.04 1.04 1.04 1.04 1.04 1.04 1.04 1.04 1.04 1.04 1.04 1.04 1.04 1.04 1.04 1.04 1.04 1.04 1.04 1.04 1.04 1.04 1.04 1.04 1.04 1.04 1.04 1.04 1.04 1.04 1.04 1.04 1.04 1.04 1.04 1.04 1.04 1.04 1.04 1.04 1.04 1.04 1.04 1.04 1.04 1.04 1.04 1.04 1.04 1.04 1.04 1.04 1.04 1.04 1.04 1.04 1.04 1.04 1.04 1.04 1.04 1.04 1.04 1.04 1.04 1.04 1.04 1.04 1.04 1.04 1.04 1.04 1.04 1.04 1.04 1.04 1.04 1.04 1.04 1.04 1.04 1.04 1.04 1.04 1.04 1.04 1.04 1.04 1.04 1.04 1.04 rajusted 2024 Volumes 172 310 032 U 255 /1 00 2.54 40 720 413 10 Growth Factor 1.04 1.04 1.04 1.04 1.04 1.04 1.04 1.04 1.04 1.04 1.04 1.04 1.04 1.04 1.04 1.04 1.04 1.04 1.04 1.04 1.04 1.04 1.04 1.04 1.04 1.04 1.04 1.04 1.04 1.04 1.04 1.04 1.04 1.04 1.04 1.04 1.04 1.04 1.04 1.04 1.04 1.04 1.04 1.04 1.04 1.04 1.04 1.04 1.04 1.04 1.04 1.04 1.04 1.04 1.04 1.04 1.04 1.04 1.04 1.04 1.04 1.04 1.04 1.04 1.04 1.04 1.04 1.04 1.04 1.04 1.04 1.04 1.04 1.04 1.04 1.04 1.04 1.04 1.04 1.04 1.04 1.04 1.04 1.04 1.04 1.04 1.04 1.04 1.04 1.04 1.04 1.04 1.04 1.04 1.04 1.04 1.04 1.04 1.04 1.04 1.04 1.04 1.04 1.04 1.04 1.04 1.04 1.04 1.04 1.04 1.04 1.04 1.04 1.04 1.04 1.04 1.04 1.04 1.04 1.04 1.04 1.04 1.04 1.04 1.04 1.04 1.04 1.04 1.04 1.04 1.04 1.04 1.04 1.04 1.04 1.04 1.04 1.04 1.04 1.04 1.04 1.04 1.04 1.04 1.04 1.04 1.04 1.04 1.04 1.04 1.04 1.04 1.04 1.04 1.04 1.04 1.04 1.04 1.04 1.04 1.04 1.04 1.04 1.04 1.04 1.04 1.04 1.04 1.04 1.04 1.04 1.04 1.04 1.04 1.04 1.04 1.04 1.04 1.04 1.04 1.04 1.04 1.04 1.04 1.04 1.04 1.04 1.04 1.04 1.04 1.04 1.04 1.04 1.04 1.04 1.04 1.04 1.04 1.04 1.04 1.04 1.04 1.04 1.04 1.04 1.04 1.04 1.04 1.04 1.04 1.04 1.04 1.04 1.04 1.04 1.04 1.04 1.04 1.04 1.04 1.04 1.04 1.04 1.04 1.04 1.04 1.04 1.04 1.04 1.04 1.04 1.04 1.04 1.04 1.04 1.04 1.04 1.04 1.04 1.04 1.04 1.04 1.04 1.04 1.04 1.04 1.04 1.04 1.04 1.04 1.04 1.04 1.04 1.04 1.04 1.04 1.04 1.04 1.04 1.04 1.04 1.04 1.04 1.04 1.04 1.04 1.04 1.04 1.04 1.04 1.04 1.04 1.04 1.04 1.04 1.04 1.04 1.04 1.04 1.04 1.04 1.04 1.04 1.04 1.04 1.04 1.04 1.04 1.04 1.04 Annual Growth Rate 1.0% 1.0% 1.0% 1.0% 1.0% 1.0% 1.0% 1.0% 1.0% 1.0% 1.0% 1.0% 1.0% 1.0% 1.0% 1.0% 2028 No-Build Traffic 0 Growth Factor Trip Distribution OUT Balancing Adjustment (5%) (10%) (10%) (10%) (10%) (10%) (10%) (10%) (10%) (10%) (10%) (10%) (10%) (10%) (10%) (10%) (10%) (10%) (10%) (10%) (10%) (10%) (10%) (10%) (10%) (10%) (10%) (10%) (10%) (10%) (10%) (10%) (10%) (10%) (10%) (10%) (10%) (10%) (10%) (10%) (10%) (10%) (10%) (10%) (10%) (10%) (10%) (10%) (10%) (10%) (10%) (10%) (10%) (10%) (10%) (10%) (10%) (10%) (10%) (10%) (10%) (10%) (10%) (10%) (10%) (10%) (10%) (10%) (10%) (10%) (10%) (10%) (10%) (10%) (10%) (10%) (10%) (10%) (10%) (10%) (10%) (10%) (10%) (10%) (10%) (10%) (10%) (10%) (10%) (10%) (10%) (10%) (10%) (10%) (10%) (10%) (10%) (10%) (10%) (10%) (10%) (10%) (10%) (10%) (10%) (10%) (10%) (10%) (10%) (10%) (10%) (10%) (10%) (10%) (10%) (10%) (10%) (10%) (10%) (10%) (10%) (10%) (10%) (10%) (10%) (10%) (10%) (10%) (10%) (10%) (10%) (10%) (10%) (10%) (10%) (10%) (10%) (10%) (10%) (10%) (10%) (10%) (10%) (10%) (10%) (10%) (10%) (10%) (10%) (10%) (10%) (10%) (10%) (10%) (10%) (10%) (10%) (10%) (10%) (10%) (10%) (10%) (10%) (10%) (10%) (10%) (10%) (10%) (10%) (10%) (10%) (10%) (10%) (10%) (10%) (10%) (10%) (10%) (10%) (10%) (10%) (10%) (10%) (10%) (10%) (10%) (10%) (10%) (10%) (10%) (10%) (10%) (10%) (10%) (10%) (10%) (10%) (10%) (10%) (10%) (10%) (10%) (10%) (10%) (10%) (10%) (10%) (10%) (10%) (10%) (10%) (10%) (10%) (10%) (10%) (10%) (10%) (10%) (10%) (10%) (10%) (10%) (10%) (10%) (10%) (10%) (10%) (10%) (10%) (10%) (10%) (10%) (10%) (10%) (10%) (10%) (10%) (10%) (10%) (10%) (10%) (10%) (10%) (10%) (10%) (10%) (10%) (10%) (10%) (10%) (10%) (10%) (10%) (10%) (10%) (10%) (10%) (10%) (10%) (10%) (10%) (10%) (10%) (10%) (10%) (10%) (10%) (10%) (10%) (10%) (10%) (10%) (10%) (10%) (10%) (10%) (10%) (10%) (10%) (10%) (10%) (10%) (10%) (10%) (10%) (10%) (10%) (10%) (10%) (10%) (10%) (10%) (10%) (10%) (10%) (10%) (10%) (10%) (10%) (10%) (10%) (10%) (10%) (10%) (10%) (10%) (10%) (10%) (10%) (10%) (10%) (10%) (10%) (10%) (10%) (10%) (10%) (10%) (10%) (10%) (10%) (10%) (10%) (10%) (10%) (10%) (10%) (10%) (10%) (10%) (10%) (10%) (10%) (10%) 2028 No-Build Traffic Trip Distribution OUT Balancing Adjustment (5%) (10%) (10%) (10%) (10%) (10%) (10%) (10%) (10%) (10%) (10%) (10%) (10%) (10%) (10%) (10%) (10%) (10%) (10%) (10%) (10%) (10%) (10%) (10%) (10%) (10%) (10%) (10%) (10%) (10%) (10%) (10%) (10%) (10%) (10%) (10%) (10%) (10%) (10%) (10%) (10%) (10%) (10%) (10%) (10%) (10%) (10%) (10%) (10%) (10%) (10%) (10%) (10%) (10%) (10%) (10%) (10%) (10%) (10%) (10%) (10%) (10%) (10%) (10%) (10%) (10%) (10%) (10%) (10%) (10%) (10%) (10%) (10%) (10%) (10%) (10%) (10%) (10%) (10%) (10%) (10%) (10%) (10%) (10%) (10%) (10%) (10%) (10%) (10%) (10%) (10%) (10%) (10%) (10%) (10%) (10%) (10%) (10%) (10%) (10%) (10%) (10%) (10%) (10%) (10%) (10%) (10%) (10%) (10%) (10%) (10%) (10%) (10%) (10%) (10%) (10%) (10%) (10%) (10%) (10%) (10%) (10%) (10%) (10%) (10%) (10%) (10%) (10%) (10%) (10%) (10%) (10%) (10%) (10%) (10%) (10%) (10%) (10%) (10%) (10%) (10%) (10%) (10%) (10%) (10%) (10%) (10%) (10%) (10%) (10%) (10%) (10%) (10%) (10%) (10%) (10%) (10%) (10%) (10%) (10%) (10%) (10%) (10%) (10%) (10%) (10%) (10%) (10%) (10%) (10%) (10%) (10%) (10%) (10%) (10%) (10%) (10%) (10%) (10%) (10%) (10%) (10%) (10%) (10%) (10%) (10%) (10%) (10%) (10%) (10%) (10%) (10%) (10%) (10%) (10%) (10%) (10%) (10%) (10%) (10%) (10%) (10%) (10%) (10%) (10%) (10%) (10%) (10%) (10%) (10%) (10%) (10%) (10%) (10%) (10%) (10%) (10%) (10%) (10%) (10%) (10%) (10%) (10%) (10%) (10%) (10%) (10%) (10%) (10%) (10%) (10%) (10%) (10%) (10%) (10%) (10%) (10%) (10%) (10%) (10%) (10%) (10%) (10%) (10%) (10%) (10%) (10%) (10%) (10%) (10%) (10%) (10%) (10%) (10%) (10%) (10%) (10%) (10%) (10%) (10%) (10%) (10%) (10%) (10%) (10%) (10%) (10%) (10%) (10%) (10%) (10%) (10%) (10%) (10%) (10%) (10%) (10%) (10%) (10%) (10%) (10%) (10%) (10%) (10%) (10%) (10%) (10%) (10%) (10%) (10%) (10%) (10%) (10%) (10%) (10%) (10%) (10%) (10%) (10%) (10%) (10%) (10%) (10%) (10%) (10%) (10%) (10%) (10%) (10%) (10%) (10%) (10%) (10%) (10%) (10%) (10%) (10%) (10%) (10%) (10%) (10%) (10%) (10%) (10%) (10%) (10%) (10%) (10%) (10%) (10%) (10%) (10%) (10%) (10%) , Balancing Adjustment Residential Trips 0 1 1 1 1 0 0 1 1 0 0 0 1 0 0 1 0 0 1 0 0 0 0 0 0 0 0 0 0 0 0 0 0 0 0 0 0 0 0 Trip Distribution IN 10% 5% 10% Residential Trips 0 1 1 1 1 0 0 1 0 0 0 0 0 0 1 0 1 0 0 0 0 0 0 0 0 0 0 0 0 0 0 0 0 0 0 0 0 Trip Distribution OUT (5%) (10%) (10%) Trip Distribution IN Trip Distribution OUT Balancing Adjustment Office Trips O 4 2 4 0 0 0 0 0 0 0 0 1 0 1 0 1 0 0 Trip Distribution IN Trip Distribution OUT Balancing Adjustment Office Trips O 5% I 15% I 15% I 15% I 15% I 15% I 15% I 15% I 15% I 15% I 15% I 15% I 15% I 15% I 15% I 15% I 15% I 15% I 15% I 15% I 15% I 15% I 15% I 15% I 15% I 15% I 15% I 15% I 15% I 15% I 15% I 15% I 15% I 15% I 15% I 15% I 15% I 15% I 15% I 15% I 15% I 15% I 15% I 15% I 15% I 15% I 15% I 15% I 15% I 15% I 15% I 15% I 15% I 15% I 15% I 15% I 15% I 15% I 15% I 15% I 15% I 15% I 15% I 15% I 15% I 15% I 15% I 15% I 15% I 15% I 15% I 15% I 15% I 15% I 15% I 15% I 15% I 15% I 15% I 15% I 15% I 15% I 15% I 15% I 15% I 15% I 15% I 15% I 15% I 15% I 15% I 15% I 15% I 15% I 15% I 15% I 15% I 15% I 15% I 15% I 15% I 15% I 15% I 15% I 15% I 15% I 15% I 15% I 15% I 15% I 15% I 15% I 15% I 15% I 15% I 15% I 15% I 15% I 15% I 15% I 15% I 15% I 15% I 15% I 15% I 15% I 15% I 15% I 15% I 15% I 15% I 15% I 15% I 15% I 15% I 15% I 15% I 15% I 15% I 15% I 15% I 15% I 15% I 15% I 15% I 15% I 15% I 15% I 15% I 15% I 15% I 15% I 15% I 15% I 15% I 15% I 15% I 15% I 15% I 15% I 15% I 15% I 15% I 15% I 15% I 15% I 15% I 15% I 15% I 15% I 15% I 15% I 15% I 15% I 15% I 15% I 15% I 15% I 15% I 15% I 15% I 15% I 15% I 15% I 15% I 15% I 15% I 15% I 15% I 15% I 15% I 15% I 15% I 15% I 15% I 15% I 15% I 15% I 15% I 15% I 15% I 15% I 15% I 15% I 15% I 15% I 15% I 15% I 15% I 15% I 15% I 15% I 15% I 15% I 15% I 15% I 15% I 15% I 15% I 15% I 15% I 15% I 15% I 15% I 15% I 15% I 15% I 15% I 15% I 15% I 15% I 15% I 15% I 15% I 15% I 15% I 15% I 15% I 15% I 15% I 15% I 15% I 15% I 15% I 15% I 15% I 15% I 15% I 15% I 15% I 15% I 15% I 15% I 15% I 15% I 15% I 15% I 15% I 15% I 15% I 15% I 15% I 15% I 15% I 15% I 15% I 15% I 15% I 15% I 15% I 15% I 15% I 15% I 15% I 15% I 15% I 15% I 15% I 15% I 15% I 15% I 15% I 15% I 15% I 15% I 15% I 15% I 15% I 15% I 15% I 15% I 15% I 15% I 15% I 15% I 15% I 15% I 15% I 15% I 15% I 15% I 15% I 15% I 15% I 15% I 15% I 15% I 15% I 1 Balancing Adjustment Trip Distribution OUT Balancing Adjustment Residential Trips 0 1 1 1 0 0 1 0 0 0 0 1 0 1 0 0 Trip Distribution OUT Balancing Adjustment • • • • • • • • • • Balancing Adjustment Office Trips O Trip Distribution IN 5% 10% 10% Office Trips 0 4 2 4 0 0 0 0 0 0 0 0 1 0 1 0 1 0 0 Trip Distribution IN Trip Distribution OUT Balancing Adjustment Retail Trips 0 2 1 2 0 0 0 0 0 0 0 0 0 1 0 1 0 1 0 0 Trip Distribution IN Trip Distribution IN Trip Distribution IN Trip Distribution IN Trip Distribution OUT Balancing Adjustment Restaurant Trips 0 1 0 1 0 1 0 0 0 0 0 0 0 0 0 0 0 0 0 Trip Distribution OUT (10%) (5%) (10%) Trip Distribution IN Trip Distribution OUT (15%) (5%) (15%) (15%) (15%) (15%) (15%) (15%) (15%) (15%) (15%) (15%) (15%) (15%) (15%) (15%) (15%) (15%) (15%) (15%) (15%) (15%) (15%) (15%) (15%) (15%) (15%) (15%) (15%) (15%) (15%) (15%) (15%) (15%) (15%) (15%) (15%) (15%) (15%) (15%) (15%) (15%) (15%) (15%) (15%) (15%) (15%) (15%) (15%) (15%) (15%) (15%) (15%) (15%) (15%) (15%) (15%) (15%) (15%) (15%) (15%) (15%) (15%) (15%) (15%) (15%) (15%) (15%) (15%) (15%) (15%) (15%) (15%) (15%) (15%) (15%) (15%) (15%) (15%) (15%) (15%) (15%) (15%) (15%) (15%) (15%) (15%) (15%) (15%) (15%) (15%) (15%) (15%) (15%) (15%) (15%) (15%) (15%) (15%) (15%) (15%) (15%) (15%) (15%) (15%) (15%) (15%) (15%) (15%) (15%) (15%) (15%) (15%) (15%) (15%) (15%) (15%) (15%) (15%) (15%) (15%) (15%) (15%) (15%) (15%) (15%) (15%) (15%) (15%) (15%) (15%) (15%) (15%) (15%) (15%) (15%) (15%) (15%) (15%) (15%) (15%) (15%) (15%) (15%) (15%) (15%) (15%) (15%) (15%) (15%) (15%) (15%) (15%) (15%) (15%) (15%) (15%) (15%) (15%) (15%) (15%) (15%) (15%) (15%) (15%) (15%) (15%) (15%) (15%) (15%) (15%) (15%) (15%) (15%) (15%) (15%) (15%) (15%) (15%) (15%) (15%) (15%) (15%) (15%) (15%) (15%) (15%) (15%) (15%) (15%) (15%) (15%) (15%) (15%) (15%) (15%) (15%) (15%) (15%) (15%) (15%) (15%) (15%) (15%) (15%) (15%) (15%) (15%) (15%) (15%) (15%) (15%) (15%) (15%) (15%) (15%) (15%) (15%) (15%) (15%) (15%) (15%) (15%) (15%) (15%) (15%) (15%) (15%) (15%) (15%) (15%) (15%) (15%) (15%) (15%) (15%) (15%) (15%) (15%) (15%) (15%) (15%) (15%) (15%) (15%) (15%) (15%) (15%) (15%) (15%) (15%) (15%) (15%) (15%) (15%) (15%) (15%) (15%) (15%) (15%) (15%) (15%) (15%) (15%) (15%) (15%) (15%) (15%) (15%) (15%) (15%) (15%) (15%) (15%) (15%) (15%) (15%) (15%) (15%) (15%) (15%) (15%) (15%) (15%) (15%) (15%) (15%) (15%) (15%) (15%) (15%) (15%) (15%) (15%) (15%) (15%) (15%) (15%) (15%) (15%) (15%) (15%) (15%) (15%) (15%) (15%) (15%) (15%) (15%) (15%) (15%) (15%) (15%) (15%) (15%) (15%) (15%) (15%) (15%) (15%) (15%) (15%) (15%) (15%) (15%) (15%) (15%) (15%) (15%) (15%) (15%) (15%) (15%) (15%) Balancing Adjustment Company Site Trips Office Trips 0 4 2 4 0 0 0 0 0 0 0 1 0 1 0 0 Company Site Trips E01 4501 450 1 Balancing Adjustment Retail Trips 0 2 1 2 0 0 0 0 0 0 0 0 0 1 0 1 0 1 0 0 Trip Distribution IN Trip Distribution OUT (15%) (5%) (15%) (150/) /F0/\ (150/) 5% 15% 15% - Retail Trips 0 2 1 2 0 0 0 0 0 0 0 0 1 0 1 0 1 0 0 Trip Distribution IN Trip Distribution OUT (15%) (5%) (15%) (15%) (5%) (15%) - Trip Distribution IN Trip Distribution OUT 0 2 1 2 n 0 n n n 0 n 1 n 1 0 0 Trip Distribution OUT (15%) (5%) (15%) (15%) itetali irips U U U U Balancing Adjustment Restaurant Trips 0 1 0 1 0 0 3 0 0 0 0 9 0 9 0 0 Total Primary Site Trips 0 8 4 8 0 0 4 0 0 0 0 12 0 12 0 0 Pass-By Trips 0 0 0 0 0 0 0 0 0 0 0 0 Total Vehicular Project Trips 8 4 8 0 0 4 0 0 0 0 12 0 12 0 0 Trip Distribution IN 5% 15% 15% Restaurant Trips 0 1 0 1 0 0 3 0 0 0 9 0 9 0 0 Total Primary Site Trips 0 8 4 8 0 0 4 0 0 0 0 12 0 12 0 0 0 Pass-By Trips 0 0 0 0 0 0 0 0 0 0 0 0 0 0 0 0 0 0 0 0 0 0 0 0 0 0 0 0 0 0 0 0 0 0 0 0 0 0 0 0 0 0 0 0 0 0 0 0 0 0 0 0 0 0 0 0 0 0 0 0 0 0 0 0 0 0 0 0 Trip Distribution OUT (15%) (5%) (15%) Total Primary Site Trips 0 8 4 8 0 0 4 0 0 0 12 0 12 0 0 Pass-By Trips 0 0 0 0 0 0 0 0 0 0 0 0 0 0 0 0 0 0 0 Balancing Adjustment ' ' Pass-By Trips 0 0 0 0 0 0 0 0 0 0 0 0 0 0 0 0 0 0 0 Restaurant Trips 0 1 0 1 0 0 3 0 0 0 0 9 0 9 0 0 Pass-By Trips 0 0 0 0 0 0 0 0 0 0 0 0 0 0 0 0 0 0 0 Total Vehicular Project Trips 8 4 8 0 0 4 0 0 0 12 0 12 0 0 Pass-By Trips 0 0 0 0 0 0 0 0 0 0 0 0 0 0 0 0 Total Vehicular Project Trips 8 4 8 0 0 4 0 0 0 0 12 0 12 0 0 2028 Build Traffic 0 156 335 686 0 0 249 95 0 83 264 54 0 767 430 17 , · · · · - · · · · 2028 Build Traffic 0 156 335 686 0 0 249 95 0 83 264 54 0 767 430 17
INTERSECTION VOLUME DEVELOPMENT INTERSECTION #2 Ramsey St/Hill St at GA-9 Atlanta St (South)/GA-9 Atlanta St (North) Α M PEAK HO DUR GA-9 Atlan ta St (South) GA-9 Atlan ta St (North) sey St ill St North bound South nbound oound West tbound U-Turn Left Through Right U-Turn Left Through Right U-Turn Left Through Right U-Turn Left Through Right Observed 2024 Traffic Volumes 0 2 784 40 0 17 1,276 22 0 15 13 65 0 3 3 12 Pedestrians 0 10 6 0 Conflicting Pedestrians 6 0 0 6 10 0 0 10 Heavy Vehicles 0 0 24 0 0 1 45 0 0 0 1 0 0 0 0 0 Heavy Vehicle % 2% 2% 3% 2% 2% 6% 4% 2% 2% 2% 8% 2% 2% 2% 2% 2% Peak Hour Factor 0.93 0.93 0.93 0.93 0.93 0.93 0.93 0.93 0.93 0.93 0.93 0.93 0.93 0.93 0.93 0.93 Adjustment Factor 1 1 1 1 1 1 1 1 1 1 1 1 1 1 1 1 Adjusted 2024 Volumes 0 2 784 40 0 17 1,276 22 0 15 13 65 0 3 3 12 Annual Growth Rate 1.0% 1.0% 1.0% 1.0% 1.0% 1.0% 1.0% 1.0% 1.0% 1.0% 1.0% 1.0% 1.0% 1.0% 1.0% 1.0% Growth Factor 1.04 1.04 1.04 1.04 1.04 1.04 1.04 1.04 1.04 1.04 1.04 1.04 1.04 1.04 1.04 1.04 2028 No-Build Traffic 0 2 816 42 0 18 1,328 23 0 16 14 68 0 3 3 12 Trip Distribution IN 25% 5% Trip Distribution OUT (5%) (25%) Balancing Adjustment Ī Residential Trips 0 2 0 0 0 3 0 0 0 0 0 1 0 0 0 8 1 E01 1 ı E01 1 Trip Distribution IN (max) (804) 20% 5% 5% (80.1) (000) Trip Distribution OUT (5%) (5%) (5%) (20%) Balancing Adjustment - 0 0 0 8 0 0 0 0 0 0 0 Office Trips 0 0 U U 0 8 2 U 0 U U 2 0 0 U Trip Distribution IN 25% 35% Trip Distribution OUT (5%) (5%) (30%) Balancing Adjustment , , Retail Trips 0 0 1 5 0 7 0 0 0 0 0 0 0 1 0 4 I 1 ı ı 1 I Trip Distribution IN 25% 35% Trip Distribution OUT (5%) (5%) (30%) Balancing Adjustment Restaurant Trips 0 0 4 23 0 33 0 0 0 0 0 0 0 4 0 23 Total Vehicular Project Trips 0 2 5 28 0 51 2 0 0 0 0 3 0 5 0 35 2028 Build Traffic 0 4 821 70 0 69 1,330 23 0 16 14 71 0 8 3 47 , M PEAK HO OUR , ta St (South) ta St (North) sey St I St bound bound ound bound t U-Turn Left Through Right U-Turn Left Through Right U-Turn Left Through Right U-Turn Left Through Right Observed 2024 Traffic Volumes 2 43 1,089 17 0 21 1,000 43 0 0 2 17 0 9 5 33 Pedestrians 0 9 5 2 Conflicting Pedestrians 5 2 2 5 9 0 0 9 Heavy Vehicles 0 1 8 1 0 1 13 0 0 0 0 0 0 0 0 0 Heavy Vehicle % 2% 2% 2% 6% 2% 5% 2% 2% 2% 2% 2% 2% 2% 2% 2% 2% Peak Hour Factor 0.97 0.97 0.97 0.97 0.97 0.97 0.97 0.97 0.97 0.97 0.97 0.97 0.97 0.97 0.97 0.97 Adjustment Factor 1 1 1 1 1 1 1 1 1 1 1 1 1 1 1 1 Adjusted 2024 Volumes 2 43 1,089 17 0 21 1,000 43 0 0 2 17 0 9 5 33 - - : - • Annual Growth Rate 1.0% 1.0% 1.0% 1.0% 1.0% 1.0% 1.0% 1.0% 1.0% 1.0% 1.0% 1.0% 1.0% 1.0% 1.0% 1.0% Growth Factor 1.04 1.04 1.04 1.04 1.04 1.04 1.04 1.04 1.04 1.04 1.04 1.04 1.04 1.04 1.04 1.04 2028 No-Build Traffic 2 45 1,133 18 0 22 1,041 45 0 0 2 18 0 9 5 34 Trip Distribution IN 25% 5% Trip Distribution OUT (5%) (25%) Balancing Adjustment Residential Trips 0 1 0 0 0 4 0 0 0 0 0 1 0 0 0 3 Trip Distribution IN 20% 5% 5% Trip Distribution OUT (5%) (5%) (5%) (20%) Balancing Adjustment Office Trips 0 2 2 0 0 1 0 0 0 0 0 0 0 2 0 8 Trip Distribution IN 1 250/ 250/ 1 1 Trip Distribution IN Trip Distribution OUT (5%) 25% 35% (5%) (30%) Balancing Adjustment (370) (370) (30%) Retail Trips 0 0 1 2 0 3 0 0 0 0 0 0 0 1 0 5 Retail Hips 3 U U U U 3 Trip Distribution IN 25% 35% Trip Distribution OUT (5%) (5%) (30%) Balancing Adjustment 1 , , , , Restaurant Trips 0 0 0 16 0 22 0 0 0 0 0 0 0 0 0 3 Total Primary Site Trips 0 3 3 18 0 30 0 0 0 0 0 1 0 3 0 19 Pass-By Trips 0 0 -16 18 0 12 -12 0 0 0 0 0 0 0 0 16 1 Total Vehicular Project Trips 3 -13 36 0 42 -12 0 0 0 0 1 0 3 0 35 2028 Build Traffic 2 48 1.120 54 0 64 1.029 45 0 0 2 19 0 12 5 69 ZUZO DUIIU ITAITIC 48 1,120 54 U 04 1,029 45 U U 2 19 U 12 5 09
INTERSECTION VOLUME DEVELOPMENT INTERSECTION #3 Driveway/Oak St at GA-9 Atlanta St (South)/GA-9 Atlanta St (North) A M PEAK HO OUR ta St (South) ta St (North) eway ık St bound bound ound bound - U-Turn Left Through Right U-Turn Left Through Right U-Turn Left Through Right U-Turn Left Through Right Observed 2024 Traffic Volumes 0 0 767 32 0 39 1,258 16 0 4 1 0 0 49 7 34 Pedestrians 0 2 0 2 Conflicting Pedestrians 0 2 2 0 2 0 0 2 Heavy Vehicles 0 0 23 2 0 2 43 0 0 0 0 0 0 2 0 1 Heavy Vehicle % 2% 2% 3% 6% 2% 5% 3% 2% 2% 2% 2% 2% 2% 4% 2% 3% Peak Hour Factor 0.93 0.93 0.93 0.93 0.93 0.93 0.93 0.93 0.93 0.93 0.93 0.93 0.93 0.93 0.93 0.93 Adjustment Factor 1 1 1 1 1 1 1 1 1 1 1 1 1 1 1 1 Adjusted 2024 Volumes 0 0 767 32 0 39 1,258 16 0 4 1 0 0 49 7 34 Annual Growth Rate 1.0% 1.0% 1.0% 1.0% 1.0% 1.0% 1.0% 1.0% 1.0% 1.0% 1.0% 1.0% 1.0% 1.0% 1.0% 1.0% Growth Factor 1.0% 1.0% 1.0% 1.0% 1.0% 1.0% 1.0% 1.0% 1.0% 1.0% 1.0% 1.0% 1.0% 1.0% 1.0% 1.0% 2028 No-Build Traffic 0 0 798 33 0 41 1.309 1.04 0 4 1.04 0 0 51 7 35 2020 NO-Build Hamic U U 770 33 U 41 1,307 17 U 4 0 U 31 , 33 Trip Distribution IN 30% 5% Trip Distribution OUT (30%) (5%) Balancing Adjustment , , 1 / Residential Trips 0 0 0 4 0 1 0 0 0 0 0 0 0 9 0 2 Trip Distribution IN 35% 10% Trip Distribution OUT (5%) (30%) (10%) Balancing Adjustment Office Trips 0 0 0 14 0 4 0 0 0 0 0 0 0 0 0 0 Trip Distribution IN 1 25% 15% 1 1 1 Trip Distribution OUT 25% 15% (5%) (35%) (5%) Balancing Adjustment (5%) (35%) (5%) 0 0 5 3 0 0 1 0 0 0 0 0 0 4 0 1 Retail Trips U U 5 3 U U ı U U U U U U 4 U Trip Distribution IN 25% 15% Trip Distribution OUT (5%) (35%) (5%) Balancing Adjustment . , Restaurant Trips 0 0 23 14 0 0 4 0 0 0 0 0 0 27 0 4 Total Vehicular Project Trips 0 0 28 35 0 5 5 0 0 0 0 0 0 40 0 7 2028 Build Traffic 0 0 826 68 0 46 1,314 17 0 4 1 0 0 91 7 42 -20 50 .0 .,511 ., · · · · · · · · · · · · · · · · · · · ,, Р M PEAK HO DUR GA-9 Atlan ta St (South) GA-9 Atlan ta St (North) Driv eway Oa k St North bound South bound Easth oound West bound U-Turn Left Through Right U-Turn Left Through Right U-Turn Left Through Right U-Turn Left Through Right Observed 2024 Traffic Volumes 0 0 1,075 45 0 11 1,007 9 0 2 1 3 0 69 3 59 Pedestrians 0 • • 0 • • 0 • • 1 Conflicting Pedestrians 0 1 1 0 0 0 0 0 Heavy Vehicles 0 0 8 0 0 0 13 0 0 0 0 0 0 0 0 2 Heavy Vehicle % 2% 2% 2% 2% 2% 2% 2% 2% 2% 2% 2% 2% 2% 2% 2% 3% Peak Hour Factor 0.96 0.96 0.96 0.96 0.96 0.96 0.96 0.96 0.96 0.96 0.96 0.96 0.96 0.96 0.96 0.96 Adjustment Factor 1 1 1 1 1 1 1 1 1 1 1 1 1 1 1 1 Adjusted 2024 Volumes 0 0 1,075 45 0 11 1,007 9 0 2 1 3 0 69 3 59 Annual Growth Rate 1.0% 1.0% 1.0% 1.0% 1.0% 1.0% 1.0% 1.0% 1.0% 1.0% 1.0% 1.0% 1.0% 1.0% 1.0% 1.0% Growth Factor 1.04 1.04 1.04 1.04 1.04 1.04 1.04 1.04 1.04 1.04 1.04 1.04 1.04 1.04 1.04 1.04 2028 No-Build Traffic 0 0 1,119 47 0 11 1,048 9 0 2 1 3 0 72 3 61 Trip Distribution IN 1 30% 5% 1 1 1 1 1 Trip Distribution OUT 3070 370 (30%) (5%) Balancing Adjustment 1 (3070) (370) Residential Trips 0 0 0 4 0 1 0 0 0 0 0 0 0 4 0 1 Residential Trips U U U 4 U U U U U U U U 4 U Trip Distribution IN 35% 10% Trip Distribution OUT (5%) (30%) (10%) Balancing Adjustment Office Trips 0 0 0 2 0 1 2 0 0 0 0 0 0 12 0 4 Trip Distribution IN 25% 15% 1 1 1 1 1 1 Trip Distribution OUT 2370 1376 (5%) (35%) (5%) Balancing Adjustment (070) (0070) (070) Retail Trips 0 0 2 1 0 0 1 0 0 0 0 0 0 5 0 1 Trip Distribution IN 25% 15% 4 Trip Distribution OUT (5%) ļ (35%) (5%) Balancing Adjustment Restaurant Trips 0 0 16 9 0 0 0 0 0 0 0 0 0 3 0 0 Restaurant Imps U U 10 7 U U U U U U U U U 3 U Total Primary Site Trips 0 0 18 16 0 2 3 0 0 0 0 0 0 24 0 6 Pass-By Trips 0 0 -6 6 0 0 -12 0 0 0 0 0 0 12 0 8 , Total Vehicular Project Trips 0 12 22 0 2 -9 0 0 0 0 0 0 36 0 14 2028 Build Traffic 0 0 1,131 69 0 13 1,039 9 0 2 1 3 0 108 3 75 Loro Dana Iraino 1,101 0, Ū 13 1,007 , Ū J U 100 J 7.5
INTERSECTION VOLUME DEVELOPMENT INTERSECTION #4 Oxbo Rd (West)/Oxbo Rd (East) at GA-9 Atlanta St (South)/GA-9 Atlanta St (North) - M PEAK HO DUR GA-9 Atlan ta St (South) GA-9 Atlan ta St (North) Oxbo R d (West) Oxbo F Rd (East) North nbound South bound Eastl oound West tbound U-Turn Left Through Right U-Turn Left Through Right U-Turn Left Through Right U-Turn Left Through Right Observed 2024 Traffic Volumes 0 12 740 277 0 61 1,236 10 0 26 112 39 0 203 104 21 Pedestrians 2 2 1 0 Conflicting Pedestrians 1 0 0 1 2 2 2 2 Heavy Vehicles 0 0 25 4 0 2 40 2 0 0 2 0 0 4 4 0 Heavy Vehicle % 2% 2% 3% 2% 2% 3% 3% 20% 2% 2% 2% 2% 2% 2% 4% 2% Peak Hour Factor 0.97 0.97 0.97 0.97 0.97 0.97 0.97 0.97 0.97 0.97 0.97 0.97 0.97 0.97 0.97 0.97 Adjustment Factor 1 1 1 1 1 1 1 1 1 1 1 1 1 1 1 1 Adjusted 2024 Volumes 0 12 740 277 0 61 1,236 10 0 26 112 39 0 203 104 21 Annual Growth Rate 1.0% 1.0% 1.0% 1.0% 1.0% 1.0% 1.0% 1.0% 1.0% 1.0% 1.0% 1.0% 1.0% 1.0% 1.0% 1.0% Growth Factor 1.04 1.04 1.04 1.04 1.04 1.04 1.04 1.04 1.04 1.04 1.04 1.04 1.04 1.04 1.04 1.04 2028 No-Build Traffic 0 12 770 288 0 63 1,286 10 0 27 117 41 0 211 108 22 Trip Distribution IN 30% Trip Distribution OUT (30%) Balancing Adjustment Residential Trips 0 0 4 0 0 0 9 0 0 0 0 0 0 0 0 0 Trip Distribution IN 30% 1 5% Trip Distribution OUT 3076 (5%) (30%) 370 Balancing Adjustment (370) (30%) Office Trips 0 0 12 0 0 0 0 0 0 0 0 0 0 0 0 2 Trip Distribution IN 30% 10% Trip Distribution OUT (10%) (30%) Balancing Adjustment Retail Trips 0 0 6 0 0 1 4 0 0 0 0 0 0 0 0 2 Trip Distribution IN 30% ı 10% Trip Distribution OUT - JU% (10%) (30%) 1 10% Balancing Adjustment - (10%) (3070) + Restaurant Trips 0 0 28 0 0 8 23 0 0 0 0 0 0 0 0 9 1 1 1 1 1 1 Total Vehicular Project Trips 0 0 50 0 0 9 36 0 0 0 0 0 0 0 0 13 2028 Build Traffic 0 12 820 288 0 72 1.322 10 0 27 117 41 0 211 108 35 2020 Build Hailic U 12 020 200 U 12 1,322 10 U 21 117 41 U 211 100 33 M PEAK HO DUR ta St (South) ta St (North) d (West) Oxbo R . , bound bound ound oound 1 U-Turn Left Through Right U-Turn Left Through Right U-Turn Left Through Right U-Turn Left Through Right Observed 2024 Traffic Volumes 0 69 1,059 347 0 64 940 74 0 6 105 22 0 278 204 35 Pedestrians 24 11 3 1 9 Conflicting Pedestrians 3 19 19 3 11 24 24 11 Heavy Vehicles 0 0 8 7 0 1 12 0 0 0 5 0 0 4 2 0 Heavy Vehicle % 2% 2% 2% 2% 2% 2% 2% 2% 2% 2% 5% 2% 2% 2% 2% 2% Peak Hour Factor 0.95 0.95 0.95 0.95 0.95 0.95 0.95 0.95 0.95 0.95 0.95 0.95 0.95 0.95 0.95 0.95 Adjustment Factor 1 1 1 1 1 1 1 1 1 1 1 1 1 1 1 1 Adjusted 2024 Volumes 0 69 1,059 347 0 64 940 74 0 6 105 22 0 278 204 35 Annual Growth Rate 1.0% 1.0% 1.0% 1.0% 1.0% 1.0% 1.0% 1.0% 1.0% 1.0% 1.0% 1.0% 1.0% 1.0% 1.0% 1.0% Growth Factor 1.04 1.04 1.04 1.04 1.04 1.04 1.04 1.04 1.04 1.04 1.04 1.04 1.04 1.04 1.04 1.04 2028 No-Build Traffic 0 72 1,102 361 0 67 978 77 0 6 109 23 0 289 212 36 Trip Distribution IN 1 30% ı 1 1 ı 1 1 1 1 1 Trip Distribution OUT 30% (30%) - (30%) - Balancing Adjustment _ Residential Trips 0 0 4 0 0 0 4 0 0 0 0 0 0 0 0 0 Trip Distribution IN 1 30% 1 5% Trip Distribution OUT 30% (5%) (30%) 370 Balancing Adjustment (370) (3070) Office Trips 0 0 2 0 0 2 12 0 0 0 0 0 0 0 0 0 · ı ı • Trip Distribution IN 30% 10% Trip Distribution OUT (10%) (30%) Balancing Adjustment Retail Trips 0 0 3 0 0 2 5 0 0 0 0 0 0 0 0 1 Trip Distribution IN 1 30% ı 1 ı 10% Trip Distribution OUT 3070 (10%) (30%) 1 1070 Balancing Adjustment 1 (1.570) (5570) Restaurant Trips 0 0 19 0 0 1 3 0 0 0 0 0 0 0 0 6 · • • • • • • • • • Total Primary Site Trips 0 0 28 0 0 5 24 0 0 0 0 0 0 0 0 7 Pass-By Trips 0 0 0 0 0 0 0 0 0 0 0 0 0 0 0 0 Total Vehicular Project Trips 1 0 28 0 0 5 24 0 0 0 0 0 0 0 0 7 rotal verilcular Project Trips 1 U 20 U ) 24 U U U U U U U 2028 Build Traffic 0 72 1,130 361 0 72 1,002 77 0 6 109 23 0 289 212 43
INTERSECTION VOLUME DEVELOPMENT INTERSECTION #5 Hill St (West)/Hill St (East) at Ellis St (South)/Ellis St (North) Α M PEAK HO OUR (South) (North) (West) t (East) nbound bound oound tbound U-Turn Left Through Right U-Turn Left Through Right U-Turn Left Through Right U-Turn Left Through Right Observed 2024 Traffic Volumes 0 6 6 3 0 0 4 9 4 41 13 7 1 14 12 8 Pedestrians 0 ļ 0 0 ļ 3 Conflicting Pedestrians 0 3 3 0 0 0 0 0 Heavy Vehicles 0 0 0 1 0 0 0 0 0 0 2 0 0 0 0 0 Heavy Vehicle % 2% 2% 2% 33% 2% 2% 2% 2% 2% 2% 15% 2% 2% 2% 2% 2% Peak Hour Factor 0.76 0.76 0.76 0.76 0.76 0.76 0.76 0.76 0.76 0.76 0.76 0.76 0.76 0.76 0.76 0.76 Adjustment Factor 1 1 1 1 1 1 1 1 1 1 1 1 1 1 1 1 Adjusted 2024 Volumes 0 6 6 3 0 0 4 9 4 41 13 7 1 14 12 8 Annual Growth Rate 1.0% 1.0% 1.0% 1.0% 1.0% 1.0% 1.0% 1.0% 1.0% 1.0% 1.0% 1.0% 1.0% 1.0% 1.0% 1.0% Growth Factor 1.04 1.04 1.04 1.04 1.04 1.04 1.04 1.04 1.04 1.04 1.04 1.04 1.04 1.04 1.04 1.04 2028 No-Build Traffic 0 6 6 3 0 0 4 9 4 43 14 7 1 15 12 8 Trip Distribution IN 25% 20% L Trip Distribution OUT (25%) (20%) ı Balancing Adjustment Residential Trips 0 8 0 6 0 0 0 0 0 0 0 3 0 2 0 0 Trip Distribution IN 18% 13% 3% Trip Distribution OUT (23%) (8%) (3%) 1070 1370 370 Balancing Adjustment (2370) (070) (370) Office Trips 0 0 0 0 0 0 0 0 0 0 0 7 0 5 1 0 1 I Trip Distribution IN 35% 10% 5% Ī Trip Distribution OUT (30%) (15%) (25%) Ī Balancing Adjustment ı Retail Trips 0 4 0 2 0 0 0 0 0 0 0 10 0 2 1 0 Trip Distribution IN 1 1 1 1 1 1 35% 10% 5% - (200/) (15%) (25%) 10% 5% Trip Distribution OUT - (30%) (15%) (20%) 1 Balancing Adjustment Restaurant Trips 0 23 0 12 0 0 0 0 0 0 0 52 0 9 5 0 Restaurant mps 1 0 23 0 12 0 0 U 0 0 0 U 52 U 9 5 Total Vehicular Project Trips 0 35 0 20 0 0 0 0 0 0 0 72 0 18 7 0 2028 Build Traffic 0 41 6 23 0 0 4 9 4 43 14 79 1 33 19 8 2020 Bullu Hairic U 41 0 23 . 0 U 4 9 4 43 14 19 ' 33 19 0 M PEAK HO OUR (South) (North) (West) Hill St . , bound bound oound West 1 U-Turn Left Through Right U-Turn Left Through Right U-Turn Left Through Right U-Turn Left Through Right Observed 2024 Traffic Volumes 0 10 4 19 0 13 19 11 0 6 25 14 2 17 28 7 Pedestrians 0 3 0 ) Conflicting Pedestrians 0 0 0 0 3 0 0 3 Heavy Vehicles 0 0 0 1 0 0 0 0 0 0 1 0 0 0 1 0 Heavy Vehicle % 2% 2% 2% 5% 2% 2% 2% 2% 2% 2% 4% 2% 2% 2% 4% 2% Peak Hour Factor 0.83 0.83 0.83 0.83 0.83 0.83 0.83 0.83 0.83 0.83 0.83 0.83 0.83 0.83 0.83 0.83 Adjustment Factor 1 1 1 1 1 1 1 1 1 1 1 1 1 1 1 1 Adjusted 2024 Volumes 0 10 4 19 0 13 19 11 0 6 25 14 2 17 28 7 - : • • • Annual Growth Rate 1.0% 1.0% 1.0% 1.0% 1.0% 1.0% 1.0% 1.0% 1.0% 1.0% 1.0% 1.0% 1.0% 1.0% 1.0% 1.0% Growth Factor 1.04 1.04 1.04 1.04 1.04 1.04 1.04 1.04 1.04 1.04 1.04 1.04 1.04 1.04 1.04 1.04 2028 No-Build Traffic 0 10 4 20 0 14 20 11 0 6 26 15 2 18 29 7 Trip Distribution IN 25% 20% Trip Distribution OUT (25%) (20%) Balancing Adjustment Residential Trips 0 3 0 2 0 0 0 0 0 0 0 4 0 3 0 0 1 1 1 1 1 1 1 1 1 1 1 1 1 Trip Distribution IN 18% 13% 3% Trip Distribution OUT (23%) (8%) (3%) Balancing Adjustment Office Trips 0 9 0 3 0 0 0 0 0 0 1 1 0 1 0 0 Trip Distribution IN 35% 10% 5% Trip Distribution OUT (30%) (15%) (25%) 1070 370 Balancing Adjustment (0070) (1070) (2070) Retail Trips 0 5 0 2 0 0 0 0 0 0 0 7 0 1 0 0 , , Trip Distribution IN 35% 10% 5% Trip Distribution OUT (30%) (15%) (25%) Balancing Adjustment Restaurant Trips 0 3 0 1 0 0 0 0 0 0 0 24 0 6 3 0 Total Primary Site Trips 0 20 0 8 0 0 0 0 0 0 1 36 0 11 3 0 Pass-By Trips 0 16 0 0 0 0 0 0 0 0 0 30 0 0 0 0 - , 1 1 1 1 Total Vehicular Project Trips 36 0 8 0 0 0 0 0 0 1 66 0 11 3 0 2028 Build Traffic 0 46 4 28 0 14 20 11 0 , 27 81 2 29 32 7 ZUZO DUIIU ITAITIC U 40 4 28 U 14 20 - 11 U 6 21 81 2 29 32 1
INTERSECTION VOLUME DEVELOPMENT INTERSECTION #6 Hill St (West)/Hill St (East) at Forrest St (South)/Forrest St (North) А M PEAK HO DUR St (South) St (North) (West) (East) bound South bound Eastb ound bound U-Turn Left Through Right U-Turn Left Through Right U-Turn Left Through Right U-Turn Left Through Right Observed 2024 Traffic Volumes 0 1 20 0 1 1 35 25 1 9 4 0 0 2 12 0 Pedestrians 1 : :' 0 :' 3 :' 0 Conflicting Pedestrians 3 0 0 3 0 1 1 0 Heavy Vehicles 0 0 0 0 0 0 0 0 0 1 1 0 0 0 0 0 Heavy Vehicle % 2% 2% 2% 2% 2% 2% 2% 2% 2% 11% 25% 2% 2% 2% 2% 2% Peak Hour Factor 0.90 0.90 0.90 0.90 0.90 0.90 0.90 0.90 0.90 0.90 0.90 0.90 0.90 0.90 0.90 0.90 Adjustment Factor 1 1 1 1 1 1 1 1 1 1 1 1 1 1 1 1 Adjusted 2024 Volumes 0 1 20 0 1 1 35 25 1 9 4 0 0 2 12 0 AI OIb D.I. 1.00/ 1.00/ 1.00/ 4.00/ 1.00/ 1.00/ 1.00/ 4.00/ 1.00/ 1.00/ 1.00/ 4.00/ 1.00/ 4.00/ 1.00/ 4.00/ Annual Growth Rate 1.0% 1.0% 1.0% 1.0% 1.0% 1.0% 1.0% 1.0% 1.0% 1.0% 1.0% 1.0% 1.0% 1.0% 1.0% 1.0% Growth Factor 1.04 1.04 1.04 1.04 1.04 1.04 1.04 1.04 1.04 1.04 1.04 1.04 1.04 1.04 1.04 1.04 2028 No-Build Traffic 0 1 21 0 1 1 36 26 1 9 4 0 0 2 12 0 Trip Distribution IN 10% 15% 5% Trip Distribution OUT (10%) (15%) (5%) Balancing Adjustment ( ) ( / ( , Residential Trips 0 0 3 0 0 0 1 2 0 5 2 0 0 0 1 0 Trip Distribution IN 5% 15% Trip Distribution OUT (10%) (10%) Balancing Adjustment Office Trips 0 0 0 0 0 0 2 6 0 0 0 0 0 0 0 0 Trip Distribution IN 1 5% 15% 1 15% 1 Trip Distribution OUT - (5%) 370 1376 1370 Balancing Adjustment (370) Retail Trips 0 0 1 0 0 0 1 3 0 3 0 0 0 0 0 0 Ketali IIIps · · 0 3 3 0 - Trip Distribution IN 5% 15% 15% Trip Distribution OUT (5%) Balancing Adjustment Restaurant Trips 0 0 4 0 0 0 5 14 0 14 0 0 0 0 0 0 Total Vehicular Project Trips 0 0 8 0 0 0 0 25 0 22 2 0 0 0 1 0 rotal verticular Project Trips 1 0 1 0 8 U U U 25 U _ U U U 2028 Build Traffic 0 1 29 0 1 1 45 51 1 31 6 0 0 2 13 0 - - - ı M PEAK HO DUR ı (E .) St (South) St (North) (West) (East) U-Turn North Left bound Through Right U-Turn South Left bound Through Right U-Turn Eastb Left oound Through Right U-Turn West Left bound Through Right Observed 2024 Traffic Volumes 0 1 40 2 0 4 32 40 0 40 13 2 0 4 9 5 Pedestrians 3 1 5 1 Conflicting Pedestrians 5 1 1 5 1 3 3 1 Heavy Vehicles 0 0 1 0 0 0 0 0 0 2 0 0 0 0 0 0 Heavy Vehicle % 2% 2% 3% 2% 2% 2% 2% 2% 2% 5% 2% 2% 2% 2% 2% 2% Peak Hour Factor 0.89 0.89 0.89 0.89 0.89 0.89 0.89 0.89 0.89 0.89 0.89 0.89 0.89 0.89 0.89 0.89 Adjustment Factor 1 1 1 1 1 1 1 1 1 1 1 1 1 1 1 1 Adjusted 2024 Volumes 0 1 40 2 0 4 32 40 0 40 13 2 0 4 9 5 Aujusteu 2024 Volumes 40 7 32 40 40 13 7 Annual Growth Rate 1.0% 1.0% 1.0% 1.0% 1.0% 1.0% 1.0% 1.0% 1.0% 1.0% 1.0% 1.0% 1.0% 1.0% 1.0% 1.0% Growth Factor 1.04 1.04 1.04 1.04 1.04 1.04 1.04 1.04 1.04 1.04 1.04 1.04 1.04 1.04 1.04 1.04 2028 No-Build Traffic 0 1 42 2 0 4 33 42 0 42 14 2 0 4 9 5 - Trip Distribution IN 10% 15% 5% Trip Distribution OUT (10%) (15%) (5%) Balancing Adjustment , , , , , , Residential Trips 0 0 1 0 0 0 1 2 0 2 1 0 0 0 1 0 · Trip Distribution IN 5% 15% Trip Distribution OUT (10%) (10%) Balancing Adjustment , , , , Office Trips 0 0 4 0 0 0 0 1 0 4 0 0 0 0 0 0 Trip Distribution IN 5% 15% 15% Trip Distribution OUT (5%) Balancing Adjustment 0 0 0 0 0 0 1 0 Retail Trips U U 1 U 0 U 0 1 0 0 0 0 0 0 0 Trip Distribution IN 1 5% 15% 15% 1 Trip Distribution OUT (5%) 370 1370 1370 1 - Balancing Adjustment (370) Restaurant Trips 0 0 0 0 0 0 3 9 0 9 0 0 0 0 0 0 · 1 Total Primary Site Trips 0 0 6 0 0 0 4 13 0 16 1 0 0 0 1 0 Pass-By Trips 0 0 0 0 0 0 0 0 0 0 0 0 0 0 0 0 - - Total Vehicular Project Trips 0 6 0 0 0 4 13 0 16 1 0 0 0 1 0 2028 Build Traffic 0 1 48 2 0 4 37 55 0 58 15 2 0 4 10 5 Lozo Dana Trans U 70 U 3, - 55 U 30 .5 U .0
INTERSECTION VOLUME DEVELOPMENT INTERSECTION #7 Norcross St (West)/Norcross St (East) at Forrest St/Fraser St Α M PEAK HO OUR est St ser St St (West) s St (East) nbound bound oound tbound U-Turn Left Through Right U-Turn Left Through Right U-Turn Left Through Right U-Turn Left Through Right Observed 2024 Traffic Volumes 0 2 16 20 0 78 50 11 0 3 305 9 0 19 230 54 Pedestrians 2 12 4 0 Conflicting Pedestrians 4 0 0 4 12 2 2 12 Heavy Vehicles 0 0 2 0 0 1 1 0 0 0 4 0 0 0 12 2 Heavy Vehicle % 2% 2% 13% 2% 2% 2% 2% 2% 2% 2% 2% 2% 2% 2% 5% 4% Peak Hour Factor 0.84 0.84 0.84 0.84 0.84 0.84 0.84 0.84 0.84 0.84 0.84 0.84 0.84 0.84 0.84 0.84 Adjustment Factor 1 1 1 1 1 1 1 1 1 1 1 1 1 1 1 1 Adjusted 2024 Volumes 0 2 16 20 0 78 50 11 0 3 305 9 0 19 230 54 Annual Growth Rate 1.0% 1.0% 1.0% 1.0% 1.0% 1.0% 1.0% 1.0% 1.0% 1.0% 1.0% 1.0% 1.0% 1.0% 1.0% 1.0% Growth Factor 1.04 1.04 1.04 1.04 1.0% 1.04 1.04 1.04 1.04 1.04 1.04 1.04 1.04 1.04 1.04 1.04 2028 No-Build Traffic 0 2 17 21 0 81 52 11 0 3 317 9 0 20 239 56 Trip Distribution IN 15% 10% Trip Distribution OUT (15%) (10%) Balancing Adjustment Residential Trips 0 0 5 3 0 0 2 0 0 0 0 0 0 1 0 0 Trip Distribution IN I 10% 1 I 10% (10%) (10%) 10% 10% - Trip Distribution OUT (10%) (10%) - Balancing Adjustment 0 Office Trips 0 0 0 0 0 0 4 0 0 0 0 0 0 4 0 0 Trip Distribution IN 10% 10% Trip Distribution OUT (10%) (10%) Balancing Adjustment ` ′ \ ' Retail Trips 0 0 1 1 0 0 2 0 0 0 0 0 0 2 0 0 1 1 1 1 1 Trip Distribution IN - (4001) (4.001) 10% 10% Trip Distribution OUT (10%) (10%) - Balancing Adjustment - Restaurant Trips 0 0 8 8 0 0 9 0 0 0 0 0 0 9 0 0 Total Vehicular Project Trips 0 0 14 12 0 0 17 0 0 0 0 0 0 16 0 0 2028 Build Traffic 0 2 31 33 0 81 69 11 0 3 317 9 0 36 239 56 , J. - 00 · 0. · · · · 0., - 00 207 P M PEAK HO DUR Forr est St Fra ser St Norcross St (West) Norcros s St (East) North bound South bound Eastb ound West tbound U-Turn Left Through Right U-Turn Left Through Right U-Turn Left Through Right U-Turn Left Through Right Observed 2024 Traffic Volumes 0 12 61 39 0 109 43 6 0 6 311 12 0 28 425 72 Pedestrians 10 19 3 10 Conflicting Pedestrians 3 10 10 3 19 10 10 19 leavy Vehicles 0 0 5 0 0 1 1 0 0 1 8 0 0 0 3 1 Heavy Vehicle % 2% 2% 8% 2% 2% 2% 2% 2% 2% 17% 3% 2% 2% 2% 2% 2% Peak Hour Factor 0.94 0.94 0.94 0.94 0.94 0.94 0.94 0.94 0.94 0.94 0.94 0.94 0.94 0.94 0.94 0.94 Adjustment Factor 1 1 1 1 1 1 1 1 1 1 1 1 1 1 1 1 Adjusted 2024 Volumes 0 12 61 39 0 109 43 6 0 6 311 12 0 28 425 72 Annual Growth Rate 1.0% 1.0% 1.0% 1.0% 1.0% 1.0% 1.0% 1.0% 1.0% 1.0% 1.0% 1.0% 1.0% 1.0% 1.0% 1.0% Growth Factor 1.04 1.04 1.04 1.04 1.04 1.04 1.04 1.04 1.04 1.04 1.04 1.04 1.04 1.04 1.04 1.04 2028 No-Build Traffic 0 1.04 63 41 0 113 45 6 0 6 324 1.04 0 29 442 75 2020 NO-Build Harric U 12 03 41 U 113 43 0 0 - 0 324 12 27 442 - 73 rip Distribution IN 15% 10% rip Distribution OUT (15%) (10%) ī Balancing Adjustment i Residential Trips 0 0 2 1 0 0 2 0 0 0 0 0 0 1 0 0 - • , , • , • rip Distribution IN 10% 10% Ī rip Distribution OUT (10%) (10%) Ī Balancing Adjustment Office Trips 0 0 4 4 0 0 1 0 0 0 0 0 0 1 0 0 rip Distribution IN 1 1 1 10% 1 10% 1 rip Distribution OUT (10%) (10%) 10% 1076 Balancing Adjustment (1070) (1070) · · · · · Retail Trips 0 0 2 2 0 0 1 0 0 0 0 0 0 1 0 0 rip Distribution IN 10% 10% rip Distribution OUT (10%) (10%) ļ Balancing Adjustment - 1 • , • • _ , - Restaurant Trips 0 0 1 1 0 0 6 0 0 0 0 0 0 6 0 0 otal Primary Site Trips 0 0 9 8 0 0 10 0 0 0 0 0 0 9 0 0 Pass-By Trips 0 0 0 0 0 0 0 0 0 0 0 0 0 0 0 0 - · Total Vehicular Project Trips 0 9 8 0 0 10 0 0 0 0 0 0 9 0 0 028 Build Traffic 0 12 72 49 0 113 55 6 0 6 324 12 0 38 442 75 OZO DUNU 11 dINC U 12 12 49 0 113 35 0 U 0 324 12 U 38 442 /5
INTERSECTION VOLUME DEVELOPMENT INTERSECTION #8 Hill St at Driveway A Α M PEAK HO OUR eway A II St ill St bound bound oound tbound a U-Turn Left Through Right U-Turn Left Through Right U-Turn Left Through Right U-Turn Left Through Right Observed 2024 Traffic Volumes 0 0 0 0 0 0 0 0 0 0 70 0 0 0 18 0 Pedestrians 0 0 0 0 Conflicting Pedestrians 0 0 0 0 0 0 0 0 0 Heavy Vehicles 001 001 001 2 201 0 001 Heavy Vehicle % 2% 2% 2% 2% 2% 2% 2% 2% 2% 2% 3% 2% 2% 2% 2% 2% Peak Hour Factor 0.93 0.93 0.93 0.93 0.93 0.93 0.93 0.93 0.93 0.93 0.93 0.93 0.93 0.93 0.93 0.93 Adjustment Factor 1 1 1 1 1 1 1 1 1 1 1 1 1 1 1 1 Adjusted 2024 Volumes 0 0 0 0 0 0 0 0 0 0 70 0 0 0 18 0 Annual Growth Rate 1.0% 1.0% 1.0% 1.0% 1.0% 1.0% 1.0% 1.0% 1.0% 1.0% 1.0% 1.0% 1.0% 1.0% 1.0% 1.0% Growth Factor 1.0% 1.0% 1.0% 1.0% 1.0% 1.0% 1.0% 1.0% 1.0% 1.0% 1.0% 1.0% 1.0% 1.0% 1.0% 1.0% 2028 No-Build Traffic 0 0 0 0 0 0 0 0 0 0 73 0 0 0 1.04 0 2020 NO-Bulla Hamic 0 U U U U U U U U U 73 U U U 17 U Trip Distribution IN 25% Trip Distribution OUT (25%) Balancing Adjustment , , Residential Trips 0 0 0 0 0 0 0 0 0 0 3 0 0 0 8 0 • • • • • Trip Distribution IN 18% 3% 3% Trip Distribution OUT (3%) (3%) (23%) Balancing Adjustment Office Trips 0 0 0 0 0 0 0 0 0 7 1 0 1 0 0 Trip Distribution IN 60% Trip Distribution OUT (35%) Balancing Adjustment Retail Trips 0 0 0 0 0 0 0 0 0 0 12 0 0 0 4 0 1 ı ı 1 ı ı 1 1001 ı Trip Distribution IN 60% Trip Distribution OUT (35%) Balancing Adjustment 1 Restaurant Trips 0 0 0 0 0 0 0 0 0 0 56 0 0 0 27 0 Total Vehicular Project Trips 0 0 0 0 0 0 0 0 0 0 78 1 0 1 39 0 , , • • • 2028 Build Traffic 0 0 0 0 0 0 0 0 0 0 151 1 0 1 58 0 M PEAK HO JUK eway A l St II St nbound bound ound bound U-Turn Left Through Right U-Turn Left Through Right U-Turn Left Through Right U-Turn Left Through Right Observed 2024 Traffic Volumes 40 47 Pedestrians 0 0 0 0 Conflicting Pedestrians 0 0 0 0 0 0 0 0 Heavy Vehicles 2 0 Heavy Vehicle % 2% 2% 2% 2% 2% 2% 2% 2% 2% 2% 5% 2% 2% 2% 2% 2% Peak Hour Factor 0.97 0.97 0.97 0.97 0.97 0.97 0.97 0.97 0.97 0.97 0.97 0.97 0.97 0.97 0.97 0.97 Adjustment Factor 1 1 1 1 1 1 1 1 1 1 1 1 1 1 1 1 Adjusted 2024 Volumes 0 0 0 0 0 0 0 0 0 0 40 0 0 0 47 0 4.00 4.00 4.00 4.00 1 400 4.00 1 4 001 4.00 1 1 400 1 400/ 4.00 1 400 1.00/ 1.00/ 4.001 Annual Growth Rate 1.0% 1.0% 1.0% 1.0% 1.0% 1.0% 1.0% 1.0% 1.0% 1.0% 1.0% 1.0% 1.0% 1.0% 1.0% 1.0% Growth Factor 1.04 1.04 1.04 1.04 1.04 1.04 1.04 1.04 1.04 1.04 1.04 1.04 1.04 1.04 1.04 1.04 2028 No-Build Traffic 0 0 0 0 0 0 0 0 0 0 42 0 0 0 49 0 Trip Distribution IN 1 25% Trip Distribution OUT (25%) Balancing Adjustment ``` Residential Trips 0 0 0 0 0 0 0 0 0 0 4 0 0 0 3 0 • • • Trip Distribution IN 18% 3% 3% Trip Distribution OUT (3%) (3%) (23%) Balancing Adjustment Office Trips 0 1 0 1 0 0 0 0 0 0 1 0 0 0 9 0 Trip Distribution IN 1 60% 1 Trip Distribution OUT 0070 (35%) Balancing Adjustment (2215) Retail Trips 0 0 0 0 0 0 0 0 0 0 5 0 0 0 5 0 60% Trip Distribution IN Trip Distribution OUT 60% (35%) Balancing Adjustment (35%) Restaurant Trips 0 0 0 0 0 0 0 0 0 0 37 0 0 0 3 0 Restaurant 111ps U U - · · U 37 · Total Primary Site Trips 0 1 0 1 0 0 0 0 0 0 47 0 0 0 20 0 Pass-By Trips 0 0 0 0 0 0 0 0 0 0 30 0 0 0 30 0 Fotal Vehicular Project Trips 1 0 1 0 0 0 0 0 0 77 0 0 0 50 0 total venicular Project Trips - 0 ı U 0 0 0 0 U - // U U 50 - 0 2028 Build Traffic 0 1 0 1 0 0 0 0 0 0 119 0 0 0 99 0
INTERSECTION VOLUME DEVELOPMENT INTERSECTION #9 Driveway B at Ellis St А M PEAK H OUR is St is St way B bound bound oound bound U-Turn Left Through Right U-Turn Left Through Right U-Turn Left Through Right U-Turn Left Through Right Observed 2024 Traffic Volumes 0 0 15 0 0 0 25 0 0 0 0 0 0 0 0 0 Pedestrians 0 r 0 r 0 r 0 Conflicting Pedestrians 0 0 0 0 0 0 0 0 Heavy Vehicles 0 0 1 0 0 0 0 0 0 0 0 0 0 0 0 0 Heavy Vehicle % 2% 2% 7% 2% 2% 2% 2% 2% 2% 2% 2% 2% 2% 2% 2% 2% Peak Hour Factor 0.76 0.76 0.76 0.76 0.76 0.76 0.76 0.76 0.76 0.76 0.76 0.76 0.76 0.76 0.76 0.76 Adjustment Factor 1 1 1 1 1 1 1 1 1 1 1 1 1 1 1 1 Adjusted 2024 Volumes 0 0 15 0 0 0 25 0 0 0 0 0 0 0 0 0 Annual Growth Rate 1.0% 1.0% 1.0% 1.0% 1.0% 1.0% 1.0% 1.0% 1.0% 1.0% 1.0% 1.0% 1.0% 1.0% 1.0% 1.0% Annual Growth Rate Growth Factor 1.04 1.04 1.04 1.04 1.04 1.04 1.04 1.04 1.04 1.04 1.04 1.04 1.04 1.04 1.04 1.04 2028 No-Build Traffic 0 0 16 0 0 0 26 0 0 0 0 0 0 0 0 0 Trip Distribution IN 1 10% 45% 1 Trip Distribution OUT (45%) (10%) Balancing Adjustment (10.0) (1210) Residential Trips 0 1 0 0 0 0 0 5 0 14 0 3 0 0 0 0 • Trip Distribution IN 5% 30% Trip Distribution OUT (30%) (5%) Balancing Adjustment Office Trips 0 2 0 0 0 0 0 12 0 0 0 0 0 0 0 0 T. B 1 F-01 ı 4501 ı Trip Distribution IN 5% 00 45% 41 4 Trip Distribution OUT (25%) (45%) (5%) Balancing Adjustment Retail Trips 0 1 0 0 0 0 3 9 0 5 0 1 0 0 0 0 Trip Distribution IN 5% 45% Trip Distribution OUT 370 (25%) .570 (45%) (5%) Balancing Adjustment (2070) (1070) (0.70) Restaurant Trips 0 5 0 0 0 0 19 42 0 35 0 4 0 0 0 0 , Total Vehicular Project Trips 0 9 0 0 0 0 22 68 0 54 0 8 0 0 0 0 2028 Build Traffic 0 9 16 0 0 0 48 68 0 54 0 8 0 0 0 0 ZUZO DUIIU TTATTIC U 9 10 U U U 48 00 U 54 U ð U U U U M PEAK HO OLID. FIIi is St 1 is St JUK Drive way B 1 bound bound Eastb , West bound U-Turn Left Through Right U-Turn Left Through Right U-Turn Left Through Right U-Turn Left Through Right Observed 2024 Traffic Volumes 0 0 33 0 0 0 50 0 0 0 0 0 0 0 0 0 Pedestrians 1 0 0 ( ) 0 Conflicting Pedestrians 0 0 0 0 0 0 0 0 Heavy Vehicles 0 0 1 0 0 0 0 0 0 0 0 0 0 0 0 0 Heavy Vehicle % 2% 2% 3% 2% 2% 2% 2% 2% 2% 2% 2% 2% 2% 2% 2% 2% Peak Hour Factor 0.83 0.83 0.83 0.83 0.83 0.83 0.83 0.83 0.83 0.83 0.83 0.83 0.83 0.83 0.83 0.83 Adjustment Factor 1 1 1 1 1 1 1 1 1 1 1 1 1 1 1 1 Adjusted 2024 Volumes 0 0 33 0 0 0 50 0 0 0 0 0 0 0 0 0 1 Annual Growth Rate 1.0% 1.0% 1.0% 1.0% 1.0% 1.0% 1.0% 1.0% 1.0% 1.0% 1.0% 1.0% 1.0% 1.0% 1.0% 1.0% Growth Factor 1.04 1.04 1.04 1.04 1.04 1.04 1.04 1.04 1.04 1.04 1.04 1.04 1.04 1.04 1.04 1.04 2028 No-Build Traffic 0 0 34 0 0 0 52 0 0 0 0 0 0 0 0 0 Trip Distribution IN 10% 45% Trip Distribution OUT (45%) (10%) Balancing Adjustment (1070) (1070) Residential Trips 0 1 0 0 0 0 0 6 0 5 0 1 0 0 0 0 • • • • • • • Trip Distribution IN 5% 30% Trip Distribution OUT (30%) (5%) Balancing Adjustment Office Trips 0 0 0 0 0 0 0 2 0 12 0 2 0 0 0 0 Trip Distribution IN 1 5% 45% Trip Distribution OUT (25%) (45%) (5%) Balancing Adjustment Retail Trips 0 0 0 0 0 0 4 4 0 7 0 1 0 0 0 0 Trip Distribution IN 5% 1 45% 1 Trip Distribution OUT 370 (25%) 4370 (45%) (5%) Balancing Adjustment (2070) (1070) (0.70) Restaurant Trips 0 3 0 0 0 0 2 28 0 4 0 0 0 0 0 0 Total Primary Site Trips 0 4 0 0 0 0 4 40 0 28 0 4 0 0 0 Pass-By Trips 0 0 0 0 0 0 6 20 10 0 28 16 0 0 0 0 0 0 r ass-by IIIps 1 0 U U U U U 20 10 U 10 U U U U U Total Vehicular Project Trips 4 0 0 0 0 26 50 0 44 0 4 0 0 0 0 2028 Build Traffic 0 4 34 0 0 0 78 50 0 44 0 4 0 0 0 0 ZUZU DUNU ITATIIL U 4 34 U U U /0 30 U 44 U 4 U U U U
INTERSECTION VOLUME DEVELOPMENT INTERSECTION #10 Oak St (West)/Oak St (East) at Bush St/Community Cir Α M PEAK HO OUR sh St Community Cir Southbound (West) Oak St (East) North nbound Eastbound Westbound U-Turn Left Through Right U-Turn Left Through Right U-Turn Left Through Right U-Turn Left Through Right Observed 2024 Traffic Volumes 0 17 0 26 0 0 0 0 0 0 34 14 0 27 71 2 Pedestrians 0 r 2 r 0 r 0 Conflicting Pedestrians 0 0 0 0 2 0 0 2 Heavy Vehicles 0 0 0 0 0 0 0 0 0 0 1 0 0 0 1 0 Heavy Vehicle % 2% 2% 2% 2% 2% 2% 2% 2% 2% 2% 3% 2% 2% 2% 2% 2% Peak Hour Factor 0.90 0.90 0.90 0.90 0.90 0.90 0.90 0.90 0.90 0.90 0.90 0.90 0.90 0.90 0.90 0.90 Adjustment Factor 1 1 1 1 1 1 1 1 1 1 1 1 1 1 1 1 Adjusted 2024 Volumes 0 17 0 26 0 0 0 0 0 0 34 14 0 27 71 2 Annual Growth Rate 1.0% 1.0% 1.0% 1.0% 1.0% 1.0% 1.0% 1.0% 1.0% 1.0% 1.0% 1.0% 1.0% 1.0% 1.0% 1.0% Growth Factor 1.0% 1.0% 1.0% 1.0% 1.0% 1.0% 1.0% 1.0% 1.0% 1.0% 1.0% 1.0% 1.0% 1.0% 1.0% 1.0% 2028 No-Build Traffic 0 1.04 0 27 0 0 0 0 0 0 35 15 0 28 74 2 1 ı Trip Distribution IN 5% 25% 10% 15% Trip Distribution OUT (15%) (5%) (25%) (10%) Balancing Adjustment Residential Trips 0 0 1 0 0 5 2 8 0 3 1 0 0 0 3 2 Trip Distribution IN 1 10% I I 40% 5% I 10% Trip Distribution OUT - 10% (15%) (10%) (35%) 4076 376 (5%) 1076 Balancing Adjustment - (1370) (10%) (33%) (376) Office Trips 0 0 4 0 0 0 0 0 0 16 2 0 0 0 0 4 Office Hips - U 0 10 0 - Trip Distribution IN 5% 10% 5% 5% Trip Distribution OUT (5%) (5%) (10%) (30%) Balancing Adjustment Retail Trips 0 0 1 0 0 1 1 1 0 2 1 0 0 0 4 1 Tain Distribution IN 1 F0/ ı 1 10% 5% 1 _ 5% Trip Distribution IN - 5% (5%) (5%) (10%) 10% 5% (30%) 5% Trip Distribution OUT - (5%) (5%) (10%) (30%) Balancing Adjustment - - • 22 - Restaurant Trips 0 0 5 0 0 4 4 8 0 9 5 0 0 0 23 5 Total Vehicular Project Trips 0 0 11 0 0 10 7 17 0 30 9 0 0 0 30 12 - 10 - 101 2028 Build Traffic 0 18 11 27 0 10 7 17 0 30 44 15 0 28 104 14 - Dest sh St 1 Commi M PEAK HO OUR I Oak C (West) 1 Oal: C (Feet) bound bound (west) oound Oak St (East) Westbound U-Turn Left Through Right U-Turn Left Through Right U-Turn Left Through Right U-Turn Left Through Right Observed 2024 Traffic Volumes 0 22 0 16 0 0 0 3 0 2 49 8 0 16 99 0 Pedestrians 1 4 1 4 1 ı 0 2 Conflicting Pedestrians 0 2 2 0 4 4 4 4 Heavy Vehicles 0 0 0 0 0 0 0 0 0 0 1 0 0 0 1 0 Heavy Vehicle % 2% 2% 2% 2% 2% 2% 2% 2% 2% 2% 2% 2% 2% 2% 2% 2% Peak Hour Factor 0.94 0.94 0.94 0.94 0.94 0.94 0.94 0.94 0.94 0.94 0.94 0.94 0.94 0.94 0.94 0.94 Adjustment Factor 1 1 1 1 1 1 1 1 1 1 1 1 1 1 1 1 Adjusted 2024 Volumes 0 22 0 16 0 0 0 3 0 2 49 8 0 16 99 0 • • • Annual Growth Rate 1.0% 1.0% 1.0% 1.0% 1.0% 1.0% 1.0% 1.0% 1.0% 1.0% 1.0% 1.0% 1.0% 1.0% 1.0% 1.0% Growth Factor 1.04 1.04 1.04 1.04 1.04 1.04 1.04 1.04 1.04 1.04 1.04 1.04 1.04 1.04 1.04 1.04 2028 No-Build Traffic 0 23 0 17 0 0 0 3 0 2 51 8 0 17 103 0 , , , , , , , Trip Distribution IN 5% 25% 10% 15% Trip Distribution OUT (15%) (5%) (25%) (10%) Balancing Adjustment Residential Trips 0 0 1 0 0 2 1 3 0 4 1 0 0 0 1 2 Trip Distribution IN 10% 40% 5% 10% Trip Distribution OUT (15%) (10%) (35%) (5%) Balancing Adjustment , Office Trips 0 0 1 0 0 6 4 14 0 2 0 0 0 0 2 11 Trip Distribution IN 5% 1 10% 5% 5% Trip Distribution OUT 370 (5%) (5%) (10%) 1076 370 (30%) 370 Balancing Adjustment (570) (570) (1070) (50%) Retail Trips 0 0 0 0 0 1 1 2 0 1 0 0 0 0 5 0 1 1 1 1 1 1 Trip Distribution IN 5% 10% 5% 5% Trip Distribution OUT (5%) (5%) (10%) (30%) Balancing Adjustment Restaurant Trips 0 0 3 0 0 0 0 1 0 6 3 0 0 0 3 3 Total Primary Site Trips 0 0 - 0 0 9 , 20 0 13 4 0 0 0 11 , Pass-By Trips 0 0 5 0 0 0 6 20 0 13 0 0 0 0 11 20 6 0 rass-by IIIps U 0 U U U 0 U U U 0 U U 20 U Total Vehicular Project Trips 0 5 0 0 9 6 20 0 19 4 0 0 0 31 6 • 2028 Build Traffic 0 23 5 17 0 9 6 23 0 21 55 8 0 17 134 6
APPENDIX H Synchro Analysis Reports
HCM Signalized Intersection Capacity Analysis 1: GA-9/Canton St & Magnolia St/GA-9 Atlanta St Existing 2025 Conditions - AM Peak Hour • → • • ← • 1 † 1 - ţ 1 Movement EBL EBT EBR WBL WBT WBR NBL NBT NBR SBL SBT SBR Lane Configurations 41∱ 7 ሻሻ ħ * ĵ. 7 ^ 7 Traffic Volume (vph) 49 399 103 836 228 0 32 215 526 0 341 34 Future Volume (vph) 49 399 103 836 228 0 32 215 526 0 341 34 Ideal Flow (vphpl) 1900 1900 1900 1900 1900 1900 1900 1900 1900 1900 1900 1900 Total Lost time (s) 6.3 6.3 6.7 6.7 6.3 6.2 6.7 6.2 6.2 Lane Util. Factor 0.95 1.00 0.97 1.00 1.00 0.95 0.95 0.95 1.00 Frpb, ped/bikes 1.00 0.99 1.00 1.00 1.00 1.00 1.00 1.00 0.98 Flpb, ped/bikes 1.00 1.00 1.00 1.00 1.00 1.00 1.00 1.00 1.00 Frt 1.00 0.85 1.00 1.00 1.00 0.93 0.85 1.00 0.85 Flt Protected 0.99 1.00 0.95 1.00 0.95 1.00 1.00 1.00 1.00 Satd. Flow (prot) 3511 1562 3367 1827 1655 1616 1504 3471 1488 Flt Permitted 0.87 1.00 0.95 1.00 0.40 1.00 1.00 1.00 1.00 Satd. Flow (perm) 3074 1562 3367 1827 691 1616 1504 3471 1488 Peak-hour factor, PHF 0.96 0.96 0.96 0.96 0.96 0.96 0.96 0.96 0.96 0.96 0.96 0.96 Adj. Flow (vph) 51 416 107 871 238 0 33 224 548 0 355 35 RTOR Reduction (vph) 0 0 87 0 0 0 0 19 24 0 0 29 Lane Group Flow (vph) 0 467 20 871 238 0 33 386 343 0 355 6 Confl. Peds. (#/hr) 2 1 1 2 1 0.0 1 Heavy Vehicles (%) 4% 2% 2% 4% 4% 2% 9% 6% 2% 2% 4% 6% Turn Type Perm NA Perm Split NA pm+pt NA pt+ov NA Perm Protected Phases 4 3 3 1 6 3 6 2 Permitted Phases 4 4 6 2 Actuated Green, G (s) 30.3 30.3 64.4 64.4 46.1 46.1 116.7 28.0 28.0 Effective Green, g (s) 30.3 30.3 64.4 64.4 46.1 46.1 110.5 28.0 28.0 Actuated g/C Ratio 0.19 0.19 0.40 0.40 0.29 0.29 0.69 0.18 0.18 Clearance Time (s) 6.3 6.3 6.7 6.7 6.3 6.2 6.2 6.2 Vehicle Extension (s) 4.0 4.0 6.0 6.0 3.0 5.0 5.0 5.0 Lane Grp Cap (vph) 582 295 1355 735 270 465 1038 607 260 v/s Ratio Prot c0.26 0.13 0.01 c0.24 0.23 0.10 v/s Ratio Perm c0.15 0.01 0.03 0.00 v/c Ratio 0.80 0.07 0.64 0.32 0.12 0.83 0.33 0.58 0.02 Uniform Delay, d1 62.0 53.3 38.5 32.8 49.0 53.3 9.9 60.7 54.7 Progression Factor 1.00 1.00 1.00 1.00 1.46 1.39 0.52 1.00 1.00 Incremental Delay, d2 8.3 0.1 2.4 1.2 0.2 13.0 0.4 2.2 0.1 Delay (s) 70.3 53.4 40.9 34.0 71.6 87.3 5.5 62.9 54.8 Level of Service Е D D С Е F Α Е D Approach Delay (s/veh) 67.1 39.4 49.4 62.2 Approach LOS Е D D Е Intersection Summary HCM 2000 Control Delay (s /veh) 50.8 H CM 2000 Level of Service D HCM 2000 Volume to Capa 0.77 Actuated Cycle Length (s) 160.0 Sı um of lost t time (s) 25.5 Intersection Capacity Utiliza ntion 79.1% CU Level 9 D Analysis Period (min) 15 c Critical Lane Group c Critical Lane Group
Intersection 2 Int Delay, s/veh Movement EBL EBT EBR WBL WBT WBR NBL NBT NBR SBL SBT SBR Lane Configurations 4 र्स 7 ∱ ∱ ΦÞ Traffic Vol, veh/h 15 13 65 3 3 12 2 784 40 17 1276 22 Future Vol, veh/h 15 13 65 3 3 12 2 784 40 17 1276 22 Conflicting Peds, #/hr 10 0 0 0 0 10 6 0 0 0 0 6 Sign Control Stop Stop Stop Stop Stop Stop Free Free Free Free Free Free RT Channelized - - None - - Yield - - None - - None Storage Length - - - 77 - 0 115 - - 100 - - Veh in Median Storage e,# - 0 - - 0 - - 0 - - 0 - Grade, % - 0 - - 0 - - 0 - - 0 - Peak Hour Factor 93 93 93 93 93 93 93 93 93 93 93 93 Heavy Vehicles, % 2 8 2 2 2 2 2 3 2 6 4 2 Mvmt Flow 16 14 70 3 3 13 2 843 43 18 1372 24 Major/Minor Minor2 Minor1 Major1 /aior2 2217 2207 Major1 ^ Major2 0 ^ Conflicting Flow All 1864 2317 704 1598 2307 453 1402 0 0 886 0 0 Stage 1 1426 1426 - 869 869 - - - - - - - Stage 2 437 890 - 730 1438 - - - - - - - Critical Hdwy 7.54 6.66 6.94 7.54 6.54 6.94 4.14 - - 4.22 - - Critical Hdwy Stg 1 6.54 5.66 - 6.54 5.54 - - - - - - - Critical Hdwy Stg 2 6.54 5.66 - 6.54 5.54 - - - - - - - Follow-up Hdwy 3.52 4.08 3.32 3.52 4.02 3.32 2.22 - - 2.26 - - Pot Cap-1 Maneuver 159 48 727 383 52 871 644 - - 931 - - Stage 1 284 300 - 516 509 - - - - - - - Stage 2 822 483 - 685 304 - - - - - - - Platoon blocked, % 1 1 0 1 1 0 0 - - 0 - - Mov Cap-1 Maneuver 46 722 237 50 863 640 - - 931 - - Mov Cap-2 Maneuver 46 - 237 50 - - - - - - - Stage 1 276 293 - 514 507 - - - - - - - Stage 2 794 482 - 578 296 - - - - - - - Approach EB WB NB SB 23.46 0.03 0.12 HCM Control Delay, s. HCM LOS /v41.48 E 23.46 C 0.03 0.12 HCIVI LUS ᆫ C Minor Lane/Major Mvr nt NBL NBT NBR EBLn1\ WBLn1V VBLn2 SBL SBT SBR Capacity (veh/h) 640 - - 195 83 863 931 - - HCM Lane V/C Ratio 0.003 - - 0.513 0.078 0.015 0.02 - - HCM Control Delay (s /veh) 10.6 - - 41.5 51.9 9.2 8.9 - - HCM Lane LOS В - - Е F Α Α - - HCM 95th %tile Q(veh 1) 0 - - 2.6 0.2 0 0.1 - - Notes 4 - d (1 : Volume exceeds ca pacity \$: De elay exc eeds 3 00s +: Com putation Not De efined *: All major v olume in platoon
HCM 7th Signalized Intersection Summary 3: GA-9 Atlanta St/GA-9 & Private Dwy/Oak St Existing 2025 Conditions - AM Peak Hour ٠ → • • ← • 1 † ~ / ţ 4 Movement EBL EBT EBR WBL WBT WBR NBL NBT NBR SBL SBT SBR Lane Configurations 43 ĵ, 4 15 41∱ 7 Traffic Volume (veh/h) 4 1 0 49 7 34 0 767 32 39 1258 16 Future Volume (veh/h) 4 1 0 49 7 34 0 767 32 39 1258 16 Initial Q (Qb), veh 0 0 0 0 0 0 0 0 0 0 0 0 Lane Width Adj. 1.00 1.00 1.00 1.00 1.00 1.00 1.00 1.00 1.00 1.00 1.00 1.00 Ped-Bike Adj(ApbT) 0.99 1.00 0.99 0.99 1.00 1.00 1.00 1.00 Parking Bus, Adj 1.00 1.00 1.00 1.00 1.00 1.00 1.00 1.00 1.00 1.00 1.00 1.00 Work Zone On Approach No No No No Adj Sat Flow, veh/h/ln 1870 1870 1870 1841 1870 1856 1870 1856 1811 1826 1856 1870 Adj Flow Rate, veh/h 4 1 0 53 8 37 0 825 34 42 1353 17 Peak Hour Factor 0.93 0.93 0.93 0.93 0.93 0.93 0.93 0.93 0.93 0.93 0.93 0.93 Percent Heavy Veh, % 2 2 2 4 2 3 2 3 6 5 3 2 Cap, veh/h 76 15 0 134 17 77 0 2993 123 88 2814 1373 Arrive On Green 0.06 0.06 0.00 0.06 0.06 0.06 0.00 1.00 1.00 1.00 1.00 1.00 Sat Flow, veh/h 613 254 0 1383 287 1328 0 3543 142 74 3243 1583 Grp Volume(v), veh/h 5 0 0 53 0 45 0 421 438 726 669 17 Grp Sat Flow(s),veh/h/ln 867 0 0 1383 0 1615 0 1763 1830 1714 1604 1583 Q Serve(gs), s 0.0 0.0 0.0 0.6 0.0 4.3 0.0 0.0 0.0 0.0 0.0 0.0 Cycle Q Clear(gc), s 4.3 0.0 0.0 4.9 0.0 4.3 0.0 0.0 0.0 0.0 0.0 0.0 Prop In Lane 0.80 0.00 1.00 0.82 0.00 0.08 0.06 1.00 Lane Grp Cap(c), veh/h 91 0 0 134 0 94 0 1529 1587 1510 1391 1373 V/C Ratio(X) 0.05 0.00 0.00 0.39 0.00 0.48 0.00 0.28 0.28 0.48 0.48 0.01 Avail Cap(ca), veh/h 312 0 0 348 0 343 0 1529 1587 1510 1391 1373 HCM Platoon Ratio 1.00 1.00 1.00 1.00 1.00 1.00 2.00 2.00 2.00 2.00 2.00 2.00 Upstream Filter(I) 1.00 0.00 0.00 1.00 0.00 1.00 0.00 0.84 0.84 1.00 1.00 1.00 Uniform Delay (d), s/veh 71.2 0.0 0.0 73.2 0.0 73.0 0.0 0.0 0.0 0.0 0.0 0.0 Incr Delay (d2), s/veh 0.4 0.0 0.0 3.2 0.0 6.4 0.0 0.4 0.4 1.1 1.2 0.0 Initial Q Delay(d3), s/veh 0.0 0.0 0.0 0.0 0.0 0.0 0.0 0.0 0.0 0.0 0.5 0.0 0.5 0.0 %ile BackOfQ(50%),veh/ln 0.0 0.0 2.3 0.0 2.0 0.0 0.2 0.2 0.5 0.5 0.0 Unsig. Movement Delay, s/veh LnGrp Delay(d), s/veh 71.6 0.0 0.0 76.5 0.0 79.4 0.0 0.4 0.4 1.1 1.2 0.0 LnGrp LOS 71.0 E 0.0 0.0 70.5 E 0.0 79.4 E 0.0 0.4 A 0.4 A Α 1.2 A Ο.0 L 5 L 98 L 859 A H 1412 A Approach Vol, veh/h Approach Delay, s/veh 71.6 77.8 0.4 1412 Approach LOS 71.0 E 77.8 E Арргоаст 103 С А Α Timer - Assigned Phs 2 4 6 8 Phs Duration (G+Y+Rc), s 144.7 15.3 144.7 15.3 Change Period (Y+Rc), s 5.9 6.0 5.9 6.0 Max Green Setting (Gmax), s 1 .1E+02 34.0 1 .1E+02 34.0 Max Q Clear Time (gc+I1), s 2.0 6.9 2.0 6.3 Green Ext Time (pc), s 57.4 0.7 21.2 0.0 Intersection Summary HCM 7th Control Delay, s/veh 4.2 HCM 7th LOS Α Notes HCM 7th computational enging ne requir es equal clearance times for the phas ses crossi ng the ba rrier. Synchro 12 Report 6/16/2025 Kimley-Horn Page 3
HCM 7th Signalized Intersection Summary 4: GA-9/GA-9 Atlanta St & Oxbo Rd Existing 2025 Conditions - AM Peak Hour ۶ → • • ← • 1 † ^ / ļ 1 Movement EBL EBT EBR WBL WBT WBR NBL NBT NBR SBL SBT SBR Lane Configurations 4 4 ΦÞ ΦÞ Traffic Volume (veh/h) 26 112 39 203 104 21 12 740 277 61 1236 10 Future Volume (veh/h) 26 112 39 203 104 21 12 740 277 61 1236 10 Initial Q (Qb), veh 0 0 0 0 0 0 0 0 0 0 0 0 Lane Width Adj. 1.00 1.00 1.00 1.00 1.00 1.00 1.00 1.00 1.00 1.00 1.00 1.00 Ped-Bike Adj(ApbT) 0.99 0.99 1.00 1.00 1.00 1.00 1.00 1.00 Parking Bus, Adj 1.00 1.00 1.00 1.00 1.00 1.00 1.00 1.00 1.00 1.00 1.00 1.00 Nork Zone On Approac No No No No Adj Sat Flow, veh/h/ln 1870 1870 1870 1870 1841 1870 1870 1856 1870 1856 1856 1604 Adj Flow Rate, veh/h 27 115 40 209 107 22 12 763 286 63 1274 10 Peak Hour Factor 0.97 0.97 0.97 0.97 0.97 0.97 0.97 0.97 0.97 0.97 0.97 0.97 Percent Heavy Veh, % 2 2 2 2 4 2 2 3 2 3 3 20 Cap, veh/h 179 107 37 257 268 55 327 1534 575 325 2245 18 Arrive On Green 0.02 0.08 0.08 0.12 0.18 0.18 0.01 0.61 0.61 0.05 1.00 1.00 Sat Flow, veh/h 1781 1323 460 1781 1480 304 1781 2508 940 1767 3585 28 Grp Volume(v), veh/h 27 0 155 209 0 129 12 536 513 63 626 658 Grp Sat Flow(s), veh/h/li 0 1783 1781 0 1785 1781 1763 1685 1767 1763 1850 2 Serve(gs), s 2.2 0.0 12.9 16.8 0.0 10.2 0.4 27.2 27.2 2.2 0.0 0.0 Cycle Q Clear(qc), s 2.2 0.0 12.7 16.8 0.0 10.2 0.4 27.2 27.2 2.2 0.0 0.0 Prop In Lane 1.00 5.0 0.26 1.00 0.0 0.17 1.00 21.2 0.56 1.00 0.0 0.02 ane Grp Cap(c), veh/h 0 144 257 0 323 327 1078 1031 325 1104 1159 V/C Ratio(X) 0.15 0.00 1.08 0.81 0.00 0.40 0.04 0.50 0.50 0.19 0.57 0.57 Avail Cap(ca), veh/h 234 0.00 144 300 0.00 323 408 1078 1031 435 1104 1159 HCM Platoon Ratio 1.00 1.00 1.00 1.00 1.00 1.00 1.00 1.00 1.00 2.00 2.00 2.00 Upstream Filter(I) 1.00 0.00 1.00 1.00 0.00 1.00 1.00 1.00 1.00 0.84 0.84 0.84 Uniform Delay (d), s/vel 0.0 73.6 57.0 0.0 57.8 11.5 17.3 17.3 13.2 0.0 0.0 ncr Delay (d2), s/veh 0.5 0.0 97.4 14.4 0.0 1.0 0.0 1.6 1.7 0.2 1.8 1.7 Initial Q Delay(d3), s/ve 0.0 0.0 0.0 0.0 0.0 0.0 0.0 0.0 0.0 0.0 0.0 %ile BackOfQ(50%),vel 0.0 9.9 8.7 0.0 4.8 0.2 11.4 10.9 0.8 0.5 0.5 Jnsig. Movement Delay 7.7 0.7 0.0 1.0 0.2 10.7 0.0 0.0 0.0 nGrp Delay(d), s/veh 66.4 171.0 71.4 0.0 58.8 11.5 19.0 19.0 13.5 1.8 1.7 LnGrp LOS E 0.0 F E 0.0 E В В В В A A Approach Vol, veh/h 182 338 1061 U 1347 - 1 Approach Delay, s/veh 155.5 66.6 18.9 2.3 Approach LOS 155.5 F 00.0 E 10.9 B 2.3 A • • • • • • • • • • • • • • • • • • • • A Fimer - Assigned Phs 1 2 3 4 5 102.0 7 8 Phs Duration (G+Y+Rc) 10.1 36.1 10.0 103.9 26.1 20.0 Change Period (Y+Rc), 6.0 7.1 7.1 6.0 6.0 7.1 7.1 Max Green Setting (Gm 89.0 7.9 27.9 14.0 84.0 22.9 12.9 Max Q Clear Time (gc 2.0 4.2 12.2 4.2 29.2 18.8 14.9 Green Ext Time (pc), s s 0.0 42.3 0.0 0.7 0.1 25.5 0.3 0.0 Intersection Summary 0.5. HCM 7th Control Delay , s/veh 25.3 HCM 7th LOS С Notes User approved pedestri an inte rval to l be less than ph ase ma x greer ١. Synchro 12 Report 6/16/2025 Kimley-Horn Page 4
Intersection Int Delay, s/veh 5.6 11/51 Movement EBL EBT EBR WBL WBT WBR NBL NBT NBR SBL SBT SBR Lane Configurations 7 4 4 4 4 Traffic Vol, veh/h 45 13 7 15 12 8 6 6 3 0 4 9 Future Vol, veh/h 45 13 7 15 12 8 6 6 3 0 4 9 Conflicting Peds, #/hr 0 0 0 0 0 0 0 0 3 3 0 0 Sign Control Free Free Free Free Free Free Stop Stop Stop Stop Stop Stop RT Channelized - - None - - None - - None - - None Storage Length 130 - - - - - - - - - - - Veh in Median Storage e,# - 0 - - 0 - - 0 - - 0 - Grade, % - 0 - - 0 - - 0 - - 0 - Peak Hour Factor 76 76 76 76 76 76 76 76 76 76 76 76 Heavy Vehicles, % 2 15 2 2 2 2 2 2 33 2 2 2 Mvmt Flow 59 17 9 20 16 11 8 8 4 0 5 12 Major/Minor Major1 Major2 Minor1 Minor2 Conflicting Flow All 26 0 0 26 0 0 198 206 25 203 205 21 Stage 1 20 U U 20 U U 140 140 25 61 61 ۷1 Stage 2 • - - - - • 58 66 - 142 145 - Critical Hdwy 4.12 - - 4.12 - - 7.12 6.52 6.53 7.12 6.52 6.22 • - - 4.12 - - 6.12 5.52 0.33 6.12 5.52 0.22 Critical Hdwy Stg 1 - - - - - - 6.12 5.52 - 6.12 5.52 - Critical Hdwy Stg 2 - 2.218 - - 3.518 4.018 3.597 3.518 4.018 2 210 Follow-up Hdwy 2.218 - - - - 3.318 Pot Cap-1 Maneuver 1588 - - 1588 - - 761 691 969 755 691 1056 Stage 1 - - - - - - 863 781 - 951 844 - Stage 2 - - - - - - 954 840 - 860 777 - Platoon blocked, % 1500 - - 1500 - - 710 ([7 0// 705 ([7 1057 Mov Cap-1 Maneuver 1588 - - 1588 - - 710 657 966 705 657 1056 Mov Cap-2 Maneuver - - - - - - 710 657 - 705 657 - Stage 1 - - - - - - 831 752 - 939 834 - Stage 2 - - - - - - 925 829 - 814 748 - Approach EB WB NB SB HCM Control Delay, s/ v 5.09 3.13 10.11 9.12 HCM LOS В Α Minor Lane/Major Mvn nt I NBLn1 EBL EBT EBR WBL WBT WBR SBLn1 Capacity (veh/h) 725 1588 - - 714 - - HCM Lane V/C Ratio 0.037 0.012 0.019 HCM Control Delay (s/ /veh) 10.1 7.4 - 7.3 0 - 9.1 HCM Lane LOS vonj В Α.4 - 7.5 A A Α.1 HCM 95th %tile Q(veh ) 0.1 0.1 - 0 - - 0.1 110M 73M 70ME Q(VEH 7 0.1 U. I U _ 0.1
Intersection Intersection Delay, s/veh 7.2 Intersection LOS А Movement EBU EBL EBT EBR WBL WBT WBR NBL NBT NBR SBL SBT Lane Configurations 4 4 4 4 Traffic Vol, veh/h 1 9 4 0 2 12 0 1 20 0 2 35 Future Vol, veh/h 1 9 4 0 2 12 0 1 20 0 2 35 Peak Hour Factor 0.90 0.90 0.90 0.90 0.90 0.90 0.90 0.90 0.90 0.90 0.90 0.90 Heavy Vehicles, % 2 11 25 2 2 2 2 2 2 2 2 2 Mvmt Flow 1 10 4 0 2 13 0 1 22 0 2 39 Number of Lanes 0 0 1 0 0 1 0 0 1 0 0 1 Approach EB WB NB SB Opposing Approach WB EB SB NB Opposing Lanes 1 1 1 1 Conflicting Approach Left SB NB EB WB Conflicting Lanes Left 1 1 1 1 Conflicting Approach Right NB SB WB EB Conflicting Lanes Right 1 1 1 1 HCM Control Delay, s/veh 7.4 7.2 7.2 7.1 HCM LOS Α Α Α Α Lane NBLn1 EBLn1 WBLn1 SBLn1 Vol Left, % 5% 69% 14% 3% Vol Thru, % 95% 31% 86% 56% Vol Right, % 0% 0% 0% 40% Sign Control Stop Stop Stop Stop Traffic Vol by Lane 21 14 14 62 LT Vol 1 10 2 2 Through Vol 20 4 12 35 RT Vol 0 0 0 25 Lane Flow Rate 23 16 16 69 Geometry Grp 1 1 1 1 Degree of Util (X) 0.026 0.018 0.018 0.072 Departure Headway (Hd) 4.05 4.245 4.135 3.771 Convergence, Y/N Yes Yes Yes Yes Cap 884 842 864 951 Service Time 2.075 2.279 2.169 1.791 HCM Lane V/C Ratio 0.026 0.019 0.019 0.073 HCM Control Delay, s/veh 7.2 7.4 7.2 7.1 HCM Lane LOS А Α Α Α HCM 95th-tile Q 0.1 0.1 0.1 0.2
Intersection Intersection Delay, s/veh Intersection LOS Movement SBR Lane Configurations Traffic Vol, veh/h 25 Future Vol, veh/h 25 Peak Hour Factor 0.90 Heavy Vehicles, % 2 Mvmt Flow 28 Number of Lanes 0 Approach Opposing Approach Opposing Lanes Conflicting Approach Conflicting Approach Left Conflicting Lanes Left Conflicting Approach Right Conflicting Lanes Right HCM Control Delay, s/veh HCM LOS
HCM 7th Signalized Intersection Summary 7: Forrest St/Fraser St & Norcross St Existing 2025 Conditions - AM Peak Hour ٠ → • • ← • 1 † 1 - ļ 1 Movement EBL EBT EBR WBL WBT WBR NBL NBT NBR SBL SBT SBR Lane Configurations ની 7 4 4 4 Traffic Volume (veh/h) 3 305 9 19 230 54 2 16 20 78 50 11 Future Volume (veh/h) 3 305 9 19 230 54 2 16 20 78 50 11 Initial Q (Qb), veh 0 0 0 0 0 0 0 0 0 0 0 0 Lane Width Adj. 1.00 1.00 1.00 1.00 1.00 1.00 1.00 1.00 1.00 1.00 1.00 1.00 Ped-Bike Adj(ApbT) 0.99 0.98 0.99 0.98 1.00 1.00 1.00 1.00 Parking Bus, Adj 1.00 1.00 1.00 1.00 1.00 1.00 1.00 1.00 1.00 1.00 1.00 1.00 Work Zone On Approac No No No No Adj Sat Flow, veh/h/ln 1870 1870 1870 1870 1826 1841 1870 1707 1870 1870 1870 1870 Adj Flow Rate, veh/h 4 363 11 23 274 64 2 19 24 93 60 13 Peak Hour Factor 0.84 0.84 0.84 0.84 0.84 0.84 0.84 0.84 0.84 0.84 0.84 0.84 Percent Heavy Veh, % 2 2 2 2 5 4 2 13 2 2 2 2 Cap, veh/h 69 567 473 85 402 90 78 336 394 487 297 58 Arrive On Green 0.30 0.30 0.30 0.30 0.30 0.30 0.48 0.48 0.48 0.48 0.48 0.48 Sat Flow, veh/h 5 1862 1554 47 1319 294 18 704 825 803 621 121 Grp Volume(v), veh/h 367 0 11 361 0 0 45 0 023 166 021 0 Grp Volume(v), ven/h Grp Sat Flow(s),veh/h/l 0 1554 1660 0 0 1547 0 0 1545 0 0 Q Serve(gs), s 0.0 0.0 0.3 1.3 0.0 0.0 0.0 0.0 0.0 1.5 0.0 0.0 Cycle Q Clear(gc), s 9.2 0.0 0.3 10.5 0.0 0.0 0.0 0.0 0.0 3.1 0.0 0.0 Prop In Lane 0.01 0.0 1.00 0.06 0.0 0.0 0.04 0.0 0.53 0.56 0.0 0.0 ٥ 0 ٥ ٥ 0.08 Lane Grp Cap(c), veh/h 0 473 576 0 0 808 0 0 841 0 V/C Ratio(X) 0.58 0.00 0.02 0.63 0.00 0.00 0.06 0.00 0.00 0.20 0.00 0.00 Avail Cap(ca), veh/h 1011 0 787 915 1.00 1.00 808 1.00 1.00 841 1.00 0 HCM Platoon Ratio 1.00 1.00 1.00 1.00 1.00 1.00 1.00 1.00 1.00 1.00 1.00 1.00 Upstream Filter(I) 1.00 0.00 1.00 1.00 0.00 0.00 1.00 0.00 0.00 1.00 0.00 0.00 Uniform Delay (d), s/ve 0.0 13.2 16.5 0.0 0.0 7.6 0.0 0.0 8.2 0.0 0.0 Incr Delay (d2), s/veh 1.0 0.0 0.0 1.4 0.0 0.0 0.1 0.0 0.0 0.5 0.0 0.0 Initial Q Delay(d3), s/ve 0.0 0.0 0.0 0.0 0.0 0.0 0.0 0.0 0.0 0.0 0.0 %ile BackOfQ(50%),ve 0.0 0.1 3.5 0.0 0.0 0.3 0.0 0.0 1.1 0.0 0.0 Unsig. Movement Delay , 10.0 17.0 0.0 0.0 0.0 0.0 0.7 0.0 0.0 LnGrp Delay(d), s/veh 17.3 0.0 13.2 17.9 0.0 0.0 7.7 0.0 0.0 8.7 0.0 0.0 LnGrp LOS В В В A Α Approach Vol, veh/h 378 361 45 166 Approach Delay, s/veh 17.2 17.9 7.7 8.7 Approach LOS В В Α Α Timer - Assigned Phs 2 4 6 8 Phs Duration (G+Y+Rc) ), s 32.0 22.1 32.0 22.1 Change Period (Y+Rc), 6.2 5.6 6.2 5.6 Max Green Setting (Gn 25.8 27.4 25.8 27.4 Max Q Clear Time (gc 2.8 11.2 5.1 12.5 Green Ext Time (pc), 0.3 2.3 1.6 2.2 Intersection Summary HCM 7th Control Delay , s/veh 15.5 HCM 7th LOS В Synchro 12 Report 6/16/2025 Kimley-Horn Page 8
Intersection Int Delay, s/veh 3.1 Movement EBL EBT EBR WBL WBT WBR NBL NBT NBR SBL SBT SBI Lane Configurations 👫 👫 👫 Traffic Vol., veh/h 0 34 14 27 71 2 17 0 26 0 0 Future Vol, veh/h 0 34 14 27 71 2 17 0 26 0 0 Conflicting Peds, #/hr 2 0 0 0 0 2 0 0 0 0 Sign Control Free Free Free Free Free Stop Stop Stop Stop Stop Stop RT Channelized None None None Storage Length Veh in Median Storage, # - 0 0 0 Grade, % - 0 0 0 Peak Hour Factor 90 90 90 90 90 90 90 90 90 90 90 90 Heavy Vehicles, % 2 3 2 2 2 2 2 2 2 2 2 Mvmt Flow 0 38 16 30 79 2 19 0 29 0 0 Major/Minor Major1 Major2 Minor1 Minor2 Conflicting Flow All 83 0 0 53 0 0 184 189 46 180 195 8 Stage 1 46 46 - 142 142 Stage 2 139 143 - 38 53 Critical Hdwy 4.12 4.12 7.12 6.52 6.22 7.12 6.52 6.2 Critical Hdwy Stg 1 6.12 5.52 - 6.12 5.52 Critical Hdwy Stg 2 6.12 5.52 - 6.12 5.52 Follow-up Hdwy 2.218 2.218 3.518 4.018 3.318 3.518 4.018 3.31 Pot Cap-1 Maneuver 1514 1552 776 706 1024 782 700 97 Stage 1 968 857 - 861 779 Stage 2 864 778 - 977 850 Platoon blocked, % Mov Cap-1 Maneuver 1511 1552 761 690 1024 743 685 97 Mov Cap-2 Maneuver 761 690 - 743 685 Stage 1 968 857 - 842 762 Stage 2 847 761 - 950 850 Approach EB WB NB SB HCM Control Delay, s/v 0 1.99 9.22 0 HCM LOS A A Minor Lane/Major Mvmt NBLn1 EBL EBT EBR WBL WBT WBR SBLn1 Capacity (veh/h) 901 1511 483 HCM Lane V/C Ratio 0.053 0.019 HCM Control Delay (s/veh) 9.2 0 7.4 0 - 0 HCM Lane LOS A A A A - A HCM 95th %tile Q(veh) 0.2 0 0.1
HCM Signalized Intersection Capacity Analysis 1: GA-9/Canton St & Magnolia St/GA-9 Atlanta St Existing 2025 Conditions - PM Peak Hour ۶ → • • • • 1 † - 1 ţ 1 Movement EBL EBT EBR WBL WBT WBR NBL NBT NBR SBL SBT SBR Lane Configurations 41∱ 7 14 ĵ. * f) 7 ^ 7 Traffic Volume (vph) 80 254 40 726 413 16 142 318 652 0 235 91 Future Volume (vph) 80 254 40 726 413 16 142 318 652 0 235 91 Ideal Flow (vphpl) 1900 1900 1900 1900 1900 1900 1900 1900 1900 1900 1900 1900 Total Lost time (s) 6.3 6.3 6.7 6.7 6.3 6.2 6.7 6.2 6.2 Lane Util. Factor 0.95 1.00 0.97 1.00 1.00 0.95 0.95 0.95 1.00 Frpb, ped/bikes 1.00 1.00 1.00 1.00 1.00 0.99 1.00 1.00 1.00 Flpb, ped/bikes 1.00 1.00 1.00 1.00 1.00 1.00 1.00 1.00 1.00 Frt 1.00 0.85 1.00 0.99 1.00 0.94 0.85 1.00 0.85 Flt Protected 0.99 1.00 0.95 1.00 0.95 1.00 1.00 1.00 1.00 Satd. Flow (prot) 3497 1568 3433 1852 1770 1657 1504 3539 1583 Flt Permitted 0.74 1.00 0.95 1.00 0.49 1.00 1.00 1.00 1.00 Satd. Flow (perm) 2620 1568 3433 1852 906 1657 1504 3539 1583 Peak-hour factor, PHF 0.95 0.95 0.95 0.95 0.95 0.95 0.95 0.95 0.95 0.95 0.95 0.95 Adj. Flow (vph) 84 267 42 764 435 17 149 335 686 0 247 96 RTOR Reduction (vph) 0 0 35 0 1 0 0 12 61 0 0 85 Lane Group Flow (vph) 0 351 7 764 451 0 149 522 426 0 247 11 Confl. Peds. (#/hr) 001 , 701 101 117 ULL 5 5 2.7 Heavy Vehicles (%) 2% 2% 3% 2% 2% 2% 2% 2% 2% 2% 2% 2% Turn Type Perm NA Perm Split NA 270 pm+pt NA pt+ov 270 NA Perm Protected Phases 1 CIIII 4 I CIIII 3 3 1 6 3 6 2 I CIIII Permitted Phases 4 7 4 J J 6 U 3 0 2 Actuated Green, G (s) 7 27.6 27.6 63.3 63.3 49.9 49.9 119.4 19.1 19.1 Effective Green, g (s) 27.6 27.6 63.3 63.3 49.9 49.9 113.2 19.1 19.1 Actuated g/C Ratio 0.17 0.17 0.40 0.40 0.31 0.31 0.71 0.12 0.12 Clearance Time (s) 6.3 6.3 6.7 6.7 6.3 6.2 0.71 6.2 6.2 Vehicle Extension (s) 4.0 4.0 6.0 6.0 3.0 5.0 5.0 5.0 Lane Grp Cap (vph) 451 270 1358 732 414 516 1064 422 188 v/s Ratio Prot 431 270 0.22 c0.24 0.06 c0.31 0.28 0.07 100 c0.13 0.00 0.22 CU.24 0.06 CU.3 I 0.28 0.07 0.01 v/s Ratio Perm v/c Ratio 0.78 0.54 0.62 1 01 0.40 0.50 0.01 0.03 0.56 0.36 1.01 0.40 0.59 0.06 Uniform Delay, d1 63.3 55.0 37.6 38.7 47.6 55.1 9.6 66.7 62.5 Progression Factor 1.00 1.00 1.00 1.00 0.59 0.50 0.80 1.00 1.00 Incremental Delay, d2 8.7 0.1 1.7 3.9 0.5 41.3 0.5 3.2 0.3 Delay (s) 72.0 55.1 39.3 42.5 28.4 68.9 8.2 69.9 62.8 Level of Service E 70.0 Е D D С E 20.5 А (7.0 E Approach Delay (s/veh) 70.2 40.5 38.5 67.9 Approach LOS E D D E Intersection Summary HCM 2000 Control Delay (s /veh) 46.5 Н CM 2000 Level of Service D HCM 2000 Volume to Capa city ratio 0.82 Actuated Cycle Length (s) 160.0 um of lost 25.5 Intersection Capacity Utiliza tion 85.6% IC CU Level of Service 9 Е Analysis Period (min) 15 c Critical Lane Group c Critical Lane Group Synchro 12 Report 6/16/2025
Intersection Int Delay, s/veh 1.2 Movement EBL EBT EBR WBL WBT WBR NBU NBL NBT NBR SBL SBT SBR Lane Configurations 4 4 7 41 † 1> Traffic Vol, veh/h 0 2 17 9 5 33 2 43 1089 17 21 1000 43 Future Vol, veh/h 0 2 17 9 5 33 2 43 1089 17 21 1000 43 Conflicting Peds, #/hr 9 0 0 0 0 9 0 5 0 2 2 0 5 Sign Control Stop Stop Stop Stop Stop Stop Free Free Free Free Free Free Free RT Channelized - - None - - Yield - - - None - - None Storage Length - - - 77 - 0 - 115 - - 100 - - Veh in Median Storage e,# - 0 - - 0 - - - 0 - - 0 - Grade, % - 0 - - 0 - - - 0 - - 0 - Peak Hour Factor 97 97 97 97 97 97 97 97 97 97 97 97 97 Heavy Vehicles, % 2 2 2 2 2 2 2 2 2 6 5 2 2 Mvmt Flow 0 2 18 9 5 34 2 44 1123 18 22 1031 44 Major/Minor Minor2 Minor1 Major1 Major2 Conflicting Flow All 1767 2336 543 1786 2350 581 1075 1080 0 0 1142 0 0 Stage 1 1101 1101 - 1226 1226 - - - - - - - - Stage 2 666 1235 - 560 1124 - - - - - - - - Critical Hdwy 7.54 6.54 6.94 7.54 6.54 6.94 6.44 4.14 - - 4.2 - - Critical Hdwy Stg 1 6.54 5.54 - 6.54 5.54 - - - - - - - - Critical Hdwy Stg 2 6.54 5.54 - 6.54 5.54 - - - - - - - - Follow-up Hdwy 3.52 4.02 3.32 3.52 4.02 3.32 2.52 2.22 - - 2.25 - - Pot Cap-1 Maneuver 91 38 805 87 37 779 587 847 - - 805 - - Stage 1 418 426 - 359 377 - - - - - - - - Stage 2 735 372 - 760 413 - - - - - - - - Platoon blocked, % 0 0 0 0 0 0 0 0 - - 0 - - Mov Cap-1 Maneuver 68 35 802 74 34 771 826 826 - - 803 - - Mov Cap-2 Maneuver 68 35 - 74 34 - - - - - - - - Stage 1 405 413 - 338 355 - - - - - - - - Stage 2 648 350 - 719 400 - - - - - - - - Approach EB WB NB SB HCM Control Delay, s/ 36.42 0.38 0.19 HCM LOS С E N 41 1 10 10 10 10 10 10 10 10 10 10 10 10 N.D. N.D. NDS -D/ 1 N/D! VD: - 05: 0.5.7 000 Minor Lane/Major Mvn nt NBL NBT VBLn1V SBL SBT SBR Capacity (veh/h) 826 - - 242 52 771 803 - - HCM Lane V/C Ratio 0.056 - - 0.278 0.027 - - HCM Control Delay (s/ veh) 9.6 - - 21.2 99 9.9 9.6 - - HCM Lane LOS \ A - - С F A A - - HCM 95th %tile Q(veh 1) 0.2 - - 0.3 1 0.1 0.1 - - Notes pacity φ. D. lay exc d- 20 200 Com nutation n Not De ofinod *. A II major v olumo in platoc n
HCM 7th Signalized Intersection Summary 3: GA-9 Atlanta St/GA-9 & Private Dwy/Oak St Existing 2025 Conditions - PM Peak Hour ٠ → • • ← • 1 † ~ / ţ 4 Movement EBL EBT EBR WBL WBT WBR NBL NBT NBR SBL SBT SBR Lane Configurations 43 ĵ, 4 15 41∱ 7 Traffic Volume (veh/h) 2 1 3 69 3 59 0 1075 45 11 1007 9 Future Volume (veh/h) 2 1 3 69 3 59 0 1075 45 11 1007 9 Initial Q (Qb), veh 0 0 0 0 0 0 0 0 0 0 0 0 Lane Width Adj. 1.00 1.00 1.00 1.00 1.00 1.00 1.00 1.00 1.00 1.00 1.00 1.00 Ped-Bike Adj(ApbT) 1.00 1.00 1.00 1.00 1.00 1.00 1.00 1.00 Parking Bus, Adj 1.00 1.00 1.00 1.00 1.00 1.00 1.00 1.00 1.00 1.00 1.00 1.00 Work Zone On Approach No No No No Adj Sat Flow, veh/h/ln 1870 1870 1870 1870 1870 1856 1870 1870 1870 1870 1870 1870 Adj Flow Rate, veh/h 2 1 3 72 3 61 0 1120 47 11 1049 9 Peak Hour Factor 0.96 0.96 0.96 0.96 0.96 0.96 0.96 0.96 0.96 0.96 0.96 0.96 Percent Heavy Veh, % 2 2 2 2 2 3 2 2 2 2 2 2 Cap, veh/h 48 28 46 142 6 112 0 2960 124 36 2918 1349 Arrive On Green 0.07 0.07 0.07 0.07 0.07 0.07 0.00 1.00 1.00 1.00 1.00 1.00 Sat Flow, veh/h 242 385 628 1412 75 1522 0 3569 146 16 3426 1584 Grp Volume(v), veh/h 6 0 0 72 0 64 0 573 594 562 498 9 Grp Sat Flow(s), veh/h/ln 1256 0 0 1412 0 1596 0 1777 1844 1825 1617 1584 Q Serve(gs), s 0.0 0.0 0.0 2.6 0.0 6.2 0.0 0.0 0.0 0.0 0.0 0.0 Cycle Q Clear(gc), s 6.2 0.0 0.0 8.8 0.0 6.2 0.0 0.0 0.0 0.0 0.0 0.0 Prop In Lane 0.33 0.50 1.00 0.95 0.00 0.08 0.02 1.00 Lane Grp Cap(c), veh/h 123 0 0 142 0 118 0 1514 1571 1577 1377 1349 V/C Ratio(X) 0.05 0.00 0.00 0.51 0.00 0.54 0.00 0.38 0.38 0.36 0.36 0.01 Avail Cap(ca), veh/h 430 0 0 427 0 439 0 1514 1571 1577 1377 1349 HCM Platoon Ratio 1.00 1.00 1.00 1.00 1.00 1.00 2.00 2.00 2.00 2.00 2.00 2.00 Upstream Filter(I) 1.00 0.00 0.00 1.00 0.00 1.00 0.00 0.43 0.43 1.00 1.00 1.00 Uniform Delay (d), s/veh 68.9 0.0 0.0 72.8 0.0 71.5 0.0 0.0 0.0 0.0 0.0 0.0 Incr Delay (d2), s/veh 0.3 0.0 0.0 4.7 0.0 6.5 0.0 0.3 0.3 0.6 0.7 0.0 Initial Q Delay(d3), s/veh 0.0 0.0 0.0 0.0 0.0 0.0 0.0 0.0 0.0 0.0 0.0 0.0 %ile BackOfQ(50%),veh/ln 0.2 0.0 0.0 3.1 0.0 2.8 0.0 0.1 0.1 0.3 0.3 0.0 Unsig. Movement Delay, s/veh 1 LnGrp Delay(d), s/veh 69.2 0.0 0.0 77.5 0.0 78.0 0.0 0.3 0.3 0.6 0.7 0.0 LnGrp LOS Е Е Е Α Α Α Α Α Approach Vol, veh/h 6 136 1167 1069 Approach Delay, s/veh 69.2 77.7 0.3 0.7 Approach LOS E Ε Α Α Timer - Assigned Phs 2 4 6 8 Phs Duration (G+Y+Rc), s 142.2 17.8 142.2 17.8 Change Period (Y+Rc), s 5.9 6.0 5.9 6.0 Max Green Setting (Gmax), s 1E+02 44.0 1E+02 44.0 Max Q Clear Time (gc+I1), s 2.0 10.8 2.0 8.2 Green Ext Time (pc), s 31.7 1.1 37.4 0.0 Intersection Summary HCM 7th Control Delay, s/veh 5.1 HCM 7th LOS А Notes HCM 7th computational engir ne requir es equal clearance times for r the phas ses crossi ng the ba rrier. Synchro 12 Report 6/16/2025 Kimley-Horn Page 3
HCM 7th Signalized Intersection Summary 4: GA-9/GA-9 Atlanta St & Oxbo Rd Existing 2025 Conditions - PM Peak Hour ٠ → • • ← • 1 † ~ / Ţ 4 Movement EBL EBT EBR WBL WBT WBR NBL NBT NBR SBL SBT SBR Lane Configurations ŧ. 4 ΦÞ † ‡ Traffic Volume (veh/h) 6 105 22 278 204 35 69 1059 347 64 940 74 Future Volume (veh/h) 6 105 22 278 204 35 69 1059 347 64 940 74 Initial Q (Qb), veh 0 0 0 0 0 0 0 0 0 0 0 0 Lane Width Adj. 1.00 1.00 1.00 1.00 1.00 1.00 1.00 1.00 1.00 1.00 1.00 1.00 Ped-Bike Adj(ApbT) 0.95 0.93 0.97 0.97 1.00 0.98 1.00 0.98 Parking Bus, Adj 1.00 1.00 1.00 1.00 1.00 1.00 1.00 1.00 1.00 1.00 1.00 1.00 Work Zone On Approac :h No No No No Adj Sat Flow, veh/h/ln 1870 1826 1870 1870 1870 1870 1870 1870 1870 1870 1870 1870 Adj Flow Rate, veh/h 6 111 23 293 215 37 73 1115 365 67 989 78 Peak Hour Factor 0.95 0.95 0.95 0.95 0.95 0.95 0.95 0.95 0.95 0.95 0.95 0.95 Percent Heavy Veh, % 2 5 2 2 2 2 2 2 2 2 2 2 Cap, veh/h 167 150 31 362 396 68 244 1438 463 167 1815 143 Arrive On Green 0.01 0.10 0.10 0.16 0.26 0.26 0.03 0.55 0.55 0.01 0.18 0.18 Sat Flow, veh/h 1781 1446 300 1781 1547 266 1781 2630 847 1781 3332 263 Grp Volume(v), veh/h 6 0 134 293 0 252 73 747 733 67 527 540 Grp Sat Flow(s),veh/h/li 0 1746 1781 0 1813 1781 1777 1700 1781 1777 1818 Q Serve(gs), s 0.5 0.0 11.9 22.9 0.0 19.2 2.9 52.6 54.9 2.7 43.2 43.2 Cycle Q Clear(gc), s 0.5 0.0 11.9 22.9 0.0 19.2 2.9 52.6 54.9 2.7 43.2 43.2 Prop In Lane 1.00 0.0 0.17 1.00 0.0 0.15 1.00 02.0 0.50 1.00 10.2 0.14 Lane Grp Cap(c), veh/h 0 182 362 0 464 244 972 930 167 968 990 V/C Ratio(X) 0.04 0.00 0.74 0.81 0.00 0.54 0.30 0.77 0.79 0.40 0.54 0.55 Avail Cap(ca), veh/h 245 0.00 195 392 0.00 464 346 972 930 218 968 990 HCM Platoon Ratio 1.00 1.00 1.00 1.00 1.00 1.00 1.00 1.00 1.00 0.33 0.33 0.33 Upstream Filter(I) 1.00 0.00 1.00 1.00 0.00 1.00 1.00 1.00 1.00 0.92 0.92 0.92 Uniform Delay (d), s/vel 0.0 69.6 51.3 0.0 51.5 21.9 28.3 28.9 27.2 47.6 47.6 Incr Delay (d2), s/veh 0.1 0.0 13.4 11.7 0.0 1.5 0.7 5.8 6.7 1.4 2.0 2.0 Initial Q Delay(d3), s/ve 0.0 0.0 0.0 0.0 0.0 0.0 0.0 0.0 0.0 0.0 0.0 %ile BackOfQ(50%), vel 0.0 6.1 11.5 0.0 9.1 1.2 23.6 23.7 1.2 21.3 21.8 Unsig. Movement Delay 0.1 11.5 0.0 7.1 1.2 23.0 23.7 1.2 21.3 21.0 LnGrp Delay(d), s/veh 63.7 0.0 83.0 63.0 0.0 53.0 22.5 34.2 35.6 28.6 49.6 49.6 LnGrp LOS 03.7 E 0.0 65.0 F 03.0 E 0.0 D 22.5 C 34.2 C 55.0 D 20.0 C 47.0 D 47.0 D Approach Vol, veh/h 140 545 U 1553 - U 1134 Approach Delay, s/veh 82.2 58.3 34.3 48.4 Approach LOS 62.2 F 56.5 E 34.3 C 40.4 D • • D Timer - Assigned Phs 1 2 3 40.0 5 6 7 8 Phs Duration (G+Y+Rc) 93.1 8.0 48.0 10.5 93.5 32.3 23.7 Change Period (Y+Rc), 6.0 7.1 7.1 6.0 6.0 7.1 7.1 Max Green Setting (Gm 74.0 7.9 37.9 9.0 79.0 27.9 17.9 Max Q Clear Time (gc 45.2 2.5 21.2 4.7 56.9 24.9 13.9 Green Ext Time (pc), s 5 0.1 17.8 0.0 1.6 0.0 19.0 0.3 0.2 Intersection Summary HCM 7th Control Delay , s/veh 44.9 HCM 7th LOS D Notes User approved pedestri an inter rval to b e less than ph ase ma x greer ۱. Synchro 12 Report 6/16/2025 Kimley-Horn Page 4
Intersection Int Delay, s/veh 5.2 Movement EBL EBT EBR WBL WBT WBR NBL NBT NBR SBL SBT SBR Lane Configurations * 4 4 4 4 Traffic Vol, veh/h 6 25 14 19 28 7 10 4 19 13 19 11 Future Vol., veh/h 6 25 14 19 28 7 10 4 19 13 19 11 Conflicting Peds, #/hr 3 0 0 0 0 3 0 0 0 0 0 0 Sign Control Free Free Free Free Free Free Stop Stop Stop Stop Stop Stop RT Channelized - - None - - None - - None - - None Storage Length 130 - - - - - - - - - - - Veh in Median Storage 0 - - 0 - - 0 - - 0 - Grade, % - 0 - - 0 - - 0 - - 0 - Peak Hour Factor 83 83 83 83 83 83 83 83 83 83 83 83 Heavy Vehicles, % 2 4 2 2 4 2 2 2 5 2 2 2 Mvmt Flow 7 30 17 23 34 8 12 5 23 16 23 13 Major/Minor Major1 1 Major2 1 Minor1 Minor2 Conflicting Flow All 45 0 0 47 0 0 144 144 39 134 148 41 Stage 1 - - - - - - 53 53 - 87 87 - Stage 2 - - - 91 91 47 61 Critical Hdwy 4.12 - 4.12 - - 7.12 6.52 6.25 7.12 6.52 6.22 Critical Hdwy Stg 1 - - 6.12 5.52 - 6.12 5.52 - Critical Hdwy Stg 2 - - - - - 6.12 5.52 - 6.12 5.52 - Follow-up Hdwy 2.218 - 2.218 - 3.518 4.018 3.345 3.518 4.018 3.318 Pot Cap-1 Maneuver 1563 - - 1560 - - 825 747 1025 838 743 1030 Stage 1 - 960 851 - 921 823 - Stage 2 - - - - 916 820 - 967 844 - Platoon blocked, % - - - - Mov Cap-1 Maneuver 1558 - 1560 - - 774 731 1025 796 727 1027 Mov Cap-2 Maneuver - - - - - - 774 731 - 796 727 - Stage 1 - - - - - - 955 847 - 905 808 - Stage 2 - - - - - - 866 805 - 935 840 - J Approach EB WB NB SB HCM Control Delay, s/ 2.58 9.22 9.76 HCM LOS A A - ' Minor Lane/Major Mvm nt NBLn1 EBL EBT EBR WBL WBT WBR: SBI n1 Capacity (veh/h) 893 - - 609 - - HCM Lane V/C Ratio 0.045 - 0.015 - 0.064 HCM Control Delay (s/ \/eh\ 9.2 7.3 7.3 0 - HCM Lane LOS verij 7.2 A 7.3 A - 7.3 A A - 7.0 A HCM 95th %tile Q(veh ) 0.1 0 0 - 0.2 HOW 75th 76the Q(Veh) 1 0.1 U _ U 0.2
Intersection Intersection Delay, s/veh 7.4 Intersection LOS Α Movement EBL EBT EBR WBL WBT WBR NBL NBT NBR SBL SBT SBR Lane Configurations 4 4 4 4 Traffic Vol, veh/h 40 13 2 4 9 5 1 40 2 4 32 40 Future Vol, veh/h 40 13 2 4 9 5 1 40 2 4 32 40 Peak Hour Factor 0.89 0.89 0.89 0.89 0.89 0.89 0.89 0.89 0.89 0.89 0.89 0.89 Heavy Vehicles, % 5 2 2 2 2 2 2 3 2 2 2 2 Mvmt Flow 45 15 2 4 10 6 1 45 2 4 36 45 Number of Lanes 0 1 0 0 1 0 0 1 0 0 1 0 Approach EB WB NB SB Opposing Approach WB EB SB NB Opposing Lanes 1 1 1 1 Conflicting Approach Left SB NB EB WB Conflicting Lanes Left 1 1 1 1 Conflicting Approach Right NB SB WB EB Conflicting Lanes Right 1 1 1 1 HCM Control Delay, s/veh 7.8 7.3 7.4 7.2 HCM LOS Α Α Α Α Lane NBLn1 EBLn1 WBLn1 SBLn1 Vol Left, % 2% 73% 22% 5% Vol Thru, % 93% 24% 50% 42% Vol Right, % 5% 4% 28% 53% Sign Control Stop Stop Stop Stop Traffic Vol by Lane 43 55 18 76 LT Vol 1 40 4 4 Through Vol 40 13 9 32 RT Vol 2 2 5 40 Lane Flow Rate 48 62 20 85 Geometry Grp 1 1 1 1 Degree of Util (X) 0.055 0.075 0.023 0.09 Departure Headway (Hd) 4.119 4.356 4.091 3.808 Convergence, Y/N Yes Yes Yes Yes Cap 862 817 866 932 Service Time 2.181 2.411 2.16 1.867 HCM Lane V/C Ratio 0.056 0.076 0.023 0.091 HCM Control Delay, s/veh 7.4 7.8 7.3 7.2 HCM Lane LOS А А А Α HCM 95th-tile Q 0.2 0.2 0.1 0.3
HCM 7th Signalized Intersection Summary 7: Forrest St/Fraser St & Norcross St Existing 2025 Conditions - PM Peak Hour ᄼ → • • • • 4 † - - ţ 1 Movement EBL EBT EBR WBL WBT WBR NBL NBT NBR SBL SBT SBR Lane Configurations ની 7 4 4 4 Traffic Volume (veh/h) 6 311 12 28 425 72 12 61 39 109 43 6 Future Volume (veh/h) 6 311 12 28 425 72 12 61 39 109 43 6 Initial Q (Qb), veh 0 0 0 0 0 0 0 0 0 0 0 0 Lane Width Adj. 1.00 1.00 1.00 1.00 1.00 1.00 1.00 1.00 1.00 1.00 1.00 1.00 Ped-Bike Adj(ApbT) 0.99 0.98 0.99 0.98 0.99 0.99 0.99 0.99 Parking Bus, Adj 1.00 1.00 1.00 1.00 1.00 1.00 1.00 1.00 1.00 1.00 1.00 1.00 Work Zone On Approac ch No No No No Adj Sat Flow, veh/h/ln 1648 1856 1870 1870 1870 1870 1870 1781 1870 1870 1870 1870 Adj Flow Rate, veh/h 6 331 13 30 452 77 13 65 41 116 46 6 Peak Hour Factor 0.94 0.94 0.94 0.94 0.94 0.94 0.94 0.94 0.94 0.94 0.94 0.94 Percent Heavy Veh, % 17 3 2 2 2 2 2 8 2 2 2 2 Cap, veh/h 68 704 592 86 569 94 105 403 230 496 182 21 Arrive On Green 0.38 0.38 0.38 0.38 0.38 0.38 0.41 0.41 0.41 0.41 0.41 0.41 Sat Flow, veh/h 8 1839 1546 47 1487 245 83 990 564 953 448 52 Grp Volume(v), veh/h 337 0 13 559 0 0 119 0 0 168 0 0 Grp Sat Flow(s), veh/h/l 0 1546 1780 0 0 1638 0 0 1453 0 0 Q Serve(qs), s 0.0 0.0 0.3 5.1 0.0 0.0 0.0 0.0 0.0 1.1 0.0 0.0 Cycle Q Clear(qc), s 7.7 0.0 0.3 15.7 0.0 0.0 2.6 0.0 0.0 3.7 0.0 0.0 Prop In Lane 0.02 1.00 0.05 0.14 0.11 0.34 0.69 0.04 Lane Grp Cap(c), veh/h 0 592 749 0 0 738 0 0 700 0 0 V/C Ratio(X) 0.44 0.00 0.02 0.75 0.00 0.00 0.16 0.00 0.00 0.24 0.00 0.00 Avail Cap(ca), veh/h 900 0 700 872 0 0 738 0 0 700 0 0 HCM Platoon Ratio 1.00 1.00 1.00 1.00 1.00 1.00 1.00 1.00 1.00 1.00 1.00 1.00 Upstream Filter(I) 1.00 0.00 1.00 1.00 0.00 0.00 1.00 0.00 0.00 1.00 0.00 0.00 Uniform Delay (d), s/vel h 13.0 0.0 10.8 15.5 0.0 0.0 10.6 0.0 0.0 10.9 0.0 0.0 Incr Delay (d2), s/veh 0.5 0.0 0.0 3.2 0.0 0.0 0.5 0.0 0.0 0.8 0.0 0.0 Initial Q Delay(d3), s/ve h 0.0 0.0 0.0 0.0 0.0 0.0 0.0 0.0 0.0 0.0 0.0 0.0 %ile BackOfQ(50%),ve h/ln2.8 0.0 0.1 5.9 0.0 0.0 0.9 0.0 0.0 1.4 0.0 0.0 Unsig. Movement Delay y, s/veh LnGrp Delay(d), s/veh 13.5 0.0 10.8 18.7 0.0 0.0 11.1 0.0 0.0 11.7 0.0 0.0 LnGrp LOS В В В В В Approach Vol, veh/h 350 559 119 168 Approach Delay, s/veh 13.4 18.7 11.1 11.7 Approach LOS В В В В Timer - Assigned Phs 2 4 6 8 Phs Duration (G+Y+Rc) 29.0 27.1 29.0 27.1 Change Period (Y+Rc), 6.2 5.6 6.2 5.6 Max Green Setting (Gm 22.8 25.4 22.8 25.4 Max Q Clear Time (gc 4.6 9.7 5.7 17.7 Green Ext Time (pc), S 1.0 2.1 1.5 2.5 Intersection Summary HCM 7th Control Delay , s/veh 15.4 HCM 7th LOS В Notes User approved pedestri ian inte rval to b e less than ph ase ma x greer ٦. Synchro 12 Report 6/16/2025 Kimley-Horn Page 7
Intersection Int Delay, s/veh 2.4 ГОТ EDD WDI WDT W/DD NIDI NDT NDD CDI CDT CDD Movement EBL EBT EBR WBL WBT WBR NBL NBT NBR SBL SBT SBR Lane Configurations 2 40 0 1/ 4 ^ 22 4 1/ 0 4 2 Traffic Vol, veh/h 2 49 8 16 99 0 22 0 16 0 0 3 Future Vol, veh/h 2 49 8 16 99 0 22 0 16 0 0 3 Conflicting Peds, #/hr 4 0 4 4 0 4 0 0 2 2 0 0 Sign Control Free Free Free Free Free Free Stop Stop Stop Stop Stop Stop RT Channelized - - None - - None - - None - - None Storage Length - - - - - - - - - - - - Veh in Median Storage 2,# - 0 - - 0 - - 0 - - 0 - Grade, % - 0 - - 0 - - 0 - - 0 - Peak Hour Factor 94 94 94 94 94 94 94 94 94 94 94 94 Heavy Vehicles, % 2 2 2 2 2 2 2 2 2 2 2 2 Mvmt Flow 2 52 9 17 105 0 23 0 17 0 0 3 Major/Minor I Major1 Major2 ı Minor1 1 Minor2 Conflicting Flow All 109 0 0 65 0 0 204 208 62 202 212 109 Stage 1 - - - - - - 65 65 - 143 143 - Stage 2 139 143 58 69 Critical Hdwy 4.12 - 4.12 7.12 6.52 6.22 7.12 6.52 6.22 Critical Hdwy Stg 1 - 1.12 7.12 6.12 5.52 - 0.22 6.12 5.52 0.22 Critical Hdwy Stg 2 6.12 5.52 - 6.12 5.52 Follow-up Hdwy 2.218 2.218 3.518 4.018 3.318 3.318 Pot Cap-1 Maneuver 1481 1538 - 754 689 1002 757 685 944 Stage 1 1401 1000 - 946 841 1002 859 778 744 Stage 2 - - - - - - 864 778 - 953 838 - Platoon blocked, % - - - - 004 110 700 030 Mov Cap-1 Maneuver 1475 - - 1532 - - 739 675 997 730 671 941 Mov Cap-1 Maneuver 1473 - - 1002 - - 739 675 730 671 941 • - - - - - 941 837 - 846 766 Stage 1 - - - - 851 766 - 934 833 - Stage 2 - - - - - - 001 /00 - 934 033 - Approach EB WB NB SB HCM Control Delay, s/ v 0.25 1.03 9.57 8.84 HCM LOS Α Α Minor Lane/Major Mvm nt NBLn1 EBL EBT EBR WBL WBT WBR SBLn1 Capacity (veh/h) 829 59 - LDIK 250 - 11010 941 HCM Lane V/C Ratio 0.049 - _ 0.011 - 0.003 HCM Control Delay (s/ (voh) 9.6 7.4 0 - 7.4 0 8.8 HCM Lane LOS veri) 9.0 A 7.4 A A 7.4 A A - 0.0 A ١ - - HCM 95th %tile Q(veh) ) 0.2 0 - - 0 - - 0
HCM Signalized Intersection Capacity Analysis 1: GA-9/Canton St & Magnolia St/GA-9 Atlanta St No Build 2025 Conditions - AM Peak Hour • $\rightarrow$ 1 ← • 1 Ť 1 - ţ 4 Movement EBL EBT EBR WBL WBT WBR NBL NBT NBR SBL SBT SBR Lane Configurations 4 † 7 44 f) ħ 7 ^ 7 Traffic Volume (vph) 51 415 107 870 237 0 33 224 547 0 355 35 Future Volume (vph) 51 415 107 870 237 0 33 224 547 0 355 35 Ideal Flow (vphpl) 1900 1900 1900 1900 1900 1900 1900 1900 1900 1900 1900 1900 Total Lost time (s) 6.3 6.3 6.7 6.7 6.3 6.2 6.7 6.2 6.2 Lane Util. Factor 0.95 1.00 0.97 1.00 1.00 0.95 0.95 0.95 1.00 Frpb, ped/bikes 1.00 0.99 1.00 1.00 1.00 1.00 1.00 1.00 0.98 Flpb, ped/bikes 1.00 1.00 1.00 1.00 1.00 1.00 1.00 1.00 1.00 Frt 1.00 0.85 1.00 1.00 1.00 0.93 0.85 1.00 0.85 Flt Protected 0.99 1.00 0.95 1.00 0.95 1.00 1.00 1.00 1.00 Satd. Flow (prot) 3511 1562 3367 1827 1655 1616 1504 3471 1488 Flt Permitted 0.87 1.00 0.95 1.00 0.39 1.00 1.00 1.00 1.00 Satd. Flow (perm) 3067 1562 3367 1827 671 1616 1504 3471 1488 Peak-hour factor, PHF 0.96 0.96 0.96 0.96 0.96 0.96 0.96 0.96 0.96 0.96 0.96 0.96 Adj. Flow (vph) 53 432 111 906 247 0 34 233 570 0 370 36 RTOR Reduction (vph) 0 0 89 0 0 0 0 18 22 0 0 29 Lane Group Flow (vph) 0 485 22 906 247 0 34 403 360 0 370 7 Confl. Peds. (#/hr) 2 1 1 2 1 1 Heavy Vehicles (%) 4% 2% 2% 4% 4% 2% 9% 6% 2% 2% 4% 6% Turn Type Perm NA Perm Split NA pm+pt NA pt+ov NA Perm Protected Phases 4 3 3 1 6 3 6 2 Permitted Phases 4 4 6 2 Actuated Green, G (s) 30.8 30.8 62.9 62.9 47.1 47.1 116.2 28.9 28.9 Effective Green, g (s) 30.8 30.8 62.9 62.9 47.1 47.1 110.0 28.9 28.9 Actuated g/C Ratio 0.19 0.19 0.39 0.39 0.29 0.29 0.69 0.18 0.18 Clearance Time (s) 6.3 6.3 6.7 6.7 6.3 6.2 6.2 6.2 Vehicle Extension (s) 4.0 4.0 6.0 6.0 3.0 5.0 5.0 5.0 Lane Grp Cap (vph) 590 300 1323 718 270 475 1034 626 268 v/s Ratio Prot c0.27 0.14 0.01 c0.25 0.24 0.11 v/s Ratio Perm c0.16 0.01 0.03 0.00 v/c Ratio 0.82 0.07 0.68 0.34 0.13 0.85 0.35 0.59 0.02 Uniform Delay, d1 62.0 52.9 40.3 34.1 48.8 53.1 10.3 60.1 53.9 Progression Factor 1.00 1.00 1.00 1.00 1.53 1.35 0.51 1.00 1.00 Incremental Delay, d2 9.4 0.1 2.9 1.3 0.2 14.1 0.4 2.3 0.1 Delay (s) 71.4 53.1 43.2 35.4 75.0 86.0 5.6 62.4 54.0 Level of Service Е D D D Е F Α Ε D Approach Delay (s/veh) 68.0 41.5 48.9 61.6 Approach LOS Е D D Е Intersection Summary Intersection Summary HCM 2000 Control Delay (s/veh) 51.6 H CM 2000 Level of Service D HCM 2000 Volume to Capacity ratio Actuated Cycle Length (s) 160.0 Sı um of lost time (s) 25.5 Intersection Capacity Utilizat tion 80.6% IC U Level of Service , D Analysis Period (min) 15 c Critical Lane Group
Intersection Int Delay, s/veh 3.1 Movement EBL EBT EBR WBL WBT WBR NBL NBT NBR SBL SBT SBR Lane Configurations 4 र्स 7 † 1> 4 % Traffic Vol, veh/h 16 14 68 3 3 12 2 816 42 18 1328 23 Future Vol, veh/h 16 14 68 3 3 12 2 816 42 18 1328 23 Conflicting Peds, #/hr 10 0 0 0 0 10 6 0 0 0 0 6 Sign Control Stop Stop Stop Stop Stop Stop Free Free Free Free Free Free RT Channelized - - None - - Yield - - None - - None Storage Length - - - 77 - 0 115 - - 100 - - Veh in Median Storage e,# - 0 - - 0 - - 0 - - 0 - Grade, % - 0 - - 0 - - 0 - - 0 - Peak Hour Factor 93 93 93 93 93 93 93 93 93 93 93 93 Heavy Vehicles, % 2 8 2 2 2 2 2 3 2 6 4 2 Mvmt Flow 17 15 73 3 3 13 2 877 45 19 1428 25 Major/Minor Minor2 ľ Minor1 Major1 N Major2 Conflicting Flow All 1940 2412 732 1665 2402 471 1459 0 0 923 0 0 Stage 1 1485 1485 732 904 904 4/1 1437 - 923 - - Stage 2 455 927 760 1497 Critical Hdwy 7.54 6.66 6.94 7.54 6.54 6.94 4.14 - 4.22 Critical Hdwy Stg 1 6.54 5.66 - 6.54 5.54 0.74 7.22 Critical Hdwy Stg 2 6.54 5.66 6.54 5.54 - - Follow-up Hdwy 3.52 4.08 3.32 3.52 4.02 3.32 2.22 2.26 Pot Cap-1 Maneuver 132 37 713 336 40 858 609 912 Stage 1 261 281 - 505 499 - - Stage 2 809 473 - 673 284 - - - - - - Platoon blocked, % 1 1 0 1 1 0 0 - - 0 _ - Mov Cap-1 Maneuver 114 36 709 171 39 850 606 - - 912 - - Mov Cap-2 Maneuver 114 36 - 171 39 - - - - - - - Stage 1 254 273 - 503 497 - - - - - - - Stage 2 781 471 - 558 277 - - - - - - - Annroach EB WB NB SB Approach 28.83 0.03 0.12 HCM Control Delay, s/ V00.47 F 28.83 D 0.03 0.12 HCM LOS Г D Minor Lane/Major Mvm nt NBL NBT NBR NBLn1\ SBL SBT SBR Capacity (veh/h) 606 - - 156 64 850 912 - - HCM Lane V/C Ratio 0.004 - - 0.101 0.021 - - HCM Control Delay (s/ veh) 11 - - 66.5 67.9 9.3 9 - - HCM Lane LOS В - - F F Α Α - - HCM 95th %tile Q(veh) ) 0 - - 3.9 0.3 0 0.1 - - Notes ~: Volume exceeds car nacity \$. Do elay exc pads 3 NΛs +: Com nutation Not D efined *· ( \Lambda ) maiory oluma ir n platoon . Volume exceeds ca pacity ψ. DC hay cat ccus s 003 i. Cuili patation ו ואטנ ט Chileu . 📶 major v Julie II i piatouri
HCM 7th Signalized Intersection Summary 3: GA-9 Atlanta St/GA-9 & Private Dwy/Oak St No Build 2025 Conditions - AM Peak Hour ٠ → • • ← • 1 † ~ / ţ 4 Movement EBL EBT EBR WBL WBT WBR NBL NBT NBR SBL SBT SBR Lane Configurations 43 ĵ, 4 Þ 41∱ 7 Traffic Volume (veh/h) 4 1 0 51 7 35 0 798 33 17 1309 41 Future Volume (veh/h) 4 1 0 51 7 35 0 798 33 17 1309 41 Initial Q (Qb), veh 0 0 0 0 0 0 0 0 0 0 0 0 Lane Width Adj. 1.00 1.00 1.00 1.00 1.00 1.00 1.00 1.00 1.00 1.00 1.00 1.00 Ped-Bike Adj(ApbT) 0.99 1.00 0.99 0.99 1.00 1.00 1.00 1.00 Parking Bus, Adj 1.00 1.00 1.00 1.00 1.00 1.00 1.00 1.00 1.00 1.00 1.00 1.00 Work Zone On Approach No No No No Adj Sat Flow, veh/h/ln 1870 1870 1870 1841 1870 1856 1870 1856 1811 1826 1856 1870 Adj Flow Rate, veh/h 4 1 0 55 8 38 0 858 35 18 1408 44 Peak Hour Factor 0.93 0.93 0.93 0.93 0.93 0.93 0.93 0.93 0.93 0.93 0.93 0.93 Percent Heavy Veh, % 2 2 2 4 2 3 2 3 6 5 3 2 Cap, veh/h 77 15 0 136 17 80 0 2989 122 43 2936 1371 Arrive On Green 0.06 0.06 0.00 0.06 0.06 0.06 0.00 1.00 1.00 1.00 1.00 1.00 Sat Flow, veh/h 615 252 0 1383 281 1334 0 3545 141 23 3391 1583 Grp Volume(v), veh/h 5 0 0 55 0 46 0 438 455 758 668 44 Grp Sat Flow(s),veh/h/ln 867 0 0 1383 0 1614 0 1763 1830 1810 1604 1583 Q Serve(gs), s 0.0 0.0 0.0 8.0 0.0 4.4 0.0 0.0 0.0 0.0 0.0 0.0 Cycle Q Clear(gc), s 4.4 0.0 0.0 5.2 0.0 4.4 0.0 0.0 0.0 0.0 0.0 0.0 Prop In Lane 0.80 0.00 1.00 0.83 0.00 0.08 0.02 1.00 Lane Grp Cap(c), veh/h 92 0 0 136 0 96 0 1526 1585 1590 1389 1371 V/C Ratio(X) 0.05 0.00 0.00 0.40 0.00 0.48 0.00 0.29 0.29 0.48 0.48 0.03 Avail Cap(ca), veh/h 311 0 0 348 0 343 0 1526 1585 1590 1389 1371 HCM Platoon Ratio 1.00 1.00 1.00 1.00 1.00 1.00 2.00 2.00 2.00 2.00 2.00 2.00 Upstream Filter(I) 1.00 0.00 0.00 1.00 0.00 1.00 0.00 0.82 0.82 1.00 1.00 1.00 Uniform Delay (d), s/veh 71.0 0.0 0.0 73.1 0.0 72.8 0.0 0.0 0.0 0.0 0.0 0.0 Incr Delay (d2), s/veh 0.4 0.0 0.0 3.3 0.0 6.2 0.0 0.4 0.4 1.0 1.2 0.0 Initial Q Delay(d3), s/veh 0.0 0.0 0.0 0.0 0.0 0.0 0.0 0.0 0.0 0.0 0.5 0.0 0.5 0.0 %ile BackOfQ(50%),veh/ln Unsig. Movement Delay, s/veh 0.0 0.0 2.3 0.0 2.0 0.0 0.2 0.2 0.5 0.5 0.0 LnGrp Delay(d), s/veh 71.4 0.0 0.0 76.4 0.0 79.0 0.0 0.4 0.4 1.0 1.2 0.0 LnGrp LOS 71.4 E 0.0 0.0 70.4 E 0.0 79.0 E 0.0 0.4 A 0.4 A 1.0 A 1.2 A 0.0 A L 5 L 101 L 893 A H 1470 A Approach Vol, veh/h Approach Delay, s/veh 71.4 77.6 0.4 1470 Approach LOS 71.4 E 77.0 E Арргоаст 103 С Α Α Timer - Assigned Phs 2 4 6 8 Phs Duration (G+Y+Rc), s 144.4 15.6 144.4 15.6 Change Period (Y+Rc), s 5.9 6.0 5.9 6.0 Max Green Setting (Gmax), s 1 .1E+02 34.0 1 .1E+02 34.0 Max Q Clear Time (gc+I1), s 2.0 7.2 2.0 6.4 Green Ext Time (pc), s 60.3 0.7 22.7 0.0 Intersection Summary HCM 7th Control Delay, s/veh 4.1 HCM 7th LOS Α Notes HCM 7th computational engir ne requir es equal clearance times for the phas ses crossi ng the ba rrier. Synchro 12 Report 6/16/2025 Kimley-Horn Page 3
HCM 7th Signalized Intersection Summary 4: GA-9/GA-9 Atlanta St & Oxbo Rd No Build 2025 Conditions - AM Peak Hour ٠ → • • ← • 1 † 1 \ ļ 1 Movement EBL EBT EBR WBL WBT WBR NBL NBT NBR SBL SBT SBR Lane Configurations f) t) ΦÞ ΦÞ Traffic Volume (veh/h) 27 117 41 211 108 22 12 770 288 63 1286 10 Future Volume (veh/h) 27 117 41 211 108 22 12 770 288 63 1286 10 nitial Q (Qb), veh 0 0 0 0 0 0 0 0 0 0 0 0 ane Width Adj. 1.00 1.00 1.00 1.00 1.00 1.00 1.00 1.00 1.00 1.00 1.00 1.00 Ped-Bike Adj(ApbT) 1.00 0.99 1.00 1.00 1.00 1.00 1.00 1.00 Parking Bus, Adj 1.00 1.00 1.00 1.00 1.00 1.00 1.00 1.00 1.00 1.00 1.00 1.00 Nork Zone On Approac No No No No Adj Sat Flow, veh/h/ln 1870 1870 1870 1870 1841 1870 1870 1856 1870 1856 1856 1604 Adj Flow Rate, veh/h 28 121 42 218 111 23 12 794 297 65 1326 10 Peak Hour Factor 0.97 0.97 0.97 0.97 0.97 0.97 0.97 0.97 0.97 0.97 0.97 0.97 Percent Heavy Veh, % 2 2 2 2 4 2 2 3 2 3 3 20 Cap, veh/h 219 149 52 250 285 59 309 1503 562 302 2203 17 Arrive On Green 0.02 0.11 0.11 0.10 0.19 0.19 0.01 0.60 0.60 0.05 1.00 1.00 Sat Flow, veh/h 1781 1325 460 1781 1478 306 1781 2510 938 1767 3586 27 Grp Volume(v), veh/h 28 0 163 218 0 134 12 557 534 65 652 684 Grp Sat Flow(s), veh/h/li 0 1785 1781 0 1784 1781 1763 1686 1767 1763 1851 31p 3at Flow(s),veri/11/11 2 2.2 0.0 14.3 15.9 0.0 10.5 0.4 29.7 29.8 2.3 0.0 0.0 Cycle Q Clear(gc), s 2.2 0.0 14.3 15.9 0.0 10.5 0.4 29.7 29.8 2.3 0.0 0.0 Prop In Lane 1.00 0.0 0.26 1.00 0.0 0.17 1.00 29.1 0.56 1.00 0.0 0.01 • 0 200 250 0 344 309 1055 1009 302 1083 1137 ane Grp Cap(c), veh/h 0.00 0.87 0.00 0.39 0.04 0.53 0.53 0.21 0.60 0.60 //C Ratio(X) 0.13 0.81 1055 1137 Avail Cap(ca), veh/h 362 1.00 311 250 1.00 344 390 1009 411 1083 HCM Platoon Ratio 1.00 1.00 1.00 1.00 1.00 1.00 1.00 1.00 1.00 2.00 2.00 2.00 Jpstream Filter(I) 1.00 0.00 1.00 1.00 0.00 1.00 1.00 1.00 1.00 0.86 0.86 0.86 Jniform Delay (d), s/vel 0.0 69.4 57.1 0.0 56.4 12.3 18.8 18.9 14.5 0.0 0.0 ncr Delay (d2), s/veh 0.3 0.0 10.3 26.9 0.0 0.9 0.1 1.9 2.0 0.3 2.1 2.0 nitial Q Delay(d3), s/ve 0.0 0.0 0.0 0.0 0.0 0.0 0.0 0.0 0.0 0.0 0.0 %ile BackOfQ(50%),vel 0.0 7.2 3.1 0.0 4.9 0.2 12.6 12.1 0.9 0.6 0.6 Jnsig. Movement Delay 70.7 040 0.0 F7.0 10.4 20.7 20.0 1/10 2.1 2.0 nGrp Delay(d), s/veh 61.7 0.0 79.7 84.0 0.0 57.2 12.4 20.7 20.8 14.8 2.1 2.0 nGrp LOS E 404 E F 050 E В C С В A 1401 A Approach Vol, veh/h 191 352 1103 1401 Approach Delay, s/veh 77.0 73.8 20.7 2.7 Approach LOS E E С Α imer - Assigned Phs 1 2 3 4 5 6 7 8 Phs Duration (G+Y+Rc) 104.3 10.1 37.9 10.2 101.8 23.0 25.1 Change Period (Y+Rc), s 6.0 6.0 7.1 7.1 6.0 6.0 7.1 7.1 Max Green Setting (Gm nax 9 ,. 0 81.0 15.9 27.9 14.0 76.0 15.9 27.9 Max Q Clear Time (gc +112),4\$ 2.0 4.2 12.5 4.3 31.8 17.9 16.3 Green Ext Time (pc), s 43.3 0.0 0.7 0.1 24.1 0.0 8.0 Intersection Summary HCM 7th Control Delay , s/veh 22.1 HCM 7th LOS С Notes User approved pedestri an inte rval to b e less than ph ase ma ax greer ١. Synchro 12 Report 6/16/2025 Kimley-Horn Page 4
Intersection Intersection Int Delay, s/veh 5.6 5.6 Movement EBL EBT EBR WBL WBT WBR NBL NBT NBR SBL SBT SBR SBT L SBL NBR ВТ N NBL WBR WBT WBL EBR EBT EBL Movement Lane Configurations 1 1 4 4 4 4 44 1. * Lane Configurations Traffic Vol, veh/h 47 14 7 16 12 8 6 6 3 0 4 9 0 0 3 6 8 16 7 Future Vol, veh/h 47 14 7 16 12 8 6 6 3 0 4 9 4 · · Conflicting Peds, #/hr 0 0 0 0 0 0 0 3 3 0 0 0 Stop Stop р Stop Stop top S Stop Free Free Free Free Free Free None • • • • - None - - Storage Length 130 - - - - - - - - - - - - 130 Storage Length Veh in Median Storage, # - 0 0 0 - 0 - - - 0 - - 0 - - 0 Grade, % - 0 0 0 - - - - - 0 - - 0 Peak Hour Factor 76 76 76 76 76 76 76 76 76 76 76 76 6 76 76 76 76 76 76 76 76 76 Heavy Vehicles, % 2 15 2 2 2 2 2 33 2 2 2 Mvmt Flow 62 18 9 21 16 11 8 8 4 0 5 12 , Major/Minor Major1 Major2 Minor1 Minor2 2 Minor2 Ŋ Vinor1 Najor2 1 Major1 Major/Minor N Conflicting Flow All 26 0 0 28 0 0 207 215 26 212 214 21 214 215 7 0 0 Stage 1 147 147 - 63 63 - Stage 2 61 68 - 149 151 - - - - ū J 6.22 6.53 6 - - 4.12 - 4.12 Critical Hdwy Stg 1 6.12 5.52 - 6.12 5.52 - - - - Critical Hdwy Stg 2 6.12 5.52 - 6.12 5.52 - - - - - - - J 5 3.318 3.597 - 2.218 - 2.218 ı y 1056 - Stage 1 856 776 - 948 842 - - - - - Stage 2 951 838 - 854 772 - - - - Platoon blocked, % • -001 , , , - - · 1056 648 3 693 964 547 ŧ 698 - 1586 - - 1588 · Mov Cap-2 Maneuver 698 647 - 693 648 - - - - Stage 1 823 745 - 935 831 - - - - - - - Stage 2 922 827 - 806 742 - - - ū 7.22 52.7 666 7.12 - 200 - == - 1g 5 - Approach EB WB NB SB В SB NB WB EB Approach HCM Control Delay, s/v 5.09 3.24 10.18 9.15 HCM LOS B A • Minor Lane/Major Mvmt NBLn1 EBL EBT EBR WBL WBT WBR SBLn1 SBLn1 BRS W WBT WBL EBR EBT EBL IBLn1 t ſ Minor Lane/Major Mvm Capacity (veh/h) 715 1588 741 885 - - HCM Lane V/C Ratio 0.028 0.039 0.013 0.019 - - HCM Control Delay (s/veh) 10.2 7.4 7.3 0 - 9.1 /eh) J ( ) . 511) J , HCM Lane LOS B A A A - A А - А А - - Α В HCIVI Lane LUS
Intersection Intersection Delay, s/veh 7.2 Intersection LOS А Movement EBL EBT EBR WBL WBT WBR NBL NBT NBR SBU SBL SBT Lane Configurations 4 4 4 4 Traffic Vol, veh/h 10 4 0 2 12 0 1 21 0 1 1 36 Future Vol, veh/h 10 4 0 2 12 0 1 21 0 1 1 36 Peak Hour Factor 0.90 0.90 0.90 0.90 0.90 0.90 0.90 0.90 0.90 0.90 0.90 0.90 Heavy Vehicles, % 11 25 2 2 2 2 2 2 2 2 2 2 Mvmt Flow 11 4 0 2 13 0 1 23 0 1 1 40 Number of Lanes 0 1 0 0 1 0 0 1 0 0 0 1 Approach EB WB NB SB Opposing Approach WB EB SB NB Opposing Lanes 1 1 1 1 Conflicting Approach Left SB NB EB WB Conflicting Lanes Left 1 1 1 1 Conflicting Approach Right NB SB WB EB Conflicting Lanes Right 1 1 1 1 HCM Control Delay, s/veh 7.5 7.3 7.2 7.1 HCM LOS Α Α Α Α Lane NBLn1 EBLn1 WBLn1 SBLn1 Vol Left, % 5% 71% 14% 2% Vol Thru, % 95% 29% 86% 57% Vol Right, % 0% 0% 0% 41% Sign Control Stop Stop Stop Stop Traffic Vol by Lane 22 14 14 64 LT Vol 1 10 2 1 Through Vol 21 4 12 37 RT Vol 0 0 0 26 Lane Flow Rate 24 16 16 71 Geometry Grp 1 1 1 1 Degree of Util (X) 0.028 0.019 0.018 0.074 Departure Headway (Hd) 4.051 4.408 4.14 3.763 Convergence, Y/N Yes Yes Yes Yes Cap 883 810 862 952 Service Time 2.078 2.445 2.178 1.785 HCM Lane V/C Ratio 0.027 0.02 0.019 0.075 HCM Control Delay, s/veh 7.2 7.5 7.3 7.1 HCM Lane LOS А Α Α Α HCM 95th-tile Q 0.1 0.1 0.1 0.2
Intersection Intersection Delay, s/veh Intersection LOS Movement SBR Lane Configurations Traffic Vol, veh/h 26 Future Vol, veh/h 26 Peak Hour Factor 0.90 Heavy Vehicles, % 2 Mvmt Flow 29 Number of Lanes 0 Approach Opposing Approach Opposing Lanes Conflicting Approach Left Conflicting Lanes Left Conflicting Approach Right Conflicting Lanes Right HCM Control Delay, s/veh HCM LOS
HCM 7th Signalized Intersection Summary 7: Forrest St/Fraser St & Norcross St No Build 2025 Conditions - AM Peak Hour ٠ → • • ← • 1 † 1 - ţ 4 Movement EBL EBT EBR WBL WBT WBR NBL NBT NBR SBL SBT SBR Lane Configurations र्स 7 4 4 4 Traffic Volume (veh/h) 3 317 9 20 239 56 2 17 21 81 52 11 Future Volume (veh/h) 3 317 9 20 239 56 2 17 21 81 52 11 Initial Q (Qb), veh 0 0 0 0 0 0 0 0 0 0 0 0 Lane Width Adj. 1.00 1.00 1.00 1.00 1.00 1.00 1.00 1.00 1.00 1.00 1.00 1.00 Ped-Bike Adj(ApbT) 0.99 0.98 0.99 0.98 1.00 1.00 1.00 1.00 Parking Bus, Adj 1.00 1.00 1.00 1.00 1.00 1.00 1.00 1.00 1.00 1.00 1.00 1.00 Work Zone On Approach 1 No No No No Adj Sat Flow, veh/h/ln 1870 1870 1870 1870 1826 1841 1870 1707 1870 1870 1870 1870 Adj Flow Rate, veh/h 4 377 11 24 285 67 2 20 25 96 62 13 0.84 0.84 0.84 0.84 0.84 0.84 0.84 0.84 0.84 0.84 0.84 0.84 Percent Heavy Veh, % 2 2 2 2 5 4 2 13 2 2 2 2 Cap, veh/h 66 580 484 83 404 91 75 338 394 485 296 56 0.31 0.31 0.31 0.31 0.31 0.31 0.48 0.48 0.48 0.48 0.48 0.48 Sat Flow, veh/h 4 1862 1555 46 1296 291 17 708 823 806 620 117 Grp Volume(v), veh/h 381 0 11 376 0 0 47 0 0 171 0 0 Grp Sat Flow(s), veh/h/ln 0 1555 1633 0 0 1548 0 0 1543 0 0 Q Serve(gs), s 0.0 0.0 0.3 1.8 0.0 0.0 0.0 0.0 0.0 1.8 0.0 0.0 Cycle Q Clear(gc), s 9.9 0.0 0.3 11.7 0.0 0.0 0.9 0.0 0.0 3.3 0.0 0.0 0.01 0.0 1.00 0.06 0.0 0.18 0.04 0.0 0.53 0.56 0.0 0.08 Lane Grp Cap(c), veh/h 0 484 577 0 0.10 807 0 0.55 838 0 0.00 0.59 0.00 0.02 0.65 0.00 0.00 0.06 0.00 0.00 0.20 0.00 0.00 Avail Cap(ca), veh/h 942 0.00 732 843 0.00 0.00 807 0.00 0.00 838 0.00 0.00 1.00 1.00 1.00 1.00 1.00 1.00 1.00 1.00 1.00 1.00 1.00 1.00 1.00 0.00 1.00 1.00 0.00 0.00 1.00 0.00 0.00 1.00 0.00 0.00 Uniform Delay (d), s/veh 0.0 13.4 17.0 0.0 0.0 7.9 0.0 0.0 8.5 0.0 0.0 Incr Delay (d2), s/veh 1.0 0.0 0.0 1.5 0.0 0.0 0.1 0.0 0.0 0.6 0.0 0.0 Initial Q Delay(d3), s/veh 0.0 0.0 0.0 0.0 0.0 0.0 0.0 0.0 0.0 0.0 0.0 %ile BackOfQ(50%), veh 0.0 0.1 3.9 0.0 0.0 0.3 0.0 0.0 1.2 0.0 0.0 Unsig. Movement Delay, J. 1 5.7 0.0 0.0 0.0 5.0 5.0 1.2 5.0 5.0 17.7 0.0 13.4 18.5 0.0 0.0 8.0 0.0 0.0 9.0 0.0 0.0 LnGrp LOS В 0.0 В В 0.0 0.0 A 0.0 0.0 Α. 0.0 0.0 Approach Vol, veh/h 392 376 - / \ 47 - / \ 171 Approach Delay, s/veh 17.6 18.5 8.0 9.0 Approach LOS 17.0 B 10.5 B 6.0 A 9.0 A ь A Timer - Assigned Phs 2 4 6 8 Phs Duration (G+Y+Rc), 33.0 23.1 33.0 23.1 Change Period (Y+Rc), S 6.2 5.6 6.2 5.6 Max Green Setting (Gma 26.8 26.4 26.8 26.4 Max Q Clear Time (gc+ 11), S 2.9 11.9 5.3 13.7 Green Ext Time (pc), s 0.3 2.3 1.7 2.2 Intersection Summary HCM 7th Control Delay, s/veh 16.0 HCM 7th LOS В Synchro 12 Report 6/16/2025 Kimley-Horn Page 8
HCM 7th TWSC 10: Bush St/Community Cir & Oak St Intersection Int Delay, s/veh 3.1 Movement EBL EBT EBR WBL WBT WBR NBL NBT NBR SBL SBT SI SBR Lane Configurations 4 4 Traffic Vol, veh/h 0 35 15 28 74 2 18 0 27 0 0 0 Future Vol, veh/h 0 35 15 28 74 2 18 0 27 0 0 0 Conflicting Peds, #/hr 2 0 0 0 0 2 0 0 0 0 0 3 Stop None Storage Length - Veh in Median Storage, # - 0 0 0 - Grade, % - 0 0 0 - Peak Hour Factor 90 90 90 90 90 90 90 90 90 90 90 Heavy Vehicles, % 2 3 2 2 2 2 2 2 2 2 2 2 Mvmt Flow 0 39 17 31 82 2 20 0 30 0 0 0 Major/Minor Major1 Major2 Minor1 Minor2 85 Stage 1 47 47 - 148 148 - Stage 2 144 149 - 39 56 _ 6.22 Critical Hdwy Stg 1 6.12 5.52 - 6.12 5.52 - Critical Hdwy Stg 2 6.12 5.52 - 6.12 5.52 - 3.318 974 Stage 1 966 856 - 855 775 - Stage 2 858 774 - 976 849 - Platoon blocked, % Mov Cap-1 Maneuver 1507 1549 752 684 1022 734 677 9 972 Mov Cap-2 Maneuver 752 684 - 734 677 - Stage 1 966 856 - 835 757 - Stage 2 840 756 - 948 849 - Approach EB WB NB SB HCM Control Delay, s/v 0 1.98 9.27 0 HCM LOS A A Minor Lane/Major Mvmt NBLn1 EBL EBT EBR WBL WBT WBR SBLn1 Capacity (veh/h) 894 1507 - 482 HCM Lane V/C Ratio 0.056 0.02 HCM Control Delay (s/veh) 9.3 0 - 7.4 0 - 0 HCM Lane LOS A A A A - A HCM 95th %tile Q(veh) 0.2 0 0.1
HCM Signalized Intersection Capacity Analysis 1: GA-9/Canton St & Magnolia St/GA-9 Atlanta St Canton St & Magnolia St/GA-9 Atlanta St No Build 2028 Conditions - PM Peak Hour ۶ → • • + • 1 1 ~ - ţ 1 Movement EBL EBT EBR WBL WBT WBR NBL NBT NBR SBL SBT SBR Lane Configurations 41∱ 7 76 Þ * f) 7 ^ 7 Traffic Volume (vph) 83 264 42 755 430 17 148 331 678 0 245 95 Future Volume (vph) 83 264 42 755 430 17 148 331 678 0 245 95 Ideal Flow (vphpl) 1900 1900 1900 1900 1900 1900 1900 1900 1900 1900 1900 1900 Total Lost time (s) 6.3 6.3 6.7 6.7 6.3 6.2 6.7 6.2 6.2 Lane Util. Factor 0.95 1.00 0.97 1.00 1.00 0.95 0.95 0.95 1.00 Frpb, ped/bikes 1.00 1.00 1.00 1.00 1.00 0.99 1.00 1.00 1.00 Flpb, ped/bikes 1.00 1.00 1.00 1.00 1.00 1.00 1.00 1.00 1.00 Frt 1.00 0.85 1.00 0.99 1.00 0.94 0.85 1.00 0.85 Flt Protected 0.99 1.00 0.95 1.00 0.95 1.00 1.00 1.00 1.00 Satd. Flow (prot) 3498 1568 3433 1852 1770 1657 1504 3539 1583 Flt Permitted 0.73 1.00 0.95 1.00 0.47 1.00 1.00 1.00 1.00 Satd. Flow (perm) 2601 1568 3433 1852 878 1657 1504 3539 1583 Peak-hour factor, PHF 0.95 0.95 0.95 0.95 0.95 0.95 0.95 0.95 0.95 0.95 0.95 0.95 Adj. Flow (vph) 87 278 44 795 453 18 156 348 714 0 258 100 RTOR Reduction (vph) 0 0 36 0 1 0 0 12 57 0 0 88 Lane Group Flow (vph) 0 365 8 795 470 0 156 543 450 0 258 12 Confl. Peds. (#/hr) 000 , i ,,, 170 100 0.10 5 5 200 Heavy Vehicles (%) 2% 2% 3% 2% 2% 2% 2% 2% 2% 2% 2% 2% Turn Type Perm NA Perm Split NA 270 pm+pt NA pt+ov 270 NA Perm Protected Phases i Giiii 4 I CIIII 3 J 3 рин тр и 1 6 3 6 2 I CIIII Permitted Phases 4 7 4 J J 6 U 3 0 2 Actuated Green, G (s) 7 28.4 28.4 63.3 63.3 49.1 49.1 118.6 19.5 19.5 Effective Green, g (s) 28.4 28.4 63.3 63.3 49.1 49.1 112.4 19.5 19.5 Actuated g/C Ratio 0.18 0.18 0.40 0.40 0.31 0.31 0.70 0.12 0.12 Clearance Time (s) 6.3 6.3 6.7 6.7 6.3 6.2 0.70 6.2 6.2 Vehicle Extension (s) 4.0 4.0 6.0 6.0 3.0 5.0 5.0 5.0 732 508 105/ 192 Lane Grp Cap (vph) 461 278 1358 399 1056 431 192 v/s Ratio Prot -0.14 0.00 0.23 c0.25 0.06 c0.33 0.30 0.07 0.01 v/s Ratio Perm c0.14 0.00 0.50 0 / 4 0.06 1.07 0.42 0.70 0.01 v/c Ratio 0.79 0.03 0.59 0.64 0.39 1.07 0.43 0.60 0.06 Uniform Delay, d1 63.0 54.4 38.0 39.2 49.1 55.5 10.1 66.5 62.2 Progression Factor 1.00 1.00 1.00 1.00 0.62 0.58 1.30 1.00 1.00 Incremental Delay, d2 9.5 0.1 1.9 4.3 0.6 58.1 0.5 3.4 0.3 Delay (s) 72.5 54.4 39.9 43.5 31.0 90.4 13.7 69.9 62.5 Level of Service E D D D С F В E Е Approach Delay (s/veh) 70.5 41.2 50.9 67.8 Approach LOS E D D Е Intersection Summary HCM 2000 Control Delay (s/ 51.5 Н CM 2000 Level of Service D HCM 2000 Volume to Capac city ratio 0.86 Actuated Cycle Length (s) 160.0 um of lost 25.5 Intersection Capacity Utiliza tion 87.8% IC CU Level of Service 9 E Analysis Period (min) 15 c Critical Lane Group c Critical Lane Group
Intersection Int Delay, s/veh 1.4 Movement EBL EBT EBR WBL WBT WBR NBU NBL NBT NBR SBL SBT SBR Lane Configurations 4 4 7 4 1 † 1> Traffic Vol, veh/h 0 2 18 9 5 34 2 45 1133 18 22 1041 45 Future Vol, veh/h 0 2 18 9 5 34 2 45 1133 18 22 1041 45 Conflicting Peds, #/hr 9 0 0 0 0 9 0 5 0 2 2 0 5 Sign Control Stop Stop Stop Stop Stop Stop Free Free Free Free Free Free Free RT Channelized - ·- None - - Yield - - - None - - None Storage Length - - - 77 - 0 - 115 - - 100 - - Veh in Median Storage e,# - 0 - - 0 - - - 0 - - 0 - Grade, % - 0 - - 0 - - - 0 - - 0 - Peak Hour Factor 97 97 97 97 97 97 97 97 97 97 97 97 97 Heavy Vehicles, % 2 2 2 2 2 2 2 2 2 6 5 2 2 Mvmt Flow 0 2 19 9 5 35 2 46 1168 19 23 1073 46 Major/Minor I Minor2 Minor1 Major1 N /lajor2 Conflicting Flow All 1839 2432 565 1859 2446 604 1120 1125 0 0 1189 0 0 Stage 1 1147 1147 - 1276 1276 - - - - - - - - Stage 2 693 1286 - 583 1170 - - - - - - - - Critical Hdwy 7.54 6.54 6.94 7.54 6.54 6.94 6.44 4.14 - - 4.2 - - Critical Hdwy Stg 1 6.54 5.54 - 6.54 5.54 - - - - - - - - Critical Hdwy Stg 2 6.54 5.54 - 6.54 5.54 - - - - - - - - Follow-up Hdwy 3.52 4.02 3.32 3.52 4.02 3.32 2.52 2.22 - - 2.25 - - Pot Cap-1 Maneuver 79 32 792 75 31 766 563 820 - - 777 - - Stage 1 400 411 - 339 359 - - - - - - - - Stage 2 722 355 - 747 398 - - - - - - - - Platoon blocked, % 0 0 0 0 0 0 0 0 - - 0 - - Mov Cap-1 Maneuver 56 29 788 62 28 758 800 800 - - 775 - - Mov Cap-2 Maneuver 56 29 - 62 28 - - - - - - - - Stage 1 387 397 - 318 337 - - - - - - - - Stage 2 632 333 - 705 384 - - - - - - - - Approach EB WB _ NB SB HCM Control Delay, s/ v23.48 43.8 0.38 0.19 HCM LOS С Е Minor Lane/Major Mvm nt NBL NBT NBR I EBLn1\ VBLn1V VBLn2 SBL SBT SBR Capacity (veh/h) 800 - - 215 43 758 775 - - HCM Lane V/C Ratio 0.061 - - 0.335 0.046 0.029 - - HCM Control Delay (s/ veh) 9.8 - - 23.5 125.9 10 9.8 - - HCM Lane LOS Α - - С F Α Α - - HCM 95th %tile Q(veh) ) 0.2 - - 0.3 1.1 0.1 0.1 - - Notes ~: Volume exceeds cap nacity \$· De lay exc eeds 31 00s +. Com nutation n Not De efined *· ΔII maior v olume in platoo n Volume exceeds ca pacity φ. DE iay exc CCU3 31 003 T. CUIII pulaliul T NOT DE Jilleu . All majurv June iii piatuu 11
HCM 7th Signalized Intersection Summary 3: GA-9 Atlanta St/GA-9 & Private Dwy/Oak St No Build 2028 Conditions - PM Peak Hour ٠ → • • ← • 1 † 1 - ļ 1 Movement EBL EBT EBR WBL WBT WBR NBL NBT NBR SBL SBT SBR Lane Configurations 4 ĵ, 413 414 7 Traffic Volume (veh/h) 2 1 3 72 3 61 0 1119 47 11 1048 9 Future Volume (veh/h) 2 1 3 72 3 61 0 1119 47 11 1048 9 Initial Q (Qb), veh 0 0 0 0 0 0 0 0 0 0 0 0 Lane Width Adj. 1.00 1.00 1.00 1.00 1.00 1.00 1.00 1.00 1.00 1.00 1.00 1.00 Ped-Bike Adj(ApbT) 1.00 1.00 1.00 1.00 1.00 1.00 1.00 1.00 Parking Bus, Adj 1.00 1.00 1.00 1.00 1.00 1.00 1.00 1.00 1.00 1.00 1.00 1.00 Work Zone On Approach No No No No Adj Sat Flow, veh/h/ln 1870 1870 1870 1870 1870 1856 1870 1870 1870 1870 1870 1870 Adj Flow Rate, veh/h 2 1 3 75 3 64 0 1166 49 11 1092 9 Peak Hour Factor 0.96 0.96 0.96 0.96 0.96 0.96 0.96 0.96 0.96 0.96 0.96 0.96 Percent Heavy Veh, % 2 2 2 2 2 3 2 2 2 2 2 2 Cap, veh/h 49 29 48 146 6 118 0 2947 124 35 2907 1344 Arrive On Green 0.08 0.08 0.08 0.08 0.08 0.08 0.00 1.00 1.00 1.00 1.00 1.00 Sat Flow, veh/h 243 376 620 1412 71 1524 0 3568 146 15 3427 1584 Grp Volume(v), veh/h 6 0 0 75 0 67 0 596 619 585 518 9 Grp Sat Flow(s), veh/h/ln 1239 0 0 1412 0 1596 0 1777 1844 1825 1617 1584 Q Serve(gs), s 0.0 0.0 0.0 2.8 0.0 6.5 0.0 0.0 0.0 0.0 0.0 0.0 Cycle Q Clear(gc), s 6.5 0.0 0.0 9.3 0.0 6.5 0.0 0.0 0.0 0.0 0.0 0.0 Prop In Lane 0.33 0.50 1.00 0.96 0.00 0.08 0.02 1.00 Lane Grp Cap(c), veh/h 126 0 0 146 0 124 0 1507 1564 1571 1371 1344 V/C Ratio(X) 0.05 0.00 0.00 0.51 0.00 0.54 0.00 0.40 0.40 0.37 0.38 0.01 Avail Cap(ca), veh/h 428 0 0 425 0 439 0 1507 1564 1571 1371 1344 HCM Platoon Ratio 1.00 1.00 1.00 1.00 1.00 1.00 2.00 2.00 2.00 2.00 2.00 2.00 Upstream Filter(I) 1.00 0.00 0.00 1.00 0.00 1.00 0.00 0.51 0.51 1.00 1.00 1.00 Uniform Delay (d), s/veh 68.4 0.0 0.0 72.5 0.0 71.1 0.0 0.0 0.0 0.0 0.0 0.0 Incr Delay (d2), s/veh 0.3 0.0 0.0 4.7 0.0 6.2 0.0 0.4 0.4 0.7 8.0 0.0 Initial Q Delay(d3), s/veh 0.0 0.0 0.0 0.0 0.0 0.0 0.0 0.0 0.0 0.0 0.0 0.0 %ile BackOfQ(50%),veh/ln 0.2 0.0 0.0 3.3 0.0 2.9 0.0 0.2 0.2 0.3 0.3 0.0 Unsig. Movement Delay, s/veh LnGrp Delay(d), s/veh 68.6 0.0 0.0 77.3 0.0 77.3 0.0 0.4 0.4 0.7 0.8 0.0 LnGrp LOS E Е E Α А А А Α Approach Vol, veh/h 6 142 1215 1112 Approach Delay, s/veh 68.6 77.3 0.4 0.7 Approach LOS Е E Α Α Timer - Assigned Phs 2 4 6 8 Phs Duration (G+Y+Rc), s 141.6 18.4 141.6 18.4 Change Period (Y+Rc), s 5.9 6.0 5.9 6.0 Max Green Setting (Gmax), s 1E+02 44.0 , 1E+02 44.0 Max Q Clear Time (gc+I1), s 2.0 11.3 2.0 8.5 Green Ext Time (pc), s 34.2 1.1 40.5 0.0 Intersection Summary HCM 7th Control Delay, s/veh 5.1 HCM 7th LOS Α Notes HCM 7th computational engin e requir es equal clearance times for the pha ses crossi ng the ba rrier. Synchro 12 Report 6/16/2025 Kimley-Horn Page 3
HCM 7th Signalized Intersection Summary 4: GA-9/GA-9 Atlanta St & Oxbo Rd No Build 2028 Conditions - PM Peak Hour • 2 • - 2 1 , - • 1 T - ¥ 4 Movement EBL EBT EBR WBL WBT WBR NBL NBT NBR SBL SBT SBR Lane Configurations fa fa f) ∱ ∱∍ * Λtβ Traffic Volume (veh/h) 6 109 23 289 212 36 72 1102 361 67 978 77 Future Volume (veh/h) 6 109 23 289 212 36 72 1102 361 67 978 77 Initial Q (Qb), veh 0 0 0 0 0 0 0 0 0 0 0 0 Lane Width Adj. 1.00 1.00 1.00 1.00 1.00 1.00 1.00 1.00 1.00 1.00 1.00 1.00 Ped-Bike Adj(ApbT) 0.97 0.95 0.97 0.97 1.00 0.98 1.00 0.98 Parking Bus, Adj 1.00 1.00 1.00 1.00 1.00 1.00 1.00 1.00 1.00 1.00 1.00 1.00 Work Zone On Approac ch No No No No Adj Sat Flow, veh/h/ln 1870 1826 1870 1870 1870 1870 1870 1870 1870 1870 1870 1870 Adj Flow Rate, veh/h 6 115 24 304 223 38 76 1160 380 71 1029 81 Peak Hour Factor 0.95 0.95 0.95 0.95 0.95 0.95 0.95 0.95 0.95 0.95 0.95 0.95 Percent Heavy Veh, % 2 5 2 2 2 2 2 2 2 2 2 2 Cap, veh/h 187 224 47 321 384 65 237 1458 468 160 1840 145 Arrive On Green 0.01 0.15 0.15 0.10 0.25 0.25 0.03 0.55 0.55 0.01 0.18 0.18 Sat Flow, veh/h 1781 1451 303 1781 1549 264 1781 2633 845 1781 3332 262 Grp Volume(v), veh/h 6 0 139 304 0 261 76 775 765 71 549 561 Grp Sat Flow(s), veh/h/li 0 1754 1781 0 1814 1781 1777 1701 1781 1777 1818 Q Serve(qs), s 0.5 0.0 11.6 15.9 0.0 20.2 3.0 55.2 58.4 2.8 45.0 45.0 Cycle Q Clear(gc), s 0.5 0.0 11.6 15.9 0.0 20.2 3.0 55.2 58.4 2.8 45.0 45.0 Prop In Lane 1.00 0.0 0.17 1.00 0.0 0.15 1.00 55.2 0.50 1.00 45.0 0.14 0 271 321 ٥ 449 237 984 1.00 001 1004 Lane Grp Cap(c), veh/h 0 0 942 981 0.56 V/C Ratio(X) 0.03 0.00 0.51 0.95 0.00 0.58 0.32 0.79 0.81 0.44 0.56 Avail Cap(ca), veh/h 265 1.00 328 321 0 449 338 984 942 209 981 1004 HCM Platoon Ratio 1.00 1.00 1.00 1.00 1.00 1.00 1.00 1.00 1.00 0.33 0.33 0.33 Upstream Filter(I) 1.00 0.00 1.00 1.00 0.00 1.00 1.00 1.00 1.00 0.92 0.92 0.92 Uniform Delay (d), s/vel 0.0 62.2 57.7 0.0 52.9 22.0 28.2 28.9 28.6 47.7 47.7 Incr Delay (d2), s/veh 0.1 0.0 1.8 36.4 0.0 2.1 0.8 6.3 7.6 1.8 2.1 2.1 Initial Q Delay(d3), s/ve 0.0 0.0 0.0 0.0 0.0 0.0 0.0 0.0 0.0 0.0 0.0 %ile BackOfQ(50%),vel 0.0 5.4 8.1 0.0 9.6 1.3 24.7 25.2 1.3 22.2 22.7 Unsig. Movement Delay LnGrp Delay(d), s/veh 56.8 0.0 64.0 94.1 0.0 55.0 22.8 34.6 36.5 30.4 49.8 49.8 LnGrp LOS E E F D С С D С D D Approach Vol, veh/h 145 565 1616 1181 Approach Delay, s/veh 63.7 76.0 34.9 48.6 Approach LOS Е Е С D Timer - Assigned Phs 1 2 3 4 5 6 7 8 Phs Duration (G+Y+Rc) ), \$0.9 94.3 8.0 46.7 10.6 94.6 23.0 31.8 Change Period (Y+Rc), 6.0 7.1 7.1 6.0 6.0 7.1 7.1 Max Green Setting (Gm 74.0 7.9 37.9 9.0 79.0 15.9 29.9 Max Q Clear Time (gc 47.0 2.5 22.2 4.8 60.4 17.9 13.6 Green Ext Time (pc), s 17.7 0.0 1.6 0.0 16.6 0.0 0.8 Intersection Summary HCM 7th Control Delay , s/veh 47.4 HCM 7th LOS D Notes User approved pedestri ian inte rval to b e less than ph ase ma x greer ١. Synchro 12 Report 6/16/2025 Kimley-Horn Page 4
Intersection Int Delay, s/veh 5.2 EDT EDD WDI WDT WDD NDI NDT NDD CDI CDT CDD Movement EBL EBT EBR WBL WBT WBR NBL NBT NBR SBL SBT SBR Lane Configurations 7 4 4 4 4 Traffic Vol, veh/h 6 26 15 20 29 7 10 4 20 14 20 11 Future Vol, veh/h 6 26 15 20 29 7 10 4 20 14 20 11 Conflicting Peds, #/hr 3 0 0 0 0 3 0 0 0 0 0 0 Sign Control Free Free Free Free Free Free Stop Stop Stop Stop Stop Stop RT Channelized - - None - - None - - None - - None Storage Length 130 - - - - - - - - - - - Veh in Median Storage, , # - 0 - - 0 - - 0 - - 0 - Grade, % - 0 - - 0 - - 0 - - 0 - Peak Hour Factor 83 83 83 83 83 83 83 83 83 83 83 83 Heavy Vehicles, % 2 4 2 2 4 2 2 2 5 2 2 2 Mvmt Flow 7 31 18 24 35 8 12 5 24 17 24 13 Major/Minor N /lajor1 - 1 Major2 Minor1 1 Minor2 Conflicting Flow All 46 0 0 49 0 0 150 149 40 139 154 42 Stage 1 - - - - - - 55 55 - 90 90 - Stage 2 95 95 48 64 Critical Hdwy 4.12 4.12 7.12 6.52 6.25 7.12 6.52 6.22 Critical Hdwy Stg 1 7.12 4.12 - 6.12 5.52 0.25 6.12 5.52 0.22 Critical Hdwy Stg 2 6.12 5.52 - 6.12 5.52 2.218 2.218 3.518 4.018 3.345 4.018 3.318 Pot Cap-1 Maneuver 1561 1557 818 742 1022 832 738 1028 Stage 1 1301 _ 1337 - - 957 849 1022 917 820 1020 Stage 2 - - - - - 912 817 - 965 842 - Platoon blocked, % - - - - - - 712 017 - 703 042 Mov Cap-1 Maneuver 1557 - - 1557 - - 765 725 1022 788 720 1026 Mov Cap-2 Maneuver 1007 - - 1007 - - 765 725 1022 788 720 1020 Stage 1 - - - - - - 953 845 - 900 805 - - • • - - - 953 859 801 - 933 838 - Stage 2 - - - - - - 009 0U I - 733 იაბ - A In FD MO ND 0.5 Approach EB WB NB SB HCM Control Delay, s/v 0.93 2.62 9.23 9.83 HCM LOS Α A Minor Lane/Major Mvmt t I NBLn1 EBL EBT EBR WBL WBT WBR SBLn1 Capacity (veh/h) 891 1557 - - 619 - 800 HCM Lane V/C Ratio 0.046 - - 0.015 - - 0.068 HCM Control Delay (s/v /eh) 9.2 7.3 - - 7.3 0 - 9.8 HCM Lane LOS A A - - A A - A HCM 95th %tile Q(veh) 0.1 0 - - 0 - - 0.2
Intersection Intersection Delay, s/veh 7.5 Intersection LOS Α Movement EBL EBT EBR WBL WBT WBR NBL NBT NBR SBL SBT SBR Lane Configurations 4 4 4 ↔ Traffic Vol, veh/h 42 14 2 4 9 5 1 42 2 4 33 42 Future Vol, veh/h 42 14 2 4 9 5 1 42 2 4 33 42 Peak Hour Factor 0.89 0.89 0.89 0.89 0.89 0.89 0.89 0.89 0.89 0.89 0.89 0.89 Heavy Vehicles, % 5 2 2 2 2 2 2 3 2 2 2 2 Mvmt Flow 47 16 2 4 10 6 1 47 2 4 37 47 Number of Lanes 0 1 0 0 1 0 0 1 0 0 1 0 Approach EB WB NB SB Opposing Approach WB EB SB NB Opposing Lanes 1 1 1 1 Conflicting Approach Left SB NB EB WB Conflicting Lanes Left 1 1 1 1 Conflicting Approach Right NB SB WB EB Conflicting Lanes Right 1 1 1 1 HCM Control Delay, s/veh 7.8 7.3 7.5 7.3 HCM LOS Α Α Α Α Lane NBLn1 EBLn1 WBLn1 SBLn1 Vol Left, % 2% 72% 22% 5% Vol Thru, % 93% 24% 50% 42% Vol Right, % 4% 3% 28% 53% Sign Control Stop Stop Stop Stop Traffic Vol by Lane 45 58 18 79 LT Vol 1 42 4 4 Through Vol 42 14 9 33 RT Vol 2 2 5 42 Lane Flow Rate 51 65 20 89 Geometry Grp 1 1 1 1 Degree of Util (X) 0.058 0.079 0.023 0.094 Departure Headway (Hd) 4.128 4.366 4.104 3.812 Convergence, Y/N Yes Yes Yes Yes Cap 860 815 862 930 Service Time 2.193 2.425 2.177 1.874 HCM Lane V/C Ratio 0.059 0.08 0.023 0.096 HCM Control Delay, s/veh 7.5 7.8 7.3 7.3 HCM Lane LOS Α Α Α Α HCM 95th-tile Q 0.2 0.3 0.1 0.3
HCM 7th Signalized Intersection Summary 7: Forrest St/Fraser St & Norcross St No Build 2028 Conditions - PM Peak Hour ۶ → • • ← • 1 † 1 / ţ 1 Movement EBL EBT EBR WBL WBT WBR NBL NBT NBR SBL SBT SBR Lane Configurations ની 7 4 4 4 Traffic Volume (veh/h) 6 324 12 29 442 75 12 63 41 113 45 6 Future Volume (veh/h) 6 324 12 29 442 75 12 63 41 113 45 6 Initial Q (Qb), veh 0 0 0 0 0 0 0 0 0 0 0 0 Lane Width Adj. 1.00 1.00 1.00 1.00 1.00 1.00 1.00 1.00 1.00 1.00 1.00 1.00 Ped-Bike Adj(ApbT) 0.99 0.98 0.99 0.98 0.99 0.99 0.99 0.99 Parking Bus, Adj 1.00 1.00 1.00 1.00 1.00 1.00 1.00 1.00 1.00 1.00 1.00 1.00 Work Zone On Approac No No No No 1648 1856 1870 1870 1870 1870 1870 1781 1870 1870 1870 1870 Adj Flow Rate, veh/h 6 345 13 31 470 80 13 67 44 120 48 6 Peak Hour Factor 0.94 0.94 0.94 0.94 0.94 0.94 0.94 0.94 0.94 0.94 0.94 0.94 Percent Heavy Veh, % 17 3 2 2 2 2 2 8 2 2 2 2 Cap, veh/h 68 716 602 85 579 95 101 394 234 490 182 20 Arrive On Green 0.39 0.39 0.39 0.39 0.39 0.39 0.40 0.40 0.40 0.40 0.40 0.40 Sat Flow, veh/h 7 1839 1546 48 1486 245 78 978 581 951 451 50 Grp Volume(v), veh/h 351 0 13 581 0 0 124 0 0 174 0 0 Grp Sat Flow(s),veh/h/lr 0 1546 1779 0 0 1637 0 0 1452 0 0 Q Serve(gs), s 0.0 0.0 0.3 5.9 0.0 0.0 0.0 0.0 0.0 1.2 0.0 0.0 Cycle Q Clear(gc), s 8.1 0.0 0.3 16.6 0.0 0.0 2.7 0.0 0.0 3.9 0.0 0.0 Prop In Lane 0.02 1.00 0.05 0.14 0.10 0.35 0.69 0.03 ane Grp Cap(c), veh/h 0 602 760 0 0 729 0 0 692 0 0 V/C Ratio(X) 0.45 0.00 0.02 0.76 0.00 0.00 0.17 0.00 0.00 0.25 0.00 0.00 Avail Cap(ca), veh/h 891 0 693 862 0 0 729 0 0 692 0 0 HCM Platoon Ratio 1.00 1.00 1.00 1.00 1.00 1.00 1.00 1.00 1.00 1.00 1.00 1.00 Jpstream Filter(I) 1.00 0.00 1.00 1.00 0.00 0.00 1.00 0.00 0.00 1.00 0.00 0.00 Uniform Delay (d), s/veł า 13.0 0.0 10.7 15.6 0.0 0.0 10.9 0.0 0.0 11.2 0.0 0.0 Incr Delay (d2), s/veh 0.5 0.0 0.0 3.9 0.0 0.0 0.5 0.0 0.0 0.9 0.0 0.0 Initial Q Delay(d3), s/vel h 0.0 0.0 0.0 0.0 0.0 0.0 0.0 0.0 0.0 0.0 0.0 0.0 %ile BackOfQ(50%),vel n/ln2.9 0.0 0.1 6.4 0.0 0.0 1.0 0.0 0.0 1.5 0.0 0.0 Jnsig. Movement Delay , s/veh nGrp Delay(d), s/veh 13.5 0.0 10.7 19.4 0.0 0.0 11.4 0.0 0.0 12.1 0.0 0.0 nGrp LOS В В В В В Approach Vol, veh/h 364 581 124 174 Approach Delay, s/veh 13.4 19.4 11.4 12.1 Approach LOS В В В В Timer - Assigned Phs 2 4 6 8 Phs Duration (G+Y+Rc) , S 29.0 27.7 29.0 27.7 Change Period (Y+Rc), 6.2 5.6 6.2 5.6 Max Green Setting (Gm 22.8 25.4 22.8 25.4 Max Q Clear Time (gc 4.7 10.1 5.9 18.6 Green Ext Time (p_c), s 1.1 2.2 1.6 2.4 Intersection Summary HCM 7th Control Delay, s/veh 15.8 HCM 7th LOS В Notes User approved pedestri an inter rval to b e less than ph ase ma x greer ١. Synchro 12 Report 6/16/2025 Kimley-Horn Page 7
Intersection Int Delay, s/veh 2.5 Movement EBL EBT EBR WBL WBT WBR NBL NBT NBR SBL SBT SBR Lane Configurations 4 4 4 4 Traffic Vol, veh/h 2 51 8 17 103 0 23 0 17 0 0 3 Future Vol, veh/h 2 51 8 17 103 0 23 0 17 0 0 3 Conflicting Peds, #/hr 4 0 4 4 0 4 0 0 2 2 0 0 Sign Control Free Free Free Free Free Free Stop Stop Stop Stop Stop Stop RT Channelized - - None - - None - - None - - None Storage Length - - - - - - - - - - - - Veh in Median Storage, # - 0 - - 0 - - 0 - - 0 - Grade, % - 0 - - 0 - - 0 - - 0 - Peak Hour Factor 94 94 94 94 94 94 94 94 94 94 94 94 Heavy Vehicles, % 2 2 2 2 2 2 2 2 2 2 2 2 Mvmt Flow 2 54 9 18 110 0 24 0 18 0 0 3 Major/Minor Najor1 Majora Minor1 Minor2 Major1 ^ Major2 0 217 221 111 Conflicting Flow All 114 0 0 67 0 0 213 217 65 210 221 114 Stage 1 - - - - - - 67 67 - 150 150 - Stage 2 - - - 4 4 0 - - 146 150 - ( )) 61 71 / 00 Critical Hdwy 4.12 - - 4.12 - - 7.12 6.52 6.22 7.12 6.52 6.22 Critical Hdwy Stg 1 - - - - - - 6.12 5.52 - 6.12 5.52 - Critical Hdwy Stg 2 - - - - - - 6.12 5.52 - 6.12 5.52 - 2.218 - - 2.218 - - 3.518 4.018 3.318 3.518 4.018 3.318 Pot Cap-1 Maneuver 1476 - - 1535 - - 744 681 1000 747 678 939 Stage 1 - - - - - - 944 839 - 853 773 - Stage 2 - - - - - - 857 773 - 951 836 - Platoon blocked, % - - - - , , Mov Cap-1 Maneuver 1470 - - 1529 - - 729 667 994 719 663 936 Mov Cap-2 Maneuver - - - - - - 729 667 - 719 663 - Stage 1 - - - - - - 939 835 - 839 761 - Stage 2 - - - - - - 843 761 - 930 831 - Approach EB WB NB SB HCM Control Delay, s/v 1.05 9.62 8.86 HCM LOS U.Z.T 1.00 7.02 A Α TOW LOO , \ /\ Minor Lane/Major Mvmt t I VBLn1 EBL EBT EBR WBL WBT WBR SBLn1 Capacity (veh/h) 822 57 - - 255 - - ,00 HCM Lane V/C Ratio 0.052 0.001 - - 0.012 - - 0.003 HCM Control Delay (s/v reh) 9.6 7.5 0 - 7.4 0 - 8.9 HCM Lane LOS Α Α Α - Α Α - Α HCM 95th %tile Q(veh) 0.2 0 - - 0 - - 0
HCM Signalized Intersection Capacity Analysis 1: GA-9/Canton St & Magnolia St/GA-9 Atlanta St Build 2025 Conditions - AM Peak Hour ٠ → • • ← • 1 † - - ţ 1 Movement EBL EBT EBR WBL WBT WBR NBL NBT NBR SBL SBT SBR Lane Configurations 41₽ 7 76 Þ * f) 7 ^ 7 Traffic Volume (vph) 51 415 129 892 237 0 49 232 564 0 364 35 Future Volume (vph) 51 415 129 892 237 0 49 232 564 0 364 35 Ideal Flow (vphpl) 1900 1900 1900 1900 1900 1900 1900 1900 1900 1900 1900 1900 Total Lost time (s) 6.3 6.3 6.7 6.7 6.3 6.2 6.7 6.2 6.2 Lane Util. Factor 0.95 1.00 0.97 1.00 1.00 0.95 0.95 0.95 1.00 Frpb, ped/bikes 1.00 0.99 1.00 1.00 1.00 1.00 1.00 1.00 0.98 Flpb, ped/bikes 1.00 1.00 1.00 1.00 1.00 1.00 1.00 1.00 1.00 Frt 1.00 0.85 1.00 1.00 1.00 0.93 0.85 1.00 0.85 Flt Protected 0.99 1.00 0.95 1.00 0.95 1.00 1.00 1.00 1.00 Satd. Flow (prot) 3511 1562 3367 1827 1702 1625 1504 3471 1488 Flt Permitted 0.87 1.00 0.95 1.00 0.38 1.00 1.00 1.00 1.00 Satd. Flow (perm) 3067 1562 3367 1827 679 1625 1504 3471 1488 Peak-hour factor, PHF 0.96 0.96 0.96 0.96 0.96 0.96 0.96 0.96 0.96 0.96 0.96 0.96 Adj. Flow (vph) 53 432 134 929 247 0 51 242 588 0 379 36 RTOR Reduction (vph) 0 0 89 0 0 0 0 18 22 0 0 29 Lane Group Flow (vph) 0 485 45 929 247 0 51 418 372 0 379 7 Confl. Peds. (#/hr) 2 1 1 2 1 1 Heavy Vehicles (%) 4% 2% 2% 4% 4% 2% 6% 5% 2% 2% 4% 6% Turn Type Perm NA Perm Split NA pm+pt NA pt+ov NA Perm Protected Phases 4 . 3 3 1 6 3 6 2 Permitted Phases 4 4 6 2 Actuated Green, G (s) 30.8 30.8 62.3 62.3 47.7 47.7 116.2 29.5 29.5 Effective Green, g (s) 30.8 30.8 62.3 62.3 47.7 47.7 110.0 29.5 29.5 Actuated g/C Ratio 0.19 0.19 0.39 0.39 0.30 0.30 0.69 0.18 0.18 Clearance Time (s) 6.3 6.3 6.7 6.7 6.3 6.2 6.2 6.2 Vehicle Extension (s) 4.0 4.0 6.0 6.0 3.0 5.0 5.0 5.0 Lane Grp Cap (vph) 590 300 1311 711 278 484 1034 639 274 v/s Ratio Prot c0.28 0.14 0.01 c0.26 0.25 0.11 v/s Ratio Perm c0.16 0.03 0.04 0.00 v/c Ratio 0.82 0.15 0.71 0.35 0.18 0.86 0.36 0.59 0.02 Uniform Delay, d1 62.0 53.7 41.2 34.5 49.5 53.1 10.4 59.8 53.5 Progression Factor 1.00 1.00 1.00 1.00 1.48 1.40 0.44 1.00 1.00 Incremental Delay, d2 9.4 0.3 3.3 1.3 0.3 15.5 0.4 2.2 0.1 Delay (s) 71.4 54.0 44.5 35.8 73.4 89.7 5.1 62.0 53.5 Level of Service Е D D D Е F А Е D Approach Delay (s/veh) 67.6 42.6 50.9 61.3 Approach LOS Е D D Е Intersection Summary HCM 2000 Control Delay (s s/veh) 52.5 H CM 2000 Level of Service D HCM 2000 Volume to Capa 0.82 Actuated Cycle Length (s) , 160.0 Sı um of lost time (s) 25.5 Intersection Capacity Utiliza ation 82.0% U Level 9 E Analysis Period (min) 15 c Critical Lano Croup c Critical Lane Group Synchro 12 Report 6/16/2025
Intersection Int Delay, s/veh 9 Movement EBL EBT EBR WBL WBT WBR NBL NBT NBR SBL SBT SBR Lane Configurations LDL 4 LDIN VVDL 4 ₩ ₩ INDL † NUN JDL N † JUIN Traffic Vol, veh/h 16 14 71 8 3 47 4 821 70 69 1330 23 Future Vol, veh/h 16 14 71 8 3 47 4 821 70 69 1330 23 Conflicting Peds, #/hr 0 0 0 0 10 6 021 0 0 0 6 Sign Control Stop Stop Stop Stop Stop Stop Free Free Free Free Free Free RT Channelized 310p 310p None Jiop - 310p Yield - - None - - None Storage Length - 77 0 115 - 100 - Veh in Median Storag 0 - 0 - - 0 - 0 - Grade, % 0 0 - 0 - 0 Peak Hour Factor 93 93 93 93 93 93 93 93 93 93 93 93 Heavy Vehicles, % 2 73 2 2 2 2 2 3 2 2 4 2 Mvmt Flow 17 15 76 9 3 51 4 883 75 74 1430 25 IVIVIIIC I IOVV 17 10 70 , J JI т. 003 75 / 7 1730 20 Major/Minor Minor2 Minor1 Major1 N Major2 Conflicting Flow All 2058 2564 733 1800 2538 489 1461 0 0 958 0 0 Stage 1 1597 1597 - 929 929 - - - - - - - Stage 2 462 967 - 871 1609 - - - - - - - Critical Hdwy 7.54 6.64 6.94 7.54 6.54 6.94 4.14 - - 4.14 - - Critical Hdwy Stg 1 6.54 5.64 - 6.54 5.54 - - - - - - - Critical Hdwy Stg 2 6.54 5.64 - 6.54 5.54 - - - - - - - Follow-up Hdwy 3.52 4.07 3.32 3.52 4.02 3.32 2.22 - - 2.22 - - Pot Cap-1 Maneuver 87 23 713 212 27 858 608 - - 899 - - Stage 1 206 235 - 484 483 - - - - - - - Stage 2 809 451 - 673 237 - - - - - - - Platoon blocked, % 1 1 0 1 1 0 0 - - 0 - - Mov Cap-1 Maneuver 21 709 53 24 850 604 - - 899 - - Mov Cap-2 Maneuver 21 - 53 24 - - - - - - - Stage 1 188 214 - 481 480 - - - - - - - Stage 2 743 447 - 512 216 - - - - - - - Approach EB WB NB SB HCM Control Delay, s 32.07 0.05 0.45 HCM LOS F D 0.00 0.40 TOW LOO 0=: 0.5. Minor Lane/Major Mvr mt NBL NBT NBR I WBLn1V SBL SBT SBR Capacity (veh/h) 604 - - 100 40 850 899 - - HCM Lane V/C Ratio , 0.007 - 0.295 0.083 - - HCM Control Delay (s s/veh) 11 - - 194.2 9.5 9.4 - - HCM Lane LOS В - - F F Α Α - - HCM 95th %tile Q(vel 1) 0 - - 6.9 1 0.2 0.3 - - Notes anacity \$· Do elay exc eeds 31 nns +· Com putatior Not Do efined · ΔII majory olume in pla ntoon ~: Volume exceeds capacity φ. DE ay ext ccus si 003 T. CUIII pulation I NOLDE inieu : All major volume in platoon
HCM 7th Signalized Intersection Summary 3: GA-9 Atlanta St/GA-9 & Private Dwy/Oak St Build 2025 Conditions - AM Peak Hour ٠ → • • ← • 1 † - - ļ 1 Movement EBL EBT EBR WBL WBT WBR NBL NBT NBR SBL SBT SBR Lane Configurations 4 ħ 475 4₽ 7 Traffic Volume (veh/h) 4 1 0 91 7 42 0 826 68 46 1314 17 Future Volume (veh/h) 4 1 0 91 7 42 0 826 68 46 1314 17 Initial Q (Qb), veh 0 0 0 0 0 0 0 0 0 0 0 0 Lane Width Adj. 1.00 1.00 1.00 1.00 1.00 1.00 1.00 1.00 1.00 1.00 1.00 1.00 Ped-Bike Adj(ApbT) 0.99 1.00 0.99 0.99 1.00 1.00 1.00 1.00 Parking Bus, Adj 1.00 1.00 1.00 1.00 1.00 1.00 1.00 1.00 1.00 1.00 1.00 1.00 Work Zone On Approach No No No No Adj Sat Flow, veh/h/ln 1870 1870 1870 1870 1870 1870 1870 1856 1856 1826 1856 1870 Adj Flow Rate, veh/h 4 1 0 98 8 45 0 888 73 49 1413 18 Peak Hour Factor 0.93 0.93 0.93 0.93 0.93 0.93 0.93 0.93 0.93 0.93 0.93 0.93 Percent Heavy Veh, % 2 2 2 2 2 2 2 3 3 5 3 2 Cap, veh/h 106 22 0 178 22 121 0 2761 227 95 2670 1325 Arrive On Green 0.09 0.09 0.00 0.09 0.09 0.09 0.00 1.00 1.00 1.00 1.00 1.00 Sat Flow, veh/h 741 251 0 1408 243 1369 0 3391 271 84 3190 1583 Grp Volume(v), veh/h 5 0 0 98 0 53 0 475 486 756 706 18 Grp Sat Flow(s),veh/h/ln 992 0 0 1408 0 1613 0 1763 1806 1670 1604 1583 Q Serve(gs), s 0.0 0.0 0.0 4.9 0.0 5.0 0.0 0.0 0.0 0.0 0.0 0.0 Cycle Q Clear(gc), s 5.0 0.0 0.0 9.9 0.0 5.0 0.0 0.0 0.0 0.0 0.0 0.0 Prop In Lane 0.80 0.00 1.00 0.85 0.00 0.15 0.06 1.00 Lane Grp Cap(c), veh/h 128 0 0 178 0 143 0 1475 1512 1422 1343 1325 V/C Ratio(X) 0.04 0.00 0.00 0.55 0.00 0.37 0.00 0.32 0.32 0.53 0.53 0.01 Avail Cap(ca), veh/h 305 0 0 352 0 343 0 1475 1512 1422 1343 1325 HCM Platoon Ratio 1.00 1.00 1.00 1.00 1.00 1.00 2.00 2.00 2.00 2.00 2.00 2.00 Upstream Filter(I) 1.00 0.00 0.00 1.00 0.00 1.00 0.00 0.79 0.79 1.00 1.00 1.00 Uniform Delay (d), s/veh 66.7 0.0 0.0 70.8 0.0 68.7 0.0 0.0 0.0 0.0 0.0 0.0 Incr Delay (d2), s/veh 0.2 0.0 0.0 4.5 0.0 2.7 0.0 0.5 0.4 1.4 1.5 0.0 Initial Q Delay(d3), s/veh 0.0 0.0 0.0 0.0 0.0 0.0 0.0 0.0 0.0 0.0 0.0 0.0 %ile BackOfQ(50%),veh/ln 0.2 0.0 0.0 4.2 0.0 2.2 0.0 0.2 0.2 0.6 0.6 0.0 Unsig. Movement Delay, s/veh LnGrp Delay(d), s/veh 66.9 0.0 0.0 75.3 0.0 71.4 0.0 0.5 0.4 1.4 1.5 0.0 LnGrp LOS E E E Α Α Α Α Α Approach Vol, veh/h 5 151 961 1480 Approach Delay, s/veh 66.9 73.9 0.5 1.4 Approach LOS E E Α Α Timer - Assigned Phs 2 4 6 8 Phs Duration (G+Y+Rc), s 139.8 20.2 139.8 20.2 Change Period (Y+Rc), s 5.9 6.0 5.9 6.0 Max Green Setting (Gmax), s 1 .1E+02 34.0 1 .1E+02 34.0 Max Q Clear Time (gc+l1), s 2.0 11.9 2.0 7.0 Green Ext Time (pc), s 63.3 1.0 26.1 0.0 Intersection Summary HCM 7th Control Delay, s/veh 5.4 HCM 7th LOS Α Notes HCM 7th computational engin ne requir es equal clearance times for r the phas ses crossi ng the ba rrier. Synchro 12 Report 6/16/2025 Kimley-Horn Page 3
HCM 7th Signalized Intersection Summary 4: GA-9/GA-9 Atlanta St & Oxbo Rd Build 2025 Conditions - AM Peak Hour ۶ - • • ← • 1 † ^ / ļ 1 Movement EBL EBT EBR WBL WBT WBR NBL NBT NBR SBL SBT SBR Lane Configurations đ 4 ΦÞ ΦÞ Traffic Volume (veh/h) 27 117 41 211 108 35 12 820 288 72 1322 10 Future Volume (veh/h) 27 117 41 211 108 35 12 820 288 72 1322 10 Initial Q (Qb), veh 0 0 0 0 0 0 0 0 0 0 0 0 Lane Width Adj. 1.00 1.00 1.00 1.00 1.00 1.00 1.00 1.00 1.00 1.00 1.00 1.00 Ped-Bike Adj(ApbT) 1.00 0.99 1.00 1.00 1.00 1.00 1.00 1.00 Parking Bus, Adj 1.00 1.00 1.00 1.00 1.00 1.00 1.00 1.00 1.00 1.00 1.00 1.00 Work Zone On Approac No No No No 1870 1870 1870 1870 1841 1870 1870 1856 1870 1856 1856 1589 Adj Flow Rate, veh/h 28 121 42 218 111 36 12 845 297 74 1363 10 Peak Hour Factor 0.97 0.97 0.97 0.97 0.97 0.97 0.97 0.97 0.97 0.97 0.97 0.97 Percent Heavy Veh, % 2 2 2 2 4 2 2 3 2 3 3 21 Cap, veh/h 217 149 52 250 256 83 299 1525 535 289 2203 16 Arrive On Green 0.02 0.11 0.11 0.10 0.19 0.19 0.01 0.60 0.60 0.06 1.00 1.00 Sat Flow, veh/h 1781 1325 460 1781 1330 431 1781 2558 898 1767 3587 26 Grp Volume(v), veh/h 28 0 163 218 0 147 12 582 560 74 670 703 Grp Sat Flow(s), veh/h/lr 0 1785 1781 0 1761 1781 1763 1693 1767 1763 1851 2 Serve(gs), s 2.2 0.0 14.3 15.9 0.0 11.8 0.4 31.8 32.0 2.7 0.0 0.0 Cycle Q Clear(gc), s 2.2 0.0 14.3 15.9 0.0 11.8 0.4 31.8 32.0 2.7 0.0 0.0 Prop In Lane 1.00 0.0 0.26 1.00 0.0 0.24 1.00 31.0 0.53 1.00 0.0 0.01 ane Grp Cap(c), veh/h 0 200 250 0 340 299 1051 1009 289 1083 1137 V/C Ratio(X) 0.13 0.00 0.81 0.87 0.00 0.43 0.04 0.55 0.56 0.26 0.62 0.62 Avail Cap(ca), veh/h 361 0.00 311 250 0.00 340 381 1051 1009 393 1083 1137 HCM Platoon Ratio 1.00 1.00 1.00 1.00 1.00 1.00 1.00 1.00 1.00 2.00 2.00 2.00 Upstream Filter(I) 1.00 0.00 1.00 1.00 0.00 1.00 1.00 1.00 1.00 0.77 0.77 0.77 Uniform Delay (d), s/veł 0.00 69.4 57.1 0.0 56.9 12.5 19.5 19.5 15.1 0.0 0.0 Incr Delay (d2), s/veh 0.3 0.0 10.3 26.9 0.0 1.1 0.1 2.1 2.2 0.4 2.1 2.0 Initial Q Delay(d3), s/vel 0.0 0.0 0.0 0.0 0.0 0.0 0.0 0.0 0.0 0.0 0.0 %ile BackOfQ(50%),vel 0.0 7.2 3.1 0.0 5.4 0.0 13.5 13.1 1.0 0.6 0.6 Jnsig. Movement Delay 1.2 5.1 0.0 5.7 0.2 10.0 13.1 1.0 0.0 0.0 nGrp Delay(d), s/veh 61.7 0.0 79.7 84.0 0.0 57.9 12.5 21.6 21.7 15.4 2.1 2.0 LnGrp LOS 61.7 E 0.0 7 7. 7 E 64.0 F 0.0 57.7 E 12.3 B 21.0 C C C 13.4 B Α.Ι 2.0 A Approach Vol, veh/h 191 365 L U 1154 D 1447 Approach Delay, s/veh Approach Delay, s/ven Approach LOS 77.0 73.5 21.6 C 2.7 •• E E А Timer - Assigned Phs 1 2 3 4 5 6 7 8 Phs Duration (G+Y+Rc) 10.1 37.9 10.6 101.4 23.0 25.1 Change Period (Y+Rc), 6.0 7.1 7.1 6.0 6.0 7.1 7.1 Max Green Setting (Gm 81.0 15.9 27.9 14.0 76.0 15.9 27.9 Max Q Clear Time (gc 2.0 4.2 13.8 4.7 34.0 17.9 16.3 Green Ext Time (pc), s 6 0.0 45.2 0.0 0.7 0.1 24.8 0.0 8.0 Intersection Summary HCM 7th Control Delay, , s/veh 22.3 HCM 7th LOS С Notes User approved pedestri an inte rval to b ne less than ph ase ma x areer ١. Synchro 12 Report 6/16/2025 Kimley-Horn Page 4
Intersection Int Delay, s/veh 5.3 Movement EBL EBT EBR WBL WBT WBR NBL NBT NBR SBL SBT SBR Lane Configurations * 1 4 4 4 Traffic Vol, veh/h 47 14 79 34 19 8 41 6 23 0 4 9 Future Vol, veh/h 47 14 79 34 19 8 41 6 23 0 4 9 Conflicting Peds, #/hr 0 0 0 0 0 0 0 0 3 3 0 0 Sign Control Free Free Free Free Free Free Stop Stop Stop Stop Stop Stop RT Channelized - - None - - None - - None - - None Storage Length 130 - - - - - - - - - - - Veh in Median Storage, # - 0 - - 0 - - 0 - - 0 - Grade, % - 0 - - 0 - - 0 - - 0 - Peak Hour Factor 76 76 76 76 76 76 76 76 76 76 76 76 Heavy Vehicles, % 2 15 2 2 2 2 2 2 5 2 2 2 Mvmt Flow 62 18 104 45 25 11 54 8 30 0 5 12 Major/Minor Najor1 Majora Minor1 Minor Major1 ^ Major2 ^ Minor1 210 Minor2 2// 20 Conflicting Flow All 36 0 0 122 0 0 311 319 73 269 366 30 Stage 1 - - - - - - 194 194 - 120 120 - Stage 2 - - - 110 - - 117 125 - / 2F 149 246 / 22 Critical Hdwy 4.12 - - 4.12 - - 7.12 6.52 6.25 7.12 6.52 6.22 Critical Hdwy Stg 1 - - - - - - 6.12 5.52 - 6.12 5.52 - Critical Hdwy Stg 2 2 210 - - 2 210 - - 6.12 5.52 2 245 6.12 5.52 2 210 2.218 - - 2.218 - - 3.518 4.018 3.345 3.518 4.018 3.318 Pot Cap-1 Maneuver 1576 - - 1465 - - 641 598 980 684 563 1044 Stage 1 - - - - - - 808 740 - 885 797 - Stage 2 - - - - - - 887 792 - 854 703 - Platoon blocked, % 157/ - - 11/5 - - F0F FF / 077 / 07 F0.4 1044 Mov Cap-1 Maneuver 1576 - - 1465 - - 585 556 977 607 524 1044 Mov Cap-2 Maneuver - - - - - - 585 556 - 607 524 - Stage 1 - - - - - - 776 711 - 857 772 - Stage 2 - - - - - - 844 768 - 784 675 - Approach EB WB NB SB HCM Control Delay, s/v 4.2 11.23 9.6 HCM LOS В A IDI 1 ED! EST ED5 14/51 MOT 14/55 CDL 4 Minor Lane/Major Mvmt VBLn1 EBL EBT EBR WBL WBT WBR SBLn1 Capacity (veh/h) 1576 - - 947 - - 000 HCM Lane V/C Ratio 0.137 - - 0.031 - - 0.021 HCM Control Delay (s/v eh) 11.2 7.4 - - 7.5 0 - 9.6 HCM Lane LOS В Α - - Α Α - Α HCM 95th %tile Q(veh) 0.5 0.1 - - 0.1 - - 0.1
Intersection Intersection Delay, s/veh 7.4 Intersection LOS Α Movement EBU EBL EBT EBR WBL WBT WBR NBL NBT NBR SBU SBL Lane Configurations 4 4 4 Traffic Vol, veh/h 1 31 6 0 2 13 0 1 29 0 1 1 Future Vol, veh/h 1 31 6 0 2 13 0 1 29 0 1 1 Peak Hour Factor 0.90 0.90 0.90 0.90 0.90 0.90 0.90 0.90 0.90 0.90 0.90 0.90 Heavy Vehicles, % 2 3 17 2 2 2 2 2 2 2 2 2 Mvmt Flow 1 34 7 0 2 14 0 1 32 0 1 1 Number of Lanes 0 0 1 0 0 1 0 0 1 0 0 0 Approach EB WB NB SB Opposing Approach WB EB SB NB Opposing Lanes 1 1 1 1 Conflicting Approach Left SB NB EB WB Conflicting Lanes Left 1 1 1 1 Conflicting Approach Right NB SB WB EB Conflicting Lanes Right 1 1 1 1 HCM Control Delay, s/veh 7.7 7.4 7.3 7.3 HCM LOS Α Α Α Α Lane NBLn1 EBLn1 WBLn1 SBLn1 Vol Left, % 3% 84% 13% 1% Vol Thru, % 97% 16% 87% 46% Vol Right, % 0% 0% 0% 53% Sign Control Stop Stop Stop Stop Traffic Vol by Lane 30 38 15 98 LT Vol 1 32 2 1 Through Vol 29 6 13 45 RT Vol 0 0 0 52 Lane Flow Rate 33 42 17 109 Geometry Grp 1 1 1 1 Degree of Util (X) 0.038 0.051 0.02 0.113 Departure Headway (Hd) 4.127 4.362 4.242 3.749 Convergence, Y/N Yes Yes Yes Yes Cap 862 817 837 952 Service Time 2.177 2.413 2.3 1.791 HCM Lane V/C Ratio 0.038 0.051 0.02 0.114 HCM Control Delay, s/veh 7.3 7.7 7.4 7.3 HCM Lane LOS А Α Α Α HCM 95th-tile Q 0.1 0.2 0.1 0.4
Intersection Intersection Delay, s/veh Intersection LOS Movement SBT SBR Lane Configurations 4 Traffic Vol, veh/h 45 51 Future Vol, veh/h 45 51 Peak Hour Factor 0.90 0.90 Heavy Vehicles, % 2 2 Mvmt Flow 50 57 Number of Lanes 1 0 Approach Opposing Approach Opposing Lanes Conflicting Approach Left Conflicting Lanes Left Conflicting Approach Right Conflicting Lanes Right HCM Control Delay, s/veh HCM LOS
HCM 7th Signalized Intersection Summary 7: Forrest St/Fraser St & Norcross St Build 2025 Conditions - AM Peak Hour ٠ → • • ← • 1 † 1 - ţ 1 Movement EBL EBT EBR WBL WBT WBR NBL NBT NBR SBL SBT SBR Lane Configurations र्स 7 4 4 4 Traffic Volume (veh/h) 3 317 9 36 239 56 2 31 33 81 69 11 Future Volume (veh/h) 3 317 9 36 239 56 2 31 33 81 69 11 Initial Q (Qb), veh 0 0 0 0 0 0 0 0 0 0 0 0 Lane Width Adj. 1.00 1.00 1.00 1.00 1.00 1.00 1.00 1.00 1.00 1.00 1.00 1.00 Ped-Bike Adj(ApbT) 0.99 0.98 0.99 0.98 1.00 1.00 1.00 1.00 Parking Bus, Adj 1.00 1.00 1.00 1.00 1.00 1.00 1.00 1.00 1.00 1.00 1.00 1.00 Work Zone On Approach 1 No No No No Adj Sat Flow, veh/h/ln 1870 1870 1870 1870 1826 1841 1870 1796 1870 1870 1870 1870 Adj Flow Rate, veh/h 4 377 11 43 285 67 2 37 39 96 82 13 0.84 0.84 0.84 0.84 0.84 0.84 0.84 0.84 0.84 0.84 0.84 0.84 Percent Heavy Veh, % 2 2 2 2 5 4 2 7 2 2 2 2 Cap, veh/h 66 628 525 100 396 87 68 370 373 418 336 48 0.34 0.34 0.34 0.34 0.34 0.34 0.45 0.45 0.45 0.45 0.45 0.45 Sat Flow, veh/h 4 1863 1557 87 1174 258 7 813 821 710 738 106 Grp Volume(v), veh/h 381 0 11 395 0 0 78 0 0 191 0 0 Grp Sat Flow(s), veh/h/ln 0 1557 1519 0 0 1641 0 0 1554 0 0 Q Serve(gs), s 0.0 0.0 0.3 4.1 0.0 0.0 0.0 0.0 0.0 2.0 0.0 0.0 Cycle Q Clear(gc), s 9.6 0.0 0.3 13.7 0.0 0.0 1.5 0.0 0.0 3.9 0.0 0.0 0.01 0.0 1.00 0.11 0.0 0.17 0.03 0.0 0.50 0.50 0.0 0.07 Lane Grp Cap(c), veh/h 0 525 583 0 0.17 811 0 0.50 802 0 0.07 0.55 0.00 0.02 0.68 0.00 0.00 0.10 0.00 0.00 0.24 0.00 0.00 Avail Cap(ca), veh/h 964 0.00 752 818 0.00 0.00 811 0.00 0.00 802 0.00 0.00 HCM Platoon Ratio 1.00 1.00 1.00 1.00 1.00 1.00 1.00 1.00 1.00 1.00 1.00 1.00 1.00 0.00 1.00 1.00 0.00 0.00 1.00 0.00 0.00 1.00 0.00 0.00 Uniform Delay (d), s/veh 0.0 12.5 16.6 0.0 0.0 8.9 0.0 0.0 9.5 0.0 0.0 Incr Delay (d2), s/veh 0.8 0.0 0.0 1.7 0.0 0.0 0.2 0.0 0.0 0.7 0.0 0.0 Initial Q Delay(d3), s/veh 0.0 0.0 0.0 0.0 0.0 0.0 0.0 0.0 0.0 0.0 0.0 %ile BackOfQ(50%), veh 0.0 0.1 4.0 0.0 0.0 0.5 0.0 0.0 1.4 0.0 0.0 Unsig. Movement Delay, J. 1 1.0 5.0 5.0 0.0 5.0 5.0 1.7 5.0 5.0 9 16.5 0.0 12.6 18.3 0.0 0.0 9.1 0.0 0.0 10.2 0.0 0.0 LnGrp LOS В 0.0 В В 0.0 0.0 A 0.0 0.0 В 0.0 0.0 Approach Vol, veh/h D 392 395 /\ 78 191 Approach Delay, s/veh 16.4 18.3 9.1 10.2 Approach LOS 10.4 B 10.3 B 9.1 A 10.2 B ь ь Timer - Assigned Phs 2 24.7 6 8 Phs Duration (G+Y+Rc), 32.0 24.7 32.0 24.7 Change Period (Y+Rc), S 6.2 5.6 6.2 5.6 Max Green Setting (Gma 25.8 27.4 25.8 27.4 Max Q Clear Time (gc+ ·11), S 3.5 11.6 5.9 15.7 Green Ext Time (pc), s 0.7 2.4 1.9 2.2 Intersection Summary HCM 7th Control Delay, s/veh 15.4 HCM 7th LOS В Synchro 12 Report 6/16/2025 Kimley-Horn Page 8
Intersection Int Delay, s/veh 0 ED. MDI WOT ND NDD Movement EBT EBR WBL WBT NBL NBR Lane Configurations ħ 4 , A Traffic Vol, veh/h 151 1 1 58 0 0 Future Vol, veh/h 151 1 1 58 0 0 Conflicting Peds, #/hr 0 0 0 0 0 0 Sign Control Free Free Free Free Stop Stop RT Channelized - None - None - None Storage Length - - - - 0 - Veh in Median Storage, - - 0 0 - Grade, % 0 - - 0 0 - Peak Hour Factor 93 93 93 93 93 93 Heavy Vehicles, % 2 2 2 2 2 2 Mvmt Flow 162 1 1 62 0 0 Major/Minor /olo-1 Anie 2 Nine 1 1ajor1 Major2 Minor1 Conflicting Flow All 0 0 163 0 227 163 Stage 1 - - - - 163 - Stage 2 - - - - 65 - Critical Hdwy - - 4.12 - 6.42 6.22 Critical Hdwy Stg 1 - - - - 5.42 - Critical Hdwy Stg 2 - - - - 5.42 - Follow-up Hdwy - - 2.218 - 3.518 3.318 Pot Cap-1 Maneuver - - 1415 - 761 882 Stage 1 - - - - 866 - Stage 2 - - - - 958 - Platoon blocked, % - - - Mov Cap-1 Maneuver - 1415 - 760 882 Mov Cap-2 Maneuver - 760 - 002 Stage 1 866 Stage 2 _ 957 - Staye 2 - - - - 707 - Approach EB WB NB HCM Control Delay, s/v 0 0.13 0 HCM LOS A ,, Ndinon Long /Nd - ' Nd IDI 1 CDT EDD MDI WDT Minor Lane/Major Mvmt . [ VBLn1 EBT EBR WBL WBT Capacity (veh/h) - - - 31 - HCM Lane V/C Ratio - - - 0.001 - HCM Control Delay (s/v eh) 0 - - 7.5 0 HCM Lane LOS Α - - Α Α HCM 95th %tile Q(veh) - - - 0 -
Intersection Int Delay, s/veh 3.3 Int Delay, s/veh 3.3 Movement EBL EBR NBL NBT SBT SBR Lane Configurations *** Movement EBL EBR NBL NBT SBT SBR Lane Configurations 7 - - - - - - - - - - - - - - - - - - - - - - - - - - - - - - - - - - - - - - - - - - - - - - - - - - - - - - - - - - - - - - - - - - - - - - - - - - - - - - - - - - - - - - - - - - - - - - - Lane Configurations W J J J J J J J J L L J L J L L L L L L L L L L L L L L L L L L L L L L L L L L L L L L L L L L L L L L L L L L L L L L L L L L L L L L L L L L L L L L L L L L L L L L L L L L L L L L L L L L L L L L L L L L L Traffic Vol, veh/h 54 8 9 16 48 68 Future Vol, veh/h 54 8 9 16 48 68 Conflicting Peds, #/hr 0 0 0 0 0 0 0 Sign Control Stop Stop Free Free Free Free Free RT Channelized - None - None - None Storage Length 0 - - - - - None Veh in Median Storage, # 0 - - 0 0 - Grade, % 0 - - 0 0 - Peak Hour Factor 76 76 76 76 76 76 Future Vol, veh/h 54 8 9 16 48 68 Conflicting Peds, #/hr 0 0 0 0 0 0 0 Sign Control Stop Stop Free Free Free Free Free Free Free Pree Pree None - None - None - None - None - None - None - None - None - None - None - None - None - None - None - None - None - None - None - None - None - None - None - None - None - None - None - None - None - None - None - None - None - None - Conflicting Peds, #/hr 0 0 0 0 0 0 0 0 0 0 0 0 0 0 0 0 0 0 0 Free Free Free Free Free Free Free Free Free Free Free Free Free Free Free Free Free Free Free Free Free Free Free Free Free Free Free Free Free Free Free Free Free Free Free Free Free Free Free Free Free Free Free Free Free Free Free Free Free Free Free Free Free Free None - None - None - None - None - None - None - None - None - None - - - Sign ControlStopStopFreeFreeFreeFreeFreeRT Channelized-None-None-NoneStorage Length0Veh in Median Storage, #Grade, %Peak Hour Factor767676767676 RT Channelized - None - None - None Storage Length 0 - - - - - Veh in Median Storage, # 0 - - 0 0 - Grade, % 0 - - 0 0 - Peak Hour Factor 76 76 76 76 76 76 Storage Length 0 - - - - - - - - - - - - - - - - - - - 0 0 - - - 0 0 - - - 0 0 - - - 0 0 - - - 0 0 - - - 0 0 - - - 0 0 - - - 0 0 - - - 0 0 - - - 0 0 - - - 0 0 - - - 0 0 - - - 0 0 - - - 0 0 - - - 0 0 - - - 0 0 - - - 0 0 - - - Veh in Median Storage, # 0 - - 0 0 - Grade, % 0 - - 0 0 - Peak Hour Factor 76 76 76 76 76 76 Grade, % 0 0 0 - Peak Hour Factor 76 76 76 76 76 76 Peak Hour Factor 76 76 76 76 76 76 Heavy Vehicles, % 2 2 2 7 2 2 Mvmt Flow 71 11 12 21 63 89 Major/Minor Minor? Major1 Major? Major/Minor Minor2 Major1 Major2 Conflicting Flow All 153 108 153 0 - 0 Stage 1 108 Stage 2 45 Critical Hdwy 6.42 6.22 4.12 Critical Hdwy Stg 1 5.42 Critical Hdwy Stg 2 5.42 Follow-up Hdwy 3.518 3.318 2.218 Pot Cap-1 Maneuver 839 946 1428 Stage 1 917 Stage 2 978 Platoon blocked, % Mov Cap-1 Maneuver 832 946 1428 Mov Cap-2 Maneuver 832 Stage 1 909 $\mathbf{J}$ Stage 2 978 3 5 Stage 2 978 - - - - - Approach EB NB SB Stage 2 978 - - - - - Approach EB NB SB Stage 2 978 - - - - - Approach EB NB SB HCM Control Delay, s/v 9.71 2.72 0 Stage 2 978 - - - - - - - - - - - - - - - - - - - - - - - - - - - - - - - - - - - - - - - - - - - - - - - - - - - - - - - - - - - - - - - - - - - - - - - - - - - - - - - - - - - - - - - - - - - - - - - - - - - - - - - - - Stage 2 978 - - - - - - - - - - - - - - - - - - - - - - - - - - - - - - - - - - - - - - - - - - - - - - - - - - - - - - - - - - - - - - - - - - - - - - - - - - - - - - - - - - - - - - - - - - - - - - - - - - - - - - - - - Stage 2 978 - - - - - - - - - - - - - - - - - - - - - - - - - - - - - - - - - - - - - - - - - - - - - - - - - - - - - - - - - - - - - - - - - - - - - - - - - - - - - - - - - - - - - - - - - - - - - - - - - - - - - - - - - Stage 2 978 - - - - - - - - - - - - - - - - - - - - - - - - - - - - - - - - - - - - - - - - - - - - - - - - - - - - - - - - - - - - - - - - - - - - - - - - - - - - - - - - - - - - - - - - - - - - - - - - - - - - - - - - - Stage 2 978 - - - - - - - - - - - - - - - - - - - - - - - - - - - - - - - - - - - - - - - - - - - - - - - - - - - - - - - - - - - - - - - - - - - - - - - - - - - - - - - - - - - - - - - - - - - - - - - - - - - - - - - - - Stage 2 978 - - - - - - - - - - - - - - - - - - - - - - - - - - - - - - - - - - - - - - - - - - - - - - - - - - - - - - - - - - - - - - - - - - - - - - - - - - - - - - - - - - - - - - - - - - - - - - - - - - - - - - - - -
Intersection Int Delay, s/veh 4.2 Movement EBL EBT EBR WBL WBT WBR NBL NBT NBR SBL SBT SBR Lane Configurations LDL 4 LDIX WDL ₩ WOR NDL 4 NOK JUL 361 JUK Traffic Vol, veh/h 30 44 15 28 104 14 18 11 27 10 7 17 Future Vol, veh/h 30 44 15 28 104 14 18 11 27 10 7 17 Conflicting Peds, #/hr 2 0 0 0 0 2 0 0 0 0 0 0 Sign Control Free Free Free Free Free Free Stop Stop Stop Stop Stop Stop RT Channelized riee - riee - None riee - riee - None Siup - Siup - None Siup - Siup - None Storage Length - NOTIC - - None - - NOHE - - NOHE Veh in Median Storage - # - 0 - - 0 - - 0 - 0 - Grade, % - , π - 0 - - 0 - - 0 - - 0 - Peak Hour Factor 90 90 90 90 90 90 90 90 90 90 90 90 Heavy Vehicles, % 2 2 2 2 2 2 2 2 2 2 2 2 Mymt Flow 33 49 17 31 116 16 20 12 30 11 8 19 IVIVIIIL I IOW JJ 47 17 JI 110 10 20 12 30 - 11 U 17 Major1 1 Major2 Minor1 Minor2 Conflicting Flow All 133 0 0 66 0 0 306 319 57 309 320 125 Stage 1 - - - - - - 124 124 - 188 188 - Stage 2 - - - - - - 182 195 - 122 132 - Critical Hdwy 4.12 - - 4.12 - - 7.12 6.52 6.22 7.12 6.52 6.22 Critical Hdwy Stg 1 - - - - - - 6.12 5.52 - 6.12 5.52 - Critical Hdwy Stg 2 - - - - - - 6.12 5.52 - 6.12 5.52 - Follow-up Hdwy 2.218 - - 2.218 - - 3.518 4.018 4.018 3.318 Pot Cap-1 Maneuver 1452 - - 1536 - - 647 597 1009 643 597 925 Stage 1 - - - - - - 880 793 - 814 745 - Stage 2 - - - - - - 820 739 - 883 787 - Platoon blocked, % - - - - Mov Cap-1 Maneuver 1449 - - 1536 - - 597 569 1009 583 569 923 Mov Cap-2 Maneuver - - - - - - 597 569 - 583 569 - Stage 1 - - - - - - 859 774 - 795 727 - Stage 2 - - - - - - 777 722 - 823 768 - Approach EB WB NB SB HCM Control Delay, s/ 1.42 10.35 10.35 HCM LOS В В Minor Lane/Major Mvm nt NBLn1 EBL EBT EBR WBL WBT WBR SBLn1 Capacity (veh/h) 735 577 - - 337 - - 710 HCM Lane V/C Ratio 0.085 - - 0.02 - _ 0.053 HCM Control Delay (s/ /veh) 10.4 7.5 0 - 7.4 0 - 10.4 HCM Lane LOS 7 В A A - Α A - В HCM 95th %tile Q(veh ) 0.3 0.1 - - 0.1 - - 0.2 , 0.0 U. 1
HCM Signalized Intersection Capacity Analysis 1: GA-9/Canton St & Magnolia St/GA-9 Atlanta St 1: GA-9/Canton St Build 2028 Conditions - PM Peak Hour ٠ → • • ← • 1 † ~ / ţ 4 Movement EBL EBT EBR WBL WBT WBR NBL NBT NBR SBL SBT SBR Lane Configurations 41∱ 7 14.54 ĵ. * ĵ. 7 ^ 7 Traffic Volume (vph) 83 264 54 767 430 17 156 335 686 0 249 95 Future Volume (vph) 83 264 54 767 430 17 156 335 686 0 249 95 Ideal Flow (vphpl) 1900 1900 1900 1900 1900 1900 1900 1900 1900 1900 1900 1900 Total Lost time (s) 6.3 6.3 6.7 6.7 6.3 6.2 6.7 6.2 6.2 Lane Util. Factor 0.95 1.00 0.97 1.00 1.00 0.95 0.95 0.95 1.00 Frpb, ped/bikes 1.00 1.00 1.00 1.00 1.00 0.99 1.00 1.00 1.00 Flpb, ped/bikes 1.00 1.00 1.00 1.00 1.00 1.00 1.00 1.00 1.00 Frt 1.00 0.85 1.00 0.99 1.00 0.94 0.85 1.00 0.85 Flt Protected 0.99 1.00 0.95 1.00 0.95 1.00 1.00 1.00 1.00 Satd. Flow (prot) 3498 1583 3433 1852 1770 1657 1504 3539 1583 Flt Permitted 0.73 1.00 0.95 1.00 0.47 1.00 1.00 1.00 1.00 Satd. Flow (perm) 2600 1583 3433 1852 869 1657 1504 3539 1583 Peak-hour factor, PHF 0.95 0.95 0.95 0.95 0.95 0.95 0.95 0.95 0.95 0.95 0.95 0.95 Adj. Flow (vph) 87 278 57 807 453 18 164 353 722 0 262 100 RTOR Reduction (vph) 0 0 47 0 1 0 0 12 58 0 0 88 Lane Group Flow (vph) 0 365 10 807 470 0 164 550 455 0 262 12 Confl. Peds. (#/hr) 5 5 Turn Type Perm NA Perm Split NA pm+pt NA pt+ov NA Perm Protected Phases 4 3 3 1 6 3 6 2 Permitted Phases 4 4 6 2 Actuated Green, G (s) 28.5 28.5 63.3 63.3 49.0 49.0 118.5 19.7 19.7 Effective Green, g (s) 28.5 28.5 63.3 63.3 49.0 49.0 112.3 19.7 19.7 Actuated g/C Ratio 0.18 0.18 0.40 0.40 0.31 0.31 0.70 0.12 0.12 Clearance Time (s) 6.3 6.3 6.7 6.7 6.3 6.2 6.2 6.2 Vehicle Extension (s) 4.0 4.0 6.0 6.0 3.0 5.0 5.0 5.0 Lane Grp Cap (vph) 463 281 1358 732 395 507 1055 435 194 v/s Ratio Prot 0.24 c0.25 0.06 c0.33 0.30 0.07 v/s Ratio Perm c0.14 0.01 0.07 0.01 v/c Ratio 0.79 0.04 0.59 0.64 0.42 1.08 0.43 0.60 0.06 Uniform Delay, d1 62.9 54.4 38.2 39.2 49.8 55.5 10.2 66.4 62.0 Progression Factor 1.00 1.00 1.00 1.00 0.75 0.67 1.21 1.00 1.00 Incremental Delay, d2 9.1 0.1 1.9 4.3 0.7 63.3 0.6 3.4 0.3 Delay (s) 72.0 54.5 40.1 43.5 37.8 100.5 12.9 69.9 62.3 Level of Service Ε D D D D F В Ε Ε Approach Delay (s/veh) 69.6 41.4 55.9 67.8 Approach LOS E D E E Intersection Summary - c - _ HCM 2000 Control Delay (s/ 53.3 H CM 2000 Level of Service D HCM 2000 Volume to Capac 0.86 Intersection Summary HCM 2000 Control Delay (s/veh) 53.3 HCM 2000 Level of Service D HCM 2000 Volume to Capacity ratio 0.86 Actuated Cycle Length (s) 160.0 Sum of lost time (s) 25.5 Intersection Capacity Utilization 88.1% ICU Level of Service E Analysis Period (min) 15 c Critical Lane Group Synchro 12 Report 6/16/2025 Kimley-Horn Page 1
Intersection nt Delay, s/veh 2.3 Movement EBL EBT EBR WBL WBT WBR NBU NBL NBT NBR SBL SBT SBR Lane Configurations 4 4 7 4 1 † 1> Fraffic Vol, veh/h 0 2 19 12 5 69 2 48 1120 54 64 1029 45 uture Vol, veh/h 0 2 19 12 5 69 2 48 1120 54 64 1029 45 Conflicting Peds, #/hr 9 0 0 0 0 9 0 5 0 2 2 0 5 Sign Control Stop Stop Stop Stop Stop Stop Free Free Free Free Free Free Free RT Channelized - - None - - Yield - - - None - - None Storage Length - - - 77 - 0 - 115 - - 100 - - eh in Median Storage e,# - 0 - - 0 - - - 0 - - 0 - Grade, % - 0 - - 0 - - - 0 - - 0 - Peak Hour Factor 97 97 97 97 97 97 97 97 97 97 97 97 97 Heavy Vehicles, % 2 2 2 2 2 2 2 2 2 2 2 2 2 /lvmt Flow 0 2 20 12 5 71 2 49 1155 56 66 1061 46 lajor/Minor Minor2 Minor1 Major1 N /lajor2 Conflicting Flow All 1913 2536 559 1951 2532 616 1107 1112 0 1212 0 0 Stage 1 1221 1221 - 1288 1288 - - - - - - - Stage 2 692 1315 663 1244 Critical Hdwy 7.54 6.54 6.94 7.54 6.54 6.94 6.44 4.14 - - 4.14 - - Critical Hdwy Stg 1 6.54 5.54 - 6.54 5.54 - - - - - - Critical Hdwy Stg 2 6.54 5.54 - 6.54 5.54 - - - - - - - - Follow-up Hdwy 3.52 4.02 3.32 3.52 4.02 3.32 2.52 2.22 - 2.22 - Pot Cap-1 Maneuver 64 25 805 58 26 779 552 816 - - 754 - - Stage 1 335 361 - 319 345 - - - - - - Stage 2 735 331 - 760 349 - - - - - - - Platoon blocked, % 0 0 0 0 0 0 0 0 - - 0 - - Mov Cap-1 Maneuver 38 21 802 44 22 771 796 796 - - 753 - - Mov Cap-2 Maneuver 38 21 - 44 22 - - - - - - - - Stage 1 305 328 - 298 322 - - - - - - - - Stage 2 609 309 - 672 317 - - - - - - - - pproach EB WB NB SB HCM Control Delay, s/ v 27.8 46.47 0.4 0.58 HCM LOS D Е Minor Lane/Major Mvn nt NBL NBT NBR I EBLn1\ WBLn1V VBLn2 SBL SBT SBR Capacity (veh/h) 796 - - 179 34 771 753 - - ICM Lane V/C Ratio 0.065 - _ 0.121 0.517 0.088 - - HCM Control Delay (s/ veh) 9.8 - - 193.9 10.1 10.2 - - ICM Lane LOS , Α - - D F В В - - HCM 95th %tile Q(veh ) 0.2 - - 0.4 1.7 0.3 0.3 - - Notes A - , . 20 . -: Volume exceeds capacity \$: Delay exceeds 300s +: Computation Not Defined *: All major volume in platoon
HCM 7th Signalized Intersection Summary 3: GA-9 Atlanta St/GA-9 & Private Dwy/Oak St Build 2028 Conditions - PM Peak Hour ٠ → • • - • 1 † - - ļ 1 Movement EBL EBT EBR WBL WBT WBR NBL NBT NBR SBL SBT SBR Lane Configurations 4 ĵ, 476 41 7 Traffic Volume (veh/h) 2 1 3 108 3 75 0 1131 69 13 1039 9 Future Volume (veh/h) 2 1 3 108 3 75 0 1131 69 13 1039 9 Initial Q (Qb), veh 0 0 0 0 0 0 0 0 0 0 0 0 Lane Width Adj. 1.00 1.00 1.00 1.00 1.00 1.00 1.00 1.00 1.00 1.00 1.00 1.00 Ped-Bike Adj(ApbT) 1.00 1.00 1.00 1.00 1.00 1.00 1.00 1.00 Parking Bus, Adj 1.00 1.00 1.00 1.00 1.00 1.00 1.00 1.00 1.00 1.00 1.00 1.00 Work Zone On Approach No No No No Adj Sat Flow, veh/h/ln 1870 1870 1870 1870 1870 1856 1870 1870 1870 1870 1870 1870 Adj Flow Rate, veh/h 2 1 3 112 3 78 0 1178 72 14 1082 9 Peak Hour Factor 0.96 0.96 0.96 0.96 0.96 0.96 0.96 0.96 0.96 0.96 0.96 0.96 Percent Heavy Veh, % 2 2 2 2 2 3 2 2 2 2 2 2 Cap, veh/h 62 37 69 185 7 170 0 2773 169 40 2770 1291 Arrive On Green 0.11 0.11 0.11 0.11 0.11 0.11 0.00 1.00 1.00 1.00 1.00 1.00 Sat Flow, veh/h 288 333 621 1412 59 1535 0 3495 208 21 3398 1584 Grp Volume(v), veh/h 6 0 0 112 0 81 0 615 635 578 518 9 Grp Sat Flow(s),veh/h/ln 1243 0 0 1412 0 1594 0 1777 1833 1802 1617 1584 Q Serve(gs), s 0.0 0.0 0.0 6.6 0.0 7.6 0.0 0.0 0.0 0.0 0.0 0.0 Cycle Q Clear(gc), s 7.6 0.0 0.0 14.2 0.0 7.6 0.0 0.0 0.0 0.0 0.0 0.0 Prop In Lane 0.33 0.50 1.00 0.96 0.00 0.11 0.02 1.00 Lane Grp Cap(c), veh/h 167 0 0 185 0 176 0 1448 1494 1492 1318 1291 V/C Ratio(X) 0.04 0.00 0.00 0.60 0.00 0.46 0.00 0.42 0.43 0.39 0.39 0.01 Avail Cap(ca), veh/h 418 0 0 418 0 438 0 1448 1494 1492 1318 1291 HCM Platoon Ratio 1.00 1.00 1.00 1.00 1.00 1.00 2.00 2.00 2.00 2.00 2.00 2.00 Upstream Filter(I) 1.00 0.00 0.00 1.00 0.00 1.00 0.00 0.48 0.48 1.00 1.00 1.00 Uniform Delay (d), s/veh 63.6 0.0 0.0 70.1 0.0 66.7 0.0 0.0 0.0 0.0 0.0 0.0 Incr Delay (d2), s/veh 0.1 0.0 0.0 5.4 0.0 3.2 0.0 0.4 0.4 0.8 0.9 0.0 Initial Q Delay(d3), s/veh 0.0 0.0 0.0 0.0 0.0 0.0 0.0 0.0 0.0 0.0 0.0 0.0 %ile BackOfQ(50%),veh/ln 0.2 0.0 0.0 4.8 0.0 3.3 0.0 0.2 0.2 0.3 0.3 0.0 Unsig. Movement Delay, s/veh LnGrp Delay(d), s/veh 63.7 0.0 0.0 75.4 0.0 69.9 0.0 0.4 0.4 0.8 0.9 0.0 LnGrp LOS Е E E А А Α А Α Approach Vol, veh/h 6 193 1250 1105 Approach Delay, s/veh 63.7 73.1 0.4 0.8 Approach LOS Е E Α Α Timer - Assigned Phs 2 4 6 8 Phs Duration (G+Y+Rc), s 136.3 23.7 136.3 23.7 Change Period (Y+Rc), s 5.9 6.0 5.9 6.0 Max Green Setting (Gmax), s 1E+02 44.0 3 1E+02 44.0 Max Q Clear Time (gc+l1), s 2.0 16.2 2.0 9.6 Green Ext Time (pc), s 34.0 1.5 42.9 0.0 Intersection Summary HCM 7th Control Delay, s/veh 6.2 HCM 7th LOS Α Notes HCM 7th computational engin ne requir res equal clearance times for r the pha ses crossi ng the ba rrier. Synchro 12 Report 6/16/2025 Kimley-Horn Page 3
HCM 7th Signalized Intersection Summary 4: GA-9/GA-9 Atlanta St & Oxbo Rd Build 2028 Conditions - PM Peak Hour ۶ → • • ← • 1 † ^ \ ļ 1 Movement EBL EBT EBR WBL WBT WBR NBL NBT NBR SBL SBT SBR Lane Configurations £ 4 ΦÞ ΦÞ Traffic Volume (veh/h) 6 106 23 289 212 43 72 1130 361 72 1002 77 Future Volume (veh/h) 6 106 23 289 212 43 72 1130 361 72 1002 77 Initial Q (Qb), veh 0 0 0 0 0 0 0 0 0 0 0 0 Lane Width Adj. 1.00 1.00 1.00 1.00 1.00 1.00 1.00 1.00 1.00 1.00 1.00 1.00 Ped-Bike Adj(ApbT) 0.97 0.95 0.97 0.97 1.00 0.98 1.00 0.98 Parking Bus, Adj 1.00 1.00 1.00 1.00 1.00 1.00 1.00 1.00 1.00 1.00 1.00 1.00 Work Zone On Approac No No No No Adj Sat Flow, veh/h/ln 1870 1826 1870 1870 1870 1870 1870 1870 1870 1870 1870 1870 Adj Flow Rate, veh/h 6 112 24 304 223 45 76 1189 380 76 1055 81 Peak Hour Factor 0.95 0.95 0.95 0.95 0.95 0.95 0.95 0.95 0.95 0.95 0.95 0.95 Percent Heavy Veh, % 2 5 2 2 2 2 2 2 2 2 2 2 Cap, veh/h 181 222 48 323 371 75 230 1467 458 156 1846 142 Arrive On Green 0.01 0.15 0.15 0.10 0.25 0.25 0.03 0.55 0.55 0.01 0.18 0.18 Sat Flow, veh/h 1781 1443 309 1781 1502 303 1781 2652 829 1781 3339 256 Grp Volume(v), veh/h 6 0 136 304 0 268 76 788 781 76 561 575 Grp Sat Flow(s), veh/h/lr 0 1752 1781 0 1805 1781 1777 1704 1781 1777 1819 Q Serve(gs), s 0.5 0.0 11.4 15.9 0.0 21.0 3.0 56.9 60.6 2.9 46.1 46.2 Cycle Q Clear(gc), s 0.5 0.0 11.4 15.9 0.0 21.0 3.0 56.9 60.6 2.9 46.1 46.2 Prop In Lane 1.00 0.0 0.18 1.00 0.0 0.17 1.00 30.7 0.49 1.00 70.1 0.14 Lane Grp Cap(c), veh/h 0 269 323 0 446 230 983 942 156 982 1005 V/C Ratio(X) 0.03 0.00 0.51 0.94 0.00 0.60 0.33 0.80 0.83 0.49 0.57 0.57 Avail Cap(ca), veh/h 258 0.00 327 323 0.00 446 332 983 942 202 982 1005 HCM Platoon Ratio 1.00 1.00 1.00 1.00 1.00 1.00 1.00 1.00 1.00 0.33 0.33 0.33 Upstream Filter(I) 1.00 0.00 1.00 1.00 0.00 1.00 1.00 1.00 1.00 0.90 0.90 0.90 Uniform Delay (d), s/veł 0.0 62.1 57.7 0.0 53.2 22.4 28.7 29.5 30.1 48.1 48.1 Incr Delay (d2), s/veh 0.1 0.0 1.8 35.3 0.0 2.5 0.8 6.9 8.4 2.1 2.2 2.1 Initial Q Delay(d3), s/ve 0.0 0.0 0.0 0.0 0.0 0.0 0.0 0.0 0.0 0.0 0.0 %ile BackOfQ(50%),vel 0.0 5.3 8.0 0.0 10.0 1.3 25.6 26.4 1.5 22.7 23.3 Jnsig. Movement Delay 5.5 0.0 0.0 10.0 1.0 25.0 20.7 1.0 22.1 20.0 nGrp Delay(d), s/veh 56.9 0.0 63.9 93.0 0.0 55.7 23.2 35.6 37.9 32.3 50.3 50.3 LnGrp LOS 50.7 E 0.0 E 75.0 F 0.0 55.7 E C C D D C D D Approach Vol, veh/h 142 572 1645 D 1212 D Approach Delay, s/veh 63.6 75.5 36.1 49.1 Approach LOS 03.0 E 75.5 E 30.1 D 49.1 D •• D Timer - Assigned Phs 1 2 3 4 5 6 7 8 Phs Duration (G+Y+Rc) 94.4 8.0 46.7 10.8 94.5 23.0 31.7 Change Period (Y+Rc), 6.0 7.1 7.1 6.0 6.0 7.1 7.1 Max Green Setting (Gm 74.0 7.9 37.9 9.0 79.0 15.9 29.9 Max Q Clear Time (gc 48.2 2.5 23.0 4.9 62.6 17.9 13.4 Green Ext Time (pc), s 5 0.1 17.5 0.0 1.6 0.0 14.9 0.0 0.7 Intersection Summary HCM 7th Control Delay, , s/veh 47.9 HCM 7th LOS D Notes User approved pedestri an inter rval to b ne less than ph ase ma x areer 1. Synchro 12 Report 6/16/2025 Kimley-Horn Page 4
Intersection Int Delay, s/veh 5.1 EBL EBT EBR WBL WBT WBR NBL NBT NBR SBL SBT SBR Lane Configurations 7 4 4 4 4 Traffic Vol, veh/h 6 27 81 31 32 7 46 4 28 14 20 11 Future Vol, veh/h 6 27 81 31 32 7 46 4 28 14 20 11 Conflicting Peds, #/hr 3 0 0 0 0 3 0 0 0 0 0 0 Free Free Free Free Free Free Stop Stop Stop Stop Stop Stop RT Channelized - - None - - None - - None - - None Storage Length 130 - - - - - - - - - - - Veh in Median Storage, # # - 0 - - 0 - - 0 - - 0 - Grade, % - 0 - - 0 - - 0 - - 0 - Peak Hour Factor 83 83 83 83 83 83 83 83 83 83 83 83 Heavy Vehicles, % 2 4 2 2 3 2 2 2 4 2 2 2 Mvmt Flow 7 33 98 37 39 8 55 5 34 17 24 13 Major/Minor Ma ajor1 ľ Major2 ı Vinor1 Minor2 Conflicting Flow All 50 0 0 130 0 0 221 220 81 170 265 46 Stage 1 50 U U 130 U U 96 96 - 120 120 40 - - - • - - 125 125 - 49 145 - Stage 2 4.12 - - 4.12 - - 7.12 6.52 6.24 7.12 6.52 6.22 J 4.12 4.12 - - 6.12 5.52 0.24 6.12 5.52 0.22 Critical Hdwy Stg 1 - - - - - - 6.12 5.52 - 6.12 5.52 - Critical Hdwy Stg 2 - - - - - 2 22/ 2 210 2.218 - - 2.218 - - 3.518 4.018 3.336 3.518 4.018 3.318 1557 - - 1455 - - 735 678 973 794 640 1024 Stage 1 - - - - - - 911 816 - 884 796 - Stage 2 - - - - - - 879 793 - 964 777 - Platoon blocked, % 1552 - - 1 / [ [ - - /7/ / 072 725 (10 1001 · · 1552 - - 1455 - - 676 655 973 735 619 1021 Mov Cap-2 Maneuver - - - - - - 676 655 - 735 619 - Stage 1 - - - - - - 907 812 - 858 773 - Stage 2 - - - - - - 818 770 - 921 774 - Approach EB WB NB SB HCM Control Delay, s/v 0.39 3.34 10.42 10.37 HCM LOS В В Minor Long/Maior Mary IDI1 EDI EDT EDD WDI MDT MDD CDL1 Minor Lane/Major Mvmt - 1 VBLn1 EBL EBT EBR WBL WBT WBR: Capacity (veh/h) 758 1552 - - 770 - - , HCM Lane V/C Ratio 0.005 - - 0.026 - 0.075 HCM Control Delay (s/ve eh) 10.4 7.3 - - 7.5 0 - HCM Lane LOS В Α - - Α Α - В HCM 95th %tile Q(veh) 0.4 0 - - 0.1 - - 0.2
Intersection Intersection Delay, s/veh 7.6 Intersection LOS Α Movement EBL EBT EBR WBL WBT WBR NBL NBT NBR SBL SBT SBR Lane Configurations 4 4 4 4 Traffic Vol, veh/h 58 15 2 4 10 5 1 48 2 4 37 55 Future Vol, veh/h 58 15 2 4 10 5 1 48 2 4 37 55 Peak Hour Factor 0.89 0.89 0.89 0.89 0.89 0.89 0.89 0.89 0.89 0.89 0.89 0.89 Heavy Vehicles, % 4 2 2 2 2 2 2 2 2 2 2 2 Mvmt Flow 65 17 2 4 11 6 1 54 2 4 42 62 Number of Lanes 0 1 0 0 1 0 0 1 0 0 1 0 Approach EB WB NB SB Opposing Approach WB EB SB NB Opposing Lanes 1 1 1 1 Conflicting Approach Left SB NB EB WB Conflicting Lanes Left 1 1 1 1 Conflicting Approach Right NB SB WB EB Conflicting Lanes Right 1 1 1 1 HCM Control Delay, s/veh 8 7.4 7.6 7.4 HCM LOS Α Α Α Α Lane NBLn1 EBLn1 WBLn1 SBLn1 Vol Left, % 2% 77% 21% 4% Vol Thru, % 94% 20% 53% 39% Vol Right, % 4% 3% 26% 57% Sign Control Stop Stop Stop Stop Traffic Vol by Lane 51 75 19 96 LT Vol 1 58 4 4 Through Vol 48 15 10 37 RT Vol 2 2 5 55 Lane Flow Rate 57 84 21 108 Geometry Grp 1 1 1 1 Degree of Util (X) 0.067 0.103 0.025 0.115 Departure Headway (Hd) 4.182 4.409 4.17 3.826 Convergence, Y/N Yes Yes Yes Yes Cap 845 805 845 923 Service Time 2.266 2.482 2.264 1.907 HCM Lane V/C Ratio 0.067 0.104 0.025 0.117 HCM Control Delay, s/veh 7.6 8 7.4 7.4 HCM Lane LOS А Α А Α HCM 95th-tile Q 0.2 0.3 0.1 0.4
HCM 7th Signalized Intersection Summary 7: Forrest St/Fraser St & Norcross St Build 2028 Conditions - PM Peak Hour ٠ → • • ← • 1 † - / ţ 1 Movement E EBL EBT EBR WBL WBT WBR NBL NBT NBR SBL SBT SBR Lane Configurations 4 7 4 4 4 Traffic Volume (veh/h) 6 324 12 38 442 75 12 72 49 113 55 6 Future Volume (veh/h) 6 324 12 38 442 75 12 72 49 113 55 6 Initial Q (Qb), veh 0 0 0 0 0 0 0 0 0 0 0 0 . , 1.00 1.00 1.00 1.00 1.00 1.00 1.00 1.00 1.00 1.00 1.00 1.00 ).99 0.98 0.99 0.98 0.99 0.99 0.99 0.99 , -ı , 1.00 1.00 1.00 1.00 1.00 1.00 1.00 1.00 1.00 1.00 1.00 1.00 Work Zone On Approach No No No No • • 648 1856 1870 1870 1870 1870 1870 1796 1870 1870 1870 1870 Adj Flow Rate, veh/h 6 345 13 40 470 80 13 77 52 120 59 6 ).94 0.94 0.94 0.94 0.94 0.94 0.94 0.94 0.94 0.94 0.94 0.94 Percent Heavy Veh, % 17 3 2 2 2 2 2 7 2 2 2 2 Cap, veh/h 67 723 608 93 574 94 94 394 242 461 210 19 0.39 0.39 0.39 0.39 0.39 0.39 0.40 0.40 0.40 0.40 0.40 0.40 Sat Flow, veh/h 7 1839 1547 66 1459 239 62 985 605 893 524 48 351 0 13 590 0 0 142 0 0 185 0 0 Grp Sat Flow(s), veh/h/ln1 0 1547 1764 0 0 1652 0 0 1465 0 0 0.0 0.0 0.3 7.4 0.0 0.0 0.0 0.0 0.0 0.9 0.0 0.0 8.1 0.0 0.3 17.2 0.0 0.0 3.2 0.0 0.0 4.1 0.0 0.0 3 7: 0.02 1.00 0.07 0.14 0.09 0.37 0.65 0.03 790 0 608 761 0 0 730 0 0 690 0 0 0.44 0.00 0.02 0.78 0.00 0.00 0.19 0.00 0.00 0.27 0.00 0.00 885 0 689 851 0 0 730 0 0 690 0 0 1 1 - 7: 1.00 1.00 1.00 1.00 1.00 1.00 1.00 1.00 1.00 1.00 1.00 1.00 Upstream Filter(I) 1 1.00 0.00 1.00 1.00 0.00 0.00 1.00 0.00 0.00 1.00 0.00 0.00 Uniform Delay (d), s/veh 1 12.9 0.0 10.6 15.6 0.0 0.0 11.2 0.0 0.0 11.4 0.0 0.0 3 0.5 0.0 0.0 4.3 0.0 0.0 0.6 0.0 0.0 1.0 0.0 0.0 Initial Q Delay(d3), s/veh 0.0 0.0 0.0 0.0 0.0 0.0 0.0 0.0 0.0 0.0 0.0 0.0 %ile BackOfQ(50%),veh/li 0.0 0.1 6.6 0.0 0.0 1.2 0.0 0.0 1.6 0.0 0.0 Unsig. Movement Delay, s s/veh LnGrp Delay(d), s/veh 1 13.4 0.0 10.6 19.9 0.0 0.0 11.8 0.0 0.0 12.4 0.0 0.0 LnGrp LOS В В В В В Approach Vol, veh/h 364 590 142 185 Approach Delay, s/veh 13.3 19.9 11.8 12.4 Approach LOS В В В В Timer - Assigned Phs 2 4 6 8 Phs Duration (G+Y+Rc), s S 29.0 28.0 29.0 28.0 Change Period (Y+Rc), s 6.2 5.6 6.2 5.6 Max Green Setting (Gmax 22.8 25.4 22.8 25.4 Max Q Clear Time (gc+l´ 1), s 5.2 10.1 6.1 19.2 Green Ext Time (pc), s 1.3 2.2 1.7 2.3 Intersection Summary HCM 7th Control Delay, s. /veh 16.0 HCM 7th LOS В Notes User approved pedestrian . ! aval ta k no loco than nh aco ma v groor Synchro 12 Report 6/16/2025 Kimley-Horn Page 7
Intersection Int Delay, s/veh 0.1 LDD WDI WDT NDI NDD Movement EBT EBR WBL WBT NBL NBR Lane Configurations 7 0 • 4 Y Traffic Vol, veh/h 119 0 0 99 1 1 Future Vol, veh/h 119 0 0 99 1 1 Conflicting Peds, #/hr 0 0 0 0 0 0 Sign Control Free Free Free Free Stop Stop RT Channelized - None - None - None Storage Length - - - - 0 - Veh in Median Storag e,# 0 - - 0 0 - Grade, % 0 - - 0 0 - Peak Hour Factor 97 97 97 97 97 97 Heavy Vehicles, % 2 2 2 2 2 2 Mymt Flow 123 0 0 102 1 1 IVIVIIIL I IOW 123 U U 102 Major/Minor Major1 Major2 Minor1 Conflicting Flow All 0 0 123 0 225 123 Stage 1 - - - - 123 - Stage 2 102 - Critical Hdwy 4.12 6.42 6.22 Critical Hdwy Stg 1 7.12 5.42 0.22 Critical Hdwy Stg 2 - - - 5.42 - - 2.218 3.518 Follow-up Hdwy - - Pot Cap-1 Maneuver - - 1464 - 763 928 Stage 1 - - - - 903 - Stage 2 - - - - 922 - Platoon blocked, % - - - Mov Cap-1 Maneuver - 1464 - 763 928 Mov Cap-2 Maneuver - - - - 763 - Stage 1 - - - - 903 - Stage 2 - - 922 Olugo Z ,,, Approach EB WB NB HCM Control Delay, s /v 0 0 9.31 HCM LOS Α Minor Lane/Major Mvr nt NBLn1 EBT EBR WBL WBT Capacity (veh/h) 838 - - 1464 - HCM Lane V/C Ratio 0.002 - - - - HCM Control Delay (s /veh) 9.3 - - 0 - HCM Lane LOS Α - - Α - HCM 95th %tile Q(veh 1) 0 - - 0 - ,
Intersection Int Delay, s/veh 2.3 Movement EBL EBR NBL NBT SBT SBR Lane Configurations ₩. LDIX NDL 4 7 ODIC Traffic Vol, veh/h 44 4 4 34 78 50 Future Vol, veh/h 44 4 4 34 78 50 Conflicting Peds, #/hr 0 0 0 0 0 0 Sign Control Stop Free Free Free Free RT Channelized Stop None None None - None - - None Storage Length 0 - - - - - Veh in Median Storage - - 0 0 - Grade, % 0 - - 0 0 - Peak Hour Factor 83 83 83 83 83 83 Heavy Vehicles, % 2 2 2 3 2 2 Mvmt Flow 53 5 5 41 94 60 Major/Minor Minor2 1 Major1 N /lajor2 Conflicting Flow All 175 124 154 0 - najorz 0 Stage 1 173 124 134 - - Stage 2 51 - - - - - Critical Hdwy 6.42 6.22 4.12 - - - 0.22 4.12 - - - Critical Hdwy Stg 1 5.42 - - - - - Critical Hdwy Stg 2 5.42 - - - - - Follow-up Hdwy 3.318 - - - Pot Cap-1 Maneuver 815 927 1426 - - - Stage 1 901 - - - - - Stage 2 972 - - - - - Platoon blocked, % - - - Mov Cap-1 Maneuver 812 927 1426 - - - Mov Cap-2 Maneuver 812 - - - - - Stage 1 898 - - - - - Stage 2 972 - - - - - Annroach ED NID CD Approach EB NB SB HCM Control Delay, s/ 0.79 0 HCM LOS A Minor Lane/Major Mvn nt NBL NRT EBLn1 SBT SBR Capacity (veh/h) 189 - 821 - - HCM Lane V/C Ratio 0.003 - 0.07 - - HCM Control Delay (s (voh) 7.5 0 9.7 - - HCM Lane LOS ven) 9.7 A 1) A А 0.2 - - HCM 95th %tile Q(veh l) 0 - 0.2 - -
Intersection Int Delay, s/veh 3.5 Movement EBL EBT EBR WBL WBT WBR NBL NBT NBR SBL SBT SBR Lane Configurations 4 4 4 4 Traffic Vol, veh/h 21 55 8 17 134 6 23 5 17 9 6 23 Future Vol, veh/h 21 55 8 17 134 6 23 5 17 9 6 23 Conflicting Peds, #/hr 4 0 4 4 0 4 0 0 2 2 0 0 Sign Control Free Free Free Free Free Free Stop Stop Stop Stop Stop Stop RT Channelized - - None - - None - - None - - None Storage Length - - - - - - - - - - - - Veh in Median Storage ,# - 0 - - 0 - - 0 - - 0 - Grade, % - 0 - - 0 - - 0 - - 0 - Peak Hour Factor 94 94 94 94 94 94 94 94 94 94 94 94 Heavy Vehicles, % 2 2 2 2 2 2 2 2 2 2 2 2 Mvmt Flow 22 59 9 18 143 6 24 5 18 10 6 24 Major/Minor N Anior1 Majora Minor1 Minor2 Major1 ^ Major2 ^ 201 202 150 Conflicting Flow All 153 0 0 71 0 0 293 301 69 294 302 150 Stage 1 - - - - - - 111 111 - 186 186 - Stage 2 - 410 - - 110 - - 182 189 - / 22 108 116 / 00 Critical Hdwy 4.12 - - 4.12 - - 7.12 6.52 6.22 7.12 6.52 6.22 Critical Hdwy Stg 1 - - - - - - 6.12 5.52 - 6.12 5.52 - Critical Hdwy Stg 2 - - - - - - 6.12 5.52 - 6.12 5.52 - 2.218 - - 2.218 - - 3.518 4.018 3.318 3.518 4.018 3.318 Pot Cap-1 Maneuver 1428 - - 1529 - - 659 612 994 658 611 897 Stage 1 - - - - - - 894 803 - 816 746 - Stage 2 - - - - - - 820 744 - 898 800 - Platoon blocked, % - - 4 - - , Mov Cap-1 Maneuver 1422 - - 1524 - - 613 590 989 619 589 893 Mov Cap-2 Maneuver - - - - - - 613 590 - 619 589 - Stage 1 - - - - - - 876 787 - 802 734 - Stage 2 - - - - - - 780 731 - 859 784 - Approach EB WB NB SB HCM Control Delay, s/\ 0.8 10.42 10.05 HCM LOS 1.07 0.0 В В TIOWI EOU J J Minor Lane/Major Mvm t NBLn1 EBL EBT EBR WBL WBT WBR: Capacity (veh/h) 712 439 - - 193 - - , 00 HCM Lane V/C Ratio 0.067 0.016 - - 0.012 - - 0.054 HCM Control Delay (s/\ veh) 10.4 7.6 0 - 7.4 0 - 10.1 HCM Lane LOS В Α Α - Α Α - В HCM 95th %tile Q(veh) 0.2 0 - - 0 - - 0.2
HCM Signalized Intersection Capacity Analysis 1: GA-9/Canton St & Magnolia St/GA-9 Atlanta St IMP No Build 2025 Conditions - AM Peak Hour • → • 1 ← • 1 † - - ļ 4 Movement EBL EBT EBR WBL WBT WBR NBL NBT NBR SBL SBT SBR Lane Configurations 41∳ 7 ሻሻ f, * ĵ. 7 ^ 7 Traffic Volume (vph) 51 431 121 870 237 0 36 224 547 0 355 35 Future Volume (vph) 51 431 121 870 237 0 36 224 547 0 355 35 Ideal Flow (vphpl) 1900 1900 1900 1900 1900 1900 1900 1900 1900 1900 1900 1900 Total Lost time (s) 6.3 6.3 6.7 6.7 6.3 6.2 6.7 6.2 6.2 Lane Util. Factor 0.95 1.00 0.97 1.00 1.00 0.95 0.95 0.95 1.00 Frpb, ped/bikes 1.00 0.99 1.00 1.00 1.00 1.00 1.00 1.00 0.98 Flpb, ped/bikes 1.00 1.00 1.00 1.00 1.00 1.00 1.00 1.00 1.00 Frt 1.00 0.85 1.00 1.00 1.00 0.93 0.85 1.00 0.85 Flt Protected 0.99 1.00 0.95 1.00 0.95 1.00 1.00 1.00 1.00 Satd. Flow (prot) 3512 1562 3367 1827 1655 1616 1504 3471 1488 Flt Permitted 0.87 1.00 0.95 1.00 0.39 1.00 1.00 1.00 1.00 Satd. Flow (perm) 3076 1562 3367 1827 671 1616 1504 3471 1488 Peak-hour factor, PHF 0.96 0.96 0.96 0.96 0.96 0.96 0.96 0.96 0.96 0.96 0.96 0.96 Adj. Flow (vph) 53 449 126 906 247 0 38 233 570 0 370 36 RTOR Reduction (vph) 0 0 88 0 0 0 0 18 20 0 0 29 Lane Group Flow (vph) 0 502 38 906 247 0 38 403 362 0 370 7 Confl. Peds. (#/hr) 2 1 1 2 1 1 Heavy Vehicles (%) 4% 2% 2% 4% 4% 2% 9% 6% 2% 2% 4% 6% Turn Type Perm NA Perm Split NA pm+pt NA pt+ov NA Perm Protected Phases 4 3 3 1 6 3 6 2 Permitted Phases 4 4 6 2 Actuated Green, G (s) 31.4 31.4 62.4 62.4 47.0 47.0 115.6 28.9 28.9 Effective Green, g (s) 31.4 31.4 62.4 62.4 47.0 47.0 109.4 28.9 28.9 Actuated g/C Ratio 0.20 0.20 0.39 0.39 0.29 0.29 0.68 0.18 0.18 Clearance Time (s) 6.3 6.3 6.7 6.7 6.3 6.2 6.2 6.2 Vehicle Extension (s) 4.0 4.0 6.0 6.0 3.0 5.0 5.0 5.0 Lane Grp Cap (vph) 603 306 1313 712 269 474 1028 626 268 v/s Ratio Prot c0.27 0.14 0.01 c0.25 0.24 0.11 v/s Ratio Perm c0.16 0.02 0.03 0.00 v/c Ratio 0.83 0.12 0.69 0.35 0.14 0.85 0.35 0.59 0.02 Uniform Delay, d1 61.8 53.0 40.7 34.4 49.1 53.2 10.5 60.1 53.9 Progression Factor 1.00 1.00 1.00 1.00 1.54 1.34 0.51 1.00 1.00 Incremental Delay, d2 10.0 0.2 3.0 1.3 0.2 14.3 0.4 2.3 0.1 Delay (s) 71.8 53.2 43.7 35.8 75.6 85.5 5.8 62.4 54.0 Level of Service Е D D D Е F Α Е D Approach Delay (s/veh) 68.0 42.0 48.9 61.6 Approach LOS E D D E Intersection Summary HCM 2000 Control Delay (s. • 51.9 H CM 2000 Level of Service D HCM 2000 Volume to Capa city ratio 0.81 Actuated Cycle Length (s) 160.0 um of lost 25.5 Intersection Capacity Utiliza tion 80.6% IC U Level of Service ) D Analysis Period (min) 15 c Critical Lane Group c Critical Lane Group
Intersection Int Delay, s/veh 0.5 Movement EBL EBT EBR WBL WBT WBR NBL NBT NBR SBL SBT SBR Lane Configurations 7 · · · · · 1101 ٦ † HUIT ) † ODIT Traffic Vol, veh/h 0 0 68 0 0 15 2 816 42 32 1328 23 Future Vol, veh/h 0 0 68 0 0 15 2 816 42 32 1328 23 Conflicting Peds, #/hr 10 0 0 0 0 10 6 010 0 0 0 6 Sign Control Stop Stop Stop Stop Stop Stop Free Free Free Free Free Free RT Channelized Jiop - Jiop - None - Siup - - Yield - - None - - None Storage Length 0 0 115 - 100 TVOITE Veh in Median Storage 0 - 0 - - 0 - 0 Grade, % - 0 0 0 0 Peak Hour Factor 93 93 93 93 93 93 93 93 93 93 93 93 Heavy Vehicles, % 2 8 2 2 2 2 2 3 2 6 4 2 Mymt Flow 0 0 73 0 0 16 2 877 45 34 1428 25 VIVIIIL I IOVV U U 13 U U 10 077 45 34 1420 20 _ Minor2 Minor1 Major1 Major2 Conflicting Flow All - - 732 - - 471 1459 0 0 923 0 0 Stage 1 - - - - - - - - - - - - Stage 2 - - - - - - - - - - - - Critical Hdwy - - 6.94 - - 6.94 4.14 - - 4.22 - - Critical Hdwy Stg 1 - - - - - - - - - - - - Critical Hdwy Stg 2 - - - - - - - - - - - - Follow-up Hdwy - - 3.32 - - 3.32 2.22 - - 2.26 - - Pot Cap-1 Maneuver 0 0 713 0 0 858 609 - - 912 - - Stage 1 0 0 - 0 0 - - - - - - - Stage 2 0 0 - 0 0 - - - - - - - Platoon blocked, % 0 0 0 - - 0 - - Mov Cap-1 Maneuver - - 709 - - 850 606 - - 912 - - Mov Cap-2 Maneuver - - - - - - - - - - - - Stage 1 - - - - - - - - - - - - Stage 2 - - - - - - - - - - - - Approach EB WB NB SB HCM Control Delay, s/v v10.66 9.32 0.03 0.21 HCM LOS В Α Minor Lane/Major Mvm nt NBL NBT NBR E EBLn1V VBLn1 SBL SBT SBR Capacity (veh/h) 606 - - 709 850 912 - - HCM Lane V/C Ratio 0.004 - - 0.019 - - HCM Control Delay (s/ veh) 11 - - 10.7 9.3 9.1 - - HCM Lane LOS В - - В Α Α - - HCM 95th %tile Q(veh) ) 0 - - 0.3 0.1 0.1 - - Notes i - · ф. D- lov, see- ood= 20 200 Carr nutella. Not D ofine d . AU moler olurs s. n nlots sis : Volume exceeds cap bacity \$: De eray exc eeds 30 JUS +: Com putatior i Not De erinea : All major v volume ii n platoon
HCM 7th Signalized Intersection Summary 3: GA-9 Atlanta St/GA-9 & Private Dwy/Oak St IMP No Build 2025 Conditions - AM Peak Hour ٠ → • • ← • 1 † ~ / ţ 4 Movement EBL EBT EBR WBL WBT WBR NBL NBT NBR SBL SBT SBR Lane Configurations 4 ĵ, 4 15 4₽ 7 Traffic Volume (veh/h) 4 1 0 54 7 35 0 798 33 17 1309 41 Future Volume (veh/h) 4 1 0 54 7 35 0 798 33 17 1309 41 Initial Q (Qb), veh 0 0 0 0 0 0 0 0 0 0 0 0 Lane Width Adj. 1.00 1.00 1.00 1.00 1.00 1.00 1.00 1.00 1.00 1.00 1.00 1.00 Ped-Bike Adj(ApbT) 0.99 1.00 0.99 0.99 1.00 1.00 1.00 1.00 Parking Bus, Adj 1.00 1.00 1.00 1.00 1.00 1.00 1.00 1.00 1.00 1.00 1.00 1.00 Work Zone On Approach No No No No Adj Sat Flow, veh/h/ln 1870 1870 1870 1841 1870 1856 1870 1856 1811 1826 1856 1870 Adj Flow Rate, veh/h 4 1 0 58 8 38 0 858 35 18 1408 44 Peak Hour Factor 0.93 0.93 0.93 0.93 0.93 0.93 0.93 0.93 0.93 0.93 0.93 0.93 Percent Heavy Veh, % 2 2 2 4 2 3 2 3 6 5 3 2 Cap, veh/h 80 16 0 139 17 82 0 2982 122 43 2930 1368 Arrive On Green 0.06 0.06 0.00 0.06 0.06 0.06 0.00 1.00 1.00 1.00 1.00 1.00 Sat Flow, veh/h 634 253 0 1383 281 1334 0 3545 141 23 3391 1583 Grp Volume(v), veh/h 5 0 0 58 0 46 0 438 455 758 668 44 Grp Sat Flow(s), veh/h/ln 887 0 0 1383 0 1615 0 1763 1830 1810 1604 1583 Q Serve(gs), s 0.0 0.0 0.0 1.1 0.0 4.4 0.0 0.0 0.0 0.0 0.0 0.0 Cycle Q Clear(gc), s 4.4 0.0 0.0 5.5 0.0 4.4 0.0 0.0 0.0 0.0 0.0 0.0 Prop In Lane 0.80 0.00 1.00 0.83 0.00 0.08 0.02 1.00 Lane Grp Cap(c), veh/h 95 0 0 139 0 100 0 1523 1581 1587 1386 1368 V/C Ratio(X) 0.05 0.00 0.00 0.42 0.00 0.46 0.00 0.29 0.29 0.48 0.48 0.03 Avail Cap(ca), veh/h 311 0 0 348 0 343 0 1523 1581 1587 1386 1368 HCM Platoon Ratio 1.00 1.00 1.00 1.00 1.00 1.00 2.00 2.00 2.00 2.00 2.00 2.00 Upstream Filter(I) 1.00 0.00 0.00 1.00 0.00 1.00 0.00 0.82 0.82 1.00 1.00 1.00 Uniform Delay (d), s/veh 70.7 0.0 0.0 72.9 0.0 72.5 0.0 0.0 0.0 0.0 0.0 0.0 Incr Delay (d2), s/veh 0.4 0.0 0.0 3.4 0.0 5.6 0.0 0.4 0.4 1.0 1.2 0.0 Initial Q Delay(d3), s/veh 0.0 0.0 0.0 0.0 0.0 0.0 0.0 0.0 0.0 0.0 0.0 0.0 %ile BackOfQ(50%),veh/ln 0.2 0.0 0.0 2.5 0.0 2.0 0.0 0.2 0.2 0.5 0.5 0.0 Unsig. Movement Delay, s/veh LnGrp Delay(d), s/veh 71.1 0.0 0.0 76.3 0.0 78.1 0.0 0.4 0.4 1.0 1.2 0.0 LnGrp LOS Е Е Е Α Α Α Α Α Approach Vol, veh/h 5 104 893 1470 Approach Delay, s/veh 71.1 77.1 0.4 1.1 Approach LOS E Е Α Α Timer - Assigned Phs 2 4 6 8 Phs Duration (G+Y+Rc), s 144.1 15.9 144.1 15.9 Change Period (Y+Rc), s 5.9 6.0 5.9 6.0 Max Green Setting (Gmax), s 1 .1E+02 34.0 1 .1E+02 34.0 Max Q Clear Time (gc+I1), s 2.0 7.5 2.0 6.4 Green Ext Time (pc), s 60.3 0.7 22.7 0.0 Intersection Summary HCM 7th Control Delay, s/veh 4.2 HCM 7th LOS А Notes HCM 7th computational engir ne requir es equal clearance times for r the phas ses crossi ng the ba rrier. Synchro 12 Report 06/16/2025 Kimley-Horn Page 5
HCM Signalized Intersection Capacity Analysis 1: GA-9/Canton St & Magnolia St/GA-9 Atlanta St IMP No Build 2028 Conditions - PM Peak Hour • → • 1 ← • 1 † - - ţ 1 Movement EBL EBT EBR WBL WBT WBR NBL NBT NBR SBL SBT SBR Lane Configurations 41 7 76 ħ * f, 7 ^ 7 Traffic Volume (vph) 83 264 44 755 430 17 153 331 678 0 245 95 Future Volume (vph) 83 264 44 755 430 17 153 331 678 0 245 95 Ideal Flow (vphpl) 1900 1900 1900 1900 1900 1900 1900 1900 1900 1900 1900 1900 Total Lost time (s) 6.3 6.3 6.7 6.7 6.3 6.2 6.7 6.2 6.2 Lane Util. Factor 0.95 1.00 0.97 1.00 1.00 0.95 0.95 0.95 1.00 Frpb, ped/bikes 1.00 1.00 1.00 1.00 1.00 0.99 1.00 1.00 1.00 Flpb, ped/bikes 1.00 1.00 1.00 1.00 1.00 1.00 1.00 1.00 1.00 Frt 1.00 0.85 1.00 0.99 1.00 0.94 0.85 1.00 0.85 Flt Protected 0.99 1.00 0.95 1.00 0.95 1.00 1.00 1.00 1.00 Satd. Flow (prot) 3498 1568 3433 1852 1770 1657 1504 3539 1583 Flt Permitted 0.73 1.00 0.95 1.00 0.47 1.00 1.00 1.00 1.00 Satd. Flow (perm) 2601 1568 3433 1852 878 1657 1504 3539 1583 Peak-hour factor, PHF 0.95 0.95 0.95 0.95 0.95 0.95 0.95 0.95 0.95 0.95 0.95 0.95 Adj. Flow (vph) 87 278 46 795 453 18 161 348 714 0.70 258 100 RTOR Reduction (vph) 0 0 38 0 1 0 0 12 57 0 0 88 Lane Group Flow (vph) 0 365 8 795 470 0 161 543 450 0 258 12 Confl. Peds. (#/hr) 000 770 170 101 0.10 5 5 200 12 Heavy Vehicles (%) 2% 2% 3% 2% 2% 2% 2% 2% 2% 2% 2% 2% Turn Type Perm NA Perm Split NA 270 pm+pt NA pt+ov 270 NA Perm Protected Phases 1 Cilli 4 1 Cilli 3 3 1 6 3 6 2 1 CIIII Permitted Phases 4 4 6 _ 2 Actuated Green, G (s) • 28.4 28.4 63.3 63.3 49.1 49.1 118.6 19.5 19.5 Effective Green, g (s) 28.4 28.4 63.3 63.3 49.1 49.1 112.4 19.5 19.5 Actuated g/C Ratio 0.18 0.18 0.40 0.40 0.31 0.31 0.70 0.12 0.12 Clearance Time (s) 6.3 6.3 6.7 6.7 6.3 6.2 00 6.2 6.2 Vehicle Extension (s) 4.0 4.0 6.0 6.0 3.0 5.0 5.0 5.0 Lane Grp Cap (vph) 461 278 1358 732 399 508 1056 431 192 v/s Ratio Prot 101 270 0.23 c0.25 0.06 c0.33 0.30 0.07 1,72 v/s Ratio Perm c0.14 0.01 0.20 00.20 0.07 00.00 0.00 0.07 0.01 v/c Ratio 0.79 0.03 0.59 0.64 0.40 1.07 0.43 0.60 0.06 Uniform Delay, d1 63.0 54.4 38.0 39.2 49.4 55.5 10.1 66.5 62.2 Progression Factor 1.00 1.00 1.00 1.00 0.64 0.60 1.28 1.00 1.00 Incremental Delay, d2 9.5 0.1 1.9 4.3 0.6 58.1 0.5 3.4 0.3 Delay (s) 72.5 54.5 39.9 43.5 32.3 91.2 13.4 69.9 62.5 Level of Service E D D D С F В E E Approach Delay (s/veh) 70.5 41.2 51.2 67.8 Approach LOS E D D E Intersection Summary HCM 2000 Control Delay (s /veh) 51.6 Н CM 2000 Level of Service D HCM 2000 Volume to Capa 0.86 Actuated Cycle Length (s) , 160.0 S um of lost t time (s) 25.5 Intersection Capacity Utiliza ntion 87.8% CU Level 9 E Analysis Period (min) 15 c Critical Lane Group c Critical Lane Group Synchro 12 Report 06/16/2025
Intersection Int Delay, s/veh 0.5 Movement EBL EBT EBR WBL WBT WBR NBL NBT NBR SBL SBT SBR Lane Configurations LDL בטו 7 WDL WDI 7 ٦ † NDIX ) N † ‡ ODIT Fraffic Vol, veh/h 0 0 18 0 0 39 47 1133 18 24 1041 45 future Vol, veh/h 0 0 18 0 0 39 47 1133 18 24 1041 45 Conflicting Peds, #/hr 9 0 0 0 0 9 5 0 2 2 0 5 Sign Control Stop Stop Stop Stop Stop Stop Free Free Free Free Free Free RT Channelized - - None - - Yield - - None - - None Storage Length - 0 - 0 115 - 100 - - /eh in Median Storage e, # - 0 - 0 - - 0 - - 0 - Grade, % - 0 - - 0 - - 0 - - 0 - eak Hour Factor 97 97 97 97 97 97 97 97 97 97 97 97 leavy Vehicles, % 2 2 2 2 2 2 2 2 6 5 2 2 Nvmt Flow 0 0 19 0 0 40 48 1168 19 25 1073 46 Major/Minor Minor2 Minor1 Major1 Major2 Major/Minor I Conflicting Flow All viii iUl Z 565 - 101111 604 Major1 1125 0 0 1189 0 0 Stage 1 - - 303 - - 004 1125 - U 1109 - - Stage 2 - - - - - - - - - - - - Critical Hdwy - - 6.94 - - 6.94 4.14 - - 4.2 - critical Hdwy Stg 1 - 0.74 - 0.74 4.14 - - 4.2 - - Critical Hdwy Stg 2 Follow-up Hdwy 3.32 3.32 2.22 2.25 - Pot Cap-1 Maneuver 0 0 792 0 0 766 820 777 Stage 1 0 0 - 0 0 - - - Stage 2 0 0 0 0 latoon blocked, % 0 0 0 0 Nov Cap-1 Maneuver 788 - 758 817 - 775 Nov Cap-2 Maneuver - - - - _ - Stage 1 - - - - - - - - - - - - Stage 2 - - - - - - - - - - - - J. J. approach EB WB NB SB 10.02 0.38 0.21 HCM Control Delay, s/ HCM LOS v 9.08 A 10.02 B 0.30 U.Z I ICIVI EOS ٨ D dinor Long/Maiar M. NDI NDT NDD I TDI 414 VDL1 CDI CDT CDD Minor Lane/Major Mvm IL NBL NBT MRK F EBLn1V SBL SBT SBR Capacity (veh/h) 817 - - 788 758 775 - - CM Cantral Dalay (a) . . . . . . . . . . . . . \ 0.059 - - 0.053 - - ICM Control Delay (s/ ven) 9.7 - - 9.7 10 9.8 - - ICM DEth (/tile O(yoh) \ A - - Α В Α - - HCM 95th %tile Q(veh) ) 0.2 - - 0.1 0.2 0.1 - - Votes : Volume exceeds cap oacity \$: De lay exc eeds 30 00s +: Com putation Not De efined *: All major v olume ir platoon
HCM 7th Signalized Intersection Summary 3: GA-9 Atlanta St/GA-9 & Private Dwy/Oak St IMP No Build 2028 Conditions - PM Peak Hour ٠ → • • ← • 1 † - - ţ 1 Movement EBL EBT EBR WBL WBT WBR NBL NBT NBR SBL SBT SBR Lane Configurations 4 ĵ, 413 414 7 Traffic Volume (veh/h) 2 1 3 81 3 61 0 1119 47 11 1048 9 Future Volume (veh/h) 2 1 3 81 3 61 0 1119 47 11 1048 9 Initial Q (Qb), veh 0 0 0 0 0 0 0 0 0 0 0 0 Lane Width Adj. 1.00 1.00 1.00 1.00 1.00 1.00 1.00 1.00 1.00 1.00 1.00 1.00 Ped-Bike Adj(ApbT) 1.00 1.00 1.00 1.00 1.00 1.00 1.00 1.00 Parking Bus, Adj 1.00 1.00 1.00 1.00 1.00 1.00 1.00 1.00 1.00 1.00 1.00 1.00 Work Zone On Approach No No No No Adj Sat Flow, veh/h/ln 1870 1870 1870 1870 1870 1856 1870 1870 1870 1870 1870 1870 Adj Flow Rate, veh/h 2 1 3 84 3 64 0 1166 49 11 1092 9 Peak Hour Factor 0.96 0.96 0.96 0.96 0.96 0.96 0.96 0.96 0.96 0.96 0.96 0.96 Percent Heavy Veh, % 2 2 2 2 2 3 2 2 2 2 2 2 Cap, veh/h 52 31 53 155 6 128 0 2925 123 35 2885 1334 Arrive On Green 0.08 0.08 0.08 0.08 0.08 0.08 0.00 1.00 1.00 1.00 1.00 1.00 Sat Flow, veh/h 265 372 637 1412 71 1524 0 3568 146 15 3428 1584 Grp Volume(v), veh/h 6 0 0 84 0 67 0 596 619 585 518 9 Grp Sat Flow(s),veh/h/ln 1274 0 0 1412 0 1596 0 1777 1844 1825 1617 1584 Q Serve(gs), s 0.0 0.0 0.0 3.8 0.0 6.4 0.0 0.0 0.0 0.0 0.0 0.0 Cycle Q Clear(gc), s 6.4 0.0 0.0 10.3 0.0 6.4 0.0 0.0 0.0 0.0 0.0 0.0 Prop In Lane 0.33 0.50 1.00 0.96 0.00 0.08 0.02 1.00 Lane Grp Cap(c), veh/h 137 0 0 155 0 134 0 1496 1552 1560 1361 1334 V/C Ratio(X) 0.04 0.00 0.00 0.54 0.00 0.50 0.00 0.40 0.40 0.38 0.38 0.01 Avail Cap(ca), veh/h 429 0 0 425 0 439 0 1496 1552 1560 1361 1334 HCM Platoon Ratio 1.00 1.00 1.00 1.00 1.00 1.00 2.00 2.00 2.00 2.00 2.00 2.00 Upstream Filter(I) 1.00 0.00 0.00 1.00 0.00 1.00 0.00 0.51 0.51 1.00 1.00 1.00 Uniform Delay (d), s/veh 67.4 0.0 0.0 72.0 0.0 70.1 0.0 0.0 0.0 0.0 0.0 0.0 Incr Delay (d2), s/veh 0.2 0.0 0.0 5.0 0.0 4.9 0.0 0.4 0.4 0.7 8.0 0.0 Initial Q Delay(d3), s/veh 0.0 0.0 0.0 0.0 0.0 0.0 0.0 0.0 0.0 0.0 0.0 0.0 %ile BackOfQ(50%),veh/ln 0.2 0.0 0.0 3.6 0.0 2.8 0.0 0.2 0.2 0.3 0.3 0.0 Unsig. Movement Delay, s/veh LnGrp Delay(d), s/veh 67.6 0.0 0.0 77.0 0.0 75.0 0.0 0.4 0.4 0.7 0.8 0.0 LnGrp LOS E Е E Α А А А Α Approach Vol, veh/h 6 151 1215 1112 Approach Delay, s/veh 67.6 76.1 0.4 0.7 Approach LOS Е E Α Α Timer - Assigned Phs 2 4 6 8 Phs Duration (G+Y+Rc), s 140.6 19.4 140.6 19.4 Change Period (Y+Rc), s 5.9 6.0 5.9 6.0 Max Green Setting (Gmax), s , 1E+02 44.0 , 1E+02 44.0 Max Q Clear Time (gc+l1), s 2.0 12.3 2.0 8.4 Green Ext Time (pc), s 34.2 1.2 40.5 0.0 Intersection Summary HCM 7th Control Delay, s/veh 5.3 HCM 7th LOS Α Notes HCM 7th computational engin ne requir es equal clearance times for the phas ses crossi ng the ba rrier. Synchro 12 Report 06/16/2025 Kimley-Horn Page 5
HCM Signalized Intersection Capacity Analysis 1: GA-9/Canton St & Magnolia St/GA-9 Atlanta St IMP Build 2025 Conditions - AM Peak Hour • → • 1 ← • 1 † 1 - ţ 1 Movement EBL EBT EBR WBL WBT WBR NBL NBT NBR SBL SBT SBR Lane Configurations 41∱ 7 ሻሻ ħ * ĵ, 7 ^ 7 Traffic Volume (vph) 51 431 143 892 237 0 52 232 564 0 364 35 Future Volume (vph) 51 431 143 892 237 0 52 232 564 0 364 35 Ideal Flow (vphpl) 1900 1900 1900 1900 1900 1900 1900 1900 1900 1900 1900 1900 Total Lost time (s) 6.3 6.3 6.7 6.7 6.3 6.2 6.7 6.2 6.2 Lane Util. Factor 0.95 1.00 0.97 1.00 1.00 0.95 0.95 0.95 1.00 Frpb, ped/bikes 1.00 0.99 1.00 1.00 1.00 1.00 1.00 1.00 0.98 Flpb, ped/bikes 1.00 1.00 1.00 1.00 1.00 1.00 1.00 1.00 1.00 Frt 1.00 0.85 1.00 1.00 1.00 0.93 0.85 1.00 0.85 Flt Protected 0.99 1.00 0.95 1.00 0.95 1.00 1.00 1.00 1.00 Satd. Flow (prot) 3512 1562 3367 1827 1702 1625 1504 3471 1488 Flt Permitted 0.87 1.00 0.95 1.00 0.38 1.00 1.00 1.00 1.00 Satd. Flow (perm) 3076 1562 3367 1827 679 1625 1504 3471 1488 Peak-hour factor, PHF 0.96 0.96 0.96 0.96 0.96 0.96 0.96 0.96 0.96 0.96 0.96 0.96 Adj. Flow (vph) 53 449 149 929 247 0 54 242 588 0 379 36 RTOR Reduction (vph) 0 0 91 0 0 0 0 18 20 0 0 29 Lane Group Flow (vph) 0 502 58 929 247 0 54 418 374 0 379 7 Confl. Peds. (#/hr) 2 1 1 2 1 1 Heavy Vehicles (%) 4% 2% 2% 4% 4% 2% 6% 5% 2% 2% 4% 6% Turn Type Perm NA Perm Split NA pm+pt NA pt+ov NA Perm Protected Phases 4 3 3 1 6 3 6 2 Permitted Phases 4 4 6 2 Actuated Green, G (s) 31.4 31.4 61.9 61.9 47.5 47.5 115.6 29.5 29.5 Effective Green, g (s) 31.4 31.4 61.9 61.9 47.5 47.5 109.4 29.5 29.5 Actuated g/C Ratio 0.20 0.20 0.39 0.39 0.30 0.30 0.68 0.18 0.18 Clearance Time (s) 6.3 6.3 6.7 6.7 6.3 6.2 6.2 6.2 Vehicle Extension (s) 4.0 4.0 6.0 6.0 3.0 5.0 5.0 5.0 Lane Grp Cap (vph) 603 306 1302 706 276 482 1028 639 274 v/s Ratio Prot c0.28 0.14 0.01 c0.26 0.25 0.11 v/s Ratio Perm c0.16 0.04 0.04 0.00 v/c Ratio 0.83 0.19 0.71 0.35 0.20 0.87 0.36 0.59 0.02 Uniform Delay, d1 61.8 53.7 41.5 34.8 49.8 53.3 10.7 59.8 53.5 Progression Factor 1.00 1.00 1.00 1.00 1.48 1.39 0.43 1.00 1.00 Incremental Delay, d2 10.0 0.4 3.4 1.4 0.3 15.8 0.4 2.2 0.1 Delay (s) 71.8 54.1 44.9 36.1 74.0 89.7 5.1 62.0 53.5 Level of Service Е D D D Е F Α Е D Approach Delay (s/veh) 67.7 43.1 51.0 61.3 Approach LOS Е D D Е Intersection Summary HCM 2000 Control Delay (s /veh) 52.9 H CM 2000 Level of Service D HCM 2000 Volume to Capa city ratio 0.83 Actuated Cycle Length (s) • 160.0 Sı um of lost t time (s) 25.5 Intersection Capacity Utiliza ition 82.0% U Level 9 Е Analysis Period (min) 15 c Critical Lane Group c Critical Lane Group Synchro 12 Report 06/16/2025
Intersection Int Delay, s/veh 0.8 } Movement EBI . EBT EBR WBL WBT WBR NBL NBT NBR SBL SBT SBR Lane Configurations 7 WDL WDI 7 ٦ † NDIX ) † ‡ ODIT ) 0 71 0 0 50 4 821 70 69 1330 23 Future Vol, veh/h 71 0 0 50 4 821 70 69 1330 23 Conflicting Peds, #/hr 10 0 0 0 10 6 0 0 0 0 6 Sign Control Stop Stop Stop Stop Stop Free Free Free Free Free Free n= a, , , None - - Yield - - None - None o 0 - - 0 115 - - 100 - - - 0 - - 0 - - 0 - - 0 - - 0 - - 0 - - 0 - - 0 - Peak Hour Factor 93 93 93 93 93 93 93 93 93 93 93 93 Heavy Vehicles, % 2 7 2 2 2 2 2 3 2 2 4 2 Mvmt Flow ( 0 76 0 0 54 4 883 75 74 1430 25 Major/Minor Minor2 Minor1 Major1 Major2 0 0 0 0 733 - 10111 489 1461 0 0 958 0 0 0 1 755 - 407 1401 - - 730 - - 0, 0 O 101 1 1 1 6.94 - 6.94 4.14 4.14 - 2 11 1 1 2 4 - - - 0 111 1 0 0 - - - " " " " 3.32 3.32 2.22 2.22 ) 0 713 0 0 858 608 - 899 - Stage 1 - 0 0 - - - - Stage 2 - 0 0 - - - - - Platoon blocked, % 0 0 0 - 0 - - 709 - - 850 604 - - 899 - - - - - - - - - - - - 0. 4 - - - - - - - - - - Stage 2 - - - - - - - - - - Approach EE } WB NB SB HCM Control Delay, s/v10.69 9.52 0.05 0.45 HCM LOS 7.JZ A 0.03 0.43 TIOM EOS E , Minor Long/Meier M. MDI NDT NIDD I TDI 414 VDI 1 CDI CDT CDD Minor Lane/Major Mvmt NBL NBT EBLn1V SBL SBT SBR Capacity (veh/h) 604 - - 709 850 899 - - HCM Control Doloy (alyah) 0.007 - - 0.063 - - HCM Control Delay (s/veh) 11 - - 10.7 9.5 9.4 - - HCM Lane LOS В - - В A A - - HCM 95th %tile Q(veh) 0 - - 0.4 0.2 0.3 - - Notes -: Volume exceeds capacity \$: De elay exc eeds 30 )0s +: Com putation Not De efined *: All major v olume ii n platoon
HCM 7th Signalized Intersection Summary 3: GA-9 Atlanta St/GA-9 & Private Dwy/Oak St IMP Build 2025 Conditions - AM Peak Hour ٠ → • • ← • 1 † - / ţ 1 Movement EBL EBT EBR WBL WBT WBR NBL NBT NBR SBL SBT SBR Lane Configurations 43 f) 4 15 41∱ 7 Traffic Volume (veh/h) 4 1 0 99 7 42 0 826 68 46 1314 17 Future Volume (veh/h) 4 1 0 99 7 42 0 826 68 46 1314 17 Initial Q (Qb), veh 0 0 0 0 0 0 0 0 0 0 0 0 Lane Width Adj. 1.00 1.00 1.00 1.00 1.00 1.00 1.00 1.00 1.00 1.00 1.00 1.00 Ped-Bike Adj(ApbT) 1.00 1.00 0.99 0.99 1.00 1.00 1.00 1.00 Parking Bus, Adj 1.00 1.00 1.00 1.00 1.00 1.00 1.00 1.00 1.00 1.00 1.00 1.00 Work Zone On Approach No No No No Adj Sat Flow, veh/h/ln 1870 1870 1870 1870 1870 1870 1870 1856 1856 1826 1856 1870 Adj Flow Rate, veh/h 4 1 0 106 8 45 0 888 73 49 1413 18 Peak Hour Factor 0.93 0.93 0.93 0.93 0.93 0.93 0.93 0.93 0.93 0.93 0.93 0.93 Percent Heavy Veh, % 2 2 2 2 2 2 2 3 3 5 3 2 Cap, veh/h 112 24 0 185 23 129 0 2743 226 94 2653 1317 Arrive On Green 0.09 0.09 0.00 0.09 0.09 0.09 0.00 1.00 1.00 1.00 1.00 1.00 Sat Flow, veh/h 766 254 0 1409 244 1370 0 3391 271 84 3190 1583 Grp Volume(v), veh/h 5 0 0 106 0 53 0 475 486 756 706 18 Grp Sat Flow(s),veh/h/ln 1020 0 0 1409 0 1613 0 1763 1806 1670 1604 1583 Q Serve(gs), s 0.0 0.0 0.0 5.9 0.0 4.9 0.0 0.0 0.0 0.0 0.0 0.0 Cycle Q Clear(gc), s 4.9 0.0 0.0 10.8 0.0 4.9 0.0 0.0 0.0 0.0 0.0 0.0 Prop In Lane 0.80 0.00 1.00 0.85 0.00 0.15 0.06 1.00 Lane Grp Cap(c), veh/h 136 0 0 185 0 151 0 1466 1503 1413 1334 1317 V/C Ratio(X) 0.04 0.00 0.00 0.57 0.00 0.35 0.00 0.32 0.32 0.53 0.53 0.01 Avail Cap(ca), veh/h 305 0 0 352 0 343 0 1466 1503 1413 1334 1317 HCM Platoon Ratio 1.00 1.00 1.00 1.00 1.00 1.00 2.00 2.00 2.00 2.00 2.00 2.00 Upstream Filter(I) 1.00 0.00 0.00 1.00 0.00 1.00 0.00 0.79 0.79 1.00 1.00 1.00 Uniform Delay (d), s/veh 65.9 0.0 0.0 70.4 0.0 67.9 0.0 0.0 0.0 0.0 0.0 0.0 Incr Delay (d2), s/veh 0.2 0.0 0.0 4.7 0.0 2.4 0.0 0.5 0.5 1.5 1.5 0.0 Initial Q Delay(d3), s/veh 0.0 0.0 0.0 0.0 0.0 0.0 0.0 0.0 0.0 0.0 0.0 0.0 %ile BackOfQ(50%),veh/ln 0.2 0.0 0.0 4.5 0.0 2.2 0.0 0.2 0.2 0.6 0.6 0.0 Unsig. Movement Delay, s/veh LnGrp Delay(d), s/veh 66.1 0.0 0.0 75.1 0.0 70.3 0.0 0.5 0.5 1.5 1.5 0.0 LnGrp LOS E Е Е Α А А А Α Approach Vol, veh/h 5 159 961 1480 Approach Delay, s/veh 66.1 73.5 0.5 1.5 Approach LOS E E Α Α Timer - Assigned Phs 2 4 6 8 Phs Duration (G+Y+Rc), s 139.0 21.0 139.0 21.0 Change Period (Y+Rc), s 5.9 6.0 5.9 6.0 Max Green Setting (Gmax), s 1 .1E+02 34.0 1 .1E+02 34.0 Max Q Clear Time (gc+I1), s 2.0 12.8 2.0 6.9 Green Ext Time (pc), s 63.3 1.0 26.1 0.0 Intersection Summary HCM 7th Control Delay, s/veh 5.6 HCM 7th LOS А Notes HCM 7th computational engin ne requir es equal clearance times for the phas ses crossi ng the ba rrier. Synchro 12 Report 06/16/2025 Kimley-Horn Page 5
HCM Signalized Intersection Capacity Analysis 1: GA-9/Canton St & Magnolia St/GA-9 Atlanta St IMP Build 2028 Conditions - PM Peak Hour ٠ → • • ← • 1 † ~ / ţ 4 Movement EBL EBT EBR WBL WBT WBR NBL NBT NBR SBL SBT SBR Lane Configurations 41∱ 7 77 ĵ, * f) 7 ^ 7 Traffic Volume (vph) 83 264 56 767 430 17 161 335 686 0 249 95 Future Volume (vph) 83 264 56 767 430 17 161 335 686 0 249 95 Ideal Flow (vphpl) 1900 1900 1900 1900 1900 1900 1900 1900 1900 1900 1900 1900 Total Lost time (s) 6.3 6.3 6.7 6.7 6.3 6.2 6.7 6.2 6.2 Lane Util. Factor 0.95 1.00 0.97 1.00 1.00 0.95 0.95 0.95 1.00 Frpb, ped/bikes 1.00 1.00 1.00 1.00 1.00 1.00 1.00 1.00 1.00 1.00 0.99 1.00 1.00 1.00 1.00 1.00 1.00 1.00 Flpb, ped/bikes Frt 1.00 0.85 1.00 0.99 1.00 0.94 0.85 1.00 0.85 Flt Protected 0.99 1.00 0.95 1.00 0.95 1.00 1.00 1.00 1.00 Satd. Flow (prot) 3498 1583 3433 1852 1770 1657 1504 3539 1583 Flt Permitted 0.73 1.00 0.95 1.00 0.47 1.00 1.00 1.00 1.00 Satd. Flow (perm) 2600 1583 3433 1852 869 1657 1504 3539 1583 Peak-hour factor, PHF 0.95 0.95 0.95 0.95 0.95 0.95 0.95 0.95 0.95 0.95 0.95 0.95 Adj. Flow (vph) 87 278 59 807 453 18 169 353 722 0.75 262 100 RTOR Reduction (vph) 0 0 48 0 1 0 0 12 58 0 0 88 Lane Group Flow (vph) 0 365 11 807 470 0 169 550 455 0 262 12 Confl. Peds. (#/hr) 5 5 Turn Type Perm NA Perm Split NA pm+pt NA pt+ov NA Perm Protected Phases 4 3 3 1 6 3 6 2 Permitted Phases 4 4 6 2 Actuated Green, G (s) 28.5 28.5 63.3 63.3 49.0 49.0 118.5 19.7 19.7 Effective Green, g (s) 28.5 28.5 63.3 63.3 49.0 49.0 112.3 19.7 19.7 Actuated g/C Ratio 0.18 0.18 0.40 0.40 0.31 0.31 0.70 0.12 0.12 Clearance Time (s) 6.3 6.3 6.7 6.7 6.3 6.2 6.2 6.2 Vehicle Extension (s) 4.0 4.0 6.0 6.0 3.0 5.0 5.0 5.0 Lane Grp Cap (vph) 463 281 1358 732 395 507 1055 435 194 v/s Ratio Prot 0.24 c0.25 0.06 c0.33 0.30 0.07 v/s Ratio Perm c0.14 0.01 0.07 0.01 v/c Ratio 0.79 0.04 0.59 0.64 0.43 1.08 0.43 0.60 0.06 Uniform Delay, d1 62.9 54.4 38.2 39.2 49.9 55.5 10.2 66.4 62.0 Progression Factor 1.00 1.00 1.00 1.00 0.78 0.70 1.21 1.00 1.00 Incremental Delay, d2 9.1 0.1 1.9 4.3 0.7 63.3 0.6 3.4 0.3 Delay (s) 72.0 54.5 40.1 43.5 39.8 102.1 12.9 69.9 62.3 Level of Service Approach Delay (s/veh) 69.6 D D D 41.4 D F 56.8 В E 67.8 E Approach LOS 09.0 E 41.4 D 50.6 E 67.6 E Intersection Summary HCM 2000 Control Delay (s/veh) 53.7 Н CM 2000 Level of Service D HCM 2000 Volume to Capacity ratio 0.86 Actuated Cycle Length (s) 160.0 S um of lost time (s) 25.5 Intersection Capacity Utiliza ntion 88.1% CU Level o 9 Е Analysis Period (min) 15 c Critical Lane Group Synchro 12 Report 06/16/2025 Kimley-Horn Page 1
Intersection Int Delay, s/veh 0.9 Movement EBL EBT EBR WBL WBT WBR NBL NBT NBR SBL SBT SBR Lane Configurations 7 7 † † ‡ Traffic Vol, veh/h 0 0 19 0 0 74 52 1120 54 64 1029 45 Future Vol, veh/h 0 0 19 0 0 74 52 1120 54 64 1027 45 Conflicting Peds, #/hr 9 0 0 0 0 9 5 0 2 2 0 5 Sign Control Stop Stop Stop Stop Stop Stop Free Free Free Free Free Free RT Channelized - - None - - - Yield - - None - - None Storage Length 0 0 115 - 100 - Veh in Median Storage, 0 - 0 - - 0 - 0 Grade, % - 0 0 0 0 Peak Hour Factor 97 97 97 97 97 97 97 97 97 97 97 97 Heavy Vehicles, % 2 2 2 2 2 2 2 2 2 2 2 2 Nymt Flow 0 0 20 0 0 76 54 1155 56 66 1061 46 VIVIIIL I IOW U U 20 U U 70 34 1133 30 00 1001 40 Asiar/Minor M linor2 P Minor1 Major1 N /ajor? 616 Major1 ^ Major2 ^ ^ Conflicting Flow All - - 559 - - 010 1112 0 0 1212 0 0 Stage 1 - - - - - - - - - - - - Stage 2 - - - / 04 - - - / 04 - - - - - - Critical Hdwy - - 6.94 - - 6.94 4.14 - - 4.14 - - Critical Hdwy Stg 1 - - - - - - - - - - - - Critical Hdwy Stg 2 - - 2 22 - - 2 22 - - - - - - Follow-up Hdwy - - 3.32 - - 3.32 2.22 - - 2.22 - - Pot Cap-1 Maneuver 0 0 805 0 0 779 816 - - 754 - - Stage 1 0 0 - 0 0 - - - - - - - Stage 2 0 0 - 0 0 - - - - - - - Platoon blocked, % 000 771 0 - - 0 - - Mov Cap-1 Maneuver - - 802 - - 771 812 - - 753 - - Mov Cap-2 Maneuver - - - - - - - - - - - - Stage 1 - - - - - - - - - - - - Stage 2 - - - - - - - - - - - - Annraach ED WD ND CD Approach EB WB NB SB HCM Control Delay, s/v 9.6 10.18 0.41 0.58 HCM LOS А В Minor Lane/Major Mvmt NBL NBT NIPD EBLn1V MRI n1 SBL SBT SBR 812 802 753 אטכ Capacity (veh/h) - - 0.024 771 0.099 - - HCM Control Dolay (chr o h ) 0.066 9.7 - - 10.2 - - HCM Control Delay (s/ve enj - - 9.6 10.2 - - HCM DEth % tile O(yeh) A - - Α 0.1 В В - - HCM 95th %tile Q(veh) 0.2 - - 0.1 0.3 0.3 - - lotes : Volume exceeds capa acity \$: De elay exc eeds 30 00s +: Com putation Not De efined *: All major v olume ir n platoon
HCM 7th Signalized Intersection Summary 3: GA-9 Atlanta St/GA-9 & Private Dwy/Oak St IMP Build 2028 Conditions - PM Peak Hour ٠ → • • ← • 1 † ~ / ţ 4 Movement EBL EBT EBR WBL WBT WBR NBL NBT NBR SBL SBT SBR Lane Configurations 43 ĵ, 473 41∱ 7 Traffic Volume (veh/h) 2 1 3 120 3 75 0 1131 69 13 1039 9 Future Volume (veh/h) 2 1 3 120 3 75 0 1131 69 13 1039 9 Initial Q (Qb), veh 0 0 0 0 0 0 0 0 0 0 0 0 Lane Width Adj. 1.00 1.00 1.00 1.00 1.00 1.00 1.00 1.00 1.00 1.00 1.00 1.00 Ped-Bike Adj(ApbT) 1.00 1.00 1.00 1.00 1.00 1.00 1.00 1.00 Parking Bus, Adj 1.00 1.00 1.00 1.00 1.00 1.00 1.00 1.00 1.00 1.00 1.00 1.00 Work Zone On Approach No No No No Adj Sat Flow, veh/h/ln 1870 1870 1870 1870 1870 1856 1870 1870 1870 1870 1870 1870 Adj Flow Rate, veh/h 2 1 3 125 3 78 0 1178 72 14 1082 9 Peak Hour Factor 0.96 0.96 0.96 0.96 0.96 0.96 0.96 0.96 0.96 0.96 0.96 0.96 Percent Heavy Veh, % 2 2 2 2 2 3 2 2 2 2 2 2 Cap, veh/h 67 39 76 198 7 183 0 2743 167 40 2740 1277 Arrive On Green 0.12 0.12 0.12 0.12 0.12 0.12 0.00 1.00 1.00 1.00 1.00 1.00 Sat Flow, veh/h 307 329 636 1412 59 1535 0 3495 208 21 3398 1584 Grp Volume(v), veh/h 6 0 0 125 0 81 0 615 635 578 518 9 Grp Sat Flow(s),veh/h/ln 1273 0 0 1412 0 1594 0 1777 1833 1802 1617 1584 Q Serve(gs), s 0.0 0.0 0.0 8.0 0.0 7.5 0.0 0.0 0.0 0.0 0.0 0.0 Cycle Q Clear(gc), s 7.6 0.0 0.0 15.6 0.0 7.5 0.0 0.0 0.0 0.0 0.0 0.0 Prop In Lane 0.33 0.50 1.00 0.96 0.00 0.11 0.02 1.00 Lane Grp Cap(c), veh/h 182 0 0 198 0 190 0 1432 1478 1476 1304 1277 V/C Ratio(X) 0.03 0.00 0.00 0.63 0.00 0.43 0.00 0.43 0.43 0.39 0.40 0.01 Avail Cap(ca), veh/h 419 0 0 418 0 438 0 1432 1478 1476 1304 1277 HCM Platoon Ratio 1.00 1.00 1.00 1.00 1.00 1.00 2.00 2.00 2.00 2.00 2.00 2.00 Upstream Filter(I) 1.00 0.00 0.00 1.00 0.00 1.00 0.00 0.48 0.48 1.00 1.00 1.00 Uniform Delay (d), s/veh 62.3 0.0 0.0 69.4 0.0 65.4 0.0 0.0 0.0 0.0 0.0 0.0 Incr Delay (d2), s/veh 0.1 0.0 0.0 5.5 0.0 2.6 0.0 0.5 0.4 0.8 0.9 0.0 Initial Q Delay(d3), s/veh 0.0 0.0 0.0 0.0 0.0 0.0 0.0 0.0 0.0 0.0 0.0 0.0 %ile BackOfQ(50%),veh/ln Unsig. Movement Delay, s/veh 0.0 0.0 5.4 0.0 3.2 0.0 0.2 0.2 0.3 0.3 0.0 LnGrp Delay(d), s/veh 62.4 0.0 0.0 74.9 0.0 67.9 0.0 0.5 0.4 0.8 0.9 0.0 LnGrp LOS 02.4 E 0.0 0.0 74.9 E 0.0 67.9 E 0.0 0.5 A 0.4 A 0.6 A 0.9 A Ο.0 L L 206 1250 A H 1105 A Approach Vol, veh/h Approach Delay, s/veh 6 62.4 72.2 0.4 0.8 Approach LOS 02.4 E 72.Z E 0.8 A Approach LOS E C. Α А Timer - Assigned Phs 2 4 6 8 Phs Duration (G+Y+Rc), s 134.9 25.1 134.9 25.1 Change Period (Y+Rc), s 5.9 6.0 5.9 6.0 Max Green Setting (Gmax), s , 1E+02 44.0 1E+02 44.0 Max Q Clear Time (gc+I1), s 2.0 17.6 2.0 9.6 Green Ext Time (pc), s 34.0 1.5 42.9 0.0 Intersection Summary HCM 7th Control Delay, s/veh 6.5 HCM 7th LOS Α Notes * HCM 7th computational enging ne requir es equal clearance times for r the phas ses crossi ng the ba rrier. Synchro 12 Report 06/16/2025 Kimley-Horn Page 5
APPENDIX I Traffic Signal Warrant Analysis
Roswell Hill Street Mixed-Use Appendix I - TRAFFIC SIGNAL VOLUME WARRANT ANALYSIS - Build Conditions (No Reductions) Based on 2009 MUTCD Condition A: Minimum Vehicular Volume Condition B: Interruption of Continuous Traffic Combination: Combination of Condition A and Condition B WARRANT 2 - Four-Hour Vehicular Volume Warrant WARRANT 3 - Peak Hour Warrant
Residential - ITE Rates 11th Edition (221 - Multifamily Housing (Mid-Rise), General Urban /Suburban) DAILY TRIPS IN 213 DISTRIBUTION IN 0% 0% 0% 25% 0% 0% 0% 0% 5% 0% 0% 0% DAILY TRIPS OUT 214 DISTRIBUTION OUT (5%) (25%) DAILY PASS-BY IN 0 PASS-BY IN DAILY PASS-BY OUT 0 PASS-BY OUT TIME IN OUT NBL NBT NBR SBL SBT SBR EBL EBT EBR WBL WBT WBR 12:00 AM - 01:00 AM 1.2% 0.4% 0 0 0 1 0 0 0 0 0 0 0 0 01:00 AM - 02:00 AM 0.6% 0.3% 0 0 0 0 0 0 0 0 0 0 0 0 02:00 AM - 03:00 AM 0.3% 0.1% 0 0 0 0 0 0 0 0 0 0 0 0 03:00 AM - 04:00 AM 0.2% 0.2% 0 0 0 0 0 0 0 0 0 0 0 0 04:00 AM - 05:00 AM 0.1% 0.5% 0 0 0 0 0 0 0 0 0 0 0 0 05:00 AM - 06:00 AM 0.4% 2.0% 0 0 0 0 0 0 0 0 0 0 0 1 06:00 AM - 07:00 AM 1.0% 7.8% 1 0 0 1 0 0 0 0 0 0 0 4 07:00 AM - 08:00 AM 2.5% 14.7% 2 0 0 1 0 0 0 0 0 0 0 8 08:00 AM - 09:00 AM 3.0% 12.5% 1 0 0 2 0 0 0 0 0 0 0 7 09:00 AM - 10:00 AM 2.2% 6.9% 1 0 0 1 0 0 0 0 0 0 0 4 10:00 AM - 11:00 AM 2.7% 4.6% 0 0 0 1 0 0 0 0 0 0 0 2 11:00 AM - 12:00 PM 3.4% 4.0% 0 0 0 2 0 0 0 0 0 0 0 2 12:00 PM - 01:00 PM 4.3% 4.8% 1 0 0 2 0 0 0 0 0 0 0 3 01:00 PM - 02:00 PM 4.4% 4.4% 0 0 0 2 0 0 0 0 0 0 0 2 02:00 PM - 03:00 PM 4.1% 3.7% 0 0 0 2 0 0 0 0 0 0 0 2 03:00 PM - 04:00 PM 5.9% 3.8% 0 0 0 3 0 0 0 0 1 0 0 2 04:00 PM - 05:00 PM 9.2% 5.1% 1 0 0 5 0 0 0 0 1 0 0 3 05:00 PM - 06:00 PM 13.1% 5.8% 1 0 0 7 0 0 0 0 1 0 0 3 06:00 PM - 07:00 PM 12.1% 6.0% 1 0 0 6 0 0 0 0 1 0 0 3 07:00 PM - 08:00 PM 9.4% 5.4% 1 0 0 5 0 0 0 0 1 0 0 3 08:00 PM - 09:00 PM 7.7% 3.1% 0 0 0 4 0 0 0 0 1 0 0 2 09:00 PM - 10:00 PM 6.5% 1.5% 0 0 0 3 0 0 0 0 1 0 0 1 10:00 PM - 11:00 PM 3.7% 1.6% 0 0 0 2 0 0 0 0 0 0 0 1 11:00 PM - 12:00 AM 2.1% 0.8% 0 0 0 1 0 0 0 0 0 0 0 0 TOTAL 100.00% 100.00% 10 0 0 51 0 0 0 0 7 0 0 53 Office - ITE Rates 11th Edition (710 - General Office Building) DAILY TRIPS IN 148 DISTRIBUTION IN 20% 5% 5% DAILY TRIPS OUT 148 DISTRIBUTION OUT (5%) (5%) (5%) (20%) DAILY PASS-BY IN 0 PASS-BY IN DAILY PASS-BY OUT 0 PASS-BY OUT TIME IN OUT NBL NBT NBR SBL SBT SBR EBL EBT EBR WBL WBT WBR 12:00 AM - 01:00 AM 0.2% 0.1% 0 0 0 0 0 0 0 0 0 0 0 0 01:00 AM - 02:00 AM 0.0% 0.1% 0 0 0 0 0 0 0 0 0 0 0 0 02:00 AM - 03:00 AM 0.0% 0.0% 0 0 0 0 0 0 0 0 0 0 0 0 03:00 AM - 04:00 AM 0.0% 0.1% 0 0 0 0 0 0 0 0 0 0 0 0 04:00 AM - 05:00 AM 0.2% 0.2% 0 0 0 0 0 0 0 0 0 0 0 0 05:00 AM - 06:00 AM 0.4% 0.1% 0 0 0 0 0 0 0 0 0 0 0 0 06:00 AM - 07:00 AM 4.8% 0.5% 0 0 0 1 0 0 0 0 0 0 0 0 07:00 AM - 08:00 AM 13.6% 2.0% 0 0 0 4 1 0 0 0 1 0 0 1 08:00 AM - 09:00 AM 14.3% 3.4% 0 0 0 4 1 0 0 0 1 0 0 1 09:00 AM - 10:00 AM 6.3% 4.4% 0 0 0 2 0 0 0 0 0 0 0 1 10:00 AM - 11:00 AM 5.5% 6.0% 0 0 0 2 0 0 0 0 0 0 0 2 11:00 AM - 12:00 PM 6.0% 10.3% 1 1 0 2 0 0 0 0 0 1 0 3 12:00 PM - 01:00 PM 10.2% 10.1% 1 1 0 3 1 0 0 0 1 1 0 3 01:00 PM - 02:00 PM 9.0% 6.6% 0 0 0 3 1 0 0 0 1 0 0 2 02:00 PM - 03:00 PM 8.3% 6.5% 0 0 0 2 1 0 0 0 1 0 0 2 03:00 PM - 04:00 PM 7.3% 8.4% 1 1 0 2 1 0 0 0 1 1 0 2 04:00 PM - 05:00 PM 5.4% 15.2% 1 1 0 2 0 0 0 0 0 1 0 5 05:00 PM - 06:00 PM 4.0% 15.8% 1 1 0 1 0 0 0 0 0 1 0 5 06:00 PM - 07:00 PM 1.7% 2.6% 0 0 0 0 0 0 0 0 0 0 0 1 07:00 PM - 08:00 PM 0.9% 2.3% 0 0 0 0 0 0 0 0 0 0 0 1 08:00 PM - 09:00 PM 0.7% 1.3% 0 0 0 0 0 0 0 0 0 0 0 0 09:00 PM - 10:00 PM 0.5% 1.6% 0 0 0 0 0 0 0 0 0 0 0 0 10:00 PM - 11:00 PM 0.3% 2.1% 0 0 0 0 0 0 0 0 0 0 0 1 11:00 PM - 12:00 AM 0.4% 0.2% 0 0 0 0 0 0 0 0 0 0 0 0 TOTAL 100.00% 100.00% 5 5 0 28 6 0 0 0 6 5 0 30 Retail - ITE Rates 11th Edition (820 - Shopping Center * Used due to limited information for ITE 822) DAILY TRIPS IN 245 DISTRIBUTION IN 5% 35% 5% 20% DAILY TRIPS OUT 245 DISTRIBUTION OUT (25%) DAILY PASS-BY IN 163 PASS-BY IN -44% 50% 33% -33% DAILY PASS-BY OUT 163 PASS-BY OUT (44%) TIME IN OUT NBL NBT NBR SBL SBT SBR EBL EBT EBR WBL WBT WBR 12:00 AM - 01:00 AM 0.1% 0.1% 0 0 0 0 0 0 0 0 0 0 0 0 01:00 AM - 02:00 AM 0.1% 0.1% 0 0 0 0 0 0 0 0 0 0 0 0 02:00 AM - 03:00 AM 0.1% 0.1% 0 0 0 0 0 0 0 0 0 0 0 0 03:00 AM - 04:00 AM 0.1% 0.1% 0 0 0 0 0 0 0 0 0 0 0 0 04:00 AM - 05:00 AM 0.1% 0.1% 0 0 0 0 0 0 0 0 0 0 0 0 05:00 AM - 06:00 AM 0.4% 0.5% 0 0 1 1 0 0 0 0 0 0 0 1 06:00 AM - 07:00 AM 0.8% 0.5% 0 0 1 1 0 0 0 0 0 0 0 1 07:00 AM - 08:00 AM 1.9% 1.2% 0 -1 2 3 -1 0 0 0 0 0 0 2 08:00 AM - 09:00 AM 2.8% 1.8% 0 -2 3 4 -2 0 0 0 0 0 0 3 09:00 AM - 10:00 AM 4.8% 3.0% 0 -3 6 7 -3 0 0 0 0 1 0 5 10:00 AM - 11:00 AM 6.8% 5.0% 0 -4 9 9 -4 0 0 0 0 1 0 7 11:00 AM - 12:00 PM 8.2% 7.0% 0 -5 11 11 -4 0 0 0 0 1 0 9 12:00 PM - 01:00 PM 9.3% 8.5% 0 -6 13 13 -5 0 0 0 0 1 0 11 01:00 PM - 02:00 PM 8.4% 8.6% 0 -5 12 12 -5 0 0 0 0 1 0 10 02:00 PM - 03:00 PM 7.5% 8.2% 0 -5 11 11 -4 0 0 0 0 1 0 10 03:00 PM - 04:00 PM 7.8% 8.1% 0 -5 11 11 -4 0 0 0 0 1 0 10 04:00 PM - 05:00 PM 8.3% 8.3% 0 -5 12 12 -4 0 0 0 0 1 0 10 05:00 PM - 06:00 PM 8.4% 8.5% 0 -5 12 12 -5 0 0 0 0 1 0 10 06:00 PM - 07:00 PM 7.4% 7.5% 0 -4 11 10 -4 0 0 0 0 1 0 9 07:00 PM - 08:00 PM 6.3% 6.6% 0 -4 9 9 -3 0 0 0 0 1 0 8 08:00 PM - 09:00 PM 4.1% 6.1% 0 -2 7 6 -2 0 0 0 0 1 0 6 09:00 PM - 10:00 PM 1.8% 4.4% 0 -1 4 3 -1 0 0 0 0 0 0 4 10:00 PM - 11:00 PM 3.2% 4.0% 0 -2 5 4 -2 0 0 0 0 0 0 4 11:00 PM - 12:00 AM 1.6% 2.1% 0 -1 3 2 -1 0 0 0 0 0 0 2 TOTAL 100.00% 100.00% 0 -60 143 141 -54 0 0 0 0 12 0 122
Restaurant - ITE Rates 11th Edition (932 - High Turnover Sit Down Restaurant) DAILY TRIPS IN 556 DISTRIBUTION IN 0% 5% 0% 35% 0% 0% 0% 0% 0% 5% 0% 20% DAILY TRIPS OUT 556 DISTRIBUTION OUT (25%) DAILY PASS-BY IN 418 PASS-BY IN 0% -44% 50% 33% -33% 0% 0% 0% 0% 0% 0% 0% DAILY PASS-BY OUT 418 PASS-BY OUT (44%) TIME IN OUT NBL NBT NBR SBL SBT SBR EBL EBT EBR WBL WBT WBR 12:00 AM - 01:00 AM 0.3% 0.8% 0 0 2 1 0 0 0 0 0 0 0 2 01:00 AM - 02:00 AM 0.1% 0.3% 0 0 1 0 0 0 0 0 0 0 0 1 02:00 AM - 03:00 AM 0.3% 0.2% 0 0 1 1 0 0 0 0 0 0 0 1 03:00 AM - 04:00 AM 0.2% 0.4% 0 0 1 1 0 0 0 0 0 0 0 1 04:00 AM - 05:00 AM 0.2% 0.3% 0 0 1 1 0 0 0 0 0 0 0 1 05:00 AM - 06:00 AM 0.7% 0.2% 0 -1 2 2 -1 0 0 0 0 0 0 1 06:00 AM - 07:00 AM 1.7% 0.9% 0 -3 5 6 -2 0 0 0 0 0 0 4 07:00 AM - 08:00 AM 2.7% 1.8% 0 -4 8 9 -4 0 0 0 0 1 0 6 08:00 AM - 09:00 AM 3.4% 3.1% 0 -5 11 11 -5 0 0 0 0 1 0 9 09:00 AM - 10:00 AM 4.0% 3.4% 0 -6 13 13 -6 0 0 0 0 1 0 11 10:00 AM - 11:00 AM 5.5% 4.4% 0 -9 18 18 -8 0 0 0 0 2 0 14 11:00 AM - 12:00 PM 12.1% 6.9% 0 -19 35 41 -17 0 0 0 0 3 0 26 12:00 PM - 01:00 PM 12.4% 12.3% 0 -20 43 41 -17 0 0 0 0 3 0 37 01:00 PM - 02:00 PM 6.5% 11.2% 0 -10 29 22 -9 0 0 0 0 2 0 28 02:00 PM - 03:00 PM 4.0% 5.1% 0 -6 15 13 -6 0 0 0 0 1 0 14 03:00 PM - 04:00 PM 3.3% 4.0% 0 -5 12 11 -5 0 0 0 0 1 0 11 04:00 PM - 05:00 PM 6.2% 3.9% 0 -10 18 21 -9 0 0 0 0 2 0 14 05:00 PM - 06:00 PM 10.2% 6.8% 0 -16 31 34 -14 0 0 0 0 3 0 24 06:00 PM - 07:00 PM 10.1% 8.7% 0 -16 33 34 -14 0 0 0 0 3 0 27 07:00 PM - 08:00 PM 7.2% 9.2% 0 -11 28 24 -10 0 0 0 0 2 0 25 08:00 PM - 09:00 PM 4.3% 7.1% 0 -7 19 14 -6 0 0 0 0 1 0 18 09:00 PM - 10:00 PM 2.6% 4.8% 0 -4 12 9 -4 0 0 0 0 1 0 12 10:00 PM - 11:00 PM 1.4% 2.9% 0 -2 7 5 -2 0 0 0 0 0 0 7 11:00 PM - 12:00 AM 0.5% 1.4% 0 -1 3 2 -1 0 0 0 0 0 0 3 TOTAL 100.00% 100.00% 0 -155 348 334 -140 0 0 0 0 27 0 297
APPENDIX J RCUT Rerouted Volumes
Kimley»Horn Hill Street Mixed Use Development Transportation Analysis RCUT Rerouted Volumes (No-Build 2028) Appendix J Packet Pg. 330
Kimley»Horn Hill Street Mixed Use Development Transportation Analysis RCUT Reroute Volumes (Build 2028) Appendix J Packet Pg. 331
POST-CLOSING AGREEMENT THIS POST-CLOSING AGREEMENT (this "Agreement") is made this \ day of October, 2025 (the "Effective Date"), by and among HILL STREET COMMERCIAL OWNER, LLC, a Delaware limited liability company, and HILL STREET APARTMENT OWNER, LLC, a Delaware limited liability company (collectively, and jointly and severally, "Atlantic"), the DOWNTOWN DEVELOPMENT AUTHORITY OF THE CITY OF ROSWELL, a political subdivision of the State of Georgia ("DDA"), THE CITY OF ROSWELL, GEORGIA, a political subdivision of the State of Georgia (the "City") and BUCKHEAD TITLE COMPANY, LLC ("Escrow Agent"). WHEREAS, the DDA, the City, and certain Atlantic Parties (as defined in the Land Exchange Agreement and referred to herein as the "Atlantic Parties") are parties to that certain Land Exchange Agreement dated May 15, 2025 (as amended, the "LEA"); WHEREAS, pursuant to the terms of the LEA, the Closing of the exchange of the Exchange Property between the parties is occurring contemporaneously herewith; WHEREAS, pursuant to the terms of the LEA, contemporaneously herewith, Atlantic and the DDA have delivered the following documents, among other documents delivered at the Closing: the (1) Ground Lease, (2) Development Services Agreement (the "Development Agreement"), (3) Parking Lease, (4) Post-Closing Occupancy Agreement (Building G), (6) Environmental Indemnity Agreement and (7) Reciprocal Easements and Covenants Agreement (collectively, the "Project Agreements"); WHEREAS, pursuant to the terms of the LEA, the DDA has obtained validation of the DDA Economic Development Project Bonds in the Superior Court of Fulton County and the approval of the final DDA Economic Development Project Bonds transaction documents by the DDA and the City; WHEREAS, pursuant to the terms of the LEA, DDA and the Atlantic desire to enter into this Agreement to finalize certain matters necessary to facilitate the construction and development of the Project; and WHEREAS, Escrow Agent has agreed to serve as escrow agent, subject to the terms of this Agreement. NOW, THEREFORE, in consideration of the mutual covenants herein contained and for other good and valuable consideration, the receipt and sufficiency of which are hereby acknowledged, the parties hereto agree as follows: 1. Commencement Conditions. On or before December 31, 2025 (as may be extended herein, the "Project Commencement Date"), the parties shall have satisfied all of the following conditions (the "Commencement Conditions"):
(a) Delivery of the previously approved and validly executed DDA Economic Development Project Financing Agreement and closing of the DDA Economic Development Bonds, including, without limitation, depositing the proceeds of such bonds into the Supplemental Escrow Account (as defined in the Ground Lease), which shall happen following the closing of the Construction Financing; - (b) Delivery of the previously approved and validly executed Tax Incentive Lease Agreement for the Commercial Project and closing of the Tax Incentive Bonds for the Commercial Project, which shall happen contemporaneously with the closing of the Construction Financing; - (c) DDA shall have entered into the DDA GMP Contract with the DDA Economic Development Project GC and shall, simultaneously with satisfaction of the final Commencement Condition hereunder, deliver the DDA Notice to Proceed pursuant to the DDA GMP Contract; - (d) Atlantic shall have executed and delivered to the City a copy of a guaranteed maximum price contract between Atlantic and its general contractor for the construction and development of the Commercial Project; - (e) Atlantic shall have obtained all Development Approvals to allow for construction of the Residential Project and the Commercial Project as required by its lender, including but not limited to a land disturbance permit (but excluding any building permits); and - (f) Atlantic shall have received and closed on all Construction Financing, and made the following deposits into the Supplemental Escrow Account (as defined in the Ground Lease): (i) the DDA Economic Development Project Proceeds (as defined in the Ground Lease), and (ii) if applicable, the Base Rent Buy Down Amount (as defined in the Ground Lease). For purposes of this Agreement, the Commencement Conditions set forth in Section 1(a)-(c) shall be deemed the "DDA Commencement Conditions." The DDA shall be responsible for satisfying the DDA Commencement Conditions. The Commencement Conditions set forth in Section 1(d)-(f) shall be deemed the "Atlantic Commencement Conditions." Atlantic shall be responsible for satisfying the Atlantic Commencement Conditions. Notwithstanding the foregoing, the non-responsible party shall reasonably cooperate with the responsible party in the satisfaction of any such Commencement Conditions. Specifically, the following shall be conditions precedent to the DDA's obligations to satisfy the DDA Commencement Condition set forth in subsection (a), and are referred to herein as the "Bond Issuance Prerequisites": (i) Atlantic's prior satisfaction of the Atlantic Commencement Conditions set forth above in subsections (d), (e) and (f); (ii) the Development Budget and Project Schedule (as defined in the Development Agreement) with respect to the DDA Economic Development Project shall have been agreed to by the DDA and Atlantic in accordance with the terms of the Development Services Agreement; and (iii) the final Plans and Specifications for the Project (as such terms are defined in the Development Agreement) shall have been approved in accordance with the terms of the Development Agreement. The party responsible for performing each of the above-referenced Commencement Conditions shall provide written notice to the other party and to Escrow Agent not later than five (5) business days following the satisfaction of any such Commencement Condition. In the event
any Commencement Condition remains unsatisfied on December 31, 2025, either Atlantic or DDA shall have the right to extend the Project Commencement Date until January 30, 2026. If, on January 30, 2026 at 5:00 pm Atlanta time, the Commencement Conditions continue to remain unsatisfied, either Atlantic or DDA shall have an additional right to extend the Project Commencement Date until March 2, 2026. Each of these thirty (30) day extension options are referred to herein as a "Commencement Date Extension." A Commencement Date Extension may be exercised by providing written notice of such Commencement Date Extension to the other party on or before the then-current Project Commencement Date. In the event that all of the Commencement Conditions are not satisfied on or before the expiration of the two (2) Commencement Date Extensions, Atlantic shall have the right to further extend the Project Commencement Date for up to two additional (2) successive periods of thirty (30) days each (each an "Atlantic Commencement Date Extension"), by providing written notice of such Atlantic Commencement Date Extension to DDA on or before the expiration of the then-current Project Commencement Date, and contemporaneously delivering a deposit to the Escrow Agent in the amount of \$50,000.00 for each Atlantic Commencement Date Extension, which shall become part of the "Deposit" hereunder and subject to disposition in accordance with the provisions of this Agreement. - 2. Deposit of Deposit. Prior to or on the Effective Date, Atlantic has deposited with Escrow Agent the sum of \$400,000.00 (together with any other deposits if and to the extent paid under this Agreement, the "Deposit") pursuant to the terms of the LEA, which such amount shall continue to be held by Escrow Agent for the purposes contemplated in this Agreement. Escrow Agent acknowledges receipt of the Deposit and agrees to hold the Deposit in escrow and administer and disburse such funds pursuant to the terms and in strict accordance with this Agreement. Once deposited, the Deposit shall be held by Escrow Agent in an interest-bearing escrow or trust account with a national banking association. All interest earned on the Deposit shall be deemed part of the Deposit and shall be disbursed as such in accordance with the terms of this Agreement. - 3. Disbursement of Deposit. Until all of the Commencement Conditions have been satisfied in accordance with the terms of this Agreement, Escrow Agent shall continue to hold the Deposit as more particularly set forth herein. Escrow Agent agrees to disburse the Deposit as follows: - a. Satisfaction of the Commencement Conditions. Upon the satisfaction of all of the Commencement Conditions in accordance with the terms of this Agreement, Atlantic or the DDA shall provide written notice to Escrow Agent requesting the release of the Deposit. Unless Escrow Agent receives a written notice from DDA or Atlantic objecting to such disbursement request not later than five (5) business days following the date of its receipt of the request for disbursement, the Deposit shall be directly deposited into a public purpose fund, at the discretion of DDA), which funds are to be used to pay direct costs associated with the Project and/or may be used to pay down the DDA Economic Development Bonds. - b. Non-Satisfaction of the Commencement Conditions. In the event the DDA Commencement Conditions have not been satisfied prior to the expiration of the Project Commencement Date and the DDA (or Atlantic) has already exercised all Commencement Date Extensions, including the DDA Commencement Date Extension, then the DDA shall have a period of ten (10) calendar days after receipt of notice of such failure from Atlantic to cause the DDA
Commencement Conditions to be satisfied. In the event the DDA Commencement Conditions are not satisfied following the expiration of such ten (10) day cure period, Atlantic will be entitled, as its sole and exclusive remedy, to terminate this Agreement and request a disbursement of the Deposit by delivery of written notice thereof to Atlantic and Escrow Agent. Unless Escrow Agent receives a written notice from DDA objecting to such disbursement request within five (5) business days of its receipt of the request for disbursement, the Deposit shall be released to Atlantic, and this shall be the sole monetary obligation of the DDA or the City to Atlantic, and the parties shall effectuate the Reconveyance and Termination (as defined below) as more particularly described below. Atlantic's receipt of the Deposit and the foregoing reimbursement is intended not as a penalty, but as full liquidated damages as provided under state law, it being agreed that the actual damages of Atlantic are impossible to ascertain and such sums represent the reasonable damages of Atlantic. Notwithstanding any of the foregoing to the contrary, in the event the DDA Commencement Conditions have not been satisfied prior to the expiration of the Project Commencement Date (as such date may have been extended, including by the DDA Commencement Date Extension defined below) as a result of an intentional act or omission by any City Party that (A) precludes Atlantic from being able to develop the Project in accordance with the Approved Conceptual Designs, or (B) restricts the ability of the Project to be operated once completed in accordance with the Approved Conceptual Designs (each and collectively, "Material DDA Default"), then Atlantic shall be entitled to recover from the DDA the Atlantic Party Damages in an amount not to exceed (i) the Atlantic Pursuit Budget, plus (ii) a reimbursement of any additional third party out of pocket expenses incurred by Atlantic in connection with the Project. This reimbursement of costs and expenses shall be the sole remedy available to Atlantic hereunder as a result of a Material DDA Default, and shall serve as liquidated damages, it being understood and agreed that the damages of Atlantic would be difficult if not impossible to ascertain with certainty, that this is a reasonable pre-estimate of damages, and that this payment is not intended as a penalty. Notwithstanding the foregoing, in the event the DDA Commencement Conditions set forth in Section 1(a) are not satisfied by the then-current Project Commencement Date because the Bond Issuance Prerequisites were not timely completed by Atlantic, the DDA shall have an additional thirty (30) days following satisfaction by Atlantic of the final Bond Issuance Prerequisite to complete the DDA Commencement Condition set forth in Section 1(a) (such thirty (30) day period being referred to herein as a "DDA Commencement Date Extension"). In the event the Atlantic Commencement Conditions have not been satisfied prior to the expiration of the Project Commencement Date, and Atlantic (or the DDA) has already exercised all Commencement Date Extensions, then Atlantic shall have a period of ten (10) calendar days after receipt of notice of such failure from the DDA to cause the Atlantic Commencement Conditions to be satisfied. In the event the Atlantic Commencement Conditions are not satisfied following the expiration of such ten (10) day cure period, DDA will be entitled, as its sole and exclusive remedy, to terminate this Agreement and request a disbursement of the Deposit by delivery of written notice thereof to Atlantic and Escrow Agent. Unless Escrow Agent receives a written notice from Atlantic objecting to such disbursement request within five (5) business days of its receipt of the request for disbursement, the Deposit shall be released to DDA, and the parties shall effectuate the Reconveyance and Termination as more particularly described below. DDA's receipt of the Deposit is intended not as a penalty, but as full liquidated damages as provided under state law, it being agreed that the actual damages of DDA are impossible to ascertain and the
Deposit represents the reasonable damages of DDA. Notwithstanding any of the foregoing to the contrary, in the event the Atlantic Commencement Conditions have not been satisfied prior to the expiration of the Project Commencement Date as a result of an intentional act or omission by Atlantic that causes Atlantic to fail to satisfy the Atlantic Commencement Conditions (each and collectively, "Material Atlantic Default"), then the DDA or the City shall be entitled to recover from Atlantic the City Party Damages in an amount not to exceed the following total of: (i) the City Pursuit Budget, plus (ii) a reimbursement of the additional third party out of pocket expenses incurred by the City Parties in furtherance of the Project, less (iii) the amount of the Deposit. This payment shall serve as liquidated damages, it being understood and agreed that the damages of the DDA and the City would be difficult if not impossible to ascertain with certainty, that this is a reasonable pre-estimate of damages, and that this payment is not intended as a penalty. For purposes of this Agreement, the "Reconveyance and Termination" shall refer to the parties' agreement to (i) reconvey the Additional DDA Land and the Additional Residential Land to the City and to Atlantic, respectively, and (ii) the termination of all Project Agreements entered into as of the Closing, other than the Environmental Indemnity Agreement, all as more particularly described below. In connection with the Reconveyance and Termination, DDA shall cause the City to reconvey the Additional DDA Land to Atlantic and Atlantic shall reconvey the Additional Residential Land to the City by limited warranty deeds, free and clear of all liens but otherwise on an "as-is" basis (including, without limitation, subject to applicable laws and the lien for ad valorem taxes which shall be limited to the year of reconveyance and subsequent years). Taxes shall be prorated for the year of reconveyance as of the date of the repurchase. Each grantor shall be responsible for all closing costs with respect to the property being reconveyed by it, including, but not limited to, the cost of a base title policy insuring fee simple ownership of the respective property in the grantee in the amount of the purchase price, and each grantee shall not be responsible for any amount of purchase price with respect to the property being reconveyed to it. The reconveyance closing shall take place through an escrow with Escrow Agent no later than thirty (30) days following the delivery of a party's termination notice as provided in the immediately preceding paragraphs of this subsection (b) (subject to the other party's right to object as provided in the immediately preceding paragraphs of this subsection (b)). Simultaneously with the closing of such reconveyances, the parties shall execute and deliver (or cause to be executed and delivered) written terminations (in recordable form, if applicable) of all Project Agreements entered into as of the Closing other than the Environmental Indemnity Agreement, and such other documents and instruments as may be reasonably requested by Escrow Agent or the other party to complete the reconveyance as contemplated herein, with any such recordable instruments being submitted for recording contemporaneously with the aforementioned reconveyance deeds. - c. Obligations of Escrow Agent. It is expressly agreed that Escrow Agent shall have no responsibility whatsoever to determine the accuracy of a request for disbursement. Escrow Agent's sole responsibility in connection with the disbursement of the Deposit pursuant to this Section is to disburse the amounts referenced in a disbursement request as approved or deemed approved by the parties. - d. Interpleader. In the event an objection notice is delivered to Escrow Agent by a party hereunder pursuant to this Section, the parties shall endeavor in good faith to promptly resolve the dispute. In the event of a dispute between any of the parties hereto sufficient in the sole discretion of Escrow Agent to justify its doing so, Escrow Agent shall be entitled to tender into the
registry or custody of any court of competent jurisdiction all the Deposit, together with such legal pleadings as it deems appropriate, and thereupon be discharged from all further duties and liabilities under this Agreement. Any such legal action may be brought in such court as Escrow Agent shall determine to have jurisdiction thereof. - e. Termination of Escrow. The escrow and this Agreement shall be terminated once all of the Deposit has been disbursed in accordance with the terms herein (or, in the event of the Reconveyance and Termination, upon consummation of the closing in connection therewith). - Agent as the "Escrow Agent" under this Agreement, and Escrow Agent hereby accepts such designation and appointment. The parties hereby covenant and agree that in performing any of its duties under this Agreement, Escrow Agent shall not incur any liability to anyone for any losses, costs or damages except for any losses, costs or damages arising out of its willful default or gross negligence. Accordingly, Escrow Agent shall not incur any liability with respect to (a) any action taken or omitted to be taken in good faith upon advice of its counsel given with respect to any questions relating to its duties and responsibilities under this Agreement, or (b) any action taken or omitted to be taken in reliance upon any documents or written notices presented to Escrow Agent by the parties hereunder which Escrow Agent shall in good faith believe to be genuine, to have been signed or presented by a proper person or persons and to conform with the provisions of this Agreement. - 6. Cooperation. Atlantic and DDA agree that they will cooperate in taking such other actions as may be reasonably necessary to effectuate the terms and conditions of this Agreement including, without limitation, submitting written instructions to Escrow Agent with regard to the disbursements to be made in accordance with this Agreement. Both Atlantic and the DDA agree that any objections to disbursements made hereunder shall only be made in good faith. - shall not incur any liability. In performing any of its duties hereunder, Escrow Agent shall not incur any liability to anyone for any damages, losses or expenses, except for willful default or gross negligence, and it shall accordingly not incur any such liability with respect to (a) any action taken or omitted in good faith upon advice of its legal counsel given with respect to any questions relating to the duties and responsibilities of Escrow Agent under this Agreement, or (b) any action taken or omitted in reliance upon any instrument, including any written notice or instruction provided for in this Agreement, not only as to its due execution and the validity and effectiveness of its provisions but also as to the truth and accuracy of any information contained therein, which Escrow Agent shall in good faith believe to be genuine, to have been signed or presented by a proper person or persons, and to conform with the provisions of this Agreement. Escrow Agent shall have no duty or obligation to investigate any fact contained in any affidavit, statement, or certificate furnished to it pursuant to this Agreement, and shall in no event be liable or responsible for its failure to ascertain the terms or conditions of, or any party's compliance with any other document referred to herein.
8. Indemnity. Atlantic agrees to indemnify and hold Escrow Agent harmless against any and all losses, claims, damages, liabilities and expenses, including without limitation, reasonable costs of investigation and legal counsel fees, which may be incurred by Escrow Agent in connection with the performance of its duties hereunder, including without limitation any litigation arising from this Agreement involving the subject matter hereof; provided, however, that such indemnity shall not extend to any losses, claims, damages, liabilities and expenses arising out of, or incurred in connection with, Escrow Agent's own gross negligence or willful misconduct. - 9. Escrow Agent's Fees. Atlantic and DDA shall split Escrow Agent's fees for its services hereunder, including, without limitation, any account maintenance fees imposed by Escrow Agent. - 10. Notices. All notices shall be in writing and shall be deemed to have been properly given on the earlier of (a) when delivered in person, (b) when deposited with FedEx, UPS, Express Mail or other nationally recognized overnight delivery service for next day delivery, addressed to the appropriate party at the address set out below, or (c) when transmitted by electronic mail to the address for each party set forth below (provided a copy is also provided via a method set forth in clauses (a) or (b) above). Atlantic: c/o The Atlantic Companies 889 Howell Mill Road NW, Suite 3300 Atlanta, Georgia 30318 Attention: Jim Meyer & Matt Mason Telephone: (404) 2850 Email: jmeyer@atlanticcapitalproperties.com mmason@gatewayventuresre.com With a copy to: Morris, Manning & Martin, LLP 1600 Atlanta Financial Center 3343 Peachtree Road NE Atlanta, Georgia 30326 Attention: Christina Graham, Esq. Telephone: 7652 Email: cgraham@mmmlaw.com DDA and City: City of Roswell, Georgia 38 Hill Street Roswell, Georgia 30075 Attention: David Davidson, Esq. Telephone: (770) 6183 Email: ddavidson@roswellgov.com
With a copy to: Parker, Hudson, Rainer & Dobbs LLP 303 Peachtree Street NE, Suite 3600 Atlanta, Georgia 30308 Attention: Christine N. Schneider, Esq. Telephone: (404) 5535 Email: cschneider@phrd.com Escrow Agent: Buckhead Title Company, LLC c/o The Dunlap Law Firm, LLC 2827 Peachtree Road NE, Suite 450 Atlanta, GA 30305 Attn: R. Hunt Dunlap, Jr. Telephone: 4095 Email: hdunlap@dunlap-law.com Rejection or other refusal by the addressee to accept, or the inability to deliver because of a changed address or changed facsimile number of which no notice was given, shall be deemed to be receipt of the notice sent. Any party shall have the right, from time to time, to change the street address or email address to which notices to it shall be sent by giving to the other party or parties at least ten (10) business days prior notice of the changed street address or email address. - 13. Successors and Assigns. This Agreement shall inure to the benefit of and be binding upon the parties hereto and their successors and assigns. - 13. Miscellaneous. All capitalized terms used herein will have the meanings ascribed to those terms in the LEA, unless otherwise specified. The recitals set forth above are incorporated herein as part of this Agreement. Where conflicting, the terms and provisions of this Agreement shall supersede and control over those set forth in the LEA. This Agreement may be executed in any number of counterparts, each of which shall be deemed to be an original and all of which together shall be deemed to be one and the same instrument. This Agreement shall be construed in accordance with the laws of the State of Georgia. In the event of any dispute arising out of the terms of this Agreement, the prevailing party shall be entitled to recover its reasonable attorneys' fees and other costs and expenses incurred in litigating or otherwise resolving such dispute from the non-prevailing party to such dispute. Nothing herein is intended to be construed as creating a joint venture or partnership relationship between the parties hereto. The provisions of this Agreement shall be deemed independent and severable, and the invalidity or unenforceability of any provision or portion thereof shall not affect the validity or enforceability of any other provision or portion thereof unless such deletion shall destroy the easements, rights and covenants that this Agreement intended to create. This Agreement may not be amended, supplemented or otherwise modified except by an instrument in writing executed by the parties. Notwithstanding anything to the contrary contained herein, no provision of this Agreement is intended to benefit any party other than the signatories hereto and their respective successors and assigns, and no provision of this Agreement shall be enforceable by any other party. No waiver by either party of any breach by the defaulting party of any obligations, agreements or covenants herein shall be a waiver of any subsequent breach or of any other obligation, agreement or covenant, nor shall any forbearance by
the non-defaulting party to seek a remedy for any event of default by the defaulting party be a waiver by the non-defaulting party of any rights and remedies with respect to such or any subsequent event of default. In computing any period of time described herein, the day of the act or event after which the designed period of time begins to run is not to be included. Wherever herein there is a day or time period established for performance and such day or the expiration of such time period is a Saturday, Sunday or holiday, then such time for performance shall be automatically extended to the next following business day. TIME IS OF THE ESSENCE OF THIS AGREEMENT.
IN WITNESS WHEREOF, the parties have caused this Agreement to be executed as a sealed instrument as of the day and year first above written. Title: \ [SEAL] ATLANTIC: [INSERT SIGNATURE BLOCKS] DDA : DOWNTOWN DEVELOPMENT AUTHORITY OF THE CITY OF ROSWELL , GEORGIA, a political subdivision of the State of Georgia By: Name: Title: [SEAL] CITY : THE CITY OF ROSWELL, GEORGIA, a political subdivision of the State of Georgia By:
ESCROW AGENT: BUCKHEAD TITLE COMPANY, LLC By: Name: Title:
PREPARED BY AND AFTER RECORDING PLEASE RETURN TO: RECIPROCAL EASEMENTS AND COVENANTS AGREEMENT This RECIPROCAL EASEMENTS AND COVENANTS AGREEMENT (this "RECA") is made and entered into by and among HILL STREET APARTMENT OWNER, LLC, a Georgia limited liability company (the "Atlantic Apartment"), HILL STREET COMMERCIAL OWNER, LLC ("Atlantic Commercial"; together with Atlantic Apartment, the "Atlantic Parties"), THE CITY OF ROSWELL, GEORGIA, a political subdivision of the State of Georgia ("City"), and DOWNTOWN DEVELOPMENT AUTHORITY OF THE CITY OF ROSWELL, a political subdivision of the State of Georgia ("DDA"; together with the City, the "City Parties"), to be effective as of the \\\ day of \\\, 2025 (the "Effective Date"). RECITALS Atlantic Companies Roswell Manager, LLC, a Georgia limited liability company A. (affiliated with the Atlantic Parties), the City, the DDA, and other parties entered into that certain Land Exchange Agreement, dated May 15, 2025 (the "Original LEA"), as amended by that certain First Amendment to Land Exchange Agreement, dated June 27, 2025 (the "First Amendment to LEA""), as further amended by that certain Second Amendment to Land Exchange Agreement, dated July 14, 2025 (the "Second Amendment to LEA"), as further amended by that certain Third Amendment to Land Exchange Agreement, dated August 29, 2025 (the "Third Amendment to LEA"), as further amended by that certain Fourth Amendment to Land Exchange Agreement, dated September 19, 2025 (the "Fourth Amendment to LEA"), and as further amended by that certain Fifth Amendment to Land Exchange Agreement, dated October 1, 2025 (the "Fifth Amendment to LEA"; together with the Original LEA, First Amendment to LEA, Second Amendment to LEA, Third Amendment to LEA, and Fourth Amendment to LEA, and as otherwise further amended, the "LEA"), for the purpose of the exchange of real estate parcels between the relevant parties and designation of obligations and liabilities and other terms and conditions relating to the development of the Project (as that term is defined in the Original LEA), which is intended to be developed as a mixed-use development project consisting of various components within certain tracts or parcels of land located in the City of Roswell, Georgia (the "Project"). Additional definitions for defined terms contained in this RECA are contained in Schedule 1 attached and incorporated into this RECA. - B. Attached hereto as Exhibit "A" is the plat entitled "Plat for Atlantic Companies, prepared by Technical Survey Services, Inc. through surveyor Gary P. Hibbs Jr., G.R.L.S. #3578, dated September 11, 2025, and last revised on \\\\\\\\\\\\\\\\\_ - C. As of the Effective Date, Atlantic Apartment is the fee simple Owner (as defined on Schedule 1) of that certain real property that is part of the Project, as more particularly described on Exhibit "B" attached hereto and incorporated by reference herein (the "Atlantic Property", also shown as the "Multi-
Family" on the Plat). Atlantic intends to develop, own and operate the Atlantic Property as a multifamily housing community with related amenities (the "Residential Project"). - D. As of the Effective Date, the DDA is the fee simple Owner (except, in the case of the Ground Lease Property (as hereinafter defined), for which the DDA is the fee simple owner that ground leases to Atlantic Commercial, which by reason of the Atlantic Ground Lease, Atlantic Commercial is the Ground Lessee (as defined in Schedule 1), with the rights and obligations equivalent to those of an "Owner" under this RECA) of those certain parcels of real property that are part of the Project, and are more particularly described as follows: - (i) that certain parcel, as more particularly described on Exhibit "C-1" (the "Garage Parcel", also known as the "Parking Deck Tract" on the Plat), to be developed as a space structured parking garage (the "Parking Garage"), and the improvements thereto; - (ii) that certain parcel, as more particularly described on Exhibit "C-2" (the "Townhome Parcel", also known as the "Townhome Tract" on the Plat), to be developed as townhome pads for the purpose of the private development of a forsale townhome project (the "Townhomes"), and the improvements thereto; - (iii) that certain parcel, as more particularly described on Exhibit "C-3" (the "Commercial Project Parcel", a portion of the "Roswell Tract" on the Plat), to be developed as a multi-use commercial project (the "Commercial Project"), along with any improvements, including, without limitation, the Hill Street South Parking Area (as hereinafter defined), to be constructed on the Commercial Project Parcel are the "Commercial Project Improvements"; and - (iv) that certain parcel, as more particularly described on Exhibit "C-4" (the "Water Tower Property", a portion of the "Roswell Tract" on the Plat), existing between Community Circle and the Atlantic Property, and upon which a water tower is located, and the improvements thereto. As of the Effective Date, the DDA is the fee simple Owner of an area within the Commercial Project Parcel on which approximately 33 parking spaces will be located along the southern boundary of the public right-of-way designated as "Hill Street" (the "Hill Street South Parking Area"), which is shown on Exhibit "C-5". The City is the fee simple owner of an area on which certain parking spaces will be located adjacent to City Hall (the "City Hall Parking Area"), which area is more particularly depicted on Exhibit "D-1", and contains approximately 103 parking spaces. The City is also the fee simple owner of "Hill Street" including the parking spaces on the northern boundary of Hill Street (the "Hill Street North Parking Area"), which area is more particularly depicted on Exhibit "D-2", and contains approximately 36 parking spaces. The Garage Parcel, the Townhome Parcel, the Commercial Project Parcel and the Water Tower Property are collectively referred to as the "DDA Property". The City Hall Parking Area and Hill Street North Parking Area, together, are the "City Land," and for avoidance of doubt are not Properties or part of the Project. Pursuant to that certain Ground Lease by and between Atlantic Commercial and DDA executed and delivered of even date herewith (the "Atlantic Ground Lease"), Atlantic Commercial ground leases from
DDA a portion of the DDA Property more particularly described on Exhibit "E" (the "Ground Lease Property") in connection with the Commercial Project, and, thus, Atlantic Commercial, in its capacity as a Ground Lessee, has identical rights and obligations of an "Owner" (as defined in Schedule 1), subject to certain limitations, under this RECA. - E. The Atlantic Property and DDA Property, collectively, are the "Properties" and each individually is a "Property," and, for avoidance of doubt, any reference in this RECA to a Property or Properties shall also refer to any portion of the Property or Properties that has come under the independent ownership of an Owner. - F. The City Parties, and the Atlantic Parties desire to establish the terms and conditions to grant, establish and create certain easements, covenants, conditions, restrictions and other rights and obligations with respect to the Project for the purpose of developing, constructing and operating the Project in the City of Roswell, as more particularly set forth herein. AGREEMENT For and in consideration of the terms and conditions of this RECA, the sum of Ten and No/100 Dollars (\$10.00) and other good and valuable consideration in hand paid by each party to the other, the mutual agreements herein made, the receipt and sufficiency of which are hereby acknowledged, the parties agree as follows: - 1. Grant of Temporary Construction Easements. - (a) Scope of Easements. The City Parties and the Atlantic Parties hereby agree to grant the temporary construction easements to the Atlantic Parties and the City Parties and their respective Users described in Section 1(b) and 1(c) hereof for the following uses and purposes only: - i. entry by the Atlantic Parties and their Users, as well as the vehicles and equipment of those parties; - ii. the construction, installation, repair, replacement, or maintenance of improvements related to the Project; and movement, operation, and parking of construction vehicles and equipment; - iii. staging and storage of construction materials, equipment, tools, and supplies; temporary stockpiling of soil, gravel, fill, or construction debris, provided that all such materials are removed upon expiration of the temporary construction easements granted herein; - iv. clearing, grubbing, grading, excavation, trenching, earthmoving, soil compaction, backfilling, or other similar site preparation activities; - v. placement and use of construction trailers, tool sheds, dumpsters, portable restrooms, and other temporary facilities required for construction purposes; and - vi. installation and maintenance of temporary fencing, barriers, signage, erosion and sediment control measures, drainage facilities, and other protective or safety-related improvements.
(b) Temporary Construction Easements by the DDA to Atlantic. Subject to the terms, conditions and covenants set forth in this RECA, the DDA does hereby grant and convey to the Atlantic Parties for the benefit of the Atlantic Parties and their Users a temporary, non-exclusive construction easement on, over and across those portions of the DDA Property described as follows: - i. for the purpose of Atlantic Parties' construction and construction management of the Parking Garage, the temporary non-exclusive construction easement area is in the locations within the Garage Parcel specifically shown on Exhibit "F-1". The easement in this subsection shall automatically expire upon the completion of the Parking Garage, as evidenced by a final certificate of occupancy. - ii. for the purpose of the Atlantic Parties' construction and construction management of the site work for the Townhomes and the Townhome pads, the temporary non-exclusive construction easement area is in the locations within the Townhome Parcel specifically shown on Exhibit "F-2", which approximate the entirety of the Townhome Parcel. The easement in this subsection shall automatically expire upon the sale of the Townhome pads by the DDA. - iii. a temporary, non-exclusive construction easement area is in the locations within the Commercial Project Parcel specifically shown on Exhibit "F-3", which approximate the entirety of the Commercial Project Parcel. The easement in this subsection shall automatically expire upon the completion of the Hill Street South Parking Area, the Residential Project and all other Commercial Project Improvements, all of which as evidenced by a final certificate of occupancy. - iv. for the purpose of the Atlantic Parties' construction and construction management of the Residential Project on the Atlantic Property and any other Commercial Project Improvements that are reasonably adjacent to the Water Tower Property, a temporary non-exclusive construction easement is in the locations within the Water Tower Property specifically shown on Exhibit "F-4". The easement in this subsection shall automatically expire upon the completion of the Residential Project and any other Commercial Project Improvements that are reasonably adjacent to Water Tower Property, which shall be evidenced by a final certificate of occupancy - (c) Grant of Temporary Construction Easements by the City to Atlantic. Subject to the conditions and covenants set forth in this RECA, the City does hereby grant and convey to the Atlantic Parties for the benefit of the Atlantic Parties and their Users, a temporary, non-exclusive construction easement on, over and across those portions of Hill Street, Community Circle and certain City-owned property adjacent to the DDA Property, as particularly described as follows: - i. for the purpose of the Atlantic Parties' construction and construction management of the Hill Street North Parking Area, Hill Street South Parking Area, City Hall Parking Area and any other Commercial Project Improvements that are reasonably adjacent to Hill Street, a temporary non-exclusive construction easement in the locations within that certain public right of way known as Hill Street, and within the City Land, as specifically shown on Exhibit "F-5". The easement in this subsection shall automatically expire upon the completion of the Hill Street North Parking Area, the Hill Street South Parking Area, the City Hall Parking Area and any other Commercial Project Improvements that are reasonably adjacent to Hill Street.
ii. for the purpose of the Atlantic Parties' construction and construction management of the Residential Project on the Atlantic Property and any other Commercial Project Improvements that are reasonably adjacent to Community Circle, a temporary non-exclusive construction easement in the locations within that certain public right of way of Community Circle, as specifically shown on Exhibit "F-6". The easement in this subsection shall automatically expire upon the completion of the Residential Project and any other Commercial Project Improvements that are reasonably adjacent to Community Circle, which shall be evidenced by a final certificate of occupancy. - (d) Grant of Temporary Construction Easements by Atlantic Apartment to the City Parties. Subject to the conditions and covenants set forth in this RECA, Atlantic Apartment does hereby grant and convey to the City Parties for the benefit of the City Parties and their Users, a temporary, non-exclusive construction easement on, over and across those portions of the Atlantic Property, as particularly described as follows: - i. for the purpose of the City Parties' removal of the water tower from the Water Tower Property and related construction activities thereto, a temporary non-exclusive construction easement in the locations within the Atlantic Property, as specifically shown on Exhibit "F-7". The easement in this subsection shall automatically expire upon the removal of the water tower from the Water Tower Property. - (e) Grant of Temporary Cross Crane Air Rights Easements. - i. The Atlantic Parties grant the City Parties the right to swing the beam of a construction crane (located on the DDA Property in connection with removal of the water tower on the Water Tower Property) over the Atlantic Property and within the air rights located above the Atlantic Property; provided, however, (x) at no time shall a "live load" be swung over the Atlantic Property, and (y) the crane beam shall be allowed to swing freely over the Atlantic Property, when not being used for hoisting, so long as a clearance above the uppermost improvements then constructed on the Atlantic Property of at least thirty feet (30') is maintained at all times. The easement in this subsection shall automatically expire upon the removal of the water tower from the Water Tower Property. - ii. The City Parties grant the Atlantic Parties the right to swing the beam of a construction crane (located on the Atlantic Property in connection with construction of the improvements on the DDA Property) over the DDA Property and within the air rights located above the DDA Property; provided, however, (x) at no time shall a "live load" be swung over the DDA Property, and (y) the crane beam shall be allowed to swing freely over the DDA Property, when not being used for hoisting, so long as a clearance above the uppermost improvements then constructed on the DDA Property of at least thirty feet (30') is maintained at all times. The easement in this subsection shall automatically expire upon the completion of the Hill Street South Parking Area, the Residential Project and all other Commercial Project Improvements, all of which as evidenced by a final certificate of occupancy. - (f) Scope of Rights Granted. The temporary construction easements granted in this Section 1 are hereby referred to collectively as the "Temporary Construction Easements." The rights granted by the Temporary Construction Easements shall include, without limitation, any activities necessary for completion of a parking deck bridge suspended in the air between the Residential Project and the Parking Garage. The rights granted by the Temporary Construction Easements must be exercised in a manner that
pursues the First-Class (as hereinafter defined) construction, or construction management, of the improvements contemplated by such Temporary Construction Easements in a good and workmanlike manner. For purposes of this RECA, "First-Class" shall mean a standard of quality and finish comparable to the standards for institutionally owned and operated Class A buildings or commercial mixed-use projects located in the North Atlanta, Georgia submarket and generally perceived as "Class A" buildings and projects. - (g) General Automatic Expiration. Upon the expiration or earlier termination of the Atlantic Ground Lease, the Temporary Construction Easements shall automatically expire. - (h) Evidence of Expiration. Following the expiration of any particular Temporary Construction Easement(s) under this Section 1, any servient Owner may request the dominant Owner or Owners to record an amendment to this RECA in the Fulton County Superior Court's recording division's office public records (the "Records") confirming that the applicable Temporary Construction Easement(s) has or have expired and is or are no longer in effect. For avoidance of doubt, however, the act of recordation of the evidence of the expiration of any Temporary Construction Easement shall not be required for the expiration of such Temporary Construction Easement, as such expiration shall occur automatically upon the relevant conditions set forth for each Temporary Construction Easement requiring no further act by any party. 2. Grant of Access Easements. - (a) Atlantic Access Easement. Subject to the terms, conditions and covenants set forth in this RECA, Atlantic Apartment and the DDA grant and convey to each other a perpetual, non-exclusive cross easement for ingress and egress that both burdens and benefits the Commercial Project Parcel and the Atlantic Property (the "Atlantic Access Easement") for the purpose of providing the Owners and Users of such parcels with vehicular (excluding heavy or construction vehicles) and pedestrian access, ingress and egress to and from the Atlantic Property and Commercial Project Parcel over the Access Drives and Pedestrian Ways located on both parcels, notwithstanding any theory of merger under Georgia law to the contrary. Any use of the Atlantic Access Easement shall not unreasonably or adversely interfere with the City Parties' access to the Parking Garage and Garage Parcel. - (b) Garage Access Easement. Subject to the terms, conditions and covenants set forth in this RECA, the DDA grants and conveys, in favor of the City Parties and their Users, a perpetual, non-exclusive easement for ingress and egress over the Commercial Project Parcel, the Garage Parcel and the Water Tower Property (the "Garage Access Easement") for the purpose of providing the City Parties and their Users with vehicular and pedestrian access, ingress and egress to and from all three parcels over the Vehicular Drives and Pedestrian Ways located therein. The City Parties' use of the Garage Access Easement shall not unreasonably or adversely interfere with the Atlantic Parties' access to, use of and enjoyment of the Atlantic Property or the Commercial Project Parcel or both. 3. Grant of Cross-Utility Easements. (a) Atlantic Utility Easement. i. Grant and Scope. Subject to the terms, conditions and covenants set forth in this RECA, the DDA does hereby grant and convey to Atlantic Apartment for the benefit of Atlantic Apartment and establish upon, burden and encumber the DDA Property for the benefit of the Atlantic Property, a perpetual non-exclusive easement on, over and across the DDA Property for the installation, operation, use, maintenance, repair,
relocation, replacement and removal of certain now existing or future facilities and systems for the transmission or service of standard public utilities or private utilities or both reasonably necessary for the development and operation of the Residential Project and the Atlantic Property, and for access over the DDA Property to reach such facilities and systems (the "Atlantic Utility Easement"). - ii. City Parties' Approval. All utility facilities located within the DDA Property by virtue of the Atlantic Utility Easement (the "Atlantic Utility Facilities") shall be underground unless otherwise agreed by, as applicable, the DDA or the City depending on which City Party owns the relevant Property (or portion thereof) on which such Atlantic Utility Facilities are to be installed. Notwithstanding the foregoing, however, if the Atlantic Utility Facilities existing as of the Effective Date are to be left in place in accordance with the Plat, there will be no requirement for such existing Atlantic Utility Facilities to be replaced to be underground. - iii. Prior to Atlantic Apartment's commencement of construction of the Atlantic Utility Facilities on the DDA Property or any property owned by the City, the relevant City Party shall review and approve a utility plan, which approval shall not be unreasonably withheld, conditioned or delayed. Atlantic Apartment shall perform the construction of the Atlantic Utility Facilities in substantial accordance with the approved utility plan. - iv. Reasonable Construction and Use. The construction, operation, maintenance, and use of such Atlantic Utility Facilities shall be performed in a manner that reasonably minimizes any disruption of the use, enjoyment and operations of the City Parties or Owners on whose Property or Properties (or portion thereof) such Atlantic Utility Facilities are constructed. Atlantic shall be responsible for all connection charges, user fees, tap-on fees and similar fees and charges imposed by utility companies or governmental authorities as a result of the connection of any Atlantic Utility Facilities on such relevant Property or Properties (or portion thereof). - v. Relocation. The Owner that owns the Property or Properties (or portion thereof) upon which such Atlantic Utility Facilities are installed may relocate such Atlantic Utility Facilities, at such Owner's sole cost and expense, in the event such Owner determines that the relocation is reasonably necessary for the Parking Garage or the Townhomes or both, but only in a manner that such relocation does not materially impair Atlantic Apartment's use and enjoyment of the Atlantic Utility Easement. - vi. Dedication Right. The Owner of any Property or Properties (or portion thereof) on which such Atlantic Utility Facilities are located may, from time to time, dedicate and convey to appropriate governmental entities or public utility companies or both any such Atlantic Utility Facilities, but only in so far as such dedication or conveyance shall not adversely affect the use and enjoyment of such Atlantic Utility Facilities by Atlantic Apartment. Atlantic Apartment shall reasonably cooperate, at no cost, in such dedication(s) effectuated by such Owner or Owners. - vii. No Expiration. To the full extent permitted by Applicable Laws, the Atlantic Utility Facilities shall only cease with respect to the DDA Property at the time that the Owner(s) of the Atlantic Property and, as applicable, the Owner(s) of the DDA Property agree that the Atlantic Utility Easement is terminated with the respect to all
or some of the relevant Property or Properties (or portion thereof), as such Owners may agree. (b) City Party Utility Easement. - i. Grant and Scope. Subject to the terms, conditions and covenants set forth in this RECA, the DDA and Atlantic Apartment do hereby grant and convey to the City Parties for the benefit of the City Parties and, establish upon, burden and encumber the DDA Property and the Atlantic Property for the benefit of the Townhome Property, Water Tower Property and Garage Property, a perpetual non-exclusive easement on, over and across the DDA Property and the Atlantic Property for the installation, operation, use, maintenance, repair, relocation, replacement and removal of certain now existing and future facilities and systems for the transmission or service of standard public utilities or private utilities or both reasonably necessary for the development and operation of the Townhomes and Parking Garage, and for access over the DDA Property and the Atlantic Property to reach such facilities and systems (the "City Party Utility Easement"). - ii. Atlantic's Approval. All utility facilities located within the DDA Property or the Atlantic Property by virtue of the City Party Utility Easement (the "City Party Utility Facilities") shall be underground unless otherwise agreed by, as applicable, the DDA or Atlantic Apartment depending on whether the DDA or Atlantic Apartment owns the relevant Property or Properties (or portion thereof) on which such City Party Utility Facilities are to be installed. Notwithstanding the foregoing, however, if the City Party Utility Facilities existing as of the Effective Date are to be left in place in accordance with the Plat, there will be no requirement for such existing City Party Utility Facilities to be replaced to be underground. Prior to any City Party's commencement of construction of the City Party Utility Facilities on a relevant Property or Properties (or portion thereof), the relevant Owner that owns the Property or Properties (or portion thereof) upon which the City Party Utility Facilities will be located must review and approve plans and specifications, which approval shall not be unreasonably withheld, conditioned or delayed. The relevant City Party shall perform the construction of the City Party Utility Facilities in substantial accordance with such approved plans and specifications. - iii. Reasonable Construction and Use. The construction, operation, maintenance, and use of such City Party Utility Facilities shall be performed in a manner so as to reasonably minimize any disruption of the use, enjoyment and operations of the Owners on whose Property or Properties (or portion thereof) such City Party Utility Facilities are constructed. The City Parties shall be responsible for all connection charges, user fees, tap-on fees and similar fees and charges imposed by utility companies or governmental authorities as a result of the connection of any City Party Utility Facilities on such relevant Property or Properties (or portion thereof). - iv. Relocation. The Owner that owns the Property or Properties (or portion thereof) upon which such City Party Utility Facilities are installed may relocate such City Party Utility Facilities, at such Owner's sole cost and expense, in the event such Owner determines that the relocation is reasonably necessary for the Residential Project or the Commercial Project or both, but only in a manner that such relocation does not
materially impair the relevant City Party's use and enjoyment of the City Party Utility Easement. - v. No Expiration. To the full extent permitted by Applicable Laws, the City Party Utility Facilities shall only cease with respect to the DDA Property or Atlantic Property or both at the time that the Owner(s) of the Garage Property or Townhome Property or both, as applicable, and, as applicable, the Owner(s) of the DDA Property or Atlantic Property or both, agree that the Atlantic Utility Easement is terminated with the respect to all or some of the relevant Property or Properties (or portion thereof), as such Owners may agree. - (c) The Atlantic Utility Easement and City Party Utility Easement together are the "Cross-Utility Easements." The City Party Utility Facilities and Atlantic Utility Facilities together are the "Cross-Utility Facilities." - 4. Grant of Cross-Drainage Easement. Subject to the terms, conditions and covenants set forth in this RECA, the City Parties and Atlantic Apartment establish upon and encumber the Project with nonexclusive, perpetual cross easements (the "Cross-Drainage Easements") to the entirety of land and all parcels contained within the Project as shown on the Plat (the "Project Land") such that the drainage of storm water runoff can run over, upon, under and across the portions of the Project Land that are not improved with vertical structures to existing or future public or private storm drain systems, stormwater detention vaults, pipes, channels, tie-ins, or other conveyances, stormwater detention vault, detention water treatment and reuse system, detention facilities, and related equipment, including, without limitation, any such facilities shown on the Plat (the "Drainage Facilities"). No Owner may conduct any grading or other activities or construct any improvements or landscaping on any portion of its Property or Properties that would, after the completion of the same, impede, hinder or interfere with the accumulation or free flow and drainage of storm water over, across, on and under their respective Property or Properties (or portion thereof) or other Properties (or portion thereof). So long as Atlantic Apartment, Atlantic Commercial or any affiliate of the Atlantic Parties is an Owner within the Project, the Atlantic Parties (i) shall be solely and exclusively responsible for maintaining the Drainage Facilities in the Project including all mitigation areas and related structures located within the Project, in good and functional condition, (ii) shall timely perform maintenance thereto and (iii) shall timely make any necessary repairs and replacements thereto. At such time when neither Atlantic Apartment nor Atlantic Commercial, nor any affiliate of the Atlantic Parties owns any Property (or portion thereof) within the Project, each Owner of Property (or portion thereof) within the Project (i) shall be responsible for maintaining their respective Drainage Facilities including all mitigation areas and related structures located on its Property or Properties (or portion thereof), in good and functional condition, (ii) shall timely perform maintenance thereto and (iii) shall timely make any necessary repairs and replacements thereto. - 5. Grant of Cross-Sanitary Sewer Easements. Subject to the terms, conditions and covenants set forth in this RECA, the City Parties and Atlantic Apartment establish upon and encumber the Project with non-exclusive, perpetual cross easements (the "Cross-Sanitary Sewer Easements") to the Project Land for the purpose of all Owners for connection to, use and enjoyment of all underground sanitary sewer pipes, lines, manholes and other facilities providing sanitary sewer service to two (2) or more Properties (or any portion thereof) and that are installed and in place on the Effective Date, and any future facilities that are installed, including, without limitation, any such facilities shown on the Plat, and as any or all of such pipes, lines, manholes or other facilities may be hereafter modified, relocated or replaced from time to time as provided herein ("Sanitary Sewer Facilities") such that the Owners may use such Sanitary Sewer Facilities for flow, drainage and discharge of sewage and connection to the sanitary sewer system serving any Property and connection to the public sanitary sewer line, and may exercise access rights to the same. So long as Atlantic
Apartment, Atlantic Commercial or any affiliate of the Atlantic Parties is an Owner within the Project, the Atlantic Parties (i) shall be solely and exclusively responsible for maintaining Sanitary Sewer Facilities located within the Project, in good and functional condition, (ii) shall timely perform maintenance thereto and (iii) shall timely make any necessary repairs and replacements thereto. At such time when neither Atlantic Apartment nor Atlantic Commercial, nor any affiliate of the Atlantic Parties owns any Property (or portion thereof) within the Project, each Owner of Property (or portion thereof) within the Project (i) shall be responsible for maintaining their respective Sanitary Sewer Facilities located on its Property or Properties (or portion thereof), in good and functional condition, (ii) shall timely perform maintenance thereto and (iii) shall timely make any necessary repairs and replacements thereto. 6. Support Improvements. Subject to the terms, conditions and covenants set forth in this RECA, the City Parties and Atlantic Apartment establish upon and encumber the Project with non-exclusive, perpetual cross easements (the "Cross-Support Easements") that allows for Owners, if and to the extent that their Property, Properties or any portion thereof, is (are) serviced or supported by Support Improvement(s) (as hereinafter defined) located on any other Property, Properties or any portion thereof, to have access to the supporting Property and, for the purpose of benefitting the supported Property, to be able to use, maintain, repair, replace and enjoy such Support Improvement(s) for lateral and other support of such serviced or supported Property, Properties or any portion thereof, or improvements located thereon. Notwithstanding the foregoing, any entry by an Owner onto another Owner's Property to conduct any such maintenance, repair or replacement on such Support Improvement(s) shall be subject to the approval of the Owner(s) of the other Property(ies), which shall not be unreasonably withheld, conditioned or delayed. "Support Improvements" means any and all supports, piers, retaining walls, cross-bridges (including, without limitation, the cross-bridge between the Residential Project and Parking Garage), and similar structures, including the footings and all other components thereof, that exist and are installed as of the Effective Date, or are later installed in the future as expressly and clearly contemplated on the Plat, but no others, and provide lateral or any other type of support to or for any Property, Properties or any portion thereof, or to or for any one or more other improvements located on a Property, Properties or any portion thereof, but excluding those which constitute (to the extent so constituting) Drainage Facilities or Sanitary Sewage Facilities or both, as any or all of such retaining supports, piers, walls, structures, footings or other components may be hereafter modified, relocated or replaced from time to time as provided herein. 7. Hill Street South Parking Area Easement. - (a) Grant and Scope. Subject to the terms, conditions and covenants set forth in this RECA, the DDA grants and conveys, in favor of the City Parties and their Users, a perpetual and non-exclusive easement (the "Hill Street South Parking Area Easement"; together with the Temporary Constructions Easements, Access Easements, Cross-Utility Easements, Cross-Drainage Easements, Cross-Sanitary Sewer Easements, and Cross-Support Easements are, collectively, the "Easements") on, over and across the Hill Street South Parking Area as shown on Exhibit "D-1" attached hereto and made a part hereof for the purpose of maintaining, utilizing and earning the revenue from approximately thirty three (33) full-sized parking spaces within the Hill Street South Parking Area (the "Hill Street South Parking Spaces"). - (b) Initial Construction and Ongoing Maintenance. The City Parties and Atlantic Parties acknowledge and agree that Hill Street Developer, LLC, a Georgia limited liability company (the "Atlantic Developer") will, at its sole cost and expense, construct the initial Commercial Project Improvements, including, without limitation, the Hill Street South Parking Spaces, in accordance with the Development Services Agreement, dated on or around the same date herewith (the "Development Services Agreement"), which will include the grading, construction, paving, resurfacing, top-coating and striping of the Hill Street Parking Spaces. Following the completion of the initial construction of the Hill Street South Parking Spaces in accordance with the Development Services Agreement, the City Parties, in conjunction with this Hill
Street South Parking Area Easement, shall be exclusively responsible for the grading, paving, resurfacing, top-coating and striping of the Hill Street South Parking Spaces. - (c) Revenues. The City Parties shall have the right to charge their licensees, other users and the general public for transient parking for the Hill Street South Parking Spaces, and all revenues from such charges shall accrue solely to the benefit, and shall be the sole property, of the City Parties. The City Parties may, at the City Parties' sole cost and expense, install, maintain, operate and manage QR coded, online payment portals with signs, physical parking pay stations, meters, or other means of payment for transient parkers. - (d) Exercise of the Parking Easement. The Hill Street South Parking Area Easement and attendant rights hereunder shall be reasonably exercised as to be compatible with the uses of the adjacent areas within the Commercial Project Parcel. The uses of the Hill Street South Parking Area Easement shall be limited to only those uses for which such easement is designated in this Section 7. - (e) No Expiration. To the full extent permitted by Applicable Laws, the Hill Street South Parking Area Easement shall be perpetual and shall not cease without written agreement between the City Parties and then-Owner of the Hill Street South Parking Area. - (f) City Property. For avoidance of doubt, the City shall also solely and exclusively possess the rights and responsibilities pertaining to the Hill Street North Parking Area and City Hall Parking Area, including, without limitation, the right to earn revenues from those City Properties and the obligation to maintain those areas. The City shall make the areas accessible and usable by the general public, subject to any revenue-enhancement programs that the City may install for such purpose and any other initiatives that the City may pursue that are reasonably compatible with such availability of parking within the Hill Street North Parking Area and City Hall Parking Area, as determined by the City in the City's reasonable discretion. 8. City Parties' Right to Host Four Quarterly Events. - (a) Right to Host. In accordance with Applicable Laws, the City Parties, at the City Parties' sole cost and expense, may (but, for avoidance of doubt, shall not be required to) host up to fifty two (52), first-class, events open to the public in the common areas of the Project each year, with each event being subject to the Landlord's approval of each event, such approval not to be unreasonably withheld, conditioned or delayed, in accordance with the procedure in Section 8(b) below. - (b) Event Approval Procedure. At least sixty (60) days prior to the intended date for the event, the City Parties shall deliver to the Atlantic Parties a prospective report containing the material details of the event for the following Quarter (the "Prospective Event"), including, without limitation, theme, geographical placement and range, scope and type of activities, dates/times, etc. (the "Event Approval Report"). The City Parties and Atlantic Parties shall promptly cooperate, in good faith, to finalize the details of the Prospective Event, and amend the proposed Event Approved Report, to gain the Atlantic Parties' written approval thereof. An approved Prospective Event shall be known as an "Approved Event." Notwithstanding the foregoing, under such circumstances where an Approved Event will be substantially similar to prior Approved Events, the Atlantic Parties may approve such future Approved Events through one instance of written approval. - (c) Compliance; City Parties Oversight. The City Parties shall conduct each Approved Event in substantial conformity with the material details disclosed on the approved Event Approval Report as to ensure compliance with the approved Event Approval Report. The City Parties shall use commercially
reasonable efforts to publicize any event held at the Project, and, shall use commercially reasonable efforts to ensure that such events be reasonably tailored to attract customers to the Project, commensurate with experiences and festive events offered in similar first-class, mixed use developments in the Atlanta metropolitan area. The Atlantic Parties may reasonably oversee and inspect preparations and implementation of the Approved Event. The City Parties agree to cooperate fully with the Atlantic Parties' representatives, agents and employees during such oversight and inspections. 9. Conditions and Obligations with Respect to the Easements. - (a) Any portions of the Project burdened by the Easements granted herein are, collectively, the "Easement Areas." All current and contemplated future Cross-Utility Facilities, current and contemplated future Sanitary Sewer Facilities, current and contemplated future Drainage Facilities, and current and contemplated Support Improvements are depicted on the Plat. The Cross-Utility Facilities, the Sanitary Sewage Facilities, Drainage Facilities and Support Improvements are collectively the "Easement Facilities." - (b) Each Owner's respective use of the Easements shall comply with all laws, ordinances, codes, rules and regulations of all governmental authorities having jurisdiction over the Project (collectively, "Applicable Laws"), and shall not materially interfere with any other Owner's use and enjoyment of its Property or Properties (or portion thereof) located within the Project. Nothing herein shall be construed to grant to any party any right of access through or over, or any right of use of, any portion of any other party's Property or Properties, except as specifically set forth by the Easements granted herein. The Easements and rights hereby granted for the benefit of a Property, Properties, or any portion thereof, shall be solely for the benefit of such Property, Properties, or any portion thereof, and its Owner and Users. Unless expressly provided otherwise in this RECA, all Easements are for the benefit of the Users in addition to the Owner, subject to the Owner's discretion over the extent to which such Users benefit from the Easements. The standards of use and non-interference specified under this Section 9(b) shall be applicable to all manners of use under this RECA, unless specifically provided otherwise under this RECA by a separate provision, and, in case a standard in a separate provision contradicts the standards of use set forth in this Section 9(b), the standard of use in the separate provision shall prevail and control the relevant subject matter governed by that provision. - (c) Except as expressly contemplated on the Plat, the Easements granted herein do not allow any Owner to expand any existing Easement Facility, Access Drive, or Pedestrian Way which is located on another Owner's Property or Properties (or any portion thereof) or to relocate any existing Easement Facility, Access Drive or Pedestrian Way, in either case without the express prior written consent of such other Owner (to be determined in such other Owner's sole and absolute discretion). Except as expressly contemplated under the Plat, no Owner shall be required to provide additional storm water detention or additional accommodations of storm or surface water drainage or other utility service on such Owner's Property, Properties or any portion thereof which are not in effect or existing as of the Effective Date in order to accommodate any construction of improvements on, or development or redevelopment of, any other Property. - (d) Nothing herein shall be construed to require any Owner to exercise any right, privilege or easement granted, established, created or declared in this RECA for the benefit of such Owner's Property, Properties or any portion thereof. - 10. Security. Each Owner shall be solely responsible at its expense for providing any and all security services on its Property and, notwithstanding anything to the contrary contained in this RECA, no Owner is or ever will be a provider or guarantor of safety or security, or has or shall ever have a duty to provide or
guarantee safety or security, on another Property (without affecting each Owner's duty to operate and use its Property in accordance with Applicable Laws). For avoidance of doubt, the City Parties shall not be responsible for providing any security services for the benefit of any other Owner or the Project as a whole; provided, however, that normal policing services conducted in the ordinary course of public service in accordance with Applicable Laws for the jurisdiction within the City of Roswell will be indiscriminately applied to the Project. This Section shall not require nor prohibit any Owner from hiring their own security services. - 11. Maintenance. The City Parties and the Atlantic Parties acknowledge and agree that easement rights, access rights, self-help rights, and allocation of costs with respect to the Parking Garage are set forth in this RECA and in that certain Parking Lease, by and between the DDA, the Atlantic Parties, dated of even date herewith. Except as otherwise specifically set forth herein or in the Parking Lease to be the responsibility of a specific party hereunder, each Owner shall, at its own expense, be responsible for the maintenance, repair, and replacement of the structures, driveways, sidewalks, parking areas, curbing, landscaped areas, and lighting facilities located on its respective Property or any portion thereof and shall maintain all such improvements in a safe, clean, sightly, good and functional First-Class condition and state of repair. The minimum standard of maintenance for such maintenance, repair and replacement shall be comparable to the highest standards of maintenance followed in comparable First-Class developments in the submarket in which the Project is located, which shall include, but not be limited to: (i) removing papers, debris, filth and refuse, and sweeping the exterior areas of the Project and Access Drives and Pedestrian Ways thereto to the extent necessary to keep them in a First Class, clean and orderly condition, and (ii) planting and keeping in clean, weed-free any landscaped areas. If any Owner or its Users causes any damage to any other Owner's Property or any improvements thereon (including, without limitation, as a result of negligence or intentional misconduct), such damaging party shall promptly repair such damage at the damaging party's sole cost and expense and restore the Property and improvements, as applicable, to substantially the same condition as existed prior to the damage. Each party shall provide the other party no less than ten (10) days' prior written notice (or, in the case of an emergency, such shorter period of time and/or appropriate means of notice as may be reasonably necessary, if any) prior to making any maintenance necessitating the entry onto other party's Property, and shall restore any portion of the other party's Property affected by any entry to substantially the same condition as immediately prior to same in accordance with generally-accepted landscaping and engineering practices. - 12. Nature of Easement; Successors and Assigns. Except as expressly provided for as otherwise in this RECA, the Easements contained herein shall run with title to the land and be appurtenant to and burden, as applicable, the Properties and all covenants, conditions, obligations and agreements contained herein shall run with the title to and be binding upon each Owner, as appropriate, and the successor Owners of the Properties (or any portion thereof), with this RECA being binding upon and inuring to the benefit of and being enforceable by the legal representatives, successors-in-title and assigns of the Owners. Notwithstanding the foregoing, however, upon the conveyance of title by an Owner, the Owner conveying title shall thereupon be released of any liability hereunder as to the property conveyed for any breach of this RECA or claim arising under this RECA accruing after the date of such conveyance. - 13. Insurance. All Owners, except for the City Parties, shall keep and maintain in effect and shall cause its contractors and Users to keep and maintain in effect and shall cause its contractors and Users to keep and maintain in effect when working on the Project, all at no cost and expense to the City Parties, the types of insurance coverage described in Exhibit "G". - 14. Work Standards. All installation, maintenance, repair, replacement, restoration, rebuild and other work permitted or required hereunder shall be subject to and performed in accordance with the following:
(a) The exercise and use of the Easements created by this RECA by any Owner or its Users, and the performance of all duties and obligations of any Owner, including all work undertaken, by or on behalf of any Owner pursuant to this RECA, shall be accomplished in an expeditious, diligent, First-Class and workmanlike manner and shall comply, and such Owner shall cause all such exercise, use, performance and work to comply, with the terms of this RECA, the requirements of all applicable governmental authorities, public bodies and other entities (such as public utilities) having jurisdiction and all Applicable Laws. - (b) All work performed by an Owner to connect to, repair, relocate, maintain, install or replace any Easement Area or any other storm drain, utility line, sewer line, water line, gas line, telephone conduits or any other public or private utility service shall be performed so as not to interfere with the provision of any or all of such services to any other Owner, or any of such other Owner's Users or Property, Properties, or any portion thereof. - (c) Without limiting the indemnity obligations contained in this REA, no Owner shall permit any mechanic's or materialman's lien to be filed against any of the Easement Areas, or any portion thereof, and, if any such lien shall be filed against any portion of the Easement Areas (even though the easements granted and established herein are prior to such lien) in connection with any such work by or at the direction of any Owner, such Owner shall promptly bond or discharge such lien in accordance with the laws of State of Georgia so as to remove the encumbrance of such lien from the title to the Easement Areas. If such Owner fails to bond or discharge any such lien within twenty (20) days after such Owner receives written notice from the Owner of the liened Property, Properties or portion thereof, then such Owner of the liened Property, Properties or portion thereof, then such Owner permitting or causing such lien, and the Owner permitting or causing such lien shall pay all costs and expenses incurred by the Owner of the liened Property, Properties or portion thereof in connection therewith within ten (10) days after written demand therefor. - (d) In no event shall any easement for repair, maintenance, or replacement, and temporary access in connection therewith, authorize or permit the Owner which is the grantee of such easement (or any User, permittee, agent, contractor or licensee of such Owner) (i) to enter into any improvement upon servient Property, (ii) to drill or excavate under any such improvement of another Owner or its supporting improvements or (iii) to remove any improvement on a servient Property (except to the extent required for the performance of any authorized work and only if repaired and replaced as part of such work so that the improvements are returned to a condition that is comparable to or better than the condition existing prior to such work). Any of the foregoing actions shall require the consent of the Owner of the servient Property, to be determined by such Owner in its sole and absolute discretion. - (e) Any Owner undertaking work permitted or required by this RECA to be performed on the Property of another Owner shall (i) use commercially reasonable efforts under the applicable circumstances to minimize any disruption or interference caused by such work (including dust and noise) to, and to protect the safety of, the Owner of such other Property and its Users, (ii) promptly repair or restore, or cause to be repaired or restored promptly, any damage to such other Property, and improvements and utilities located thereon caused by such work to a condition that is reasonably comparable to that which existed prior to such damage, and (iii) obtain prior to commencing any repair work on the other Owner's Property and maintain the insurance as shown in Exhibit "G" throughout the performance of all such work. - 15. Indemnity. Each Owner (except the City and DDA, which are both constitutionally unable to provide the indemnity contemplated under this Section, but this exception shall not apply to any City Parties' unrelated successors and assigns who shall be bound by this Section) covenants and agrees to indemnify, defend and hold harmless the other Owners from and against all claims and all costs, losses,
damages, expenses and liabilities (including reasonable attorneys' fees actually incurred, subject to Section 22) incurred in connection with all claims, including any action or proceedings brought thereon, arising from or as a result of any mechanic's liens, stop notices, or other claims regarding materials supplied or work performed, or the death of, or any accident, injury, loss or damage whatsoever caused to any natural person, or to the property of any Person, as shall occur by reason of any or all of (a) the breach or violation, or attempted breach or violation, of this RECA by such indemnitor or any of its Users, (b) the exercise or use by such indemnitor or any of its Users of any of the rights or easements granted to such indemnitor under this RECA, or (c) the performance by such indemnitor or any of its authorized contractors, agents or employees of any work required or permitted, or any of such indemnitor's other obligations under, this RECA. Notwithstanding the foregoing, the duty to indemnify and hold harmless under this Section shall not extend or apply to any claims, costs, losses, damages, expenses, liabilities or fees caused by the negligence or willful misconduct of the indemnitee, its Users, licensees, concessionaires, agents, servants or employees, or any respective agents, servants or employees of such Users, licensees, concessionaires, agents, servants or employees. Each indemnitee shall give the indemnitor prompt written notice of any suit or proceeding known to such indemnitee and entitling such indemnitee to indemnification pursuant to this Section. - 16. Prohibited Uses. Atlantic Apartment and the City Parties establish upon and encumber the Project with the following use requirements and prohibited uses. The Project shall only be used for First-Class purposes. On and following the Effective Date, the following uses shall be prohibited at the Project: - (a) Any activity that constitutes a public or private nuisance. - (b) Any activity that produces any obnoxious odor that can be detected outside of any building; provided, however, this provision shall not prohibit the reasonable emanation of cooking odors from any restaurants. - (c) Any activity that produces noxious, toxic, caustic or corrosive fuel or gas. - (d) Any activity that produces any dust, dirt or fly ash in excessive quantities. - (e) Any activity that produces any explosion or other damaging or dangerous hazard, including the storage, display or sale of explosives or fireworks; provided, however, that the foregoing shall not preclude fireworks displays on special occasions (such as Independence Day and New Year's Eve) conducted pursuant to a proper license and otherwise in accordance with legal requirements. - (f) Any labor camp, junk yard, or stock yard. - (g) Any drilling for, blasting of or removal of sub-surface substances. - (h) Any dumping of garbage or refuse; provided, however, this prohibition shall not be applicable to garbage compactors, grease traps, recycling bins or other enclosed receptacles intended for disposal of garbage, in each case which are reasonably screened from view at street level and regularly emptied so as to minimize offensive odors or attracting pests. - (i) Any mortuary, funeral establishment or sale of coffins or caskets. - (j) Any signage or other displays, whether intended for personal, commercial or any other reasons, on the balconies or windows or both of the Residential Project.
(k) Other than equipment customarily included on the balconies of a multifamily building such as chairs, tables, outdoor plants, grills, etc., any storage of personalty on the balconies of the Residential Project for the purpose of storage. - (1) Any satellite dishes on the balconies of the Residential Project. - (m) Any activity that would violate any applicable legal requirements, the Zoning Overlay, or any governmental permit or certificate of occupancy. 17. Rights Upon Default. - Right to Cure. If any Owner (or such Owner's User(s)) defaults in the performance of any of the obligations of this RECA (a "Defaulting Owner"), any nondefaulting Owner shall have the right, but not the obligation, upon the expiration of thirty (30) days' notice to the Defaulting Owner and to any Mortgagee of the Defaulting Owner of whom the Owner delivering the notice of default has received notice, to cure such default for the account of and at the expense of the Defaulting Owner, provided that the Defaulting Owner has not, prior to the expiration of the day notice period: (a) cured the default, or (b) if the default is of a nature that it is not reasonably susceptible to cure during such day period, commenced to cure the default and is diligently pursuing such cure to completion provided such additional period does not extend beyond the ninetieth (90th) day after such initial notice. Any notice hereunder shall specify with particularity the nature of the default claimed and shall set forth in detail the action which the Owner giving such notice proposes to take in order to cure the claimed default. Notwithstanding the foregoing, if an emergency (being a condition threatening imminent risk of injury to person, damage to property or material interference with the use and enjoyment of an Owner's Property, Properties, or any portion thereof, and any related improvements thereon) has resulted, or, in the reasonable discretion of another Owner, would result, from such default or violation, then the nondefaulting Owner shall have the cure rights set forth in this subsection immediately upon the giving of such notice and without first allowing the Defaulting Owner or its Mortgagee the right or opportunity to cure such default or violation. - (b) Legal and Equitable Relief. Each Owner shall have the right to prosecute any proceedings at law or in equity against any other Owner, provided that the notice and opportunity to cure provisions of subsection (a) have first been complied with. - (c) Costs of Cure. All reasonable costs and expenses actually incurred by any Owner to cure a default by a Defaulting Owner under the provisions of subsection (a) hereof, together with all reasonable and actual costs and expenses of any proceedings at law or in equity, including reasonable attorneys' fees actually incurred and awarded to any Owner by an order of court pursuant to Section 22, shall be assessed against and paid by the Defaulting Owner. Additionally, any amounts due under this RECA that are not paid in a timely manner shall accrue simple interest thereon at the lesser of: (i) twelve percent (12%) per annum, or (ii) the maximum rate allowed by law, accruing from the date that written notice of such nonpayment is received by the Owner(s) failing to make such payment until the date such delinquent amount and all such accrued but unpaid interest has been paid in full. Any payments shall be applied first toward accrued but unpaid interest and then to any principal indebtedness. - (d) Wavier and Remedies Cumulative. No waiver by any Owner of any default under this RECA shall be effective or binding on such Owner unless made in writing by such Owner, and no such waiver shall be implied from any omission by an Owner to take action in respect of such default. No express written waiver of any default shall affect any other default or cover any other period other than any default, or period, or both, specified in such express waiver. All of the remedies available to the Owners under this RECA or at law or in equity shall be cumulative and not alternative, and invocation of any such
right or remedy shall not constitute a waiver or election of remedies with respect to any other available right or remedy. - Estoppel Certificate. Any Owner, or any Mortgagee or ground lessor of any Property, Properties or any portion thereof, may, at any time and from time to time, in connection with the sale, lease, assignment or transfer of the Owner's Property, Properties, or any portion thereof, or in connection with the financing or refinancing of the Owner's Property by a Mortgage to a Mortgagee, or for any other legitimate business purpose (but, in such case, not more than twice in any twelve (12) month period) deliver notice to an Owner requesting such Owner to certify in writing (i) that to the best knowledge of the certifying Owner, neither the requesting Owner nor such Owner's Parcel is in default in the performance of its obligations under this RECA, or, if in default, describing therein the nature and amount of any and all defaults, (ii) that to such Owner's knowledge, this RECA as of that date is in full force and effect, and (iii) to such other matters as the requesting Owner may reasonably request. Each Owner receiving such request shall execute and return such certificate no later than ten (10) days following the receipt thereof. Failure by an Owner to execute and return such certificate within the specified period shall be deemed a confirmation that no default exists on the part of the Owner to whom the certificate was sent and an admission on the part of the Owner to whom the certificate was sent of the satisfaction of the sending Owner's obligations under this RECA, and otherwise a favorable response. The Owners acknowledge that such certificate may be relied upon by purchasers, assignees, tenants, transferees, Mortgagees, leasebacklessors, investors, title companies and any other party proposing to acquire an interest or to make an investment, directly or indirectly, in the Project. - (f) No Termination. A breach of this RECA shall not entitle any Owner to cancel, rescind or otherwise terminate the Defaulting Owner's easement rights or the nondefaulting Owner's obligations hereunder, and upon the occurrence of any such breach by an Owner, the sole right of the nondefaulting Owner shall be to pursue the rights and remedies set forth in this RECA and any other rights and remedies that may be available to such Owner under law or equity. - (g) Mortgagees Protected. To be effective, any notice of default given to a Defaulting Owner under this Section or otherwise under this RECA, must also be given at the same time to the Defaulting Owner's Mortgagees of which the nondefaulting Owner has notice, which shall have the right, but not the obligation, to cure defaults on behalf of the Defaulting Owner, and all the rights and powers afforded to and exercisable by a nondefaulting Owner pursuant to this Section, including the right to give notices of default, cure defaults and right of entry, may be exercised by any Mortgagee or ground lessors of an Owner, to the same extent and with the same effect as if it were an Owner. - 18. Notice. All notices, demands, consent or approvals shall be in writing and shall be deemed to have been properly given on the earlier of (i) when delivered in person, by courier or otherwise, (ii) when deposited with FedEx or other overnight delivery service for next day delivery, addressed to the appropriate party at the address set out below, or (iii) when transmitted by electronic mail to the address for each party set forth below if no return error message or delivery failure message is received by the sender thereof. To Atlantic Parties: c/o The Atlantic Companies 889 Howell Mill Road NW Atlanta, Georgia 30318 Attention: Mr. James Meyer & Mr. Matt Mason Telephone: (404) 2850 Email: jmeyer@atlanticcapitalproperties.com mmason@gatewayventuresre.com
with a copy to: Morris, Manning & Martin, LLP 1600 Atlanta Financial Center 3343 Peachtree Road NE Atlanta, Georgia 30326 Attention: Christina Graham, Esq. Telephone: 7652 Email: cgraham@mmmlaw.com To City Parties: City of Roswell 38 Hill Street Roswell, Georgia 30075 Attention: David Davidson, Esq. Telephone: (770) 6183 Email: ddavidson@roswellgov.com Downtown Development Authority of the City of Roswell, Georgia P.O. Box 1452 Roswell, GA 30077 Attention: Chairman Email: contact@roswelldda.com with a copy to: Parker, Hudson, Rainer & Dobbs LLP 303 Peachtree Street NE, Suite 3600 Atlanta, Georgia 30308 Attention: Christine N. Schneider, Esq. Telephone: (404) 5535 Email: cschneider@phrd.com Rejection or other refusal by the addressee to accept, or the inability to deliver because of a changed address of which no notice was given, shall be deemed to be receipt of the notice sent. Any party shall have the right, from time to time, to change the address to which notices to it shall be sent by giving to the other party or parties at least ten (10) days' prior notice of the changed address. - 19. Priority of RECA; Title by Foreclosure. This RECA, and the rights, privileges, covenants, declarations and easements hereunder with respect to each Owner and Property (or any portion thereof), shall be superior and senior to any lien placed upon or security title to any Property, Properties, and any portion thereof, including the lien or security title of any Mortgage. Notwithstanding the foregoing, however, no breach of this RECA or exercise of any remedy provided in Section 17 of this RECA shall defeat, render invalid, diminish or impair the lien or security title of any Mortgage made in good faith and for value and held by a Mortgagee, but the easements, covenants, conditions and restrictions herein contained shall inure to the benefit of and shall be binding upon and effective against any Owner (including any Mortgagee) of any Property, or any portion thereof, which acquires title thereto by any Foreclosure or otherwise. - 20. Recordation. This RECA shall be recorded in the Records. - 21. Liability Upon Transfer. A party shall be an "Owner" hereunder only during the period that such party owns the fee simple title to a Property (or portion thereof), and a party shall be an "Ground Lessee" with rights and obligations equivalent to those of an "Owner" under this RECA for a Property only during the period that such party has a leasehold estate under a ground lease to such Property. Accordingly, subject
to the provisions of this Section, all obligations of an Owner with respect to matters occurring after the effective date of the transfer or conveyance, or, in the case of any ground lessee only, the assignment, of the entire interest of such Owner, or Ground Lessee, in a Property (other than any interest to a Mortgagee solely for the purpose of securing a debt) shall terminate upon such transfer, conveyance or assignment. By accepting a transfer or conveyance, or, in the case of an assignee of such Ground Lessee only, an assignment, of any interest in the Project, the grantee, transferee or assignee (other than any such Mortgagee holding an interest in any portion of a Property solely for the purpose of securing a debt) shall have assumed all of the obligations under this RECA running with the title to the property so transferred or conveyed, to the extent accruing after the effective date of such transfer or conveyance, but only so long as such grantee or transferee remains an Owner or Ground Lessee hereunder. Nothing contained herein to the contrary shall affect the existence, priority, validity or enforceability of any lien placed upon the transferred, conveyed or assigned portion of the Property prior to the recordation of a transfer, conveyance or assignment in the Records. - 22. Litigation Expenses. If an Owner shall bring an action against any other Owner pursuant to this RECA by reason of the breach or alleged violation of any covenant, term or obligation hereof, or for the enforcement of any provision hereof or otherwise arising out of this RECA, the prevailing Owner in such suit shall be entitled to its reasonable costs of suit and reasonable attorneys' fees, which shall be payable whether or not such action is prosecuted to judgment. The "prevailing Owner" within the meaning of this Section shall include an Owner who dismisses an action for recovery hereunder in exchange for payment of the sums allegedly due, performance of covenants allegedly breached or consideration substantially equal to the relief sought in the action. Any Owner's obligation hereunder to pay reasonable attorneys' fees or similarly phrased fees of the prevailing Owner shall extend only to such fees and expenses of the prevailing Owner's outside legal counsel computed on the basis of the regular billing rates of the attorneys and paralegals involved in such matter as customarily charged to prevailing Owner for prevailing Owner's own account, the number of hours actually worked and customarily billed to prevailing Owner by such attorneys and paralegals, and shall be computed without regard to the percentages set forth in O.C.G.A. §11 or any other statutory presumption (as the same may be at any time amended). - 23. Not a Public Dedication. The provisions of this RECA shall not be deemed to constitute a gift or dedication for public use of any portion of the Project, or of any Property, Properties or any portion thereof, or any easement created hereby or rights therein or thereto, or to any other rights, to or for the benefit in the general public, nor for the benefit of any other real property. Each Owner, as to its respective Property, Properties, or any portion thereof, hereby reserves the right to close temporarily from time to time, to the extent reasonably practicable and only so long as reasonably necessary, upon twenty (20) days' prior written notice to all other Owners, all or any portion of one or more of the Access Drives or the Pedestrian Ways located on such Owner's Property, Properties or any portion thereof, which, in such closing Owner's reasonable opinion, may be legally necessary to prevent a dedication thereof, or any accrual of any rights therein, in the general public or in any Person other than the Persons for which such easements are expressly granted in this RECA. - 24. No Partnership or Third Party Beneficiary. No provision of this RECA shall be construed to create a partnership or joint venture between or among the Owners, or any of them, nor to make any Owner in any way responsible for the debts, losses or liabilities of any other Owner. This RECA is made solely and specifically between and for the benefit of the Owners hereto and their respective successors and assigns, including Mortgagees, and, except for the rights of Users under easements granted herein for the sole benefit of the respective Property, Properties or any portion thereof, no other Person shall have any rights, interest or claim hereunder or be entitled to any benefit under or on account of this RECA as a third party beneficiary or otherwise.
25. Waiver of Certain Damages; LIMITED LIABILITY. No Owner shall ever be liable to any other Owner or to any of such other Owners' respective affiliates, or to any of its or their respective officials, public officers, officers, directors, employees, partners, members, direct and indirect equity owners, managers, participants, advisors, agents, representatives, successors or assigns, for consequential, punitive or special damages under or with respect to this RECA, except those which are payable to third persons and are included within such Owner's express indemnity obligations under this Declaration. NO DIRECT OR INDIRECT PARTNER, MEMBER, SHAREHOLDER, BENEFICIAL INTEREST OWNER, MANAGER, DIRECTOR, OFFICIAL, PUBLIC OFFICER OR OFFICER OF ANY OWNER SHALL BE PERSONALLY LIABLE FOR THE PERFORMANCE OF THE OBLIGATIONS, IF ANY, OF ANY OWNER UNDER THIS RECA OR SHALL BE SUBJECT TO LEVY, EXECUTION OR OTHER ENFORCEMENT PROCEDURE FOR THE SATISFACTION OF ANY OBLIGATIONS OF ANY OWNER UNDER OR IN ANY WAY RELATING TO THIS RECA. - 26. Reservation of Rights of Owners. Each Owner, for itself and its successors and assigns with respect to such Owner's Property, Properties, or any portion thereof, hereby reserves all of such Owner's right, title, and interest in and to such Property, Properties, or any portion thereof, incident to the fee simple estate thereof, and for any and all purposes not inconsistent with the use or enjoyment of the easements granted herein as expressly permitted herein. - 27. Governing Law. This RECA and all the provisions hereof shall be governed by and constructed in accordance with the laws of the State of Georgia. - 28. Amendment. This RECA may be amended only by a written document signed by all the Owners of the Properties (or any portion thereof). - 29. Counterparts. This RECA may be executed in any number of counterparts, each of which will be deemed an original, and all of which -- taken together -- will constitute a single instrument. Executed pages from any counterpart may be attached to another counterpart to form a complete document. - 30. Rules of Construction; Time is of the Essence. The captions in this RECA are for convenience only and neither define, limit, nor describe the scope or intent of this RECA. Unless the context of this RECA otherwise requires: (1) words of any gender are deemed to include each other gender; (2) words using the singular or plural number also include the plural or singular number, respectively; (3) the terms "hereof", "herein", "hereby", "hereto", and derivative or similar words, refer to this entire RECA; (4) the terms "Exhibit", "Section" or "subsection" refer to the specified Exhibit, Section or subsection of this RECA, unless the context otherwise expressly provides; (5) the term "party" means an Owner and such Owner's successors and permitted assigns; (6) all references to "dollars" or "\$" refer to currency of the United States of America; (7) accounting terms not otherwise defined herein have the meanings assigned to them in accordance with generally accepted accounting principles; (8) the terms "include" or "including" will mean without limitation by reason of enumeration; and (9) the terms "will" and "shall" are synonymous and indicate an obligatory, as opposed to preferred, action. Time is of the essence of this RECA and each and every provision hereof. - 31. Duration. All of the provisions of this RECA shall continue and remain in full force and effect for a period of thirty (30) years from the Effective Date and shall automatically continue thereafter for successive ten (10) year periods, unless modified as specified herein. [Remainder of page intentionally left blank] [Signature pages follow]
IN WITNESS WHEREOF, the Atlantic Parties and City Parties have caused this RECA to be duly executed as of the Effective Date. ATLANTIC APARTMENT Signed, sealed and delivered in HILL STREET APARTMENT OWNER, LLC, a the presence of: Georgia limited liability company: Unofficial Witness By: Notary Public Name: My Commission Expires: Title: [NOTARIAL SEAL]
ATLANTIC COMMERCIAL Signed, sealed and delivered in the presence of: HILL STREET COMMERCIAL OWNER, LLC, a Georgia limited liability company: Unofficial Witness By: Notary Public Name: My Commission Expires: Title: [NOTARIAL SEAL]
Signed, sealed and delivered in the presence of: Unofficial Witness Notary Public My Commission Expires: \\\\ [NOTARIAL SEAL] CITY: THE CITY OF ROSWELL, GEORGIA, a political subdivision of the State of Georgia By: Name: Title:
Signed, sealed and delivered in the presence of: DOWNTOWN DEVELOPMENT AUTHORITY OF THE CITY OF ROSWELL, GEORGIA, a political subdivision of the State of Georgia Unofficial Witness By: Name: Notary Public Title: My Commission Expires: [NOTARIAL SEAL] [SEAL] DDA: [End of signatures]
EXHIBIT " A " PLAT (TO BE ATTACHED)
EXHIBIT " B " ATLANTIC PROPERTY (TO BE ATTACHED)
EXHIBIT " C - 1 " GARAGE PARCEL (TO BE ATTACHED)
EXHIBIT " C - 2 " TOWNHOME PARCEL (TO BE ATTACHED)
EXHIBIT " C - 3 " COMMERCIAL PROJECT PARCEL (TO BE ATTACHED)
EXHIBIT " C - 4 " WATER TOWER PROPERTY (TO BE ATTACHED)
EXHIBIT "C -5" HILL STREET SOUTH PARKING AREA (TO BE ATTACHED)
EXHIBIT " D - 1 " CITY HALL PARKING AREA (TO BE ATTACHED)
EXHIBIT "D - 2 " HILL STREET NORTH PARKING AREA (TO BE ATTACHED)
EXHIBIT " E " GROUND LEASE PROPERTY
EXHIBIT " F - 1 " ATLANTIC 'S TEMPORARY CONSTRUCTION EASEMENT B ( I )
EXHIBIT " F - 2 " ATLANTIC 'S TEMPORARY CONSTRUCTION EASEMENT B (II )
EXHIBIT " F - 3 " ATLANTIC 'S TEMPORARY CONSTRUCTION EASEMENT B (III )
EXHIBIT " F - 4 " ATLANTIC 'S TEMPORARY CONSTRUCTION EASEMENT B (IV )
EXHIBIT " F - 5 " ATLANTIC 'S TEMPORARY CONSTRUCTION EASEMENT C ( I )
EXHIBIT "F-6" ATLANTIC'S TEMPORARY CONSTRUCTION EASEMENT C(II)
EXHIBIT "F -7" CITY PARTIES ' TEMPORARY CONSTRUCTION EASEMENT D ( I )
EXHIBIT " G " INSURANCE REQUIREMENTS
SCHEDULE I ADDITIONAL DEFINITIONS "Access Drives" means the paved access driveway, curbs, gutters, curb cuts and striping in the Project in such areas as expressly shown on the Plat and labeled as the "Private Roads," including, without limitation, Community Circle (Private Road) and Hillrose Circle (Private Road). For purposes of clarification, the Access Drives specifically exclude anything within the Parking Garage and any parking spaces now or hereafter located on the Project. "Foreclosure" means, without limitation, (i) the judicial foreclosure of a Mortgage; (ii) the exercise of a power of sale contained in any Mortgage; (iii) conveyance of the property encumbered by a Mortgage in lieu of foreclosure thereof; or (iv) any action commenced or taken by a lessor to regain possession or control of property leased to a lessee in a transaction commonly known as a "sale/leaseback." "Mortgage" means a deed to secure debt, mortgage or other instrument of security executed by an Owner, recorded in the Records and conveying a lien upon or security title to such Owner's Property or Properties or any interest or estate therein, or any lease of such Owner's Property or Properties or any interest or estate therein in a transaction commonly known as a "sale/leaseback." "Mortgagee" means the record holder of any Mortgage, provided that in each instance, such instrument of security secures a bona fide loan held by an institutional lender not related directly or indirectly through one or more intermediaries (whether corporate or otherwise) to the Owner who is the grantor or mortgagor under such Mortgage. "Owner" means the owner in the Records, whether one or more Persons, of the fee simple title to a Property or Properties (or any portion thereof). As of the Effective Date, the Owners are Atlantic Apartment, the DDA and the City. If any Owner shall assign all of its rights and interests hereunder as an Owner to the unrelated third party holder of a leasehold estate under a ground lease (including, without limitation, the Atlantic Ground Lease) or air rights lease of such Owner's Property, then the assignee shall be the ground lessee of the relevant Property hereunder with respect to such Property (the "Ground Lessee") until such ground lease or air rights lease expires or terminates, the assignee reassigns such rights and interests to the fee simple titleholder or such assignment otherwise terminates by its terms. Before such expiration or earlier termination of any such leasehold estate, the rights and obligations of a Ground Lessee under this RECA shall be identical to the rights and obligations of an "Owner" notwithstanding the fact that the leasehold estate does not grant the Ground Lessee any fee simple ownership interest in the Property. and such Ground Lessee's rights and obligations will be in lieu, and in replacement of, the actual fee simple owner's rights and obligations, except that, unless otherwise expressly provided in a separate agreement between Ground Lessee and their fee simple owner, Ground Lessee shall have no right to transfer, convey, hypothecate, securitize, lien, grant easements or other property rights in, or otherwise encumber the fee simple owner's fee simple interest. Accordingly, as of the Effective Date, Atlantic is the Ground Lessee of the Ground Lease Property pursuant to the Atlantic Ground Lease, with its rights and obligations under this RECA equivalent to those rights and obligations of an "Owner" during the term of the Atlantic Ground Lease but without any fee simple ownership interest in the Ground Lease Property and without any right to encumber the DDA's fee simple estate, and, while the DDA still retains fee simple ownership of the Ground Lease Property, the DDA shall not possess the rights and obligations of an "Owner" under this RECA for the Ground Lease Property until the expiration or earlier termination of the Atlantic Ground Lease. Written notice of any such assignment, assignment termination or re-assignment shall be given promptly to each other Owner. If any Property (or portion thereof) shall have more than one Owner (and, for purposes of clarity, the existence of a Ground Lessee, in addition to an Owner, shall not constitute multiple Owners
because a Ground Lessee is not an Owner and only has the rights and obligations of an "Owner" under this RECA), then all rights, benefits and obligations shall be exercised and performed by a single Owner designated by a majority of such Owners by written notice given to each other Owner. Unless and until such designation shall have been given in writing to each other Owner, the multiple Owners of a Property (or any portion thereof) shall not be entitled to any of the rights or benefits provided by this RECA, but shall jointly and severally be liable for all obligations of the Owner of such Property (or any portion thereof) hereunder. In furtherance and not in limitation of the foregoing, if any Property (or any portion thereof) is subjected to a condominium form of ownership, with multiple condominium units located within such Property, then the owner's association established pursuant to the declaration of condominium shall be deemed the "Owner" of such Property (or any portion thereof) for purposes of this RECA and that each unit owner within such Property shall be deemed a User of the Property for the purposes of this RECA. "Owner" shall not mean or refer to (x) any mortgagee, unless and until such Mortgagee has excluded the grantor of the Mortgage from possession of the applicable Property by appropriate legal proceedings following a default under the Mortgage or has acquired title pursuant to a Foreclosure, (y) tenants, lessees or licensees of any portion of a Property (other than a Ground Lessee as provided above in this definition) or (z) any Person holding or owning any easements, rights-of-way or licenses that pertain to or affect a Property, solely in such capacity as an easement holder or owner or licensee. "Pedestrian Ways" means the paved exterior walkways, sidewalks, paths and patios now or hereafter located on the Project (as such walkways, sidewalks, paths or patios may hereafter be modified, relocated or replaced from time to time as provided herein) and providing pedestrian ingress, egress and access between and among the Properties, and the improvements thereto and a public right-of-way, but expressly excluding any parking deck structure now existing or hereafter constructed on a Property and any patios or outdoor seating areas now existing or hereafter constructed on a Property and, in either case designated by the Owner of such Property as an amenity for the exclusive use by one or more Users of such Owner's Parcel. "Person or Persons" means any one or more of the following: an individual, partnership (general or limited), firm, association, corporation, limited liability company, trust, governmental agency, administrative tribunal, or any other form of business or legal entity. "Users" means the Owners and all Persons granted permission by the Owners, or any of them, to utilize a Property (or any portion thereof), or other improvement on such Owner's Property or, or any portion of one or more of the foregoing, including, without limitation, occupants, Ground Lessees, lessees, sublessees, tenants, concessionaires, and all of their respective employees and service people, licensees, invitees, customers, clients, guests, patrons, visitors, contractors and agents, but in each and every case subject to the terms and conditions of this RECA.
POST-CLOSING OCCUPANCY AGREEMENT This Post-Closing Occupancy Agreement (the "Agreement) eement") is dated as of October, 2025 (the "Effective Date"), by and between THE CITY OF ROSWELL, GEORGIA, a political subdivision of the State of Georgia ("City"), and ("Atlantic"). RECITALS: - A. Contemporaneously with the execution of this Agreement, Atlantic has become the ground lessee of that certain real property known as Building G and more particularly described in Exhibit A attached hereto and incorporated herein by this reference (the "Property") pursuant to that certain Ground Lease, dated on or around the same date of this Agreement, by and between Atlantic, as lessee, and the Downtown Development Authority of the City of Roswell, a political subdivision of the State of Georgia, as lessor (the "Ground Lease"); - B. Atlantic has agreed to allow the City to occupy and use the Property until the Occupancy Termination Date (as defined in Section 1 below, and as same may be extended), subject to the terms and conditions herein; and, - C. City and Atlantic desire to set the terms and conditions upon which City may occupy the Property. - NOW, THEREFORE, for and in consideration of the foregoing premises and the mutual covenants and agreements set forth hereinafter, and for other good and valuable consideration, the receipt, adequacy and sufficiency of which are hereby acknowledged, the parties hereto do hereby covenant and agree as follows: - 1. Possession. The City currently occupies the Property. Subject to the terms of this Agreement, City shall have the right to occupy and use the Property for the City's police department's use as an emergency communication center with evidence storage and related office space and other substantially related (the "Permitted Use"), but for no other use without Atlantic's prior written consent. The City's rights under this Agreement shall begin on the date of this Agreement and shall continue until the earlier to occur of (a) seven (7) business days following the date on which (i) the City has delivered a notice to Atlantic that the City intends to physically abandon the Property and (ii) the City has physically abandoned the Property as evidenced by its lack of occupancy and use of the Property for three (3) consecutive business days, or (b) 11:59 p.m. EST on December 31, 2025 (the "Initial Occupancy Termination Date"). The Initial Occupancy Termination Date shall automatically be extended for up to three (3) thirty (30) day periods, but in no event past March 31, 2026, with each such extension being referred to as an "Occupancy Extension." The City covenants and agrees to send Atlantic notice that it does not intend to have the benefit of any such automatic Occupancy Extension as soon as the City has determined that it is vacating the Property. The initial Occupancy Termination Date, as extended by any Occupancy Extensions, is referred to herein as the "Occupancy Termination Date." The time from the Effective Date until the Occupancy Termination Date, is referred to herein as the "Term."
During the Term, City shall not be required to pay base rent, or any share of operating expenses, nor any other amount, payment or sum, except that, City, at the City's sole cost and expense, shall be responsible for the payment of all utilities during the Term. Notwithstanding anything to the contrary contained herein, Atlantic shall be permitted to conduct construction activities in connection with development of the Property and testing at the Property, but all solely within the unoccupied areas of the Property, provided such activities do not interfere with City's rights granted herein, including, without limitation, the City's Permitted Use. Atlantic shall not grant any lease, usufruct, license, or other right of occupancy to any other party other than Atlantic and the City until after expiration, or earlier termination, of the Term. In the event that the City determines in the City's reasonable discretion that, due to Atlantic's activities at the Property, the City is materially unable to conduct its Permitted Use at the Property, the City may deliver written notice to Atlantic that the City is no longer able to operate its Permitted Use at the Property, and Atlantic shall use best efforts to cure the conditions giving rise to the City's inability to operate its Permitted Use within seven (7) business days. - 2. Insurance. From the Effective Date until the Occupancy Termination Date, City shall maintain, or cause to be maintained, in full force and effect, comprehensive general liability insurance, on an occurrence basis, underwritten by an insurance company or companies licensed to do business in the State of Georgia covering bodily injury, death, personal injury and property damage. Coverage limits of such commercial general liability insurance shall be at least One Million and No/100 Dollars (\$1,000,000.00), combined single limits for bodily injury, death, and property damage per occurrence. Such insurance shall name Atlantic and its lender(s), if any, as an additional insured. City shall furnish to Atlantic from time to time evidence that the insurance referred to herein is in full force and effect and that the premiums therefore have been paid. City shall obtain a written obligation on the part of its insurance company to endeavor to notify Atlantic at least thirty (30) days prior to cancellation of or any material change in such policy. - 3. Covenants. In connection with the exercise of any rights granted herein or any other entry onto the Property, City shall: - (a) Use due care in any use of the rights granted hereunder; - (b) Not unreasonably disturb or interfere with Atlantic's use of the Property, if any; - (c) Keep the non-structural aspects of the Property in good condition and repair, excepting (i) reasonable wear and tear in the ordinary course of business, (ii) damage arising from Atlantic's negligence or willful misconduct, and (iii) damage arising from a condemnation or casualty, and, subject to Section 1, promptly pay when due all utility charges associated with the Property, each at City's sole cost and expense. On or before seven (7) days prior to the Occupancy Termination Date, the City shall deliver to Atlantic evidence of notice to terminate utilities, such termination to be effective as of the Occupancy Termination Date; - (d) Not cause or permit any nuisance at the Property; - (e) Not deposit or place trash or debris in, on or about the Property; - (g) Not permit any Hazardous Materials (as defined below) to be present or released on the Property in violation of any Environmental Laws (as defined below); provided, however,
that the foregoing covenant shall only apply to Hazardous Materials first being present or released on or after the Effective Date. For purposes of this Agreement, "Environmental Laws" shall mean the Resource Conservation and Recovery Act (42 U.S. § 6901 et seq.), as amended by the Hazardous and Solid Waste Amendments of 1984; the Comprehensive Environmental Response, Compensation and Liability Act (42 U.S. § 9601 et seq.), as amended by the Superfund Amendments and Reauthorization Act of 1986; the Hazardous Materials Transportation Act (49 U.S. § 1801 et seq.); the Toxic Substance Control Act (15 U.S. § 2601 et seq.); the Clean Air Act (42 U.S. § 9402 et seq.); the Clean Water Act (33 U.S. § 1251 et seq.); the Federal Insecticide, Fungicide and Rodenticide Act (7 U.S. § 136 et seq.); the Occupational Safety and Health Act (29 U.S. § 651 et seq.); and all other applicable federal, state and local environmental laws (including, without limitation, obligations under the common law), ordinances, orders, rules and regulations, as any of the foregoing may have been amended, supplemented or supplanted prior to the Occupancy Termination Date, relating to regulation or control of hazardous, toxic or dangerous substances, materials or wastes (collectively, "Hazardous Materials"), or their handling, storage or disposal or to environmental health and safety; - (h) Comply with all laws and ordinances applicable to the exercise of City's rights granted herein or any other entry onto the Property; and - (i) Keep the Property free and clear of all materialman's and mechanic's liens incurred by or resulting from the acts of the City. - 4. Surrender of Possession. Notwithstanding anything in this Agreement to the contrary, in no event shall City's use and occupancy of the Property at any time be considered a tenancy in any form. The parties agree that this Agreement is a license agreement that is revocable exclusively in accordance with the terms and conditions of this Agreement, and such license shall not encumber or run with the title to the Property. City has agreed that City shall vacate the Property on or before the Occupancy Termination Date. For purposes of this Agreement, City shall be deemed to have vacated the Property when the City actually surrenders possession of the Property to Atlantic and delivers to Atlantic evidence of the payment and termination of all utilities at the Property, as applicable. If City fails to vacate the Property on or before the Occupancy Termination Date, Atlantic shall have the right to terminate City's right to enter or occupy the Property immediately, and this Agreement and the rights granted herein shall immediately terminate. Other than as provided for in the Ground Lease, Atlantic does not assume or undertake any obligations of City relating to the Property, it being the express understanding of the parties that this Agreement shall not constitute an assumption of any obligation or liabilities by Atlantic. - 5. Personal Property. The City shall remove all personal property and, if desired, fixtures from the Property on or before the Occupancy Termination Date. Any personal property and fixtures that have not been removed from the Property on or before the Occupancy Termination Date shall be deemed abandoned by City, and such personal property and fixtures may be removed and disposed of by Atlantic. The provisions of this Section shall survive the termination of this Agreement. - 6. Remedies. In the event that either party defaults in its obligations hereunder, the non-defaulting party may pursue all remedies available at law or in equity. In the event that either party prevails in any legal proceeding, such prevailing party may recover, to the extent actually incurred
by such party, all reasonable attorneys' fees and court costs. Notwithstanding anything to the contrary, City and Atlantic expressly waive, release, and surrender their rights to pursue consequential, punitive, exemplary, speculative, and special damages, including, without limitation, loss of business, profits or revenue, against each other for defaults arising from this Agreement. - 7. Casualty/Condemnation Event. In the event of a casualty or condemnation, which in either case results in the damage or destruction of all or substantially all of the Property, or materially interferes with the City's Permitted Use at the Property, then the City's responsibility for utilities will abate, the City may, upon three (3) days written notice to Atlantic, terminate this Agreement, and the City shall have no further obligation under this Agreement. For avoidance of doubt, the City shall have no obligation to repair, renovate, replace, restore or otherwise maintain the Property for any reason relating to casualty or condemnation. - 8. Entire Agreement; Modification. This instrument constitutes the entire agreement between the parties in connection with City's rights regarding the Property. No modification of this Agreement shall be effective unless in writing and signed by both parties. - 9. Governing Law. This Agreement shall be construed in accordance with and governed by the laws of the State of Georgia. - 10. Binding Effect. This Agreement shall be binding upon and inure to the benefit of the parties hereto and their respective heirs, legal representatives, agents, employees, contractors, affiliates, successors, and assigns and successors-in-title ("Related Parties"). Except as expressly otherwise provided for in this Agreement, the terms "City" and "Atlantic" shall refer to each parties' Related Parties. The City may not assign this Agreement in whole or in part, nor sublet all or any part of the Property to any party, and any such assignment or subletting shall be void ab initio. - 11. Non-Waiver. No delay or failure by any party to exercise any right hereunder, and no partial or single exercise of such right, shall constitute a waiver of that or any other right, unless otherwise expressly provided herein. - 12. Counterparts. This Agreement may be executed in one or more counterparts, each of which shall be deemed an original but all of which together shall constitute one and the same instrument. The parties acknowledge and agree that notwithstanding any law or presumption to the contrary, an electronic or telefaxed signature of either party upon this Agreement, including, without limitation, electronic signature via DocuSign or similar application, shall be deemed valid and binding and admissible by either party against the other as if same were an original ink signature. - 13. Time of Essence. Time is of the essence of this Agreement. - 14. Notices. All notices shall be in writing and shall be deemed to have been properly given on the earlier of (a) when delivered in person, (b) when deposited in the United States Mail, with adequate postage, and sent by registered or certified mail with return receipt requested, to the appropriate party at the address set out below, (c) when deposited with FedEx, UPS, Express Mail or other nationally recognized overnight delivery service for next day delivery, addressed to the
appropriate party at the address set out below, or (d) when transmitted by electronic mail to the address for each party set forth below. If to Atlantic: c/o The Atlantic Companies 889 Howell Mill Road NW Atlanta, Georgia 30318 ATTN: Jim Meyer & Matt Mason Telephone: (828) 5922 Email: jmeyer@atlanticcapitalproperties.com mmason@gatewayventuresre.com With a copy to: Morris, Manning & Martin, LLP 1600 Atlanta Financial Center 3343 Peachtree Road, N.E. Atlanta, Georgia 30326 ATTN: Christina Graham Telephone: 7652 Email: cgraham@mmmlaw.com City Parties: c/o City of Roswell 38 Hill Street Roswell, Georgia 30075 ATTN: David Davidson, Esq. Telephone: (770) 6183 Email: ddavidson@roswellgov.com With a copy to: Parker, Hudson, Rainer & Dobbs, LLP 303 Peachtree Street NE, Suite 3600 Atlanta, Georgia 30308 Attention: Christine N. Schneider, Esq. Telephone: (404) 5535 Email: cschneider@phrd.com Rejection or other refusal by the addressee to accept, or the inability to deliver because of a changed address or changed facsimile number of which no notice was given, shall be deemed to be receipt of the notice sent. Any party shall have the right, from time to time, to change the street address or email address to which notices to it shall be sent by giving to the other party or parties at least ten (10) business days prior notice of the changed street address or email address. [SIGNATURES APPEAR ON THE FOLLOWING PAGE]
IN WITNESS WHEREOF, the parties have set their hands and seals the day and year first above written. CITY: [INSERT] THE CITY OF ROSWELL, GEORGIA, a political subdivision of the State of Georgia By: Name: Title: Attest: Name: Title: (Seal) ATLANTIC:
EXHIBIT A LEGAL DESCRIPTION [TO BE LIMITED TO BUILDING G]
DRAFT DATE: 09/ /25 MEMORANDUM OF UNDERSTANDING THIS MEMORANDUM OF UNDERSTANDING (this "Agreement") is dated, 20, and is entered into by and between the DOWNTOWN DEVELOPMENT AUTHORITY OF THE CITY OF ROSWELL, a public body corporate and politic of the State of Georgia (the "Authority"), the CITY OF ROSWELL, GEORGIA, a municipal corporation created and existing under the laws of the State of Georgia (the "City"), and HILL STREET APARTMENT OWNER, LLC, a Delaware limited liability company (the "Company"), in order to evidence the agreements of the respective parties hereto. WHEREAS , the Authority is an instrumentality of the State of Georgia and a public body corporate and politic and a development authority duly created by the Development Authorities Law of the State of Georgia, O.C.G.A. § 1, et seq. , as amended (collectively, the " Act "); WHEREAS, the parties have undertaken to develop an ownership structure which will facilitate the acquisition, construction and installation of a multi-family residential development and economic development project under O.C.G.A. § 3(6), in the City (the "Project"), which Project is to be owned by the Authority and leased to the Company pursuant to a Lease Agreement, dated, 20 (the "Lease Agreement"), which will inure to the economic benefit of the citizens of the City; WHEREAS , the Company estimates that the costs of the Project will equal approximately \$60,000,000 and that the Project will result in the creation of approximately construction jobs and permanent management jobs for individuals able to present the paperwork necessary to obtain legal employment; WHEREAS , to induce and facilitate the Project, the Authority has made available to the Company taxable revenue bond financing of up to \$60,000,000 (the " Bond Financing "); WHEREAS, pursuant to a Memorandum of Agreement Regarding Lease Structure and Valuation of Leasehold Interest, dated , 20 (the "MOA"), among the Authority, the Company and the Fulton County Board of Assessors (the "Board"), an executed copy of which is attached hereto as Exhibit A, during each year beginning the year following the completion date of the Project, which completion date is currently estimated to occur on or before December 31, 2028 (the "Completion Date"), the Leasehold Interest (as defined in the MOA) of the Company in the Project will be subject to taxation by the applicable governmental jurisdictions at the fair market value of the Leasehold Interest in that year as determined by the Board in accordance with the MOA; WHEREAS, in its fiscal yea ar 20 budget, the City Council of the City 1 has included the financing of all or a portion of t the costs of acquirin g and construc cting _ (the "[ ] Project");
WHEREAS, the [] Project will directly benefit the Project and is an economic inducement to the Company to locate the Project in the City; WHEREAS, the Authority has found and determined, and does hereby find and determine, that the Project constitutes a lawful and valid public purpose and will further the public purpose intended to be served by the Act; and WHEREAS, in consideration of the above mentioned benefit to the Project derived from the [] Project, the Company has agreed to make certain payments, which are more fully described below. NOW, THEREFORE, in consideration of the foregoing premises, the parties hereto agree as follows: Section 1. Representations and Warranties . The City makes the following representations and warranties: (a) The City is a municipal corporation duly organized and lawfully operating under the Constitution and laws of the State. Under the Constitution and laws of the State, the City is authorized to execute, deliver and perform its obligations under this Agreement. The City has duly authorized the execution, delivery and performance of this Agreement. This Agreement is a valid, binding and enforceable obligation of the City. (b) The City has determined that the [] Project is in the public interest. (c) Except as previously disclosed to the Authority and the Company in writing, no approval or other action by any governmental authority or agency or other person is required in connection with the execution, delivery and performance of this Agreement by the City, except as shall have been obtained as of the date hereof. (d) The authorization, execution, delivery and performance by the City of this Agreement do not violate the laws or Constitution of the State and do not constitute a breach of or a default under, any existing resolution or ordinance, court order, administrative regulation, or other legal decree, or any agreement, indenture, mortgage, lease, note or other instrument to which it is a party or by which it is bound. (e) There is no action, suit, proceeding, inquiry or investigation, at law or in equity before or by any court, public board or body, pending or, to the knowledge of the City threatened against or affecting the City (or, to the knowledge of the City, any meritorious basis therefor) (i) attempting to limit, enjoin or otherwise restrict or prevent the City from undertaking and completing the Project, (ii) contesting or questioning the existence of the City or the titles of the present officers of the City to their offices or (iii) wherein are unfavorable decision, ruling or finding would (A) adversely affect the enforceability of this Agreement or (B) materially adversely affect the transactions contemplated by this Agreement.
The Authority makes the following representations and warranties: - (a) The Authority is a public body corporate and politic duly created and validly existing pursuant to the laws of the State. Under the laws of the State, the Authority is authorized to execute, deliver and perform its obligations under this Agreement. The Authority has duly authorized the execution, delivery and performance of this Agreement. This Agreement is a valid, binding and enforceable obligation of the Authority. - (b) The Authority has determined that the Project constitutes a lawful and valid public purpose and will further the public purpose intended to be served by the Act. - (c) Except as previously disclosed to the City and Company in writing, no approval or other action by any governmental authority or agency or other person is required in connection with the execution, delivery and performance of this Agreement by the Authority, except as shall have been obtained as of the date hereof. - (d) The authorization, execution, delivery and performance by the Authority of this Agreement do not violate the laws of the State and do not constitute a breach of, or a default under, any existing resolution or ordinance, court order, administrative regulation, or other legal decree, or any agreement, indenture, mortgage, lease, note or other instrument to which it is a party or by which it is bound. - (e) There are no actions, suits, proceedings, inquiries or investigations pending, or to the knowledge of the Authority threatened, against or affecting the Authority in any court or before any governmental authority or arbitration board or tribunal which is reasonably anticipated to materially and adversely affect the transactions contemplated by this Agreement or which is reasonably anticipated to adversely affect the validity or enforceability of this Agreement or the ability of the Authority to perform its obligations under any of the foregoing. The Company makes the following representations and warranties: - (a) The Company is a Delaware limited liability company, which is duly organized, existing and in good standing under the laws of the State of Delaware and authorized to transact business under the laws of the State of Georgia, has the power to enter into this Agreement and to perform and observe its obligations contained herein in accordance with the terms hereof, and has, by proper action, been duly authorized to execute, deliver and perform this Agreement in accordance with the terms hereof. - (b) There are no actions, suits, proceedings, inquiries or investigations pending, or to the knowledge of the Company threatened, against or affecting the Company in any court or before any governmental authority or arbitration board or tribunal which is reasonably anticipated to materially and adversely affect the transactions contemplated by this Agreement or which is reasonably anticipated to adversely affect the validity or enforceability of this Agreement or the ability of the Company to perform its obligations under any of the foregoing.
(c) The execution and delivery by the Company of this Agreement and the compliance by the Company with all of the provisions hereof and the consummation of the transactions contemplated hereby (A)(i) are within the corporate power of the Company, (ii) will not conflict with or result in any breach of any of the terms, conditions or provisions of, or constitute a default under, its Articles of Organization, its operating agreement, or any commitment, agreement or instrument of whatever nature to which the Company is a party or by which it may be bound, or to which any of its properties may be subject, or any license, judgment, decree, law, statute, order, rule or regulation of any court or governmental agency or body having jurisdiction over the Company or any of its activities or properties, or (iii) result in the creation or imposition of any prohibited lien, charge or encumbrance of any nature whatsoever upon any of the property or assets of the Company under the terms of any instrument or agreement, and (B) have been duly authorized by all necessary action on the part of the Company. - (d) Neither the Company nor any of its business or properties, nor any relationship between the Company and any other person, nor any circumstance in connection with the execution, delivery and performance by the Company of this Agreement, is such as to require the consent, approval or authorization of, or the filing, registration or qualification with, any governmental authority on the part of the Company, except for development, construction and operational permits required in connection with the Project. - (e) This Agreement is a legal, valid and binding obligation of the Company enforceable in accordance with its terms, except to the extent the enforceability hereof may be subject to (i) the exercise of judicial discretion in accordance with general principles of equity, and (ii) bankruptcy, insolvency, reorganization, moratorium, or other similar laws affecting creditors' rights heretofore or hereinafter enacted to the extent constitutionally applicable. Section 2. Obligations of the City Relating to Project. - (a) Promptly following the date of closing of the Bond Financing, in accordance with the customary process for the design and construction of a publicly maintained road in the City, the City agrees that it shall commence the process of bidding out the design contract and, upon completion of such design, the construction contract for the [\\\] Project. The parties to this Agreement acknowledge that, prior to the finalization of the design contract, the City shall seek and obtain the input and approval of the Company with respect to the final design specifications relating to the [\\\] Project to assure compatibility with the Project. - (b) Notwithstanding the generality of the foregoing, the City agrees that (i) construction of the [\\\] Project shall commence on or before twelve (12) months following the date of closing of the Bond Financing, and (ii) construction of the [\\_] Project shall be diligently pursued thereafter to completion which shall occur on or before twenty-four months (24) months following the date of closing of the Bond Financing; provided, however, that the parties agree that the dates set forth in (i) and (ii) may be extended upon the written agreement of both the City and the Company.
(c) The Company acknowledges that the willingness of the City to acquire, construct and install the [\\_] Project at this time depends on the obligation of the Company to make the Company Payments pursuant to the provisions of this Agreement. Notwithstanding anything herein to the contrary, in the event that there is a delay in the construction commencement date or the construction completion date (collectively, the "Deadlines") caused by events and circumstances beyond the control of the City, and the City has shown diligence in attempting to timely meet such Deadlines, the Company shall agree to extend such Deadlines to accommodate such events and circumstances. Section 3. Company Payments. The methodology for determining the fair market value of the Leasehold Interest of the Company is set forth in the MOA, which provide that the fair market value of the Leasehold Interest of the Company in the Project shall be equal to the "applicable percentage" (for purposes of the remainder of this Agreement, the "applicable percentage" in the MOA shall be referred to as the "Payment Percentage") for each year as set forth below, multiplied by the fair market value of the fee interest of the Project in such year. The related "Savings Percentage" set forth below is the result of subtracting the Payment Percentage from 100%. The savings provided by the application of the leasehold valuation methodology set forth in the MOA shall be equal to the Savings Percentage for such year multiplied by the assessed value of the Project for such year (40% of the fair market value of the fee interest of the Project) and thereafter multiplied by the millage rates established by Fulton County, Georgia (the "County") and the City (the "Savings Amount"). The Payment Percentage and Savings Percentage in each year during this ten (10)-year period will be as follows: Payment Savings Percentage Percentage First Year 50% 50% Second Year 55% 45% Third Year 60% 40% Fourth Year 65% 35% Fifth Year 70% 30% Sixth Year 75% 25% Seventh Year 80% 20% Eighth Year 85% 15% Ninth Year 90% 10% Tenth Year 95% 5% The "First Year" shall be the year commencing on January 1 of the year immediately following the Completion Date (which is currently estimated to occur on or before December 31, 2028) (as further defined in the MOA). Following the Tenth Year, the Leasehold Interest of the Company will be subject to taxation at 100% of the fair market value of the fee interest.
Subject to the satisfactory performance of the obligations of the City under this Agreement including, without limitation, Section 2 hereof, commencing in the First Year and for each year thereafter through the Tenth Year, on or before the date set for the payment of ad valorem property taxes in the County generally for such year, the Company shall make payments to the City (the "Company Payments") in an amount equal to 100% of the Savings Amount for each such year. Example 1: For the First Year, if the fair market value of the fee interest of the Project for such year equals \$50,000,000 and the applicable millage rate is .033864, the Savings Amount shall equal \$338,640 ((\$50,000,000 x .40) x .033864 [mills] x .5 [50% Savings Percentage]). Accordingly, the Company Payment to the Authority would be \$\$338,640. Promptly after the Board mails tax bills in the First Year and for each year thereafter through the Tenth Year, the Authority shall provide the Company at the notice address set forth in Section 6(c) below with an invoice for the amount of the Company Payments due for such year. Each Contract Payment shall be paid to the Authority at the notice address set forth in Section 6(c) below. Upon receipt of each Contract Payment, the Authority shall promptly pay an amount equal to such Contract Payment to the City. The preceding agreement between the Authority and the City shall constitute an intergovernmental agreement as provided in Section 3, below. Section 4. Intergovernmental Agreement. This Agreement shall also constitute an intergovernmental agreement under Georgia Constitution Art. IX, Sec. III, Para. I between the Authority and the City. Such intergovernmental agreement is subject to the year term limit contained in such provision of the Georgia Constitution, but shall expire earlier upon its complete performance. Section 5. Effective Date of this Agreement; Duration of Term. This Agreement shall become effective as of the date of the closing of the Bond Financing and the interests created by this Agreement shall then begin, and, subject to the other provisions of this Agreement, shall expire on the later of (a) December 31, 2028, or (b) the date the Company Payments have been paid in full. Section 6. Miscellaneous. (a) Assignment by the Company. The Company hereby agrees that all rights and benefits of the Company under this Agreement shall be transferred and assigned by the Company to any party to which the Lease Agreements are transferred and assigned and that such transfer and assignment of the Lease Agreements shall be contingent upon the transfer and assignment hereof to such party. Upon any such assignment, the assignee shall be responsible for payment of all Company Payments hereunder and the Company shall have no further obligations under this Agreement. Any such assignment shall not require the consent of the City or Authority, except to the extent the Authority's consent is required under the terms of the Lease Agreements.
(b) Estoppel Certificates. Upon ten business days written request of the Company, the Authority and the City will provide a statement to (a) any lender providing financing for the Project or (b) a proposed assignee of the Lease Agreements concerning (i) whether a default exists under this Agreements, and if so specifying the nature of such default; (ii) whether this Agreement has been amended, and if so, specifying the amendments; and (iii) any other matter concerning this Agreement reasonably requested by such holder or proposed assignee. - (c) Notices. Any notice required to be given by any party pursuant to this Agreement, shall be in writing and shall be deemed to have been properly given, rendered or made only if personally delivered, or if sent by Federal Express or other comparable commercial overnight delivery service, addressed to each other party at the addresses set forth below (or to such other address as the City or the Company may designate to each other from time to time by written notice), and shall be deemed to have been given, rendered or made on the day so delivered or on the first business day after having been deposited with the courier service: If to the City: City of Roswell, Georgia 38 Hill Street, Suite 110 Roswell, GA 30075 Attention: Mayor with a copy to: David Davidson, Esq. City Attorney City of Roswell, Georgia 38 Hill Street, Suite 110 Roswell, GA 30075 and to: Gray Pannell & Woodward LLP 336 Hill Street Athens, Georgia 30601 Attention: James R. Woodward, Esq. If to the Authority: Downtown Development Authority of the City of Roswell, Georgia P.O. Box 1452 Roswell, GA 30077 email:contact@roswelldda.com Attention: Chairman with a copy to: Alex B. Kaufman, Esq. Chalmers, Adams, Backer & Kaufman, LLC 100 N Main St Suite 340 Alpharetta, Georgia 30009 If to the Company: Hill Street Apartment Owner, LLC 898 Howell Mill Rd., NW Atlanta, GA 30318
Attention: Mr. Jim Meyer with a copy to: Morris, Manning & Martin, LLP 1600 Atlanta Financial Center 3343 Peachtree Road, NE Atlanta, GA 30326 Attention: Christina M. Graham, Esq. - (d) No Partnership or Agency. No partnership or agency relationship between or among the parties shall be created as a result of this Agreement. - (e) Governing Law; Jurisdiction and Venue. The transactions contemplated hereunder and the validity and effect of this Agreement are exclusively governed by, and shall be exclusively construed and enforced in accordance with, the laws of the State of Georgia, except for the state's conflict of law rules. The Company consents to jurisdiction over it and to venue in Fulton County, Georgia. - (f) Amendments. Any amendments, deletions, additions, changes or corrections hereto must be in writing executed by the parties hereto. - (g) Entire Agreement. This Agreement constitutes the entire agreement between the parties with respect to the subject matter hereof. - (h) Counterparts. This Agreement may be signed in counterparts, each of which shall be an original and all of which together shall constitute one and the same instrument. - (i) No Personal Liability of Representatives of Public Bodies. No official, member, director, officer, agent, or employee of the Authority or the City shall have any personal liability under or relating to this Agreement. Rather, the agreements, undertakings, representations, and warranties contained herein are and shall be construed only as corporate agreements, undertakings, representations, and warranties, as appropriate, of such public bodies. Without limitation, and without implication to the contrary, all parties hereto waive and release any and all claims against each such official, member, director, officer, agent, or employee, personally, under or relating to this Agreement, in consideration of the entry of such public bodies into this Agreement. - (j) No Personal Liability of Representatives of Company. No official, member, manager, director, officer, agent, or employee of the Company shall have any personal liability under or relating to this Agreement. Rather, the agreements, undertakings, representations, and warranties contained herein are and shall be construed only as corporate agreements, undertakings, representations, and warranties, as appropriate, of such entity. Without limitation, and without implication to the contrary, all parties hereto waive and release any and all claims against each such official, member, manager, director, officer, agent, or employee, personally, under or relating to this Agreement, in consideration of the entry of such entity into this Agreement.
(k) Time is of the Essence. Time is of the essence of this Agreement. [Signature Pages Follow]
Under 20 stand Memorandum te: CITY: CITY ( OF ROS WELL, G EORG GIA By: May yor Clerk (SEAI .) [Memorandum of Understanding re [\\_] Project]
AUTHORITY: DOWNTOWN DEVELOPMENT AUTHORITY OF THE CITY OF ROSWELL, GEORGIA By: Chairman Attest: Secretary
COMPANY: HILL STREET APARTMENT OWNER, LLC a Delaware limited liability company By: \\\\\\\\\\\\\\ Name: Title: Attest: By: \\\\\\\\\\\\\\\ \\\\\\\\\\\\ (SEAL) [Memorandum of Understanding re \\\\\\_ Project]
EXHIBIT A Memoranda of Understanding Regarding Lease Structure and Valuation of Leasehold Interest
DRAFT DATE: 07/25/25 MEMORANDUM OF AGREEMENT REGARDING LEASE STRUCTURE AND VALUATION OF LEASEHOLD INTEREST [ATLANTIC], a [Delaware] [limited liability company] (the "Company"), has evaluated the feasibility of financing the acquisition, construction and installation of a mixed-use commercial facility and economic development project under O.C.G.A. § 3(6) in the City of Roswell, Georgia (the "Project") to be owned by the Downtown Development Authority of the City of Roswell, Georgia (the "Authority") and leased to the Company. The Project is located at [ADDRESS], City of Roswell, Fulton County, Georgia in an air rights parcel more particularly described on Exhibit A attached hereto (the "Project Site"). The Company estimates that by [\\\\, 20\], it expects to make or cause to be made aggregate capital expenditures of approximately \$[\\\] towards the acquisition, construction, and installation of the Project on behalf of the Authority, for lease to the Company. The Project will generate, directly or indirectly, approximately [\\] new permanent and [\\] new construction employment opportunities for individuals able to present the paperwork necessary to obtain legal employment. The parties agree that nothing herein contained shall be construed as an attestation by the Fulton County Board of Assessors (the "Board") or the Authority as to the economic viability of the Project. The parties acknowledge that they have entered into this Memorandum in good faith, and that the Board and the Authority make no representations or warranties regarding any outcome or consequences of any future legal challenges. In order to induce and facilitate the development of the Project within Fulton County, upon the Company's request the Authority will make available to the Company conduit taxable revenue bond financing in an amount not to exceed \$[\\_] (the "Bond Financing"), which covers all or a part of the anticipated capital investment at the Project, and the Board proposes to utilize the ad valorem valuation methodology set forth in this Memorandum. Under the proposed transaction and contemporaneously with, or subsequent to, the closing of the Bond Financing, the Company would transfer the Project and all components thereof, as then existing, to the Authority, or cause the same to be so transferred, and the Authority and the Company would enter into a lease agreement (the "Lease," substantially in the form attached hereto as Exhibit B) under which the Authority would lease the Project as then or thereafter existing to the Company. The Company's rental payments under the Lease would be an amount sufficient, and would be payable at such times, as would permit the Authority to pay the principal of and interest on the bonds issued as part of the Bond Financing (the "Bonds") as and when the same become due and payable. The Lease would grant to the Company an option to acquire the Project at the termination of the Lease; provided that appropriate provision is made for the retirement of the Bonds prior to or in connection with any such conveyance of the Project at the termination of the Lease. The Lease contains provisions permitting the assignment of the Company's interest thereunder pursuant to certain conditions and requirements.
The Company may purchase the Bonds itself or through one of its wholly owned subsidiaries, or would otherwise arrange for purchase of the Bonds issued by the Authority. If the Company or any affiliate of the Company is the holder of all outstanding Bonds, the Company may prepay all Lease rentals and all Bond indebtedness by surrendering the Bonds or causing the Bonds to be surrendered to the Authority for cancellation. It is anticipated that legal transfer of the Project to the Authority and the execution and delivery of the Lease between the Company and the Authority therefor would occur on or before December 31, 2025. The completion and/or occupancy of the Project by the Company, as determined by the Board, shall constitute the completion date (the "Completion Date") for purposes of this Memorandum. As to be provided in the Lease, the Company will have access to and control of the Project prior to the Completion Date in order to complete the acquisition, construction, installation and leasing of the Project. The term of the Lease will expire on or about ten years from the date of the Completion Date. All parties to this Memorandum recognize and agree that the Authority is not subject to ad valorem taxation on its interest in either the real property or the personal property portions of the Project. The parties further understand and agree that the Company will be subject to ad valorem taxation on its leasehold interest in the Project (the "Leasehold Interest"). Pursuant to O.C.G.A. § 16.1(e) and the decision of the Supreme Court of Georgia in W.C. Harris, et al. v. DeKalb County Board of Tax Assessors, 248 Ga. 277 (1981) (the "Harris Case"), which permits the Board to agree in advance to fixed or percentage, reasonable and non-arbitrary valuation methods, the parties (including any assignee of the Company pursuant to an assignment in accordance with the applicable provisions of the Lease) desire to agree upon an appropriate, reasonable and nonarbitrary methodology for valuation of the Leasehold Interest. The Board acknowledges and attests to its familiarity with the form of Lease attached hereto as Exhibit B, and expressly confirms that it will discharge its official responsibility relating to the valuation of property within Fulton County for ad valorem tax purposes by appraising and valuing the fair market value of the Leasehold Interest in accordance with applicable law, including specifically Sherman v. Fulton County Board of Assessors, et. al., 288 Ga. 88 (2010), SJN Properties, LLC v. Fulton County Board of Assessors, et. al., 296 Ga. 793 (2015) and the Harris Case and the valuation technique therein set forth. In order to provide the Company with sufficient information and certainty upon which it can base its decision to carry out the Project in Fulton County, the parties agree that it is important to set forth the methodology by which it is agreed that the Leasehold Interest of the Company in the Project will be valued for ad valorem property purposes. That methodology, which represents the utilization by the Board of the "income approach to appraisal" with a reasonable and non-arbitrary discounted cash flow analysis for the successive years of the Lease term, is as follows: 1. It is expected that the Project will be completed by [\\\\\\\\\\\\\\\\\_
conveyance, the Company hereby agrees that such property shall remain subject to taxation in Fulton County until the Tax Commencement Date, and the Company agrees to tender timely tax payment amounts to Fulton County, based on the assessed value of such property for tax purposes immediately prior to the conveyance of such property to the Authority. 2. Beginning on the Tax Commencement Date, assets acquired by the Authority will be valued for ad valorem property tax purposes based on the following ten (10) year schedule, which has been determined based on the precedent established in the Harris Case and utilizes approximate percentages to reflect the discounted cash flow analysis, with a seven percent (7%) discount rate over the successive years of said ten (10) year schedule. During each year, the Leasehold Interest of the Company in the assets acquired and owned by the Authority will be subject to taxation by the applicable governmental jurisdiction at the fair market value of the Leasehold Interest in that year as determined by the Board in accordance with this Memorandum. It is agreed that the fair market value of the Leasehold Interest of the Company in such assets shall increase as the lease term progresses and for any year will equal the "applicable percentage" for such year as described above and as set forth below, multiplied by the fair market value of the fee interest of such assets in such year. The "applicable percentage" in each year during this ten (10)-year period will be as follows: First Year 50% Second Year 55% Third Year 60% Fourth Year 65% Fifth Year 70% Sixth Year 75% Seventh Year 80% Eighth Year 85% Ninth Year 90% Tenth Year 95% Following the tenth (10th) year, the Leasehold Interest of the Company will be subject to taxation at 100% of the fair market value of the fee interest. 3. The determination of the fair market value of the fee interest in any asset in any year following the Tax Commencement Date (prior to being reduced by the applicable percentage) will be subject to periodic reassessment, for which the Board will employ its standard valuation methods. The fair market value of the Leasehold Interest valued thereunder, after being reduced by the applicable percentage, shall be multiplied by 40% to determine the assessed value of each such category for such year and thereafter multiplied by the millage rate established by Fulton County and any applicable municipality, to the extent the Project is located within the geographical boundaries of such municipality, with respect to such year, to determine the ad valorem tax for such year. On an annual basis, the Company shall return the property comprising the Project for ad valorem taxation purposes in Fulton County and shall also deliver to the Authority and the Board on or before the anniversary date of this Memorandum such additional documentation and information as may be necessary in order for the Board to value the Project and portions thereof.
It is the responsibility of the Company to provide to the Authority and the Board a copy of the certificate of occupancy for the Project, if applicable, in order for the Board to properly value the Project and apply the above schedule. By their signature appearing at the end of this Memorandum, all parties (including any assignee of the Company pursuant to an assignment in accordance with the applicable provisions of the Lease) acknowledge having reviewed the specific terms of the Lease and now concur in the above valuation of the Leasehold Interests for ad valorem tax purposes by Board. [SIGNATURES BEGIN ON FOLLOWING PAGE]
Dated as of the day of , 2025. FULTON COUNTY BOARD OF ASSESSORS By: Title: in an existing air rights parcel (Parcel ID No the Board once created by the Board's staff 1 which is below the air rights parcel (Parcel N No) will not be included in the Project.
DOWNTOWN DEVELOPMENT AUTHORITY OF THE CITY OF ROSWELL, GEORGIA By: Thomas Smith, Chairman
4.m Packet Pg. 414 Attachment: Memorandum of Agreement - Roswell (2025) (Approval of a Resolution Supporting the DDA Hill Street Project) [ATLANTIC] By: Name: Title:
EXHIBIT A LEGAL DESCRIPTION
EXHIBIT B FORM OF LEASE [Attached]
City of Roswell Mayor and Council AGENDA ITEM REPORT ID # - 10112 MEETING DATE: October 14, 2025 DEPARTMENT: City Attorney's Report ITEM TYPE: Memorandum of Understanding Approval of a Memorandum of Understanding for a redevelopment project known as City Center at Highway 9 and Holcomb Bridge Road. Item Summary: Authorize the Mayor or City Administrator to sign a Memorandum of Understanding (MOU) for the redevelopment of 47 acres located at Hwy 9 and Holcomb Bridge road known as City Center. Recommended Motion: Motion authorizing the Mayor or City Administrator to sign a Memorandum of Understanding for a redevelopment project known as City Center at the intersection of Highway 9 and Holcomb Bridge Road. Presented by: David Davidson, City Attorney Updated: 10/10/2025 1:35 PM Page 1
MEMORANDUM OF UNDERSTANDING City of Roswell and Its Authorities, Morris and Fellows Ventures, South City Partners, Hedgewood Homes and Mimms Enterprises Inc. THIS MEMORANDUM OF UNDERSTANDING (the "MOU"), made and entered into as of this \\ day of \\_, 2025, by and between the City of Roswell and/or the Roswell Development Authority (hereinafter referred to as the "CITY"), Mimms Enterprises, Inc. ("PROPERTY OWNER"), and Morris and Fellows Ventures, South City Partners and Hedgewood Homes. (hereinafter together referred to as "DEVELOPERS"). - 1. PURPOSE: The PROPERTY OWNER, DEVELOPERS and the CITY are interested in redeveloping approximately 47 acres located at the northwest corner of Georgia Highway 9 and State Route 140 (Holcomb Bridge Road) for a mixed-use development to create job opportunities, civic programming and economic development within the City of Roswell, Georgia. - 2. PROJECT: The PROPERTY OWNER, DEVELOPERS AND CITY hereby understand that the project may include commercial, residential, office, educational and/or civic uses and spaces. - 3. ROLES AND RESPONSIBILITIES: A. PROPERTY OWNER - 1. Grant access to the property for planning, environmental and engineering assessments; - 2. Cooperate in negotiation of a development agreement and/or sales, lease or joint venture with the DEVELOPERS; - 3. Provide necessary documents demonstrating legal ownership and authority to proceed B. DEVELOPERS: - 1. Conduct due diligence, including environmental, financial and legal feasibility studies; - 2. Prepare a conceptual master plan and phased development schedule; - 3. Engage consultants, engineers and architects as needed; - 4. Work with the CITY to secure permits and approvals; - 5. Secure financing for the project C. CITY: - 1. Facilitate the project through planning, zoning permitting and infrastructure coordination; - 2. Consider available incentives; - 3. Engage in public outreach and engagement; - 4. Participate in ongoing coordination meetings - 4. NON-BINDING: This MOU is intended to reflect the good-faith intentions of the Parties but does not constitute a legally binding agreement to proceed with the project. A binding agreement shall only arise upon execution of a formal agreement or definitive documents approved by all parties. - 5. TERMINATION: This MOU may be terminated by any party upon thirty (30) days' written notice to the other parties. - 6. CONFIDENTIALITY: to the extent allowed by Georgia law the parties agree to maintain confidentiality of non-public information. - 7. TIMELINES: Parties agree to determine preliminary timelines for the project. - 8. GOVERNING LAW: This MOU and all future agreements shall be governed bylaws of the State of Georgia.
IN WITNESS WHEREOF, the parties hereto have executed this MOU under the day and year first above written. MIMMS ENTERPRISES INC. By: Name: Title: Date: MORRIS AND FELLOWS VENTURES By: Name: Title: Date: HEDGEWOOD HOMES By: Name: Title: Date: SOUTH CITY PARTNERS By: Name: Title: Date: CITY OF ROSWELL By: Name: Kurt M. Wilson Title: Mayor Date:
City of Roswell Mayor and Council AGENDA ITEM REPORT ID # - 10079 MEETING DATE: October 14, 2025 DEPARTMENT: City Attorney's Report ITEM TYPE: Closure Recommendation for Closure to Discuss Personnel, Litigation and Real Estate. Item Summary: Recommendation for Closure to Discuss Personnel, Litigation and Real Estate. Presented by: David Davidson, City Attorney Updated: 9/25/2025 9:19 AM Page 1

Images Found in Document

229 image(s) extracted

_page_1_Picture_0.jpeg

_page_1_Picture_0.jpeg

.JPEG

_page_3_Picture_1.jpeg

_page_3_Picture_1.jpeg

.JPEG

_page_4_Picture_3.jpeg

_page_4_Picture_3.jpeg

.JPEG

_page_5_Picture_1.jpeg

_page_5_Picture_1.jpeg

.JPEG

_page_6_Picture_12.jpeg

_page_6_Picture_12.jpeg

.JPEG

_page_7_Picture_1.jpeg

_page_7_Picture_1.jpeg

.JPEG

_page_8_Picture_1.jpeg

_page_8_Picture_1.jpeg

.JPEG

_page_9_Picture_1.jpeg

_page_9_Picture_1.jpeg

.JPEG

_page_10_Picture_3.jpeg

_page_10_Picture_3.jpeg

.JPEG

_page_11_Picture_3.jpeg

_page_11_Picture_3.jpeg

.JPEG

_page_15_Picture_3.jpeg

_page_15_Picture_3.jpeg

.JPEG

_page_17_Picture_3.jpeg

_page_17_Picture_3.jpeg

.JPEG

_page_18_Picture_1.jpeg

_page_18_Picture_1.jpeg

.JPEG

_page_20_Picture_2.jpeg

_page_20_Picture_2.jpeg

.JPEG

_page_21_Picture_2.jpeg

_page_21_Picture_2.jpeg

.JPEG

_page_22_Picture_1.jpeg

_page_22_Picture_1.jpeg

.JPEG

_page_23_Picture_1.jpeg

_page_23_Picture_1.jpeg

.JPEG

_page_24_Picture_1.jpeg

_page_24_Picture_1.jpeg

.JPEG

_page_25_Picture_5.jpeg

_page_25_Picture_5.jpeg

.JPEG

_page_26_Picture_12.jpeg

_page_26_Picture_12.jpeg

.JPEG

_page_27_Picture_7.jpeg

_page_27_Picture_7.jpeg

.JPEG

_page_28_Picture_3.jpeg

_page_28_Picture_3.jpeg

.JPEG

_page_28_Picture_5.jpeg

_page_28_Picture_5.jpeg

.JPEG

_page_29_Picture_6.jpeg

_page_29_Picture_6.jpeg

.JPEG

_page_29_Picture_7.jpeg

_page_29_Picture_7.jpeg

.JPEG

_page_29_Picture_9.jpeg

_page_29_Picture_9.jpeg

.JPEG

_page_30_Figure_2.jpeg

_page_30_Figure_2.jpeg

.JPEG

_page_30_Picture_3.jpeg

_page_30_Picture_3.jpeg

.JPEG

_page_31_Picture_5.jpeg

_page_31_Picture_5.jpeg

.JPEG

_page_31_Picture_6.jpeg

_page_31_Picture_6.jpeg

.JPEG

_page_31_Picture_8.jpeg

_page_31_Picture_8.jpeg

.JPEG

_page_32_Picture_6.jpeg

_page_32_Picture_6.jpeg

.JPEG

_page_32_Picture_7.jpeg

_page_32_Picture_7.jpeg

.JPEG

_page_33_Picture_18.jpeg

_page_33_Picture_18.jpeg

.JPEG

_page_34_Picture_8.jpeg

_page_34_Picture_8.jpeg

.JPEG

_page_35_Picture_3.jpeg

_page_35_Picture_3.jpeg

.JPEG

_page_36_Picture_1.jpeg

_page_36_Picture_1.jpeg

.JPEG

_page_40_Picture_1.jpeg

_page_40_Picture_1.jpeg

.JPEG

_page_41_Figure_2.jpeg

_page_41_Figure_2.jpeg

.JPEG

_page_42_Figure_2.jpeg

_page_42_Figure_2.jpeg

.JPEG

_page_43_Figure_2.jpeg

_page_43_Figure_2.jpeg

.JPEG

_page_44_Figure_2.jpeg

_page_44_Figure_2.jpeg

.JPEG

_page_45_Picture_2.jpeg

_page_45_Picture_2.jpeg

.JPEG

_page_46_Figure_2.jpeg

_page_46_Figure_2.jpeg

.JPEG

_page_47_Picture_2.jpeg

_page_47_Picture_2.jpeg

.JPEG

_page_48_Picture_2.jpeg

_page_48_Picture_2.jpeg

.JPEG

_page_49_Figure_2.jpeg

_page_49_Figure_2.jpeg

.JPEG

_page_50_Picture_0.jpeg

_page_50_Picture_0.jpeg

.JPEG

_page_51_Figure_1.jpeg

_page_51_Figure_1.jpeg

.JPEG

_page_52_Figure_0.jpeg

_page_52_Figure_0.jpeg

.JPEG

_page_53_Figure_1.jpeg

_page_53_Figure_1.jpeg

.JPEG

_page_54_Figure_2.jpeg

_page_54_Figure_2.jpeg

.JPEG

_page_55_Figure_2.jpeg

_page_55_Figure_2.jpeg

.JPEG

_page_56_Picture_0.jpeg

_page_56_Picture_0.jpeg

.JPEG

_page_57_Picture_0.jpeg

_page_57_Picture_0.jpeg

.JPEG

_page_59_Picture_0.jpeg

_page_59_Picture_0.jpeg

.JPEG

_page_60_Figure_1.jpeg

_page_60_Figure_1.jpeg

.JPEG

_page_61_Figure_2.jpeg

_page_61_Figure_2.jpeg

.JPEG

_page_62_Picture_2.jpeg

_page_62_Picture_2.jpeg

.JPEG

_page_64_Figure_2.jpeg

_page_64_Figure_2.jpeg

.JPEG

_page_65_Figure_2.jpeg

_page_65_Figure_2.jpeg

.JPEG

_page_66_Figure_2.jpeg

_page_66_Figure_2.jpeg

.JPEG

_page_67_Figure_2.jpeg

_page_67_Figure_2.jpeg

.JPEG

_page_68_Picture_2.jpeg

_page_68_Picture_2.jpeg

.JPEG

_page_69_Picture_0.jpeg

_page_69_Picture_0.jpeg

.JPEG

_page_70_Figure_2.jpeg

_page_70_Figure_2.jpeg

.JPEG

_page_71_Figure_2.jpeg

_page_71_Figure_2.jpeg

.JPEG

_page_72_Figure_2.jpeg

_page_72_Figure_2.jpeg

.JPEG

_page_73_Figure_2.jpeg

_page_73_Figure_2.jpeg

.JPEG

_page_74_Figure_2.jpeg

_page_74_Figure_2.jpeg

.JPEG

_page_74_Picture_3.jpeg

_page_74_Picture_3.jpeg

.JPEG

_page_75_Picture_0.jpeg

_page_75_Picture_0.jpeg

.JPEG

_page_76_Figure_2.jpeg

_page_76_Figure_2.jpeg

.JPEG

_page_77_Figure_2.jpeg

_page_77_Figure_2.jpeg

.JPEG

_page_78_Figure_2.jpeg

_page_78_Figure_2.jpeg

.JPEG

_page_79_Figure_2.jpeg

_page_79_Figure_2.jpeg

.JPEG

_page_80_Picture_0.jpeg

_page_80_Picture_0.jpeg

.JPEG

_page_81_Picture_0.jpeg

_page_81_Picture_0.jpeg

.JPEG

_page_82_Figure_1.jpeg

_page_82_Figure_1.jpeg

.JPEG

_page_83_Figure_2.jpeg

_page_83_Figure_2.jpeg

.JPEG

_page_84_Figure_2.jpeg

_page_84_Figure_2.jpeg

.JPEG

_page_85_Figure_1.jpeg

_page_85_Figure_1.jpeg

.JPEG

_page_86_Picture_2.jpeg

_page_86_Picture_2.jpeg

.JPEG

_page_87_Figure_8.jpeg

_page_87_Figure_8.jpeg

.JPEG

_page_89_Figure_1.jpeg

_page_89_Figure_1.jpeg

.JPEG

_page_90_Picture_2.jpeg

_page_90_Picture_2.jpeg

.JPEG

_page_91_Picture_1.jpeg

_page_91_Picture_1.jpeg

.JPEG

_page_92_Figure_2.jpeg

_page_92_Figure_2.jpeg

.JPEG

_page_93_Picture_2.jpeg

_page_93_Picture_2.jpeg

.JPEG

_page_94_Picture_2.jpeg

_page_94_Picture_2.jpeg

.JPEG

_page_95_Picture_2.jpeg

_page_95_Picture_2.jpeg

.JPEG

_page_96_Picture_2.jpeg

_page_96_Picture_2.jpeg

.JPEG

_page_97_Picture_2.jpeg

_page_97_Picture_2.jpeg

.JPEG

_page_98_Picture_2.jpeg

_page_98_Picture_2.jpeg

.JPEG

_page_99_Picture_2.jpeg

_page_99_Picture_2.jpeg

.JPEG

_page_100_Picture_2.jpeg

_page_100_Picture_2.jpeg

.JPEG

_page_101_Picture_2.jpeg

_page_101_Picture_2.jpeg

.JPEG

_page_102_Figure_0.jpeg

_page_102_Figure_0.jpeg

.JPEG

_page_104_Figure_0.jpeg

_page_104_Figure_0.jpeg

.JPEG

_page_104_Picture_4.jpeg

_page_104_Picture_4.jpeg

.JPEG

_page_105_Figure_0.jpeg

_page_105_Figure_0.jpeg

.JPEG

_page_106_Figure_2.jpeg

_page_106_Figure_2.jpeg

.JPEG

_page_106_Figure_9.jpeg

_page_106_Figure_9.jpeg

.JPEG

_page_106_Picture_11.jpeg

_page_106_Picture_11.jpeg

.JPEG

_page_106_Figure_12.jpeg

_page_106_Figure_12.jpeg

.JPEG

_page_111_Picture_4.jpeg

_page_111_Picture_4.jpeg

.JPEG

_page_112_Picture_4.jpeg

_page_112_Picture_4.jpeg

.JPEG

_page_114_Picture_3.jpeg

_page_114_Picture_3.jpeg

.JPEG

_page_116_Figure_3.jpeg

_page_116_Figure_3.jpeg

.JPEG

_page_117_Picture_4.jpeg

_page_117_Picture_4.jpeg

.JPEG

_page_117_Picture_7.jpeg

_page_117_Picture_7.jpeg

.JPEG

_page_117_Picture_16.jpeg

_page_117_Picture_16.jpeg

.JPEG

_page_118_Picture_4.jpeg

_page_118_Picture_4.jpeg

.JPEG

_page_119_Picture_4.jpeg

_page_119_Picture_4.jpeg

.JPEG

_page_119_Picture_5.jpeg

_page_119_Picture_5.jpeg

.JPEG

_page_119_Picture_11.jpeg

_page_119_Picture_11.jpeg

.JPEG

_page_119_Picture_13.jpeg

_page_119_Picture_13.jpeg

.JPEG

_page_120_Picture_8.jpeg

_page_120_Picture_8.jpeg

.JPEG

_page_120_Picture_16.jpeg

_page_120_Picture_16.jpeg

.JPEG

_page_120_Picture_17.jpeg

_page_120_Picture_17.jpeg

.JPEG

_page_121_Picture_4.jpeg

_page_121_Picture_4.jpeg

.JPEG

_page_121_Picture_7.jpeg

_page_121_Picture_7.jpeg

.JPEG

_page_121_Figure_14.jpeg

_page_121_Figure_14.jpeg

.JPEG

_page_121_Picture_16.jpeg

_page_121_Picture_16.jpeg

.JPEG

_page_122_Picture_4.jpeg

_page_122_Picture_4.jpeg

.JPEG

_page_123_Picture_4.jpeg

_page_123_Picture_4.jpeg

.JPEG

_page_125_Figure_3.jpeg

_page_125_Figure_3.jpeg

.JPEG

_page_126_Picture_4.jpeg

_page_126_Picture_4.jpeg

.JPEG

_page_126_Picture_5.jpeg

_page_126_Picture_5.jpeg

.JPEG

_page_126_Picture_14.jpeg

_page_126_Picture_14.jpeg

.JPEG

_page_127_Picture_8.jpeg

_page_127_Picture_8.jpeg

.JPEG

_page_127_Picture_17.jpeg

_page_127_Picture_17.jpeg

.JPEG

_page_127_Picture_18.jpeg

_page_127_Picture_18.jpeg

.JPEG

_page_129_Picture_4.jpeg

_page_129_Picture_4.jpeg

.JPEG

_page_130_Figure_3.jpeg

_page_130_Figure_3.jpeg

.JPEG

_page_138_Figure_4.jpeg

_page_138_Figure_4.jpeg

.JPEG

_page_139_Picture_4.jpeg

_page_139_Picture_4.jpeg

.JPEG

_page_141_Picture_6.jpeg

_page_141_Picture_6.jpeg

.JPEG

_page_141_Picture_8.jpeg

_page_141_Picture_8.jpeg

.JPEG

_page_143_Picture_13.jpeg

_page_143_Picture_13.jpeg

.JPEG

_page_143_Picture_16.jpeg

_page_143_Picture_16.jpeg

.JPEG

_page_144_Picture_30.jpeg

_page_144_Picture_30.jpeg

.JPEG

_page_145_Picture_33.jpeg

_page_145_Picture_33.jpeg

.JPEG

_page_146_Picture_23.jpeg

_page_146_Picture_23.jpeg

.JPEG

_page_147_Picture_6.jpeg

_page_147_Picture_6.jpeg

.JPEG

_page_147_Picture_8.jpeg

_page_147_Picture_8.jpeg

.JPEG

_page_147_Picture_10.jpeg

_page_147_Picture_10.jpeg

.JPEG

_page_147_Picture_13.jpeg

_page_147_Picture_13.jpeg

.JPEG

_page_147_Picture_16.jpeg

_page_147_Picture_16.jpeg

.JPEG

_page_147_Picture_20.jpeg

_page_147_Picture_20.jpeg

.JPEG

_page_148_Figure_7.jpeg

_page_148_Figure_7.jpeg

.JPEG

_page_148_Picture_8.jpeg

_page_148_Picture_8.jpeg

.JPEG

_page_149_Picture_5.jpeg

_page_149_Picture_5.jpeg

.JPEG

_page_149_Picture_6.jpeg

_page_149_Picture_6.jpeg

.JPEG

_page_149_Picture_10.jpeg

_page_149_Picture_10.jpeg

.JPEG

_page_149_Picture_22.jpeg

_page_149_Picture_22.jpeg

.JPEG

_page_150_Figure_4.jpeg

_page_150_Figure_4.jpeg

.JPEG

_page_150_Picture_5.jpeg

_page_150_Picture_5.jpeg

.JPEG

_page_151_Figure_5.jpeg

_page_151_Figure_5.jpeg

.JPEG

_page_151_Picture_6.jpeg

_page_151_Picture_6.jpeg

.JPEG

_page_152_Figure_4.jpeg

_page_152_Figure_4.jpeg

.JPEG

_page_152_Figure_5.jpeg

_page_152_Figure_5.jpeg

.JPEG

_page_153_Picture_3.jpeg

_page_153_Picture_3.jpeg

.JPEG

_page_155_Picture_10.jpeg

_page_155_Picture_10.jpeg

.JPEG

_page_155_Picture_11.jpeg

_page_155_Picture_11.jpeg

.JPEG

_page_156_Picture_9.jpeg

_page_156_Picture_9.jpeg

.JPEG

_page_156_Picture_10.jpeg

_page_156_Picture_10.jpeg

.JPEG

_page_157_Picture_14.jpeg

_page_157_Picture_14.jpeg

.JPEG

_page_158_Picture_8.jpeg

_page_158_Picture_8.jpeg

.JPEG

_page_159_Picture_12.jpeg

_page_159_Picture_12.jpeg

.JPEG

_page_160_Picture_10.jpeg

_page_160_Picture_10.jpeg

.JPEG

_page_161_Picture_3.jpeg

_page_161_Picture_3.jpeg

.JPEG

_page_162_Picture_9.jpeg

_page_162_Picture_9.jpeg

.JPEG

_page_162_Picture_10.jpeg

_page_162_Picture_10.jpeg

.JPEG

_page_163_Figure_10.jpeg

_page_163_Figure_10.jpeg

.JPEG

_page_163_Picture_11.jpeg

_page_163_Picture_11.jpeg

.JPEG

_page_164_Figure_5.jpeg

_page_164_Figure_5.jpeg

.JPEG

_page_164_Picture_6.jpeg

_page_164_Picture_6.jpeg

.JPEG

_page_165_Picture_7.jpeg

_page_165_Picture_7.jpeg

.JPEG

_page_165_Picture_8.jpeg

_page_165_Picture_8.jpeg

.JPEG

_page_166_Picture_18.jpeg

_page_166_Picture_18.jpeg

.JPEG

_page_167_Picture_10.jpeg

_page_167_Picture_10.jpeg

.JPEG

_page_167_Picture_11.jpeg

_page_167_Picture_11.jpeg

.JPEG

_page_168_Picture_12.jpeg

_page_168_Picture_12.jpeg

.JPEG

_page_169_Picture_12.jpeg

_page_169_Picture_12.jpeg

.JPEG

_page_170_Picture_3.jpeg

_page_170_Picture_3.jpeg

.JPEG

_page_172_Picture_2.jpeg

_page_172_Picture_2.jpeg

.JPEG

_page_173_Picture_11.jpeg

_page_173_Picture_11.jpeg

.JPEG

_page_174_Picture_11.jpeg

_page_174_Picture_11.jpeg

.JPEG

_page_179_Figure_0.jpeg

_page_179_Figure_0.jpeg

.JPEG

_page_180_Figure_0.jpeg

_page_180_Figure_0.jpeg

.JPEG

_page_183_Figure_0.jpeg

_page_183_Figure_0.jpeg

.JPEG

_page_187_Figure_0.jpeg

_page_187_Figure_0.jpeg

.JPEG

_page_190_Figure_0.jpeg

_page_190_Figure_0.jpeg

.JPEG

_page_191_Figure_0.jpeg

_page_191_Figure_0.jpeg

.JPEG

_page_192_Figure_0.jpeg

_page_192_Figure_0.jpeg

.JPEG

_page_193_Figure_0.jpeg

_page_193_Figure_0.jpeg

.JPEG

_page_194_Figure_2.jpeg

_page_194_Figure_2.jpeg

.JPEG

_page_194_Figure_3.jpeg

_page_194_Figure_3.jpeg

.JPEG

_page_194_Picture_5.jpeg

_page_194_Picture_5.jpeg

.JPEG

_page_195_Figure_0.jpeg

_page_195_Figure_0.jpeg

.JPEG

_page_196_Figure_0.jpeg

_page_196_Figure_0.jpeg

.JPEG

_page_207_Figure_0.jpeg

_page_207_Figure_0.jpeg

.JPEG

_page_209_Figure_2.jpeg

_page_209_Figure_2.jpeg

.JPEG

_page_210_Figure_2.jpeg

_page_210_Figure_2.jpeg

.JPEG

_page_212_Figure_2.jpeg

_page_212_Figure_2.jpeg

.JPEG

_page_213_Figure_2.jpeg

_page_213_Figure_2.jpeg

.JPEG

_page_215_Figure_2.jpeg

_page_215_Figure_2.jpeg

.JPEG

_page_216_Figure_2.jpeg

_page_216_Figure_2.jpeg

.JPEG

_page_218_Figure_2.jpeg

_page_218_Figure_2.jpeg

.JPEG

_page_219_Figure_2.jpeg

_page_219_Figure_2.jpeg

.JPEG

_page_221_Figure_2.jpeg

_page_221_Figure_2.jpeg

.JPEG

_page_222_Figure_2.jpeg

_page_222_Figure_2.jpeg

.JPEG

_page_224_Figure_2.jpeg

_page_224_Figure_2.jpeg

.JPEG

_page_225_Figure_2.jpeg

_page_225_Figure_2.jpeg

.JPEG

_page_227_Figure_2.jpeg

_page_227_Figure_2.jpeg

.JPEG

_page_228_Figure_2.jpeg

_page_228_Figure_2.jpeg

.JPEG

_page_236_Figure_12.jpeg

_page_236_Figure_12.jpeg

.JPEG

_page_236_Figure_20.jpeg

_page_236_Figure_20.jpeg

.JPEG

_page_236_Figure_22.jpeg

_page_236_Figure_22.jpeg

.JPEG

_page_236_Figure_23.jpeg

_page_236_Figure_23.jpeg

.JPEG

_page_238_Picture_7.jpeg

_page_238_Picture_7.jpeg

.JPEG

_page_238_Picture_8.jpeg

_page_238_Picture_8.jpeg

.JPEG

_page_238_Picture_9.jpeg

_page_238_Picture_9.jpeg

.JPEG

_page_238_Picture_21.jpeg

_page_238_Picture_21.jpeg

.JPEG

_page_330_Figure_0.jpeg

_page_330_Figure_0.jpeg

.JPEG

_page_331_Figure_0.jpeg

_page_331_Figure_0.jpeg

.JPEG

_page_417_Picture_1.jpeg

_page_417_Picture_1.jpeg

.JPEG

_page_420_Picture_1.jpeg

_page_420_Picture_1.jpeg

.JPEG

Loading...